Projecten
Producten
Bedrijven
Vacatures
Agenda
Awards
Podcasts
more_horiz
Videos
Magazine
Thema's
Favorieten
Profiel
Uitloggen
Nieuw
Populair
Toon alles
Architectenweb magazine #14
Architectenweb magazine #13
Publieke gebouwen
Architectenweb magazine #12
Kantoren
Architectenweb magazine #11
Scholen
Architectenweb magazine #10
Zorg
Architectenweb magazine #14
Architectenweb magazine #10
Zorg
Architectenweb magazine #12
Kantoren
Architectenweb magazine #13
Publieke gebouwen
Architectenweb magazine #6
Transformatie en Renovatie
Om direct naar je favorieten te kunnen gaan is het nodig om eerst in te loggen.
Nieuw
Architectenweb Awards 2025
Architectenweb Awards 2024
Architectenweb Awards 2023
Architectenweb Awards 2022
Architectenweb Awards 2021
Architectenweb Awards 2020
Architectenweb Awards 2019
Architectenweb Awards 2018
Om direct naar je favorieten te kunnen gaan is het nodig om eerst in te loggen.
Nieuw
Populair
Favorieten
Toon alles
Vakwerk Architecten
Nominatie voor de prijs voor Architect van het Jaar 2025
Sanne van Manen
Nominatie voor de prijs voor Architect van het Jaar 2025
KSA
Nominatie voor de prijs voor Architect van het Jaar 2025
KRFT
Nominatie voor de prijs voor Architect van het Jaar 2025
Joost Ector
Nominatie voor de prijs voor Architect van het Jaar 2025
Prijsuitreiking Architectenweb Awards 2024
Impressie van een feestelijke avond
Martens, Willems & Humblé Architecten
Nominatie voor de prijs voor Architect van het Jaar 2024
Uitreiking van Architectenweb Awards 2020
Impressie van de prijsuitreiking via Zoom
De Zwarte Hond
Nominatie voor de prijs voor Architect van het Jaar 2024
Avond met De Zwarte Hond
Symposium
Om direct naar je favorieten te kunnen gaan is het nodig om eerst in te loggen.
Nieuw
Populair
Categorieën
Favorieten
Toon alles
Brandpreventie Academy BV
Cay Circulaire Keukens
Circulaire keukens en pantry's
Studio Kirsten Reith
Interieurontwerp
Studio175
Interieuradvies in regio Utrecht
Orange Automatic Doors
Indoorwrap
De specialist in Keukenwrappen
Cay Circulaire Keukens
Circulaire keukens en pantry's
Studio Kirsten Reith
Interieurontwerp
Studio175
Interieuradvies in regio Utrecht
Interior & Co
Orange Automatic Doors
Indoorwrap
De specialist in Keukenwrappen
Architecten
Architectuur
Mobiliteit en infrastructuur
Stedenbouw en landschapsarchitectuur
Leveranciers
Gevels
Daken
Ramen en deuren
Trappen, liften en balustrades
Binnenwanden
Vloeren
Plafonds
Verlichting
Sanitair
Projectinrichting
Installaties
Constructies
Buitenruimte
Software
Adviseurs
Bestekschrijvers
Bouwmanagement
Installatie adviseurs E
Bouwfysica
Calculators
Installatie adviseurs G/W
Bouwkundig tekenwerk
Constructeurs
Lichtadviseurs
Adviseur beveiliging
Juristen
Intermediairs, Payrolling
Aannemers
Overig
Presentatie
Instellingen / onderwijs
Overig
Om direct naar je favorieten te kunnen gaan is het nodig om eerst in te loggen.
Nieuw
Populair
Favorieten
Toon alles
Gesprek met Stephan Sliepenbeek over hoogbouw in Amstel III
Gesprek met Ellen van Bueren over gebiedsontwikkeling en hoogbouw
Gesprek met Ma Yansong over ontwerpen die emotie oproepen
Gesprek met Paul de Ruiter over innovatieve en duurzame hoogbouw
Gesprek met Pi de Bruijn over zijn ontwerpen voor de Tweede Kamer toen en nu
Gesprek met Ellen van Bueren over gebiedsontwikkeling en hoogbouw
Gesprek met Oresti Sarafopoulos over het ontwerpen van een kantoorgebouw met bijna geen installaties
Gesprek met Stijn Steenbakkers over verdichting en hoogbouw in Eindhoven
Gesprek met Pi de Bruijn over zijn ontwerpen voor de Tweede Kamer toen en nu
Gesprek met Paul de Ruiter over innovatieve en duurzame hoogbouw
Om direct naar je favorieten te kunnen gaan is het nodig om eerst in te loggen.
Nieuw
Populair
Categorieën
Favorieten
Toon alles
Renovatieproject Ockenburghstraat
Aluminium kozijnen: de isolerende oplossing
Den Hartogh Basecamp
Houten huis in de polder - WaxedWood Gold Color
Werkplekken met verhoogd risico - Laboratoria
ASML Gebouw 3
Prinsenpark, Rotterdam
IVY, Amsterdam
IKC De Brug
Houthavens, Amsterdam
Architectuur
Woningbouw
Zorg
Hotels
Restaurants en café’s
Winkels
Sportgebouwen
Culturele gebouwen
Overheidsgebouwen
Scholen
Kantoren
Bedrijfsgebouwen
Paviljoens en kunst
Overig
Mobiliteit en infrastructuur
Trein- en metrostations
Luchthavens
Busstations
Parkeergarages
Fietsparkeren
Wegen
Bruggen
Water
Energie
Tankstations en laadstations
Waterzuivering en afvalverwerking
Overig
Stedenbouw en landschapsarchitectuur
Regionale visies
Gebiedsvisies
Plannen stedelijk weefsel
Amusementsparken en dierentuinen
Lichtontwerpen
Openbare ruimte
Pleinen
Parken
Tuinen
Speelplaatsen
Uitkijktorens
Overige (bijv. begraafplaatsen)
Om direct naar je favorieten te kunnen gaan is het nodig om eerst in te loggen.
Nieuw
Populair
Categorieën
Favorieten
Toon alles
Flux-totaalaanbod vraaggestuurde Renson WTW-ventilatie
Compacte wand- en plafondmontage voor alle debieten
Wie denkt er aan slopen tijdens bouwen?
Kies voor de toekomst, kies voor circulair isoleren!
StoTherm Wood: cementvrij gevelsysteem met houtvezelisolatie
Biobased gevelisolatie met natuurlijke prestaties
Lambda: sleutel tot betere isolatie en energie-efficiëntie
Rockfit en Rockvent: betere lambda-waarde, beter isolerend
SlimFix RenoPro
Waterkerende na-isolatie zonder koudebruggen
Digital Prints
Meer mogelijkheden in gekleurd staal
Element+ H-I
Hout - Aluminium Elementgevel
Vierkante vluchtroutearmaturen voor grote ruimtes
Zichtbare veiligheid van alle kanten
GROHE Cubeo: kranen voor elke badkamer
Stijlvol en duurzaam design voor jarenlang plezier
Schüco Zonweringsysteem Integralmaster in FWS
Bescherming tegen zon, verblinding en privacy – verborgen en volledig geïntegreerd
Gevels
Gevelbekleding
Vliesgevels
Zonwering buiten
Isolatie
Gevelconstructies
Signing
Overig
Daken
Dakafwerkingen
Dakisolatie
Dakconstructies
Dakranden, dakgoten en HWA's
Dakramen
Lichtkoepels
Lichtstraten
Schoorstenen
Overig
Dakluiken
Ramen en deuren
Raam- en deursystemen / kozijnen
Vliesgevels
Hang- en sluitwerk
Beveiliging en luiken
Dorpels en vensterbanken
Lateien
Roosters
Glas
Dakramen
Dakkoepels
Lichtstraten
Zonwering buiten
Zonwering binnen
Buitendeuren
Binnendeuren
Postvakken en brievenbussen
Overig
Dakluiken
Trappen, liften en balustrades
Trappen
Roltrappen
Liften
Balustrades en hekwerken
Galerijen
Binnenwanden
Binnenwanden
Wandafwerking
Vloeren
Constructieve vloeren
Verhoogde vloeren
Vloerafwerkingen
Overig
Plafonds
Tegels
Lineair
Grill
Open en roosters
Naadloos
Eilanden en baffles
Plafondafwerkingen
Ophangsystemen
Overig
Klimaatplafonds
Verlichting
Binnenverlichting
Buitenverlichting
Sanitair
Kranen en douchesets
Wastafels
Douchewanden en douchebakken
Baden
Waterclosets
Accessoires
Overig
Projectinrichting
Stoelen
Banken
Tafels
Kasten
Balies
Vrijstaande wanden
Keukens
Accessoires
Overig
Cabines
Interieurbeplanting
Stoffering
Installaties
Verwarming, koeling en ventilatie
Elektrotechnische installaties
Schakelmateriaal
Domotica
Deurcommunicatie
Beveiliging
Liften
Onderhoudsinstallaties
Overig
Brandbeveiliging
Constructies
Draagconstructies
Funderingen en kelders
Overig
Brandbeveiliging
Buitenruimte
Bestratingen en verhardingen
Afwateringen
Terreinafscheidingen en geluidsschermen
Buitenmeubilair
Fietsparkeren
Terrassen
Terrasoverkappingen
Bruggen
Accessoires
Overig
Beplanting
Sport- en speeltoestellen
Software
Tekenen 2D
Modelleren 3D / BIM
Visualisatie / rendering
Parametrisch ontwerpen
Bouwfysica
Draagconstructie
Overig
Virtual Reality
Cloudoplossingen
Om direct naar je favorieten te kunnen gaan is het nodig om eerst in te loggen.
Nieuw
Populair
Favorieten
Toon alles
Zomerwandelingen Nieuwe Stad op Zondag 2025
Amsterdam
Prefab beurs - 7 t/m 9 oktober 2025
Brabanthallen 's-Hertogenbosch
Boekpresentatie en panelgesprek met Floor Milikows
Prins Hendrikkade 600, 1011 VX Amsterdam
Architects Table ’25: Lunch & Inspiratie in HAUT Amsterdam
ATAG LIVE – HAUT gebouw, Spaklerweg 10F, 1096 BA Amsterdam (tegenover metrostation Spaklerweg)
Inspiratiedag @ Sempergreen – Gevelgroen
Defensieweg 1, 3984 LR Odijk
Architects Table ’25: Lunch & Inspiratie in HAUT Amsterdam
ATAG LIVE – HAUT gebouw, Spaklerweg 10F, 1096 BA Amsterdam (tegenover metrostation Spaklerweg)
Ontdek het seminarieprogramma van Architect@Work Amsterdam
De Kromhouthal, Gedempt Hamerkanaal 231, Amsterdam
LIAG over duurzaamheid centraal in project
Online
1.Lectures HouseEurope! Renovate, don’t speculate
Pakhuis de Zwijger
Zomerwandelingen Nieuwe Stad op Zondag 2025
Amsterdam
Om direct naar je favorieten te kunnen gaan is het nodig om eerst in te loggen.
Nieuw
Toon alles
Design
Duurzaamheid
Gevel
Infrastructuur
Interieur
Kantoren
Leisure
Openbare ruimte
Publieke gebouwen
Scholen
Transformatie en Renovatie
Woningbouw
Zorg
Om direct naar je favorieten te kunnen gaan is het nodig om eerst in te loggen.
Nieuw
Populair
Toon alles
Site Practice zoekt medior architect met 3-6 jaar ervaring (Amsterdam)
DAT zoekt een BIM Modelleur (Revit)
stagiair bouwkunde Heerenveen
Meewerkend Voorman
Medior/Senior Meubelmaker
Bouwkundig projectleider (per direct)
Junior Architect gezocht!
Architect
Junior Ontwerper
Studio Nauta zoekt projectleider
wUrck zoekt junior Architect
Project Architect
Om direct naar je favorieten te kunnen gaan is het nodig om eerst in te loggen.
Copyright: Gerard van Beek
Copyright: Gerard van Beek
Aan de Witte de Withstraat is een blok met appartementen gebouwd
Copyright: Gerard van Beek
Copyright: Gerard van Beek
Copyright: Gerard van Beek
Copyright: Gerard van Beek
Copyright: Gerard van Beek
Copyright: Gerard van Beek
Oude situatie
Copyright: De Architecten van Team 4
Oude situatie
Copyright: De Architecten van Team 4
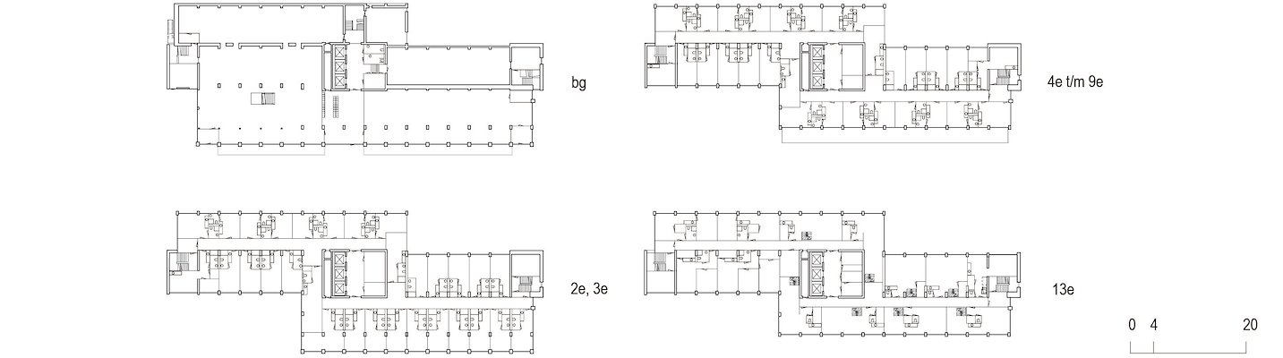
Plattegronden
Copyright: De Architecten van Team 4
Transformatie Zwarte Doos Groningen tot woongebouw afgerond
31 januari 2022, 14:07
Afgelopen jaar is de transformatie van de zogeheten Zwarte Doos in Groningen tot woongebouw afgerond. Naar ontwerp van
De Architecten van Team 4
(voorheen Team 4 Architecten) zijn in het voormalige gebouw van de sociale dienst driehonderd woningen voor studenten en jongeren gerealiseerd. De topverdieping biedt plaats aan luxe penthouses, op de begane grond is een multifunctionele ruimte met onder meer een sportvoorziening gerealiseerd.
De markante Zwarte Doos is gebouwd in 1976, naar een ontwerp van bureau Van Linge en Kleinjan, en heeft tot 2013 gefungeerd als het kantoor van de sociale dienst. Zoals de bijnaam al aangeeft, viel het pand aan de Eendrachtskade vooral op door diens zwarte gevel. Team 4 heeft er een nieuw accent aan toegevoegd, in de vorm van champagnekleurige aluminium kozijnen en penanten.
De oorspronkelijke karakteristieke gevelelementen van zwart grindbeton zijn behouden en alleen plaatselijk verwijderd om fraaie overhoekse ruimten in de nieuwe appartementen te maken, meldt Team 4. De nieuwe en eveneens beeldbepalende champagnekleurige gevelelementen geven de gevel meer plasticiteit en introduceren een kleinschaliger ritme, dat beter past bij het woonprogramma.
In het ontwerp is daarnaast nadrukkelijk de aansluiting met de omgeving gezocht, vooral op straatniveau. Door de plint in dezelfde lijn te plaatsen van de naastliggende bebouwing, wilden de architecten een evenwichtiger straatbeeld creëren. Ook heeft het gebouw meer ingangen gekregen, omwille van een opener karakter en meer levendigheid op straat.
Nieuw blok met appartementen
Alle parkeerplaatsen zijn op een half verdiept parkeerterrein aan de achtergelegen Witte de Withstraat gerealiseerd. Erboven is een nieuw blok met appartementen gebouwd, die direct toegankelijk zijn vanaf de parkeerplaatsen. De appartementen zijn verdeeld over twee woonlagen, waarvan de eerste woonlaag is uitgevoerd als beletage. Alle voordeuren liggen aan straatzijde.
Aan de straatzijde heeft elk appartement bovendien een ruim balkon, op het zuiden gericht. De gevels van deze appartementen zoeken in schaal, materialisatie en detaillering aansluiting bij de naastgelegen woningbouw uit de jaren dertig - en qua kleurstelling en strakke vormgeving bij de Zwarte Doos, zo verklaart De Architecten van Team 4.
Het voormalige kantoorgebouw is in 2019 aangekocht door de Belgische studentenhuisvester Xior. De ontwikkeling was in handen van DubbeLL.
Trefwoorden
team 4 architecten
dubell
xior student housing
transformatie
groningen
woongebouw
de architecten van team 4
studenten
Locatie
Best gelezen
1
Rapport: rijke Amsterdammers leven steeds vaker apart van rest
dinsdag, 30 september
2
Kabinet wil wijken erbij op 127 plekken in Nederland
maandag, 29 september
3
Architectenweb symposium: klein maar fijn wonen?
donderdag, 2 oktober
4
Leiden wil verhoogd busstation naast treinperrons centraal station
dinsdag, 30 september
5
Nominaties Interieur van het Jaar 2025 bekend
woensdag, 1 oktober
Gerelateerde nieuwsberichten
Werelderfgoedcentrum Waddenzee: een baken van ecologisch bewustzijn
9 juli
'Zwarte Doos' in Groningen wordt woongebouw voor studenten
12 juni 2020
Team 4 Architecten neemt bureau Rik Lagerwaard over
3 april 2020
Team 4 ontwerpt woningbouwproject Helperkade Groningen
27 maart 2020
Aardbevingsbestendig kindcentrum voor Gronings dorp
28 maart 2019
Nieuwe Poort Groningen moet plek worden 'waar altijd wat te doen is'
26 januari 2022
Neprom-prijs toegekend aan oostzijde Grote Markt Groningen
20 januari 2022
Team Felixx presenteert leidraad voor andere benadering Groningse openbare ruimte
13 januari 2022
Vector-i geselecteerd voor ontwerp Museum aan de A in Groningen
3 januari 2022
Flexibele voorzieningencluster van de Zwarte Hond voor Meerstad
11 november 2021
Historische context vertrekpunt voor woningbouwplan Meerstad
27 oktober 2021
Winnaars Groninger Architectuurprijs 2021 bekend
20 september 2021
Vakbond ziet huisvesting van studenten weer ‘helemaal fout’ gaan
21 juli 2022
Studentencampus (Y)ours Leiden volledig opgeleverd
8 augustus 2022
Actieplan: 60.000 extra studentenwoningen in komende acht jaar
8 september 2022
Ontwerpmanifestatie Bouw Anders: de Compacte Stad
15 september 2022
Vakjury en publiek kennen Engelse Park Groninger Architectuurprijs toe
28 september 2022
Werelderfgoedcentrum Waddenzee: een baken van ecologisch bewustzijn
9 juli
'Zwarte Doos' in Groningen wordt woongebouw voor studenten
12 juni 2020
Team 4 Architecten neemt bureau Rik Lagerwaard over
3 april 2020
Team 4 ontwerpt woningbouwproject Helperkade Groningen
27 maart 2020
Aardbevingsbestendig kindcentrum voor Gronings dorp
28 maart 2019
Nieuwe Poort Groningen moet plek worden 'waar altijd wat te doen is'
26 januari 2022
Neprom-prijs toegekend aan oostzijde Grote Markt Groningen
20 januari 2022
Team Felixx presenteert leidraad voor andere benadering Groningse openbare ruimte
13 januari 2022
Vector-i geselecteerd voor ontwerp Museum aan de A in Groningen
3 januari 2022
Flexibele voorzieningencluster van de Zwarte Hond voor Meerstad
11 november 2021
Historische context vertrekpunt voor woningbouwplan Meerstad
27 oktober 2021
Winnaars Groninger Architectuurprijs 2021 bekend
20 september 2021
Vakbond ziet huisvesting van studenten weer ‘helemaal fout’ gaan
21 juli 2022
Studentencampus (Y)ours Leiden volledig opgeleverd
8 augustus 2022
Actieplan: 60.000 extra studentenwoningen in komende acht jaar
8 september 2022
Ontwerpmanifestatie Bouw Anders: de Compacte Stad
15 september 2022
Vakjury en publiek kennen Engelse Park Groninger Architectuurprijs toe
28 september 2022
Toon alles
Andere nieuwsberichten
Vocus Architecten heeft ruimtelijke structuur oud Tivolicomplex weer zichtbaar gemaakt
Gisteren, 15:10
Dinsdag is het voormalige onderkomen van poppodium Tivoli in Utrecht heropend. Het 5.200 m2 omvattend complex aan de Oudegracht, dat uit meerdere gebouwdelen bestaat, biedt nu plek aan een hotel, restaurant en twee (al aanwezige) kinderdagverblijven.
Stadsbestuur overtuigd: Museum Rotterdam moet in Steigerkerk komen
Gisteren, 14:01
Volgens onderzoek van V8 Architects zijn de ruimtes in de kerk in het centrum van de stad ‘uitstekend geschikt’ voor de huisvesting van het museum.
Invloedrijke Vlaamse architect bOb van Reeth overleden
Gisteren, 11:03
Afgelopen dinsdag is op 82-jarige leeftijd de Vlaamse architect bOb van Reeth overleden. Van Reeth behoort tot de belangrijkste en invloedrijkste naoorlogse architecten van Vlaanderen en had ook in Nederland veel invloed.
Architectenweb symposium: klein maar fijn wonen?
Gisteren, 09:30
Woensdag 15 oktober 2025 organiseert Architectenweb samen met Hogeschool van Amsterdam, MORE Architecture, UFO Urbanism en Pakhuis de Zwijger een symposium rond de opkomst van grootschalige wooncomplexen met kleine woningen en gedeelde voorzieningen.
Steden vrezen voor woningbouw door nieuwe regels netcongestie
Gisteren, 16:25
Amsterdam, Den Haag, Rotterdam en Utrecht vrezen dat de bouw van nieuwe woningen stil komt te liggen door netcongestie.
Dienst Toeslagen: plan voor wonen op vakantieparken onuitvoerbaar
Gisteren, 13:06
Het kabinetsplan om permanent wonen in vakantiehuisjes mogelijk te maken, is volgens de Dienst Toeslagen onuitvoerbaar.
Zuid-Holland wil in ‘oogstjaar’ 2026 plannen uitvoeren
1 oktober, 3:16
De provincie investeert onder meer in infrastructuur, woningbouw, natuur en versterking van kleine kernen.
Rijk schrijft aanbesteding uit voor nieuwe marinierskazerne
1 oktober, 2:27
Eind 2031 wil het Korps Mariniers vanuit zijn huidige kazerne in Doorn verhuizen naar een nieuw onderkomen op de bestaande Defensielocatie Kamp Nieuw-Milligen vlakbij Apeldoorn.
Landschapstriënnale 2026 strijkt neer in Arnhem
1 oktober, 11:57
Het thema van de komende editie van de manifestatie is ‘Op Waterbasis’.
Veelzijdig ontwerper Mathieu Bruls verzorgt 21e Peutz-lezing
30 september, 3:05
Bruls (1960) is een veelzijdig ontwerper, die naast gebouwen en stedenbouwkundige plannen onder meer interieurs, meubels en tentoonstellingen ontwerpt.
Ga naar het nieuws-archief
Ronnie Weessies
Redacteur
0
0
0
0
Voor een optimale gebruikservaring plaatst Architectenweb functionele cookies. Wat de verschillende cookies precies doen leggen we uit in een
overzicht
. Cookies van social media kun je optioneel
aanzetten
.
Akkoord
Instellingen
Annuleren
OK
Sluiten
Doorgaan
Inloggen
Maak een gratis persoonlijk account aan
Feedback
Feedback
Wij horen graag jouw feedback. Laat je reactie achter en eventueel jouw e-mail adres.
Reactie
Verstuur