Projecten
Producten
Bedrijven
Vacatures
Agenda
Awards
Podcasts
more_horiz
Videos
Magazine
Thema's
Favorieten
Profiel
Uitloggen
Copyright: Stijn Bollaert
Copyright: Stijn Bollaert
Copyright: Stijn Bollaert
Copyright: Stijn Bollaert
Copyright: Stijn Bollaert
Copyright: Stijn Bollaert
Copyright: Stijn Bollaert
Copyright: Stijn Bollaert
Copyright: Stijn Bollaert
Copyright: Stijn Bollaert
Copyright: Stijn Bollaert
Copyright: Stijn Bollaert
Copyright: Stijn Bollaert
Copyright: Stijn Bollaert
Copyright: Label Architecture
Copyright: Label Architecture
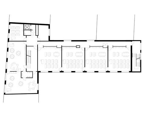
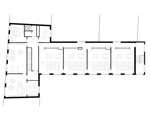
De middelbare school, begane grond
Copyright: Label Architecture
De middelbare school, eerste verdieping
Copyright: Label Architecture
De middelbare school, tweede verdieping
Copyright: Label Architecture
De middelbare school, derde verdieping
Copyright: Label Architecture
De middelbare school, vierde verdieping
Copyright: Label Architecture
De basisschool, begane grond
Copyright: Label Architecture
De basisschool, eerste verdieping
Copyright: Label Architecture
De basisschool, tweede verdieping
Copyright: Label Architecture
De basisschool, derde verdieping
Copyright: Label Architecture
Nieuwe scholen ogen 'alsof ze er altijd hebben gestaan'
20 februari 2020, 9:03
In het centrum van Mechelen zijn twee schoolgebouwen naar ontwerp van
Label Architecture
in gebruik genomen. De blokken met respectievelijk een middelbare- en basisschool zijn geplaatst op een dichtbebouwde plek, die zich kenmerkt door een ratjetoe aan bouwstijlen. Om de nieuwbouw te integreren, is in het ontwerp uitgegaan van een āomgekeerde situatieā.
In plaats van dat de gebouwen in de directe omgeving al eerder bestonden, moeten de scholen ogen alsof zĆj er altijd hebben gestaan en dat de rest er omheen is gebouwd. Beide blokken ademen een industrieel verleden; alsof het voormalige fabriekspanden midden in de stad zijn die over de jaren verschillende keren zijn gerenoveerd. Dat beeld wordt versterkt door de ādichtgemetselde ramenā in de gevel, vierkante uitsneden die zijn gevuld met andere typen metselwerk of open zijn gelaten.
Een tweede uitgangspunt van het ontwerp is om meer āluchtā te verschaffen in de dichtbebouwde en volgens de architecten welhaast labyrintische omgeving. Dat is gedaan door compacte gebouwen te ontwerpen en door veel ruimte onbebouwd te laten, bijvoorbeeld door nieuwe binnenplaatsen te creĆ«ren.
De gebouwen voor onderwijsinstelling Ursulinen Mechelen omvatten bij elkaar ruim 5.000 vierkante meter, met plek voor in totaal 1.750 leerlingen. Behalve klaslokalen, sportzalen, kantines en andersoortige ruimtes die gangbaar zijn voor scholen, zijn er twee fietsenstallingen gerealiseerd, waarvan een ondergronds. Het project is gerealiseerd via het DBFM-programma
Scholen van Morgen
.
Trefwoorden
label architecture
mechelen
belgië
vlaanderen
school
scholen
Locatie
Best gelezen
1
Duitsland slokt Nederlandse bouwkracht op
maandag, 13 oktober
2
David Chipperfield landt in Antwerps Nieuw Zuid
woensdag, 15 oktober
3
Nieuw shortstayhotel door Houben / Van Mierlo in stationsgebied Den Bosch
maandag, 13 oktober
4
Kantoorgebouw door Arthur Staal aan de Schinkel gerenoveerd en uitgebreid
woensdag, 15 oktober
5
Gezicht van de tijd
woensdag, 15 oktober
Gerelateerde nieuwsberichten
Voormalige fabriekslocatie in Mechelen wordt groene woonwijk
9 januari 2024
Mechelse bibliotheek met sporen van kloosterhistorie
22 oktober 2019
Museum van afwezigheid in Mechelen
8 juli 2013
Nieuwe functies in Mechelse Den Dok
11 maart 2013
Nederlandse bureaus maken masterplan Mechelen
27 september 2016
41 nieuwe grote schoolbouwprojecten in België
5 oktober 2017
Nieuwe schoolgebouwen van dJGA geopend
13 juli 2016
Bouw 'alles-in-één-school' De Knotwilg van start
29 april 2020
Voormalige fabriekslocatie in Mechelen wordt groene woonwijk
9 januari 2024
Mechelse bibliotheek met sporen van kloosterhistorie
22 oktober 2019
Museum van afwezigheid in Mechelen
8 juli 2013
Nieuwe functies in Mechelse Den Dok
11 maart 2013
Nederlandse bureaus maken masterplan Mechelen
27 september 2016
41 nieuwe grote schoolbouwprojecten in België
5 oktober 2017
Nieuwe schoolgebouwen van dJGA geopend
13 juli 2016
Bouw 'alles-in-één-school' De Knotwilg van start
29 april 2020
Toon alles
Andere nieuwsberichten
CPO meer&deel grote winnaar Dirk Roosenburgprijs 2025
Gisteren, 15:37
Het project naar ontwerp van Tom van Tuijn Stedenbouw, Werkstatt en Volle Grond kreeg zowel de vakjury- als publieksprijs.
Gedetailleerde 3D-geprinte maquette toont ruimtelijke ontwikkeling Amsterdam
Gisteren, 14:56
In het WTC op de Amsterdamse Zuidas is een gedetailleerde maquette van de stad Amsterdam geplaatst. In de 3D-geprinte en interactieve maquette zijn bekende plekken en gebouwen te zien, maar ook gebieden die tussen nu en 2030 worden ontwikkeld.
Woongebouwen door VdpArchitecten vormen nieuwe 'voorkant' Groningse Oosterparkwijk
Gisteren, 13:48
Aan de Oosterhamrikkade in Groningen is dit jaar woongebouw Talent opgeleverd. Het complex, dat net als het naastgelegen gebouw Karaat is ontworpen door VdpArchitecten, bestaat uit 108 middeldure huurwoningen.
Het Cultuurfonds kent subsidie toe aan biobased paviljoen voor Amsterdamse Bos ontworpen door Space Encounters
Gisteren, 11:07
Het Cultuurfonds stelt ⬠100.000 beschikbaar voor het Amsterdamse Bosnest. Het paviljoen is ontworpen door Space Encounters en wordt volledig gebouwd met biobased materialen uit het Amsterdamse Bos.
Sweco neemt groot Belgisch architectenbureau over
Gisteren, 16:23
Het 150 medewerkers tellende assar architects ontwierp onder meer het nieuwe hoofdkantoor van de NAVO in Brussel.
IMF: geen forse huizenprijsdaling bij einde hypotheekrenteaftrek
Gisteren, 12:14
Een mogelijke afschaffing van de hypotheekrenteaftrek in Nederland heeft waarschijnlijk een prijsremmende werking, stelt de Nederlandse bestuurder van het IMF Marnix van Rij
EIB: 75.000 nieuwe voltijdse arbeidskrachten nodig in de bouw
Gisteren, 10:11
Volgens het instituut wordt het tekort aan vakmensen in de bouw steeds groter, vooral omdat de energietransitie een enorme extra vraag naar arbeid creëert.
Groningen worstelt met afronding dertig kilometer lang fietspad naar Assen
16 oktober, 3:25
Een ruime meerderheid van de Groningse Statenleden wil dat er bij het project meer aandacht komt voor de veiligheid van vrouwen.
PBL: minimaal 150.000 hectare meer natuur nodig in 2050
16 oktober, 11:37
Het planbureau heeft twee mogelijke oplossingsrichtingen doorgerekend om de huidige Europese doelen voor klimaat, natuur en waterkwaliteit te halen.
Afaina de Jong wint Amsterdamprijs voor de Kunst 2025
15 oktober, 3:19
De architect en oprichter van Afarai won de belangrijkste kunstprijs van de hoofdstad in de categorie Bewezen Kwaliteit.
Ga naar het nieuws-archief
Ronnie Weessies
Redacteur
0
0
0
0
Voor een optimale gebruikservaring plaatst Architectenweb functionele cookies. Wat de verschillende cookies precies doen leggen we uit in een
overzicht
. Cookies van social media kun je optioneel
aanzetten
.
Akkoord
Instellingen
Annuleren
OK
Sluiten
Doorgaan
Inloggen
Maak een gratis persoonlijk account aan
Feedback
Feedback
Wij horen graag jouw feedback. Laat je reactie achter en eventueel jouw e-mail adres.
Reactie
Verstuur