Projecten
Producten
Bedrijven
Vacatures
Agenda
Awards
Podcasts
more_horiz
Videos
Magazine
Thema's
Favorieten
Profiel
Uitloggen
Copyright: Urban Echoes
Copyright: Urban Echoes
Copyright: Urban Echoes
Copyright: Urban Echoes
Copyright: Urban Echoes
Copyright: Urban Echoes
Copyright: Urban Echoes
Copyright: Urban Echoes
Copyright: Urban Echoes
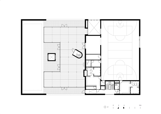
Begane grond
Copyright: Urban Echoes
Eerste verdieping
Copyright: Urban Echoes
Tweede verdieping
Copyright: Urban Echoes
Langsdoorsnede
Copyright: Urban Echoes
Dwarsdoorsnede
Copyright: Urban Echoes
Bouw 'alles-in-één-school' De Knotwilg van start
29 april 2020, 11:14
In Amsterdam-Zuidoost is gestart met de bouw van basisschool en kinderopvang De Knotwilg. De ‘alles-in-één-school’ met een openbare gymzaal op het dak is ontworpen door
Urban Echoes
. De school is compact en alzijdig ontworpen, met een veel aandacht voor detaillering, kleur en materiaal. Accenten in de gevel geven zichtbaarheid aan de verschillende activiteiten die zich binnen afspelen.
Het gebouw komt op dezelfde plek als waar de school tot voor kort zijn onderkomen had, in Gaasperdam. Vanaf 2022 worden op deze locatie aan het Vreeswijkpad nog eens drie woongebouwen gerealiseerd. Om de doorstroming tussen voorschool, basisschool en naschoolse opvang te vergemakkelijken, wordt in de nieuwe school het hele jaar onderwijs en opvang doorlopend verzorgd voor kinderen tot twaalf jaar.
Het fietspad aan de noordgevel was een donkere en onprettige plek, meldt Urban Echoes. Bovenin de gevel in de gymzaal is een groot rond raam ontworpen. Lichtkunstenaar Arnout Meijer is gevraagd speciaal hiervoor een lichtontwerp te maken, zodat het er altijd in meer of mindere mate licht vanuit straalt, ook als de gymzaal niet in gebruik is. Met deze ingreep verandert ook de openbare ruimte rondom het gebouw.
De grote verticale openingen in de oost- en westgevel fungeren als entrees van de school en leiden naar een centrale ruimte met zitkuil en glijbaan, die het hart van het gebouw gaat vormen. In het schoolontwerp is zoveel mogelijk ruimte voor beweging en ontmoeting gecreëerd, de allerjongsten kunnen met de basisschoolkinderen spelen op het podium en in het speellokaal.
De centrale ruimtes op beide verdiepingen zijn inzetbaar voor vieringen en het geeft kinderen de ruimte om zelf een leerplekje in te richten buiten de lokalen, laat het architectenbureau weten.
Op het dak is een daktuin met volwaardige tuinbouwkas ontworpen. Deze wordt door de school gebruikt voor de biologieles om planten en kruiden te kweken, te onderhouden en te oogsten. In een kookles kunnen deze gebruikt worden om vervolgens samen met ouders en buurtgenoten van te eten. In de winter wordt de kas een energiebesparend onderdeel van het klimaat- en ventilatiesysteem, als aanvoer van gezonde en voorverwarmde lucht voor het schoolgebouw.
Naar verwachting is het gebouw in september volgend jaar klaar.
Trefwoorden
basisschool
amsterdam zuidoost
amsterdam
kinderopvang
urban echoes
school
Locatie
Best gelezen
1
Duitsland slokt Nederlandse bouwkracht op
maandag, 13 oktober
2
David Chipperfield landt in Antwerps Nieuw Zuid
woensdag, 15 oktober
3
Kantoorgebouw door Arthur Staal aan de Schinkel gerenoveerd en uitgebreid
woensdag, 15 oktober
4
Gezicht van de tijd
woensdag, 15 oktober
5
Woongebouwen door VdpArchitecten vormen nieuwe 'voorkant' Groningse Oosterparkwijk
vrijdag, 17 oktober
Gerelateerde nieuwsberichten
Lessen rond het verder bouwen aan bestaande scholen
31 maart 2020
Video: debatten anderhalve-meter-samenleving en toekomst van Nederland
24 april 2020
Schoolgebouw Klein Amsterdam bestaat uit prefab houten modules
19 maart 2020
DAT wint architectenselectie voor twee schoolgebouwen
1 april 2020
Nieuwe scholen ogen 'alsof ze er altijd hebben gestaan'
20 februari 2020
Brede maatschappelijke voorziening Auvermoer naar ontwerp van TenW geopend
3 februari 2020
Studio Ard Hoksbergen ontwerpt huiselijke basisschool in Slotermeer
24 januari 2020
Uitbreiding als aanvulling en contrast bestaande school
17 januari 2020
Gaasperdammertunnel volledig open voor verkeer
23 november 2020
Intentieovereenkomst voor nieuw gebouw naast hoofdkantoor ING
22 januari 2021
Met masterplan wil Amsterdam stadsdeel Zuidoost opknappen
5 februari 2021
Leegstaand kantoor naast Het Zandkasteel maakt plaats voor woontoren
1 april 2021
Jolijn Valk voorgedragen als nieuwe BNA-voorzitter
3 mei 2021
Amsterdamse Poort aan vooravond grootschalige vernieuwing
13 juli 2021
AM wint tender voor woonblokken Vreeswijkpad Amsterdam
18 oktober 2021
Bouw hoogste woontoren van Amsterdam gaat van start
16 februari 2022
OZ presenteert laatste twee blokken OurDomain
23 februari 2022
Nieuwe buurt op plek woonzorgcentrum Venserpolder
18 mei 2022
Wonam wint tender voor 338 woningen in E-buurt Amsterdam
22 juli 2022
Lessen rond het verder bouwen aan bestaande scholen
31 maart 2020
Video: debatten anderhalve-meter-samenleving en toekomst van Nederland
24 april 2020
Schoolgebouw Klein Amsterdam bestaat uit prefab houten modules
19 maart 2020
DAT wint architectenselectie voor twee schoolgebouwen
1 april 2020
Nieuwe scholen ogen 'alsof ze er altijd hebben gestaan'
20 februari 2020
Brede maatschappelijke voorziening Auvermoer naar ontwerp van TenW geopend
3 februari 2020
Studio Ard Hoksbergen ontwerpt huiselijke basisschool in Slotermeer
24 januari 2020
Uitbreiding als aanvulling en contrast bestaande school
17 januari 2020
Gaasperdammertunnel volledig open voor verkeer
23 november 2020
Intentieovereenkomst voor nieuw gebouw naast hoofdkantoor ING
22 januari 2021
Met masterplan wil Amsterdam stadsdeel Zuidoost opknappen
5 februari 2021
Leegstaand kantoor naast Het Zandkasteel maakt plaats voor woontoren
1 april 2021
Jolijn Valk voorgedragen als nieuwe BNA-voorzitter
3 mei 2021
Amsterdamse Poort aan vooravond grootschalige vernieuwing
13 juli 2021
AM wint tender voor woonblokken Vreeswijkpad Amsterdam
18 oktober 2021
Bouw hoogste woontoren van Amsterdam gaat van start
16 februari 2022
OZ presenteert laatste twee blokken OurDomain
23 februari 2022
Nieuwe buurt op plek woonzorgcentrum Venserpolder
18 mei 2022
Wonam wint tender voor 338 woningen in E-buurt Amsterdam
22 juli 2022
Toon alles
Andere nieuwsberichten
CPO meer&deel grote winnaar Dirk Roosenburgprijs 2025
17 oktober, 3:37
Het project naar ontwerp van Tom van Tuijn Stedenbouw, Werkstatt en Volle Grond kreeg zowel de vakjury- als publieksprijs.
Gedetailleerde 3D-geprinte maquette toont ruimtelijke ontwikkeling Amsterdam
17 oktober, 2:56
In het WTC op de Amsterdamse Zuidas is een gedetailleerde maquette van de stad Amsterdam geplaatst. In de 3D-geprinte en interactieve maquette zijn bekende plekken en gebouwen te zien, maar ook gebieden die tussen nu en 2030 worden ontwikkeld.
Woongebouwen door VdpArchitecten vormen nieuwe 'voorkant' Groningse Oosterparkwijk
17 oktober, 1:48
Aan de Oosterhamrikkade in Groningen is dit jaar woongebouw Talent opgeleverd. Het complex, dat net als het naastgelegen gebouw Karaat is ontworpen door VdpArchitecten, bestaat uit 108 middeldure huurwoningen.
Het Cultuurfonds kent subsidie toe aan biobased paviljoen voor Amsterdamse Bos ontworpen door Space Encounters
17 oktober, 11:07
Het Cultuurfonds stelt € 100.000 beschikbaar voor het Amsterdamse Bosnest. Het paviljoen is ontworpen door Space Encounters en wordt volledig gebouwd met biobased materialen uit het Amsterdamse Bos.
Sweco neemt groot Belgisch architectenbureau over
17 oktober, 4:23
Het 150 medewerkers tellende assar architects ontwierp onder meer het nieuwe hoofdkantoor van de NAVO in Brussel.
IMF: geen forse huizenprijsdaling bij einde hypotheekrenteaftrek
17 oktober, 12:14
Een mogelijke afschaffing van de hypotheekrenteaftrek in Nederland heeft waarschijnlijk een prijsremmende werking, stelt de Nederlandse bestuurder van het IMF Marnix van Rij
EIB: 75.000 nieuwe voltijdse arbeidskrachten nodig in de bouw
17 oktober, 10:11
Volgens het instituut wordt het tekort aan vakmensen in de bouw steeds groter, vooral omdat de energietransitie een enorme extra vraag naar arbeid creëert.
Groningen worstelt met afronding dertig kilometer lang fietspad naar Assen
16 oktober, 3:25
Een ruime meerderheid van de Groningse Statenleden wil dat er bij het project meer aandacht komt voor de veiligheid van vrouwen.
PBL: minimaal 150.000 hectare meer natuur nodig in 2050
16 oktober, 11:37
Het planbureau heeft twee mogelijke oplossingsrichtingen doorgerekend om de huidige Europese doelen voor klimaat, natuur en waterkwaliteit te halen.
Afaina de Jong wint Amsterdamprijs voor de Kunst 2025
15 oktober, 3:19
De architect en oprichter van Afarai won de belangrijkste kunstprijs van de hoofdstad in de categorie Bewezen Kwaliteit.
Ga naar het nieuws-archief
Ronnie Weessies
Redacteur
2
0
0
0
Voor een optimale gebruikservaring plaatst Architectenweb functionele cookies. Wat de verschillende cookies precies doen leggen we uit in een
overzicht
. Cookies van social media kun je optioneel
aanzetten
.
Akkoord
Instellingen
Annuleren
OK
Sluiten
Doorgaan
Inloggen
Maak een gratis persoonlijk account aan
Feedback
Feedback
Wij horen graag jouw feedback. Laat je reactie achter en eventueel jouw e-mail adres.
Reactie
Verstuur