Projecten
Producten
Bedrijven
Vacatures
Agenda
Awards
Podcasts
more_horiz
Videos
Magazine
Favorieten
Profiel
Uitloggen
Abonneer je nu op onze nieuwsbrieven!
Abonneren
Nee, bedankt
Ja, denk met me mee rond de
materialisering van mijn project
Copyright: Egbert de Boer
Copyright: Egbert de Boer
Copyright: Egbert de Boer
Copyright: Egbert de Boer
Copyright: Egbert de Boer
Copyright: Egbert de Boer
Copyright: SeARCH architecture and urban planning
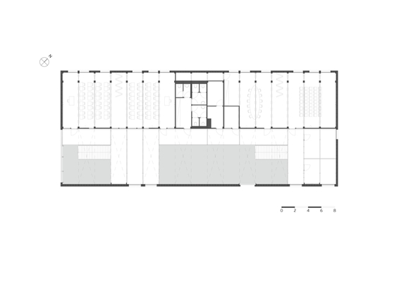
Begane grond
Copyright: SeARCH architecture and urban planning
Eerste verdieping
Copyright: SeARCH architecture and urban planning
Doorsnede
Copyright: SeARCH architecture and urban planning
Axonometrie modules
Copyright: SeARCH architecture and urban planning
Copyright: SeARCH architecture and urban planning
Schoolgebouw Klein Amsterdam bestaat uit prefab houten modules
19 maart 2020, 9:55
In opdracht van de stichting Leren in de Tussenruimte heeft architectenbureau SeARCH een modulair schoolgebouw ontworpen, om snel te kunnen realiseren in woonrijk in ontwikkeling. Het eerste resultaat is de school Klein Amsterdam in Amsterdam-Noord, dat nu genomineerd is voor de Gouden A.A.P.
De aanwezigheid van een school is van fundamenteel belang in een nieuw te ontwikkelen woonwijk, De stedenbouwkundige planvorming en bouw gaat echter vaak langzamer dan de groei van de gezinnen, stelt
SeARCH architecture and urban planning
.
De stichting Leren in de Tussentijd heeft daarop willen inspelen en vroeg SeARCH een nieuwe manier van bouwen te bedenken. Voor een wijk in ontwikkeling zou het interessant zijn een gebouw te hebben dat snel gerealiseerd kan worden, aangepast gedurende de ontwikkeling (groei) van de wijk en gedemonteerd als er een meer permanent gebouw gewenst is.
Modulair en circulair
SeARCH heeft een volledig houten ruimte ontworpen, die gemakkelijk kan worden uitgebreid, gedemonteerd en verplaatst. Dankzij de maatvoering (8,7 x 3,3 m) zijn de prefab houten modules makkelijk te transporteren op een gangbare vrachtwagen.
De eerste school die is gebouwd op basis van dit principe, met prefab houten modules, is Klein Amsterdam in Amsterdam-Noord.Het gebouw is gesitueerd nabij Buiksloterham.
Programmeren
Gestapeld bieden de modules een veel betere indeling dan de klassieke ‘containerschool’, stelt SeARCH. Het programma omvat klaslokalen, flexibele leer- en werkruimten, een atrium en mogelijke ‘plug-ins’ voor extra activiteiten en functies.
Elke houten module heeft een andere afwerking, afhankelijk van de programmering van de ruimte, legt het architectenbureau uit. Als geheel biedt het resultaat een licht, transparant en uitnodigend gebouw.
Uitbreiden of verplaatsen
Op dit moment bestaat Klein Amsterdam uit 34 modules, goed voor 1.250 m2, met plaats voor 180 leerlingen. Over vijf jaar, zal er plaats zijn voor 360 leerlingen in 48 modules. De school kan immers makkelijk worden uitgebreid met nieuwe modules en plug-ins.
Als het gebouw te zijner tijd wordt gedemonteerd, kan het op een andere locatie opnieuw worden ingezet. “Het is géén tijdelijk gebouw”, benadrukken de architecten, “maar een duurzame, volledig circulaire plug-and-play constructie, die meer dan dertig jaar kan functioneren.”
De gehele ontwikkeling van schets tot opening – binnen een jaar – heeft SeARCH gerealiseerd “met de enorme hulp van bouwer De Groot Vroomshoop”. Klein Amsterdam is genomineerd voor de Amsterdamse architectuurprijs, de Gouden A.A.P. 2020.
Trefwoorden
search architecture and urban planning
amsterdam
modulair bouwen
houtbouw
amsterdam-noord
schoolgebouw
search
demontabel bouwen
Locatie
Best gelezen
1
44 woningen op bosrijke locatie in Driebergen
vrijdag, 15 mei
2
Parkeerplein naast Tilburgse schouwburg maakt plaats voor multifunctionele gebouwen
woensdag, 13 mei
3
'Zwevend huis' naar ontwerp van Benthem Crouwel in Amersfoortse wijk
woensdag, 13 mei
4
Schoonhovens College van Geurst & Schulze architecten stimuleert vakmanschap, ontmoeting en leerprestaties
dinsdag, 12 mei
5
Zijn tenders in Duitsland beter geregeld dan in Nederland?
dinsdag, 12 mei
Gerelateerde nieuwsberichten
Verdere samenwerking SeARCH en De Groot Vroomshoop in modulaire houtbouw
2 februari 2022
Genomineerden Gouden A.A.P. 2020 bekend
13 maart 2020
Mastenbroek presenteert actieplan om stikstofuitstoot te verlagen
18 november 2019
SeARCH ontwerpt hoofdkantoor Tony's Chocolonely in Zaandam
4 december 2018
Wooncomplex uit houten modules met een groene vallei
15 juni 2020
SeARCH en Benthem Crouwel Architects winnen prijzen op World Architecture Festival
3 december 2018
Hotel Jakarta (SeARCH) bekroond als Publiek gebouw van het Jaar 2018
8 november 2018
ORGA biedt blik op de bouw van een ecologische school
15 juli 2020
Overeenkomst voor entreegebouw Centrumeiland
6 augustus 2018
Volledig houten constructie voor bedrijfsgebouw HoutWerk
9 juni 2020
Bahrein heeft een cultureel baken van SeARCH
24 mei 2018
Gepixeld appartementencomplex van SeARCH
22 mei 2018
Acht lessen over modulaire woningbouw in hout
13 april 2022
Plan voor omvangrijk woonproject in CLT bij Eindhoven
15 juli 2020
Signature presenteert zich als nieuwe gebieds- en natuurontwikkelaar
8 juni 2023
Studio Selva ontwerpt modulaire prefabwoningen voor vluchtelingen
6 december 2022
De Meeuw mag 500 tijdelijke woningen in Nijmegen realiseren
5 januari 2022
Compacte uitbreiding scholencomplex met ruimte voor groen
23 november 2020
SeARCH presenteert opgeleverde Hunting Ranch in Slowakije
23 februari 2023
Woongebouw The Grid in wijk Aan het IJ Amsterdam-Noord klaar
7 december 2021
Bedrijfsgebouw als voorschot op transformatie Haven-Stad
25 juni 2021
BDP ontwerpt nieuw schoolgebouw Amsterdam-Noord
18 januari 2021
Monnickendam krijgt woongebouw in CLT
12 januari 2021
SeARCH wint tender houten ouderenhuisvesting IJburg
17 december 2020
Biofilisch en parametrisch ontwerp voor stedelijke ontwikkeling op grote schaal
17 november 2020
DP6 presenteert ontwerp voor houten EnergieHotel Ede
23 juli 2020
Schoolgebouw met ruime vleugels rond een levendig hart
14 juli 2020
Modulaire houten school van SeARCH in gebruik genomen
1 juli 2020
Eerste project met modulair bouwsysteem van HOH opgeleverd
8 juni 2020
Bouw 'alles-in-één-school' De Knotwilg van start
29 april 2020
Verdere samenwerking SeARCH en De Groot Vroomshoop in modulaire houtbouw
2 februari 2022
Genomineerden Gouden A.A.P. 2020 bekend
13 maart 2020
Mastenbroek presenteert actieplan om stikstofuitstoot te verlagen
18 november 2019
SeARCH ontwerpt hoofdkantoor Tony's Chocolonely in Zaandam
4 december 2018
Wooncomplex uit houten modules met een groene vallei
15 juni 2020
SeARCH en Benthem Crouwel Architects winnen prijzen op World Architecture Festival
3 december 2018
Hotel Jakarta (SeARCH) bekroond als Publiek gebouw van het Jaar 2018
8 november 2018
ORGA biedt blik op de bouw van een ecologische school
15 juli 2020
Overeenkomst voor entreegebouw Centrumeiland
6 augustus 2018
Volledig houten constructie voor bedrijfsgebouw HoutWerk
9 juni 2020
Bahrein heeft een cultureel baken van SeARCH
24 mei 2018
Gepixeld appartementencomplex van SeARCH
22 mei 2018
Acht lessen over modulaire woningbouw in hout
13 april 2022
Plan voor omvangrijk woonproject in CLT bij Eindhoven
15 juli 2020
Signature presenteert zich als nieuwe gebieds- en natuurontwikkelaar
8 juni 2023
Studio Selva ontwerpt modulaire prefabwoningen voor vluchtelingen
6 december 2022
De Meeuw mag 500 tijdelijke woningen in Nijmegen realiseren
5 januari 2022
Compacte uitbreiding scholencomplex met ruimte voor groen
23 november 2020
SeARCH presenteert opgeleverde Hunting Ranch in Slowakije
23 februari 2023
Woongebouw The Grid in wijk Aan het IJ Amsterdam-Noord klaar
7 december 2021
Bedrijfsgebouw als voorschot op transformatie Haven-Stad
25 juni 2021
BDP ontwerpt nieuw schoolgebouw Amsterdam-Noord
18 januari 2021
Monnickendam krijgt woongebouw in CLT
12 januari 2021
SeARCH wint tender houten ouderenhuisvesting IJburg
17 december 2020
Biofilisch en parametrisch ontwerp voor stedelijke ontwikkeling op grote schaal
17 november 2020
DP6 presenteert ontwerp voor houten EnergieHotel Ede
23 juli 2020
Schoolgebouw met ruime vleugels rond een levendig hart
14 juli 2020
Modulaire houten school van SeARCH in gebruik genomen
1 juli 2020
Eerste project met modulair bouwsysteem van HOH opgeleverd
8 juni 2020
Bouw 'alles-in-één-school' De Knotwilg van start
29 april 2020
Toon alles
Andere nieuwsberichten
KAAN Architecten en TU Delft presenteren boek Building Narratives
1 uur geleden
Hoe kunnen verhalen het ontwerp kunnen sturen en vormgeven, in plaats van slechts als vertelmiddel te dienen? Die vraag staat centraal in het boek 'Building Narratives. Instances from the Architecture of Dialogue'.
Amsterdam start selectie voor circulair en gestapeld bedrijfsgebouw langs A5
3 uur geleden
De gemeente Amsterdam is een selectieprocedure gestart voor de bouw van een gestapeld en circulair bedrijfsgebouw in Sloterijk Poort Noord.
Noordbrabants Museum zoekt jonge architect voor herinrichting vaste collectiepresentatie
Vandaag, 10:41
Het Noordbrabants Museum in Den Bosch zoekt een jonge architect voor de herinrichting van diens vaste collectiepresentatie. Daartoe heeft het museum een open call uitgeschreven.
Stuur nu jullie project in voor de prijs voor Kantoorgebouw van het Jaar 2026
Vandaag, 09:00
Hebben jullie een kantoorgebouw in Nederland ontworpen dat in de periode van 1 september 2025 tot en met 31 augustus 2026 opgeleverd of voltooid is? Stuur dat dan nu in voor de Architectenweb Awards 2026! Deadline is 19 juni 2026.
Eneco pleit voor voldoende marktwerking in de energietransitie
5 minuten geleden
Aanleiding voor de oproep van het energiebedrijf is de steeds grotere rol van de overheid in de productie van energie.
Nationaal Park Utrechtse Heuvelrug wordt twee keer zo groot
2 uur geleden
Minister Van Essen heeft besloten om na het zuidelijke deel ook het noorden van het gebied de officiële status van Nationaal Park te geven.
BPD en Rabobank stimuleren biobased woningbouw en drinkwaterbesparing
4 uur geleden
BPD en Rabobank kondigen de bouwstart aan van 160 nieuwbouwwoningen met biobased materialen en drinkwaterbesparende technieken.
ITA Ensemble speelt 'De Architect' van sterregisseur Rebecca Frecknall
15 mei, 3:11
De voorstelling is een hedendaagse bewerking van Henirik Ibsens 'Bouwmeester Solness'.
Commissie: milieustudie Schiphol schiet tekort voor omwonenden
15 mei, 12:08
De Commissie voor de milieueffectrapportage stelt zelfs dat het rapport herzien zou moeten worden.
Koen Pörtzgen benoemd tot partner bij Zecc Architecten
15 mei, 10:15
Samen met Marnix van der Meer (54) en Bart Kellerhuis (47) vormt de 39-jarige Pörtzgen vanaf dit jaar de directie van het Utrechtse bureau.
Ga naar het nieuws-archief
Robert Muis
Redacteur
0
0
0
0
Voor een optimale gebruikservaring plaatst Architectenweb functionele cookies. Wat de verschillende cookies precies doen leggen we uit in een
overzicht
. Cookies van social media kun je optioneel
aanzetten
.
Akkoord
Instellingen
Annuleren
OK
Sluiten
Doorgaan
Inloggen
Maak een gratis persoonlijk account aan
Feedback
Feedback
Wij horen graag jouw feedback. Laat je reactie achter en eventueel jouw e-mail adres.
Reactie
Verstuur