Projecten
Producten
Bedrijven
Vacatures
Agenda
Awards
Podcasts
more_horiz
Videos
Magazine
Favorieten
Profiel
Uitloggen
Abonneer je nu op onze nieuwsbrieven!
Abonneren
Nee, bedankt
Ja, denk met me mee rond de
materialisering van mijn project
Copyright: Ossip van Duivenbode
Copyright: Ossip van Duivenbode
Copyright: Ossip van Duivenbode
Copyright: Ossip van Duivenbode
Copyright: Ossip van Duivenbode
Copyright: Ossip van Duivenbode
Copyright: Ossip van Duivenbode
Copyright: Ossip van Duivenbode
Copyright: Ossip van Duivenbode
Copyright: Ossip van Duivenbode
Copyright: Ossip van Duivenbode
Copyright: Ossip van Duivenbode
Copyright: Ossip van Duivenbode
Copyright: Ossip van Duivenbode
Copyright: Ossip van Duivenbode
Copyright: Ossip van Duivenbode
Copyright: Ossip van Duivenbode
Copyright: Ossip van Duivenbode
Copyright: Ossip van Duivenbode
Copyright: SeARCH
Copyright: SeARCH
Copyright: SeARCH
Copyright: SeARCH
Copyright: SeARCH
Copyright: SeARCH
Modulaire houten school van SeARCH in gebruik genomen
1 juli 2020, 14:08
In Rotterdam Zuidwijk is basisschool Het Epos in gebruik genomen. De door
SeARCH
ontworpen school is bijna volledig van hout gebouwd en kan eenvoudig worden gedemonteerd, verplaatst, vergroot en uitgebreid. Het gebouw bestaat uit 75 prefab houten modules.
Deze manier van bouwen verkortte de bouwtijd tot enkele maanden. Bovendien kon de periode van bouwen op de locatie tot een minimum worden beperkt, dankzij de hoge mate van prefabricage. De installaties zijn al in de fabriek geïntegreerd in de modules, wat ook de visuele kwaliteit van het pand ten goede is gekomen; de installaties hoefden immers niet in het zicht worden geplaatst.
Reflecterende huid
De gevel van de school is bekleed met verticale houten latten die dicht op de weersbestendige huid zijn gemonteerd. Er is gevarieerd met de afstand tussen de houten latten, waardoor het zicht op de deels zwarte en deels reflecterende huid wordt ‘gefilterd’. Al gelang het weer en de positie van de beschouwer verandert het aanzicht van het gebouw.
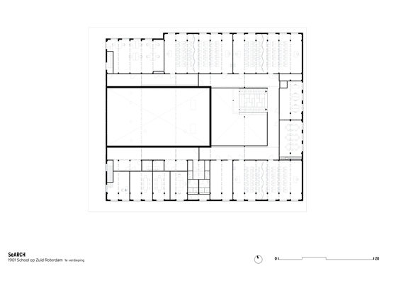
Het gebouw bestaat uit twee vleugels met gestapelde houten klaslokalen, die om de gymzaal en het centrale atrium heen liggen. Het atrium fungeert als het hart van het gebouw en huisvest zowel de entree als de toegang tot de bovenverdieping. De lila multifunctionele brede trap functioneert niet alleen als verkeersader, maar ook als podium, tribune en ontmoetingsplek.
Mediatheek
Op de begane grond bevinden zich ook de mediatheek, de kookstudio en twee grote klaslokalen die elk opgedeeld kunnen worden in twee kleinere units. Op de eerste verdieping zijn er nog drie grote klaslokalen, waaronder een technieklokaal, een kantine en werkruimtes voor de leerkrachten en het overige personeel. Verder liggen er vier kantoren voor andere partijen uit de wijk.
Het interieur is een spel van houten oppervlaktes en glazen openingen, waarmee de architecten een frisse, maar ook warme en veilige sfeer hebben willen creëren voor de leerlingen.
Trefwoorden
hout
rotterdam
search
modulair
school
demontabel
Locatie
Best gelezen
1
Architect Cees Dam op 93-jarige leeftijd overleden
dinsdag, 14 april
2
SeARCH en Heutink Groep winnen tender voor woongebouw Sluisbuurt
vrijdag, 10 april
3
Powerhouse Company wint aanbesteding voor verbouwing Vista College Maastricht
dinsdag, 14 april
4
Tien bureaus geselecteerd voor tweede ronde nieuwbouw De Meervaart
woensdag, 15 april
5
QWA heeft A16 boven Rotterdam eigen identiteit gegeven
maandag, 13 april
Gerelateerde nieuwsberichten
Verdere samenwerking SeARCH en De Groot Vroomshoop in modulaire houtbouw
2 februari 2022
Plan voor omvangrijk woonproject in CLT bij Eindhoven
15 juli 2020
Signature presenteert zich als nieuwe gebieds- en natuurontwikkelaar
8 juni 2023
Nieuwe editie ‘Architects, not Architecture’ in Amsterdam
14 januari 2025
SeARCH presenteert opgeleverde Hunting Ranch in Slowakije
23 februari 2023
Genomineerden Job Dura Prijs 2022 bekend
29 augustus 2022
SeARCH wint tender houten ouderenhuisvesting IJburg
17 december 2020
Bewoners genieten van tuin en polder in houten 'buitenhuis'
30 oktober 2020
DP6 presenteert ontwerp voor houten EnergieHotel Ede
23 juli 2020
Tony's Chocolonely wacht nog even met nieuw hoofdkantoor
15 juni 2020
Schoolgebouw Klein Amsterdam bestaat uit prefab houten modules
19 maart 2020
Video: registratie avond over (iconische) hotels Amsterdam
24 januari 2020
Mastenbroek presenteert actieplan om stikstofuitstoot te verlagen
18 november 2019
SeARCH ontwerpt hoofdkantoor Tony's Chocolonely in Zaandam
4 december 2018
SeARCH en Benthem Crouwel Architects winnen prijzen op World Architecture Festival
3 december 2018
Hotel Jakarta (SeARCH) bekroond als Publiek gebouw van het Jaar 2018
8 november 2018
Buitenruimte als kern van kantoorgebouw Big Green Egg Europe
2 oktober 2018
Hotel Jakarta beleeft officiële opening
28 juni 2018
Bahrein heeft een cultureel baken van SeARCH
24 mei 2018
Gepixeld appartementencomplex van SeARCH
22 mei 2018
Verdere samenwerking SeARCH en De Groot Vroomshoop in modulaire houtbouw
2 februari 2022
Plan voor omvangrijk woonproject in CLT bij Eindhoven
15 juli 2020
Signature presenteert zich als nieuwe gebieds- en natuurontwikkelaar
8 juni 2023
Nieuwe editie ‘Architects, not Architecture’ in Amsterdam
14 januari 2025
SeARCH presenteert opgeleverde Hunting Ranch in Slowakije
23 februari 2023
Genomineerden Job Dura Prijs 2022 bekend
29 augustus 2022
SeARCH wint tender houten ouderenhuisvesting IJburg
17 december 2020
Bewoners genieten van tuin en polder in houten 'buitenhuis'
30 oktober 2020
DP6 presenteert ontwerp voor houten EnergieHotel Ede
23 juli 2020
Tony's Chocolonely wacht nog even met nieuw hoofdkantoor
15 juni 2020
Schoolgebouw Klein Amsterdam bestaat uit prefab houten modules
19 maart 2020
Video: registratie avond over (iconische) hotels Amsterdam
24 januari 2020
Mastenbroek presenteert actieplan om stikstofuitstoot te verlagen
18 november 2019
SeARCH ontwerpt hoofdkantoor Tony's Chocolonely in Zaandam
4 december 2018
SeARCH en Benthem Crouwel Architects winnen prijzen op World Architecture Festival
3 december 2018
Hotel Jakarta (SeARCH) bekroond als Publiek gebouw van het Jaar 2018
8 november 2018
Buitenruimte als kern van kantoorgebouw Big Green Egg Europe
2 oktober 2018
Hotel Jakarta beleeft officiële opening
28 juni 2018
Bahrein heeft een cultureel baken van SeARCH
24 mei 2018
Gepixeld appartementencomplex van SeARCH
22 mei 2018
Toon alles
Gerelateerde podcasts
Gesprek met Bjarne Mastenbroek over de relatie van gebouwen met de grond waarop ze staan
2 december 2021
Andere nieuwsberichten
Anterieure overeenkomst voor bouw woontoren The Four in Eindhoven
Gisteren, 13:26
Naar verwachting wordt beging volgend jaar gestart met de bouw van woontoren The Four in Eindhoven. De door Mecanoo ontworpen toren op de zogeheten Vierlanderlocatie in Fellenoord bestaat uit 306 woningen.
Jury maakt shortlist Prix de Rome Architectuur 2026 bekend
Gisteren, 09:30
Dérive (Hedwig van der Linden and Kevin Westerveld), Maarten Plomp en Iris van der Wal, Namelok (Wiegert Ambagts en Kaj van Boheemen) en Slodka x Zatta (Izabela Slodka en Federica Zatta) zijn de kanshebbers voor deze editie van de prijs.
Woontoren Front vervult meerdere rollen in Hart van de Waalsprong
15 april, 4:31
Vorige week werd de door Monadnock ontworpen woontoren Front onderscheiden met de Architectuurprijs Nijmegen. Het achthoekige gebouw in Lent markeert het centrum van de stadsuitbreiding Hart van de Waalsprong.
Bijzonder erfgoed Fundatie van Renswoude Utrecht gered
15 april, 3:29
Hendrick de Keyser Monumenten heeft de Fundatie van Renswoude in Utrecht, een bijzonder goed bewaard ensemble uit de 18e eeuw, verworven. Hiermee blijven gebouw, historisch interieur en collectie als een geheel behouden.
Architecten voor restauratie en herbestemming Rivièrahal gekozen
Gisteren, 12:00
Voor de grootscheepse restauratie en herbestemming van de Rivièrahal in de Rotterdamse Diergaarde Blijdorp zijn Mecanoo en BiermanHenket geselecteerd.
Bewoners aardbevingsgebied Groningen blijven kritisch op herstel
Gisteren, 10:34
Door de complexiteit en onzekerheid van het jarenlange proces ervaren mensen stress en frustratie.
ING: optoppen en splitsen van woningen steeds minder haalbaar
15 april, 1:22
Het kabinet-Jetten gaat naar verwachting het doel van 15.000 extra woningen per jaar uit verbouwingen niet halen, stelt ING.
Geen rechtszaak over subsidie ministerie aan Van Gogh Museum
15 april, 10:02
De zaak draait om geld dat het museum nodig zegt te hebben voor een renovatie.
AFM: funderingsproblemen bij bijna 220.000 woningen
14 april, 1:25
De huizen van bijna een half miljoen woningeigenaren hebben een hoog risico op funderingsproblemen of een mogelijke kwetsbare fundering.
Oprichter omgevallen vastgoedconcern Evergrande bekent schuld
14 april, 9:17
Evergrande was ooit de grootste projectontwikkelaar van China, maar kwam in de problemen toen het zijn schulden niet kon terugbetalen.
Ga naar het nieuws-archief
Ronnie Weessies
Redacteur
1
0
0
0
Voor een optimale gebruikservaring plaatst Architectenweb functionele cookies. Wat de verschillende cookies precies doen leggen we uit in een
overzicht
. Cookies van social media kun je optioneel
aanzetten
.
Akkoord
Instellingen
Annuleren
OK
Sluiten
Doorgaan
Inloggen
Maak een gratis persoonlijk account aan
Feedback
Feedback
Wij horen graag jouw feedback. Laat je reactie achter en eventueel jouw e-mail adres.
Reactie
Verstuur