Projecten
Producten
Bedrijven
Vacatures
Agenda
Awards
Podcasts
more_horiz
Videos
Magazine
Thema's
Favorieten
Profiel
Uitloggen
Abonneer je nu op onze nieuwsbrieven!
Abonneren
Nee, bedankt
Ja, denk met me mee rond de
materialisering van mijn project
Copyright: Ronald Tilleman
Copyright: Ronald Tilleman
Copyright: Ronald Tilleman
Copyright: Ronald Tilleman
Copyright: Ronald Tilleman
Copyright: Ronald Tilleman
Copyright: Ronald Tilleman
Copyright: Ronald Tilleman
Copyright: Ronald Tilleman
Copyright: Ronald Tilleman
Copyright: Ronald Tilleman
Copyright: Ronald Tilleman
Copyright: Reitsema & partners architecten
Copyright: Reitsema & partners architecten
Copyright: Reitsema & partners architecten
Copyright: Reitsema & partners architecten
Copyright: Reitsema & partners architecten
Copyright: Reitsema & partners architecten
Copyright: Reitsema & partners architecten
Copyright: Reitsema & partners architecten
Copyright: Reitsema & partners architecten
Copyright: Reitsema & partners architecten
Copyright: Reitsema & partners architecten
Lange volumes op landgoed als knipoog naar Twentse schuren
15 oktober 2018, 10:49
Op een landgoed in het Twentse Enter is naar ontwerp van
Reitsema & partners architecten
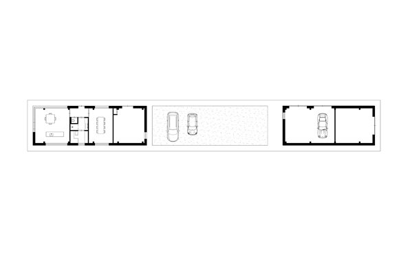
een schuurwoning met twee bijgebouwen gerealiseerd. De drie gebouwen liggen als lange lijnen in een zogenaamde Twentse kamer; een landerij omsloten door wanden van bomen. In de woning, die is voorzien van een 65 meter lang zinken dak, staat de relatie tussen binnen en buiten centraal.
De woning heeft net als de bijgebouwen een slanke plattegrond. Een lange gang langs de gevel verbindt de verschillende functies. Grote ramen langs deze gang kaderen het landschap in. De woonkamer en keuken worden van elkaar gescheiden door een veranda, die tevens toegang biedt tot een terras in de wei. De facilitaire functies zijn dichtbij de entree ondergebracht.
In het interieurontwerp, dat is verzorgd door
Vero Interieur
, spelen natuurlijke materialen een belangrijke rol. De gevel, de kozijnen en de gebinten werden alle in voorvergrijsd hout gerealiseerd om de relatie tussen binnen en buiten verder te versterken, meldt Reitsema & partners. De gevel biedt op diverse plekken een blik door de woning maar verzorgt tevens voldoende privacy.
De woning werd ontworpen op de maat van de voorvergrijsde latten om bij te dragen aan de verfijning van het gebouw. Het dak werd in gepatineerd zink met een relatief hoge felsnaad uitgevoerd, zodat het reliëf ook van afstand waar te nemen is. Door geen goot op te nemen kon de dakrand minimaal worden uitgevoerd.
Moderne gebinten
Een lage goot is overigens wel gebruikelijk voor de oude Twentse schuren, waaraan de drie volumes op het landgoed refereren. Met hun moderne gebinten en het veelvuldig gebruik van glas ontstaat een moderne verwijzing naar de archetypische schuur, zo verklaart het architectenbureau.
Het landgoed is onderdeel van een groter plan, waarbij een lokale ondernemer impuls aan het landschap heeft gegeven. In het nieuwe landschap is elke ‘kamer’ net anders ingedeeld en is het microreliëf beter zichtbaar gemaakt. Zo ligt op het landgoed waar de gebouwen van Reitsema & partners staan subtiel van elkaar verschillende typen grasland. Het landschapsontwerp is gemaakt door
Eelerwoude
.
Trefwoorden
enter
landgoed
schuur
twente
reitsema & partners architecten
woning
Locatie
Best gelezen
1
Finalisten presenteren ontwerp voor Shift Landmark in Rotterdam
woensdag, 4 maart
2
Architect Oliver Thill op 55-jarige leeftijd overleden
donderdag, 5 maart
3
Nieuwe Hittekaart Woningmarkt 2026 van BPD toont aanhoudende woningdruk
dinsdag, 3 maart
4
Strijp-S krijgt woonbuurtje met karakteristieken voormalig Philips-terrein
maandag, 2 maart
5
Haagse gemeenteraad stemt in met bouw van 11.400 woningen in nieuw stadscentrum
maandag, 2 maart
Gerelateerde nieuwsberichten
Ingetogen kantoor geïnspireerd op lokale boerderijen
20 augustus 2020
Rijssen-Holten heeft bijzonder energiezuinig nieuw zwembadcomplex
6 juni 2023
Een schuur-studio bij een eigentijdse woonboerderij
14 augustus 2023
Gezondheidscentrum in oude kerk Borne in gebruik genomen
18 januari 2018
Architect verbouwt villa tot eigen woning
1 september 2017
Nederlander bij Europe 40 under 40
27 oktober 2014
Boerderij met glazen hoofdslaapkamer
21 maart 2012
‘Sensueel’ paviljoen in Enschede
24 september 2010
Villa met ver uitkragende verdieping
23 januari 2019
Atelierschuur is eigentijdse vertaling van traditionele Twentse schuur
3 april 2019
Video: Twentse schuurwoning in BinnensteBuiten
26 april 2019
Zwembad met optimaal zicht op bosrijke omgeving
2 mei 2019
Meer groen en afleesbare historie in centrum Rijssen
2 augustus 2019
Architect realiseert eigen droomhuis in Twente
1 oktober 2019
Lichte en moderne werkomgeving voor VolkerWessels-kantoor Rijssen
13 maart 2020
Reitsema & Partners ontwerpt nieuwbouw Heutink in Nijverdal
19 januari 2021
Transformatie historische moestuin voor mens- en natuurvriendelijke invulling
23 september 2021
FC Twente wil trainingscomplex op plek oude stadion
22 september 2022
Opfrisbeurt voor onderkomen investeringsmaatschappij Reggeborgh
21 oktober 2022
Heutink neemt nieuw hoofdkantoor met distributiecentrum in gebruik
6 december 2022
Ingetogen kantoor geïnspireerd op lokale boerderijen
20 augustus 2020
Rijssen-Holten heeft bijzonder energiezuinig nieuw zwembadcomplex
6 juni 2023
Een schuur-studio bij een eigentijdse woonboerderij
14 augustus 2023
Gezondheidscentrum in oude kerk Borne in gebruik genomen
18 januari 2018
Architect verbouwt villa tot eigen woning
1 september 2017
Nederlander bij Europe 40 under 40
27 oktober 2014
Boerderij met glazen hoofdslaapkamer
21 maart 2012
‘Sensueel’ paviljoen in Enschede
24 september 2010
Villa met ver uitkragende verdieping
23 januari 2019
Atelierschuur is eigentijdse vertaling van traditionele Twentse schuur
3 april 2019
Video: Twentse schuurwoning in BinnensteBuiten
26 april 2019
Zwembad met optimaal zicht op bosrijke omgeving
2 mei 2019
Meer groen en afleesbare historie in centrum Rijssen
2 augustus 2019
Architect realiseert eigen droomhuis in Twente
1 oktober 2019
Lichte en moderne werkomgeving voor VolkerWessels-kantoor Rijssen
13 maart 2020
Reitsema & Partners ontwerpt nieuwbouw Heutink in Nijverdal
19 januari 2021
Transformatie historische moestuin voor mens- en natuurvriendelijke invulling
23 september 2021
FC Twente wil trainingscomplex op plek oude stadion
22 september 2022
Opfrisbeurt voor onderkomen investeringsmaatschappij Reggeborgh
21 oktober 2022
Heutink neemt nieuw hoofdkantoor met distributiecentrum in gebruik
6 december 2022
Toon alles
Andere nieuwsberichten
André Kempe: ‘Het ging Oliver Thill om het geven van betekenis’
Gisteren, 19:15
Agelopen maandag is architect Oliver Thill overleden. Zijn compagnon André Kempe gedenkt de man met wie hij al meer dan 35 jaar bevriend was en ruim een kwarteeuw geleden Atelier Kempe Thill oprichtte.
TconcepT transformeert voormalig warenhuis in Offenbach tot bibliotheek
Gisteren, 15:54
Het 12.000 vierkante meter omvattende complex gaat in bredere zin fungeren als een cultuur- en educatiecentrum met vele functies. In 2027 moet Station Mitte, zoals het gebouw zijn volgende leven wordt genoemd, klaar zijn.
Werkstatt gaat verder zonder medeoprichter Niels Groeneveld
Gisteren, 14:49
Medeoprichter van Werkstatt Niels Groeneveld stopt als partner bij het bureau, om zich te kunnen richten op zijn gezin en onderwijs. Floor Frings en Raoul Vleugels blijven het Eindhovense bureau leiden.
Binationaal ontwerpteam buigt zich over waterhuishouding Cartagena in Colombia
Gisteren, 13:43
Een Colombiaans-Nederlands ontwerpteam met Felixx Landscape Architects & Planners en Witteveen+Bos moedigt Cartagena aan om haar relatie met water te heroverwegen en na te denken over een veerkrachtige toekomst
Kunstmuseum in Den Haag moet worden verbouwd
Gisteren, 16:32
Daarvoor dient het museum in het Statenkwartier waarschijnlijk een tijd te sluiten.
Coen van Oostrom benoemd tot nieuwe voorzitter VNO-NCW
Gisteren, 12:23
De oprichter van ontwikkelaar Edge volgt in die rol Ingrid Thijssen op, die deze week is begonnen als nieuwe bestuursvoorzitter van de TU Delft.
Rapport: lokaal klimaatbeleid schiet nog tekort
Gisteren, 10:25
De makers van de zogeheten Toekomstmeter hebben het beleid van zeventig gemeenten doorgelicht.
Hardt Hyperloop failliet verklaard door rechtbank
5 maart, 11:37
Het Rotterdamse bedrijf was bezig met de ontwikkeling van technologie om mensen op hoge snelheid via capsules door een vacuümbuis te vervoeren.
Onderzoek: zeespiegel kustgebieden hoger dan in studies aangenomen
5 maart, 9:13
De zeespiegel aan de kust is in grote delen van de wereld waarschijnlijk hoger dan in veel wetenschappelijke studies wordt aangenomen.
Gelderland geeft voorrang aan vergunningen met minder stikstof
4 maart, 12:24
De plannen zijn onderdeel van het pakket maatregelen dat het Gelderse bestuur wil nemen om de vergunningverlening voor zaken als de woningbouw weer op gang te krijgen.
Ga naar het nieuws-archief
Ronnie Weessies
Redacteur
2
0
0
0
Voor een optimale gebruikservaring plaatst Architectenweb functionele cookies. Wat de verschillende cookies precies doen leggen we uit in een
overzicht
. Cookies van social media kun je optioneel
aanzetten
.
Akkoord
Instellingen
Annuleren
OK
Sluiten
Doorgaan
Inloggen
Maak een gratis persoonlijk account aan
Feedback
Feedback
Wij horen graag jouw feedback. Laat je reactie achter en eventueel jouw e-mail adres.
Reactie
Verstuur