Projecten
Producten
Bedrijven
Vacatures
Agenda
Awards
Podcasts
more_horiz
Videos
Magazine
Favorieten
Profiel
Uitloggen
Abonneer je nu op onze nieuwsbrieven!
Abonneren
Nee, bedankt
Ja, denk met me mee rond de
materialisering van mijn project
Copyright: Ronald Tilleman
Copyright: Ronald Tilleman
Copyright: Ronald Tilleman
Copyright: Ronald Tilleman
Copyright: Ronald Tilleman
Copyright: Ronald Tilleman
Copyright: Ronald Tilleman
Copyright: Ronald Tilleman
Copyright: Reitsema & partners architecten
Copyright: Reitsema & partners architecten
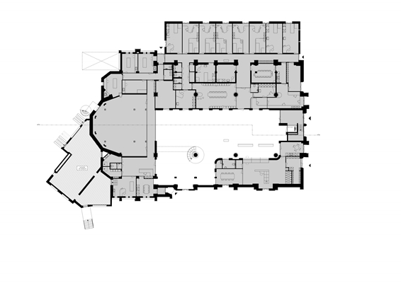
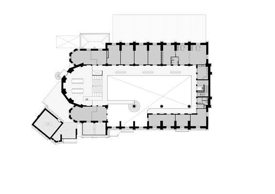
Gezondheidscentrum in oude kerk Borne in gebruik genomen
18 januari 2018, 14:47
Deze maand hebben twintig zorgverleners hun intrek genomen in gezondheidscentrum De Poort van Borne. Naar ontwerp van
Reitsema & partners architecten
zijn de gebruikers ondergebracht in een nieuwe constructie binnen de voormalige Theresiakerk. Centraal in de kerk bevindt zich een binnenplein dat op de eerste verdieping eindigt in een multifunctioneel podium.
Twee jaar geleden kocht projectontwikkelaar Erik Mijnhardt de uit 1935 stammende Theresiakerk van het bisdom om het gebouw een nieuwe maatschappelijke en publieke functie te geven en op die manier zijn waarde voor het dorp te behouden. In De Poort van Borne zijn onder meer huisartsen, logopedisten, psychologen en masseurs onder één dak gebracht.
Het is niet de eerste keer dat een kerk werd herbestemd tot gezondheidscentrum. Om inspiratie op te doen bezocht het bouwteam meerdere gelijksoortige projecten. "In veel gezondheidscentra is de voormalige kerk niet of nauwelijks te beleven en domineert de nieuwbouw. Wij hebben echter bij de verbouwing nadrukkelijk ingezet op het behoud van de bestaande ruimtelijke kenmerken”, licht architect Theo Reitsema toe.
Het plein vormt een buffer tussen binnen en buiten waaraan over drie verdiepingen de praktijken zich presenteren. Hier kunnen bezoekers bij het oude doopvont wachten op hun afspraak of een recept ophalen bij de service-apotheek.
Doordat de oude gewelven niet zijn geïsoleerd, kunnen de gebruikers de kerk in neogotische stijl volop ervaren. Tegelijkertijd zorgt het niet-klimatiseren van het plein voor een grote energiebesparing.
Relatief nieuw
De nieuwe praktijkruimtes zijn juist hoogwaardig geïsoleerd. Ze zijn opgebouwd uit lichtgewicht, gewapend polystyreenwanden voorzien van spuitbeton. Hoewel het systeem al 35 jaar wordt toegepast in vele delen van de wereld, is het in Nederland relatief nieuw.
“De opdrachtgever en de projectleider droegen het - voor ons onbekende - bouwsysteem aan”, vertelt Reitsema. “Het bleek ideaal voor deze verbouwing te zijn. De polystyreenwanden kunnen op maat worden gemaakt, waardoor zelfs aansluitingen op details goed zijn gelukt. Dankzij het systeem hebben we de architectuur kunnen maken die we voor ogen hadden.”
De nieuwe binnengevels aan het plein sluiten aan op de bestaande ruimtelijke ritmiek van de kerk. Door ze wit te stuken, wilde Reitsema een rustig beeld en een tijdloze uitstraling creëren - en de aandacht niet te veel afleiden van de kerkarchitectuur. Een en ander wordt versterkt door de gietvloer en de licht messingkleurige kozijnen.
Ontwikkelaar Erik Mijnhardt: “Wij hebben bewust gekozen voor een hoogwaardige afwerking, zowel in materiaalkeuze als in detaillering. Hiermee doen we recht aan de oorspronkelijke architectuur, maar ook aan de nieuwe functie van de kerk.”
Zonder hoofdaannemer
De verbouwing is in twee jaar zonder hoofdaannemer uitgevoerd. Elke leverancier en onderaannemer werkte rechtstreeks voor de opdrachtgever. Hierdoor kon het bouwteam in een laat stadium nog invloed uitoefen op bepaalde keuzes.
“Omdat de herbestemming een complexe opgave was, was een goede communicatie tussen de diverse partijen essentieel. Dankzij de korte communicatielijnen waren we instaat de beoogde kwaliteit te realiseren”, aldus Cor Engberink van Key2 Bouwmanagement (dat verantwoordelijk was voor het projectmanagement).
Trefwoorden
reitsema & partners architecten
key2 bouwmanagement
transformatie
theo reitsema
gezondheidscentrum
kerk
borne
erik mijnhardt
Best gelezen
1
Genomineerden BNA Beste Gebouw van het Jaar 2026 bekend
dinsdag, 28 april
2
Architectenweb symposium: samenwerken op kantoor
dinsdag, 28 april
3
Bouwvergunning voor torens MVRDV op Tour & Taxis-terrein Brussel
donderdag, 30 april
4
Groosman heeft 'eigen' Coolse Poort in centrum Rotterdam gerenoveerd
woensdag, 29 april
5
MVRDV en Diamond Schmitt ontwerpen tweede gebouw voor universiteit Toronto
dinsdag, 28 april
Gerelateerde nieuwsberichten
Rijssen-Holten heeft bijzonder energiezuinig nieuw zwembadcomplex
6 juni 2023
Heutink neemt nieuw hoofdkantoor met distributiecentrum in gebruik
6 december 2022
Opfrisbeurt voor onderkomen investeringsmaatschappij Reggeborgh
21 oktober 2022
FC Twente wil trainingscomplex op plek oude stadion
22 september 2022
Reitsema & Partners ontwerpt nieuwbouw Heutink in Nijverdal
19 januari 2021
Kerk Gronings dorp verbouwd tot 'schoolkerk'
22 april 2020
Compact en transparant medisch centrum voor Ronse
26 maart 2020
Lichte en moderne werkomgeving voor VolkerWessels-kantoor Rijssen
13 maart 2020
Kerkgebouw voor twee genootschappen in Leidsche Rijn
16 oktober 2019
Architect realiseert eigen droomhuis in Twente
1 oktober 2019
Meer groen en afleesbare historie in centrum Rijssen
2 augustus 2019
Een op vijf kerken is geen kerk meer
25 juni 2019
Zwembad met optimaal zicht op bosrijke omgeving
2 mei 2019
Video: Twentse schuurwoning in BinnensteBuiten
26 april 2019
Villa met ver uitkragende verdieping
23 januari 2019
Lange volumes op landgoed als knipoog naar Twentse schuren
15 oktober 2018
Gezondheidscentrum in voormalige kerk Borne
8 maart 2017
Tijdelijk gezondheidscentrum is helder baken
15 februari 2017
Nieuwe typologie voor gezondheidscentrum
17 maart 2016
Gezondheidscentrum voegt zich in historische context
11 augustus 2014
Versseput realiseert wijkgezondheidscentrum
22 mei 2013
Plasterk opent gezondheidscentrum Deventer
1 oktober 2009
Rijssen-Holten heeft bijzonder energiezuinig nieuw zwembadcomplex
6 juni 2023
Heutink neemt nieuw hoofdkantoor met distributiecentrum in gebruik
6 december 2022
Opfrisbeurt voor onderkomen investeringsmaatschappij Reggeborgh
21 oktober 2022
FC Twente wil trainingscomplex op plek oude stadion
22 september 2022
Reitsema & Partners ontwerpt nieuwbouw Heutink in Nijverdal
19 januari 2021
Kerk Gronings dorp verbouwd tot 'schoolkerk'
22 april 2020
Compact en transparant medisch centrum voor Ronse
26 maart 2020
Lichte en moderne werkomgeving voor VolkerWessels-kantoor Rijssen
13 maart 2020
Kerkgebouw voor twee genootschappen in Leidsche Rijn
16 oktober 2019
Architect realiseert eigen droomhuis in Twente
1 oktober 2019
Meer groen en afleesbare historie in centrum Rijssen
2 augustus 2019
Een op vijf kerken is geen kerk meer
25 juni 2019
Zwembad met optimaal zicht op bosrijke omgeving
2 mei 2019
Video: Twentse schuurwoning in BinnensteBuiten
26 april 2019
Villa met ver uitkragende verdieping
23 januari 2019
Lange volumes op landgoed als knipoog naar Twentse schuren
15 oktober 2018
Gezondheidscentrum in voormalige kerk Borne
8 maart 2017
Tijdelijk gezondheidscentrum is helder baken
15 februari 2017
Nieuwe typologie voor gezondheidscentrum
17 maart 2016
Gezondheidscentrum voegt zich in historische context
11 augustus 2014
Versseput realiseert wijkgezondheidscentrum
22 mei 2013
Plasterk opent gezondheidscentrum Deventer
1 oktober 2009
Toon alles
Andere nieuwsberichten
'Stuttende' en contrasterende installatie voor Besiendershuis Nijmegen
1 mei, 3:52
Bij het Besiendershuis in Nijmegen is afgelopen maand een door Frank Havermans ontworpen kunstinstallatie geopend. Het bouwwerk is gerealiseerd ter viering van het vijfhonderdjarig jubileum van het bijzondere huis in het centrum van de Keizerstad.
Specht architectuur en stedenbouw toont met meergeneratiehofje alledaagse woongemeenschappelijkheid
1 mei, 2:25
Het meergeneratiehofje met sociale huurwoningen in Stedum is een bijdrage aan de zoektocht naar alledaagse gemeenschappelijkheid in het wonen in Nederland.
Mobiliteitshub van gerecycled tropisch hardhout voor Tholen
1 mei, 11:41
In het Zeeuwse Tholen is een mobiliteitshub naar ontwerp van RO&AD Architecten opgeleverd. Het gebouw, dat is geheel is gemaakt van gerecycled tropisch hardhout, fungeert als knooppunt voor bussen en fietsers.
Kleurrijke textielinstallatie van Simone Post voor entreegebied Centraal Museum
1 mei, 9:05
Voor Patchwork Post heeft ontwerper Simone Post objecten en kunstwerken uit de museumcollectie vertaald naar diverse werken in textiel.
Verzet natuurorganisaties tegen stroomkabel via Schiermonnikoog
1 mei, 4:39
Negen natuurorganisaties maken zich grote zorgen over het plan om stroom van een nieuw windpark op de Noordzee via Schiermonnikoog aan land te brengen.
ING: huizenprijzen stijgen dit jaar niet verder door hoger aanbod
1 mei, 1:03
Na jaren van groei is het voor het eerst in lange tijd dat een bank verwacht dat de huizenmarkt niet verder groeit.
TenneT mag datacenteraansluiting uitstellen om vol stroomnet
1 mei, 10:11
Een projectontwikkelaar van een datacenter bij Schiphol klaagde hierover en spande een kort geding aan.
Brabant investeert 1,4 miljoen in waterfilter in Vlaanderen
30 april, 3:51
Het fosfaatfilter moet vervuild grondwater op een natuurlijke manier zuiveren voordat het naar het Nederlandse natuurgebied de Groote Meer bij Ossendrecht stroomt.
Rli: klimaat, vervuiling en groei bedreigen beschikbaarheid drinkwater
30 april, 12:20
De beschikbaarheid van drinkwater staat ernstig onder druk, waarschuwt de Raad voor de leefomgeving en infrastructuur.
ABN AMRO: huurwetaanpassingen stoppen uittocht beleggers niet
30 april, 9:04
Volgens de onderzoekers onderschat woonminister Boekholt de negatieve effecten van het huidige fiscale beleid.
Ga naar het nieuws-archief
Ronnie Weessies
Redacteur
0
0
0
0
Voor een optimale gebruikservaring plaatst Architectenweb functionele cookies. Wat de verschillende cookies precies doen leggen we uit in een
overzicht
. Cookies van social media kun je optioneel
aanzetten
.
Akkoord
Instellingen
Annuleren
OK
Sluiten
Doorgaan
Inloggen
Maak een gratis persoonlijk account aan
Feedback
Feedback
Wij horen graag jouw feedback. Laat je reactie achter en eventueel jouw e-mail adres.
Reactie
Verstuur