Projecten
Producten
Bedrijven
Vacatures
Agenda
Awards
Podcasts
more_horiz
Videos
Magazine
Thema's
Favorieten
Profiel
Uitloggen
Abonneer je nu op onze nieuwsbrieven!
Abonneren
Nee, bedankt
Ja, denk met me mee rond de
materialisering van mijn project
Copyright: Ronald Tilleman
Copyright: Ronald Tilleman
Copyright: Ronald Tilleman
Copyright: Ronald Tilleman
Copyright: Ronald Tilleman
Copyright: Ronald Tilleman
Copyright: Ronald Tilleman
Copyright: Ronald Tilleman
Copyright: Ronald Tilleman
Copyright: Ronald Tilleman
Copyright: Ronald Tilleman
Copyright: Reitsema & partners architects
Copyright: Reitsema & partners architects
Copyright: Reitsema & partners architects
Copyright: Reitsema & partners architects
Copyright: Reitsema & partners architects
Architect verbouwt villa tot eigen woning
1 september 2017, 13:53
Architect Theo Reitsema (
Reitsema & partners architecten
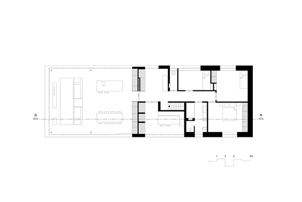
) heeft met zijn echtgenote (interieurontwerper Stephanie Weitering) en kinderen een verbouwdde villa in Rijssen betrokken. De uit 1967 stammende villa in de bossen is door hem getransformeerd en uitgebreid tot een hedendaagse en energiezuinige woning. Het volume is geleed in een open en gesloten deel, die worden gescheiden door de voordeur.
Tijdens de metamorfose is gebruik gemaakt van het feit dat ‘Villa RR’ op een heuvel staat. De oostkant van de woning bestaat uit twee verdiepingen, waarbij de onderste (waarin een garage en een dubbele werkkamer zijn ondergebracht) dankzij het donkere stucwerk lijkt te fungeren als een sokkel. Met zijn houten bekleding onderscheidt de bovenste verdieping zich van de onderste.
De villa was oorspronkelijk al op de graad nauwkeurig op de oost-westas geplaatst. Het voordeel is dat het woongedeelte hierdoor zicht biedt op zowel de noord- als zuidkant van de tuin, wat door Reitsema is benut door dit deel van de woning te openen door middel van glas. De ranke kolommen die het dak dragen, versterken dankzij hun spiegelende werking de ervaring van de omgeving.
De oorspronkelijke plattegrond is in ere gehouden. Ook nu wordt er aan de oostkant geslapen. Tussen het woonvertrek en de slaapkamers bevindt zich een tuinkamer, die in tegenstelling tot de woonkamer een donker en besloten karakter heeft. Doordat de houten bekleding van de gevel is doorgezet in de tuinkamer, verandert deze ruimte in een veranda als de harmonicapui wordt opengezet.
Omwille van de duurzaamheid zijn verschillende maatregelen getroffen, zoals het toepassen van warmteterugwinning, hoogwaardige isolatie en energiezuinige inbouwapparatuur. Dankzij het dichte bladerdek rond het huis is (behalve het overstek) extra zonwering of koeling overbodig. De trap op de heuvel die naar de entree leidt, vormt een speels accent in het geheel.
Trefwoorden
villa
theo reitsema
rijssen
verbouwing
Best gelezen
1
MVSA Architects en Powerhouse Company ontwerpen dubbele woontoren bij Den Haag Centraal
maandag, 30 maart
2
Architectenweb symposium: ontwerpen van autovrije buurten
woensdag, 25 maart
3
Schiphol maakt nieuwe 'huisarchitecten' bekend
donderdag, 26 maart
4
Amsterdam wil hiphopcentrum realiseren in stadsdeel Zuidoost
vrijdag, 27 maart
5
Studioninedots ontwerpt zelfbouwwoning als landschap van gestapelde doosjes
woensdag, 25 maart
Gerelateerde nieuwsberichten
Nieuw onderzoeks- en ontwikkelcentrum voor Voortman Steel Machinery
6 november 2023
Opfrisbeurt voor onderkomen investeringsmaatschappij Reggeborgh
21 oktober 2022
FC Twente wil trainingscomplex op plek oude stadion
22 september 2022
Reitsema & Partners ontwerpt nieuwbouw Heutink in Nijverdal
19 januari 2021
Lichte en moderne werkomgeving voor VolkerWessels-kantoor Rijssen
13 maart 2020
Architect realiseert eigen droomhuis in Twente
1 oktober 2019
Meer groen en afleesbare historie in centrum Rijssen
2 augustus 2019
Zwembad met optimaal zicht op bosrijke omgeving
2 mei 2019
Video: Twentse schuurwoning in BinnensteBuiten
26 april 2019
Villa met ver uitkragende verdieping
23 januari 2019
Lange volumes op landgoed als knipoog naar Twentse schuren
15 oktober 2018
Villa uit geometrische volumes in natuurlijk landschap
18 juli 2018
Open en 'warme' villa in duinlandschap
25 september 2017
Nederlander bij Europe 40 under 40
27 oktober 2014
Boerderij met glazen hoofdslaapkamer
21 maart 2012
‘Sensueel’ paviljoen in Enschede
24 september 2010
Nieuw onderzoeks- en ontwikkelcentrum voor Voortman Steel Machinery
6 november 2023
Opfrisbeurt voor onderkomen investeringsmaatschappij Reggeborgh
21 oktober 2022
FC Twente wil trainingscomplex op plek oude stadion
22 september 2022
Reitsema & Partners ontwerpt nieuwbouw Heutink in Nijverdal
19 januari 2021
Lichte en moderne werkomgeving voor VolkerWessels-kantoor Rijssen
13 maart 2020
Architect realiseert eigen droomhuis in Twente
1 oktober 2019
Meer groen en afleesbare historie in centrum Rijssen
2 augustus 2019
Zwembad met optimaal zicht op bosrijke omgeving
2 mei 2019
Video: Twentse schuurwoning in BinnensteBuiten
26 april 2019
Villa met ver uitkragende verdieping
23 januari 2019
Lange volumes op landgoed als knipoog naar Twentse schuren
15 oktober 2018
Villa uit geometrische volumes in natuurlijk landschap
18 juli 2018
Open en 'warme' villa in duinlandschap
25 september 2017
Nederlander bij Europe 40 under 40
27 oktober 2014
Boerderij met glazen hoofdslaapkamer
21 maart 2012
‘Sensueel’ paviljoen in Enschede
24 september 2010
Toon alles
Andere nieuwsberichten
'Materialenwerf' in M4H vormt festivalhart Rotterdam Architectuur Maand
Vandaag, 14:05
Op 3 juni opent het flexibel opgezette bouwwerk in M4H, waar gebruikte bouwmaterialen worden verzameld, bewerkt en opnieuw ingezet. Gedurende de hele maand juni wordt er getest hoe een circulaire stad eruit kan zien, meldt AIR Rotterdam.
Concrete vertaalt ideeën van culinaire chefs naar interieur
Vandaag, 12:15
In de Amsterdamse Noorderstraat heeft Concrete het interieur van het nieuwe restaurant Amice ontworpen.
Gebouw wooncoöperatie krijgt gevel van hergebruikte ventilatiekanalen
Gisteren, 16:04
Naar verwachting wordt begin volgend jaar gestart met de bouw van een woongebouw voor wooncoöperatie De Bonte Hulst in Amsterdam-Noord. Het gebouw in Buiksloterham is ontworpen door bureau SLA.
Jan Knikker vertrekt bij MVRDV
Gisteren, 14:46
Knikker, die sinds 2016 partner was bij MVRDV, heeft een belangrijke rol gespeeld bij de professionalisering van de pr- en acquisitieactiviteiten van MVRDV en de mede daaruit volgende groei van het bureau.
Michael Braungart luistert vijftienjarig jubileum Cradle to Cradle Café op
Vandaag, 11:27
Op dinsdag 14 april organiseert het Cradle to Cradle Café een speciaal jubileumfestival in Utrecht ter gelegenheid van zijn vijftienjarig bestaan.
PBL: politieke keuzes nodig voor aanpassing klimaatverandering
Vandaag, 10:23
Een verstandige keuze is alvast om alles klimaatadaptief aan te pakken, aldus het Planbureau voor de Leefomgeving.
OM vervolgt oud-werknemers Strukton na Saudische omkopingskwestie
Gisteren, 16:52
Eerder werd al bekend dat het bouwbedrijf voor tien miljoen euro heeft geschikt in de corruptiezaak.
Duitsland trekt acht miljard uit voor extra klimaatmaatregelen
Gisteren, 10:59
Het geld is onder andere bedoeld voor de bouw van extra windmolens en subsidies voor de aanschaf van elektrische auto's.
‘Transformatie en optoppen levert tienduizenden woningen en klimaatwinst op’
27 maart, 11:53
Woningbouw vergt veel grondstoffen, maar de Wetenschappelijke Klimaatraad ziet veel mogelijkheden om het anders aan te pakken.
Zeeuwse Staten willen inspraak inwoners op groeiplan provincie
27 maart, 9:30
Meerdere Statenfracties in de provincie Zeeland hebben opgeroepen de inwoners op een goede wijze te betrekken bij het uitwerken van de strategische agenda 2050.
Ga naar het nieuws-archief
Ronnie Weessies
Redacteur
5
0
0
0
Voor een optimale gebruikservaring plaatst Architectenweb functionele cookies. Wat de verschillende cookies precies doen leggen we uit in een
overzicht
. Cookies van social media kun je optioneel
aanzetten
.
Akkoord
Instellingen
Annuleren
OK
Sluiten
Doorgaan
Inloggen
Maak een gratis persoonlijk account aan
Feedback
Feedback
Wij horen graag jouw feedback. Laat je reactie achter en eventueel jouw e-mail adres.
Reactie
Verstuur