Projecten
Producten
Bedrijven
Vacatures
Agenda
Awards
Podcasts
more_horiz
Videos
Magazine
Thema's
Favorieten
Profiel
Uitloggen
Abonneer je nu op onze nieuwsbrieven!
Abonneren
Nee, bedankt
Ja, denk met me mee rond de
materialisering van mijn project
Copyright: KAW
Copyright: KAW
Copyright: KAW
Copyright: KAW
Copyright: KAW
Copyright: KAW
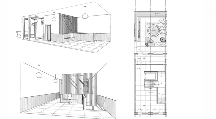
KAW realiseert appartementen in Berlijn
1 oktober 2014, 15:32
In de Berlijnse wijk Prenzlauer Berg gaat
KAW
een appartementencomplex op een lege kavel in een stadsblok realiseren. Het is het eerste van een aantal projecten die het architectenbureau in de wijk uitvoert.
De komende jaren werkt KAW samen met het Duitse Ipro-consult aan ontwerp en uitvoering van een aantal appartementencomplexen in het hart van Prenzlauer Berg. De opdracht volgt op het winnen van de Europese aanbesteding voor een raamcontract voor nieuwbouw.
Hoge dichtheid
Het eerste project betreft appartementen aan de Chodowieckistraße. De nieuwbouw dient te worden gerealiseerd op een zeer krappe kavel in een van de typisch Berlijnse stadsblokken. KAW moet een hoge dichtheid en hoge woonkwaliteit realiseren en tegelijkertijd de woningen in een bereikbaar prijssegment houden.
Het complex krijgt zeven lagen, met op de begane grond twee eenheden voor commerciële invulling - in aansluiting op de bestaande structuur van winkels, cafés en kantoren in de levendige wijk; de verdiepingen krijgen een gevarieerd aanbod aan appartementen.
Een raster van smalle beukmaten maakt de realisatie van zowel smalle, diepe woningen als brede, ondiepe woningen mogelijk. Hierdoor kan ook per laag het aantal woningen en kamers per woning variëren.
Nederlandse systematiek
Door de Nederlandse woningbouwsystematiek mee te nemen, zo stelt KAW, kan de gevel worden uitgevoerd met grote puien voor lichte woningen. Bronskleurige aluminium puien worden gevat in witgele gemetselde penanten en crèmekleurige betonnen banden. De kleurstelling sluit aan bij de bestaande bebouwing.
Door bouwtechniek vroeg in het ontwerp te integreren zegt KAW de budgettaire ruimte te hebben voor hoogwaardig materiaalgebruik. Het resultaat wordt volgens het bureau een solide gebouw dat zich goed in het grote geheel gaat voegen.
Trefwoorden
woningbouw
berlijn
appartementencomplex
kaw architecten
kaw
duitsland
Best gelezen
1
Luxe appartementengebouw naast klooster Etten-Leur door Studio AAAN klaar
donderdag, 19 maart
2
Houten Stelthuis van Woonpioniers is aardbevings- en klimaatbestendig
woensdag, 18 maart
3
BureauVanEig verbetert uitstraling Haagse rijtjeswoningen bij verduurzaming
dinsdag, 17 maart
4
De nieuwe kleren van de keizer
dinsdag, 17 maart
5
Landschappelijk ontworpen buurt in Vinex-wijk Schuytgraaf voltooid
woensdag, 18 maart
Gerelateerde nieuwsberichten
Casanova+Hernandez wint Berlijns project
23 oktober 2014
KAW: drie vestigingen, één communicatiesysteem
23 februari 2016
KAW transformeert Spoorzone Oldenburg
14 oktober 2014
En route: architect Reimar von Meding (KAW) reist zakelijk met de trein
19 juli 2017
Uitnodigend sportpaviljoen als ontmoetingsplek
13 oktober 2015
Brede school KAW inspireert tot bouwconcept
18 april 2014
KAW: “Vanaf nu gaat het in grote stappen”
1 juli 2013
Veilige Veste wint Hedy d’Anconaprijs 2014
5 juni 2014
KAW: ‘Alle woningen zorgbestendig’
11 november 2013
Multifunctioneel gebouw voor Joseph Haydnschool
2 mei 2014
Eerste stap masterplan Bergwijkpark van KAW
9 oktober 2013
Casanova+Hernandez wint Berlijns project
23 oktober 2014
KAW: drie vestigingen, één communicatiesysteem
23 februari 2016
KAW transformeert Spoorzone Oldenburg
14 oktober 2014
En route: architect Reimar von Meding (KAW) reist zakelijk met de trein
19 juli 2017
Uitnodigend sportpaviljoen als ontmoetingsplek
13 oktober 2015
Brede school KAW inspireert tot bouwconcept
18 april 2014
KAW: “Vanaf nu gaat het in grote stappen”
1 juli 2013
Veilige Veste wint Hedy d’Anconaprijs 2014
5 juni 2014
KAW: ‘Alle woningen zorgbestendig’
11 november 2013
Multifunctioneel gebouw voor Joseph Haydnschool
2 mei 2014
Eerste stap masterplan Bergwijkpark van KAW
9 oktober 2013
Toon alles
Andere nieuwsberichten
PSV presenteert plannen voor uitbreiding Philips Stadion
20 maart, 3:37
De Eindhovense club wil de capaciteit van zijn onderkomen opschroeven met maximaal 25.000 bezoekers. Om dit te bewerkstelligen, komt er een nieuwe schil rond het stadion waarin een derde ring is opgenomen.
Rijkswaterstaat staakt renovatie markante houten Krùsrak-brug in Sneek
20 maart, 11:32
Tijdens de renovatie werd duidelijk dat de constructieve veiligheid van de brug niet langer kan worden verzekerd, laat RWS weten. De uit 2008 stammende Krúsrak-brug over de rijksweg 7 is ontworpen door Onix en Archterbosch Architecten.
KAAN Architecten en De Zwarte Hond winnen tender voor Area 19 TU Eindhoven
20 maart, 10:35
De opdracht omvat het ontwerp van een nieuw onderzoeks- en onderwijsgebouw en de stedenbouwkundige ontwikkeling van een nieuw campusgebied.
Projecten gezocht voor vijfde Adriaan Dessingprijs
19 maart, 2:42
De tweejaarlijkse architectuurprijs vestigt de aandacht op bijzondere, gerealiseerde plannen in de Zuid-Hollandse gemeenten Westland en Midden-Delfland. Het kan gaan om nieuwbouw, restauratie of landschappelijke projecten.
Friesland brengt duizenden karakteristieke boerderijen in kaart
20 maart, 2:16
Door alle informatie over de voor het landschap kenmerkende gebouwen op één plek te brengen, moet het makkelijker worden om ze te behouden.
ING: bijna de helft van de huiseigenaren stelt verduurzaming uit
20 maart, 12:18
De meeste mensen vinden dat de overheid te weinig doet om dit te stimuleren.
Rekenkamer kraakt resultaten EU-innovatiefonds voor verduurzaming
20 maart, 9:25
Het Innovatiefonds van de Europese Unie levert veel minder resultaat op dan verwacht op het gebied van verduurzaming en innovatie.
Provincie schrapt beoogde locaties windturbines in Groene Hart
19 maart, 1:35
De provincie had twaalf plekken op het oog, maar dat leidde tot maatschappelijk en politiek verzet.
Staten Utrecht willen netcongestie versneld aanpakken
19 maart, 9:44
De fracties wezen op de noodzaak van het zo snel mogelijk realiseren van een hoogspanningsstation dat essentieel is voor het opsplitsen van het elektriciteitsnetwerk tussen de Flevopolder, Gelderland en Utrecht.
Rotterdam wil woningbouw versnellen met pilot ‘Ontwikkelaar aan Zet’
18 maart, 4:33
De gemeente Rotterdam start een pilot waarbij projectontwikkelaars een grotere rol krijgen bij de voorbereiding van woningbouwprojecten.
Ga naar het nieuws-archief
0
0
0
0
Voor een optimale gebruikservaring plaatst Architectenweb functionele cookies. Wat de verschillende cookies precies doen leggen we uit in een
overzicht
. Cookies van social media kun je optioneel
aanzetten
.
Akkoord
Instellingen
Annuleren
OK
Sluiten
Doorgaan
Inloggen
Maak een gratis persoonlijk account aan
Feedback
Feedback
Wij horen graag jouw feedback. Laat je reactie achter en eventueel jouw e-mail adres.
Reactie
Verstuur