Projecten
Producten
Bedrijven
Vacatures
Agenda
Awards
Podcasts
more_horiz
Videos
Magazine
Thema's
Favorieten
Profiel
Uitloggen
Abonneer je nu op onze nieuwsbrieven!
Abonneren
Nee, bedankt
Ja, denk met me mee rond de
materialisering van mijn project
Producten
Copyright: Sebastian van Damme
Copyright: Sebastian van Damme
Copyright: Sebastian van Damme
Copyright: Sebastian van Damme
Copyright: Sebastian van Damme
Copyright: Sebastian van Damme
Copyright: Sebastian van Damme
Copyright: Sebastian van Damme
Copyright: Sebastian van Damme
Copyright: Sebastian van Damme
Copyright: Studioninedots
Copyright: Studioninedots
Copyright: Studioninedots
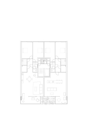
Begane grond
Copyright: Studioninedots
Tweede verdieping
Copyright: Studioninedots
Vijfde verdieping
Copyright: Studioninedots
Copyright: Studioninedots
Copyright: Studioninedots
Producttags
AAN
UIT
YCON
30 augustus 2023
2
0
0
0
YCON is een kleinschalig woongebouw in ons circulaire stedenbouwkundig plan Cityplot Buiksloterham in Amsterdam. Met een gevel die bestaat uit buitenkamers afgewisseld met gestapelde tuinen, is YCON van buiten naar binnen ontworpen. Dit verticale landschap vormt een nieuwe, groene eyecatcher vanaf de straat en het water en creëert een leefomgeving om toekomstbestendig te wonen in de stad.
De verschillende groene ruimtes verleiden de bewoners om hun focus van binnen naar buiten te verschuiven, met als doel een sterke binding met de flora en fauna van de stad, en met de andere bewoners op te wekken. Daarom hebben we de buitenkamers van YCON zo ontworpen dat ze functioneren als volwaardige leefruimtes, onafhankelijk van het veranderende ritme van de dag en de seizoenen. Verdiepinghoge, glazen vouwwanden kunnen de kamers volledig sluiten of openen, waardoor de woonruimte op elk moment kan worden uitgebreid.
Elke buitenkamer grenst aan een weelderige gezamenlijke tuin, die op elke verdieping van positie verandert. De tuinen dragen bij aan verkoeling en luchtzuivering en trekken insecten en vlinders aan. Het groen en de focus op comfort maken van de buitenkamers de favoriete plek in huis.
De constructie van het gebouw is gemaakt met geprefabriceerde, demontabele betonelementen, zodat deze eventueel kan worden gedemonteerd en hergebruikt in de toekomst. Om de geveltuinen te ondersteunen, integreert de constructie een dikke, verdiepte laag grond om verschillende soorten inheemse planten, struiken, bloemen en groenten te kunnen kweken. Via het dak wordt regenwater opgevangen, opgeslagen en hergebruikt voor de irrigatie van tuinen, wat de druk van overtollig regenwater op het rioleringssysteem vermindert.
Het vijf verdiepingen hoge gebouw biedt ruimte aan twaalf appartementen en een gemeenschappelijke groene binnenplaats met fietsenstalling op de begane grond. Door de ligging aan het water en de zonnige oriëntatie zal de groene uitstraling van YCON nog jaren lang weelderiger worden. De dynamische gevel en de materialen die aansluiten bij de industriële context van het gebied maken YCON tot een architectonisch icoon in Amsterdam Buiksloterham.
Stel jezelf kort voor! Dan weet het betreffende bedrijf wie hun model gedownload heeft.
Wil je niet bij elke download jouw gegevens in hoeven voeren?
Klik dan hier om in te loggen
.
Heb je nog geen account?
Maak dan hier een gratis account aan
.
Voornaam
Achternaam
E-mailadres
Downloaden
Wanneer je modellen downloadt op Architectenweb.nl worden relevante gegevens van jou – zoals jouw naam en e-mailadres – met het betreffende bedrijf gedeeld. Meer hierover lees je in ons
privacybeleid
.
Locatie
Trefwoorden
cityplot
amsterdam
buitenkamers
ycon
buitenruimtes
buiksloterham
groen
studioninedots
Studioninedots
Neem contact op
Projectdata
Staat van realisatie
Voltooid
Start ontwerpproces
2017
Start bouw
2021
Oplevering
2023
Ingebruikname
2023
Plaats
Amsterdam
Meewerkende partijen
Architect
Studioninedots
Opdrachtgever
OntwerpJeWoning, vink bouw
Aannemer
vink bouw
Fotograaf
Sebastian van Damme
Stedenbouwkundige
Studioninedots
, Delva Landscape Architecture & Urbanism
Landschapsarchitect
Dakdokters Studio
Leveranciers
Overig
Rollecate
Neem contact op met
Studioninedots
Je bent momenteel niet ingelogd. Hierdoor is het alleen mogelijk om meer informatie per e-mail op te vragen. Wil je liever gebeld worden of documentatie per post ontvangen?
Klik dan hier om in te loggen
.
Heb je nog geen account?
Maak dan hier een gratis account aan
.
Voornaam
Achternaam
E-mailadres
Opmerkingen
Bij iedere aanvraag worden relevante gegevens van jou gedeeld met het betreffende bedrijf. Meer hierover lees je in ons
privacybeleid
.
Ja, denk met me mee rond de
materialisering van mijn project
Meer projecten van Studioninedots
Octavia Hill
Studioninedots
Niemeyer
Studioninedots
Spark
Studioninedots
Cityplot Buiksloterham
Studioninedots
C14
Studioninedots
Oostenburg
Studioninedots
Facette Bordeaux
Studioninedots
Suite 9
Studioninedots
Highnote
Studioninedots
360 Degrees
Studioninedots
Karper K.
Studioninedots
De Jakoba
Studioninedots
DC Van Hall
Studioninedots
Wet Beast
Studioninedots
Bovenbouwwerkplaats
Studioninedots
Antoni
Studioninedots
Lieven de Key HQ
Studioninedots
Westbeat
Studioninedots
Villa Fifty-Fifty
Studioninedots
Woonhuis PH
Studioninedots
Octavia Hill
Studioninedots
Niemeyer
Studioninedots
Spark
Studioninedots
Cityplot Buiksloterham
Studioninedots
C14
Studioninedots
Oostenburg
Studioninedots
Facette Bordeaux
Studioninedots
Suite 9
Studioninedots
Highnote
Studioninedots
360 Degrees
Studioninedots
Karper K.
Studioninedots
De Jakoba
Studioninedots
DC Van Hall
Studioninedots
Wet Beast
Studioninedots
Bovenbouwwerkplaats
Studioninedots
Antoni
Studioninedots
Lieven de Key HQ
Studioninedots
Westbeat
Studioninedots
Villa Fifty-Fifty
Studioninedots
Woonhuis PH
Studioninedots
Toon alles
Andere Projecten
Woningen Viladomat in Barcelona, Spanje
ULMA Architectural Solutions
Verbouwing Veluwse Boerderij
AL architecten BNA-BNI
Vergroening Europakade Tolkamer
ACO BV
Frigo-Trans GmbH Mezzaninevloer voor logistiek
Nolte Mezzanine
Antwerpen Kievit
HOSPER landschapsarchitectuur
Luxe wonen in Hamptons stijl
Holonite B.V.
ABB-technologie verlicht de Burj Khalifa
ABB | Busch-Jaeger
Hybride buitenruimte Catharinatoren Zaandam
Solarlux Nederland B.V.
Vijf keer Gorter op Jullensblok
Gorter Luiken BV
TU Delft Stadsklimaatbos
HOSPER landschapsarchitectuur
Hilversum Nieuw Zuid
HOSPER landschapsarchitectuur
Full service voor logistiek bedrijfspand
Buro De Haan
Ga naar het projecten-overzicht
Voor een optimale gebruikservaring plaatst Architectenweb functionele cookies. Wat de verschillende cookies precies doen leggen we uit in een
overzicht
. Cookies van social media kun je optioneel
aanzetten
.
Akkoord
Instellingen
Annuleren
OK
Sluiten
Doorgaan
Inloggen
Maak een gratis persoonlijk account aan
Feedback
Feedback
Wij horen graag jouw feedback. Laat je reactie achter en eventueel jouw e-mail adres.
Reactie
Verstuur