Projecten
Producten
Bedrijven
Vacatures
Agenda
Awards
Podcasts
more_horiz
Videos
Magazine
Thema's
Favorieten
Profiel
Uitloggen
Abonneer je nu op onze nieuwsbrieven!
Abonneren
Nee, bedankt
Ja, denk met me mee rond de
materialisering van mijn project
Producten
Copyright: Maarten Willemstein
Copyright: Maarten Willemstein
Copyright: Maarten Willemstein
Copyright: Maarten Willemstein
Copyright: Maarten Willemstein
Copyright: Maarten Willemstein
Copyright: Maarten Willemstein
Copyright: Maarten Willemstein
Copyright: Maarten Willemstein
Copyright: Maarten Willemstein
Copyright: Maarten Willemstein
Producttags
AAN
UIT
Wet Beast
7 december 2022
1
0
0
0
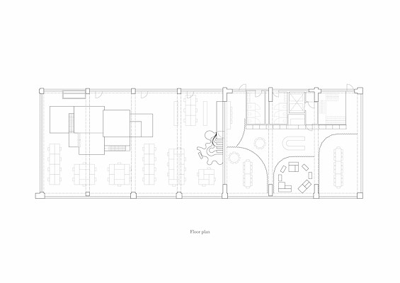
Op de begane grond van Westbeat — Studioninedots’ mixed-use gebouw in Amsterdam-West — is een nieuw kantoorlandschap gerealiseerd. Met ‘Wet Beast’ zet Studioninedots een werkconcept neer, waarin drie verwondere objecten ruimte geven voor experiment, interactie en spontaniteit binnen de sociale omgeving van een werkplek.
Sinds de oplevering in 2021 kenmerkt Westbeat zich door de betonnen boogconstructies in de plint. Tussen de bogen ontstaan spannende ruimtes die door een verscheidenheid aan gebruikers en voor allerlei doeleindes kunnen worden ingezet. In opdracht van Gerimedica heeft Studioninedots een kantoorconcept bedacht met drie ruimtelijke elementen die mensen verbinden en nieuwe impulsen geven. Wet Beast is een omgeving die creativiteit en gemeenschapszin stimuleert.
Als ogenschijnlijk vreemde objecten in een goed georganiseerd werklandschap van tafels en stoelen zijn er drie ‘meubelstukken’ toegevoegd, die een eigen interpretatie uitlokken. Wet Beast faciliteert onderdak, zitgelegenheid, ontmoetingsruimte, plek voor lezingen, evenementen, spel, ontspanning, contemplatie en meer. De vormgeving van deze meubels staat volledig los van de architectuur en de vrije interpretatie in functie uit zich in het diverse palet van kleuren, vormen en materialen in het geheel. De meubelstukken zijn zo gemaakt dat ze tijdelijk of permanent kunnen zijn in hun gebruik en blijvend in vormgebruik en functie kunnen veranderen.
The Beast is een Escher-achtige speelwereld waarin naast vergaderen van alles kan gebeuren. Trappen, afwisselende vaste elementen en doorgangen verleiden tot een eigen invulling of gebruik. Grote glazen wanden zorgen voor de interactie tussen de beschutte kern en de ruimte rondom. Jungle is de verbindende trap tussen de twee niveaus. De treden fungeren bovendien als podium voor een presentatie of juist als plek om even te ontspannen. De trap ontleent zijn naam aan de organische vormen en de geïntegreerde beplanting. Town Hall is gemaakt met vriendelijke houten zitelementen en lichte gordijnen. De Town Hall is een intieme plek die half schuilgaat achter de gordijnen, of juist een voortzetting van de open ruimte.
Met Wet Beast voegt Studioninedots een ontwerp toe dat voor iedere aanschouwer iets anders kan zijn. We hebben een nieuwe werkplek gecreëerd die gebruikers inspireert, creativiteit prikkelt en uitdaagt tot een nieuwe manier van werken.
Stel jezelf kort voor! Dan weet het betreffende bedrijf wie hun model gedownload heeft.
Wil je niet bij elke download jouw gegevens in hoeven voeren?
Klik dan hier om in te loggen
.
Heb je nog geen account?
Maak dan hier een gratis account aan
.
Voornaam
Achternaam
E-mailadres
Downloaden
Wanneer je modellen downloadt op Architectenweb.nl worden relevante gegevens van jou – zoals jouw naam en e-mailadres – met het betreffende bedrijf gedeeld. Meer hierover lees je in ons
privacybeleid
.
Locatie
Trefwoorden
gerimedica
amsterdam west
the beast
creativiteit
paviljoens
westbeat
jungle
studioninedots
wet beast
Studioninedots
Neem contact op
Projectdata
Staat van realisatie
Voltooid
Start ontwerpproces
2020
Start bouw
2021
Oplevering
2022
Plaats
Amsterdam
Meewerkende partijen
Architect
Studioninedots
Interieurarchitect
Studioninedots
Opdrachtgever
Gerimedica
Interieurontwerper
DeManMetDeHamer
Projectmanagement
Bureau vandervorm
Adviseur licht
Clemens Lichtadvies
Leveranciers
Overig
Het Groenlab
Neem contact op met
Studioninedots
Je bent momenteel niet ingelogd. Hierdoor is het alleen mogelijk om meer informatie per e-mail op te vragen. Wil je liever gebeld worden of documentatie per post ontvangen?
Klik dan hier om in te loggen
.
Heb je nog geen account?
Maak dan hier een gratis account aan
.
Voornaam
Achternaam
E-mailadres
Opmerkingen
Bij iedere aanvraag worden relevante gegevens van jou gedeeld met het betreffende bedrijf. Meer hierover lees je in ons
privacybeleid
.
Ja, denk met me mee rond de
materialisering van mijn project
Meer projecten van Studioninedots
Octavia Hill
Studioninedots
Niemeyer
Studioninedots
Spark
Studioninedots
Cityplot Buiksloterham
Studioninedots
C14
Studioninedots
Oostenburg
Studioninedots
Facette Bordeaux
Studioninedots
Suite 9
Studioninedots
Highnote
Studioninedots
YCON
Studioninedots
360 Degrees
Studioninedots
Karper K.
Studioninedots
De Jakoba
Studioninedots
DC Van Hall
Studioninedots
Bovenbouwwerkplaats
Studioninedots
Antoni
Studioninedots
Lieven de Key HQ
Studioninedots
Westbeat
Studioninedots
Villa Fifty-Fifty
Studioninedots
Woonhuis PH
Studioninedots
Octavia Hill
Studioninedots
Niemeyer
Studioninedots
Spark
Studioninedots
Cityplot Buiksloterham
Studioninedots
C14
Studioninedots
Oostenburg
Studioninedots
Facette Bordeaux
Studioninedots
Suite 9
Studioninedots
Highnote
Studioninedots
YCON
Studioninedots
360 Degrees
Studioninedots
Karper K.
Studioninedots
De Jakoba
Studioninedots
DC Van Hall
Studioninedots
Bovenbouwwerkplaats
Studioninedots
Antoni
Studioninedots
Lieven de Key HQ
Studioninedots
Westbeat
Studioninedots
Villa Fifty-Fifty
Studioninedots
Woonhuis PH
Studioninedots
Toon alles
Andere Projecten
Woonhart Zoetermeer
Houthandel van Dam
Villa aan het water
Houthandel van Dam
Kooi stadion - SC Cambuur
Houthandel van Dam
Veilige daktoegang voor Aan de Molenwerf
Gorter Luiken BV
Veilige daktoegang voor nieuw gemeentehuis
Gorter Luiken BV
Ziekenhuiscomplex Rijeka in Susak, Kroatië
ULMA Architectural Solutions
Luxe Vingui Noir houten uitbouw
Houthandel van Dam
BMV Heerlerbaan - Heerlen
Houthandel van Dam
Watervilla's in de haven van Kortenhoef
Houthandel van Dam
Beatrixhof
Houthandel van Dam
Madonna Antwerpen - Akoestiek als smaakmaker
OWA Benelux - Akoestiek & Design
Renovatie zorginstelling dementie en alzheimer
Storax
Ga naar het projecten-overzicht
Voor een optimale gebruikservaring plaatst Architectenweb functionele cookies. Wat de verschillende cookies precies doen leggen we uit in een
overzicht
. Cookies van social media kun je optioneel
aanzetten
.
Akkoord
Instellingen
Annuleren
OK
Sluiten
Doorgaan
Inloggen
Maak een gratis persoonlijk account aan
Feedback
Feedback
Wij horen graag jouw feedback. Laat je reactie achter en eventueel jouw e-mail adres.
Reactie
Verstuur