Projecten
Producten
Bedrijven
Vacatures
Agenda
Awards
Podcasts
more_horiz
Videos
Magazine
Favorieten
Profiel
Uitloggen
Abonneer je nu op onze nieuwsbrieven!
Abonneren
Nee, bedankt
Ja, denk met me mee rond de
materialisering van mijn project
Producten
Copyright: Frans Parthesius
Copyright: Frans Parthesius
Copyright: Frans Parthesius
Copyright: Frans Parthesius
Copyright: Frans Parthesius
Copyright: Frans Parthesius
Copyright: Frans Parthesius
Copyright: Frans Parthesius
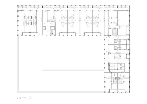
Plan 00
Copyright: Studioninedots
Plan 03
Copyright: Studioninedots
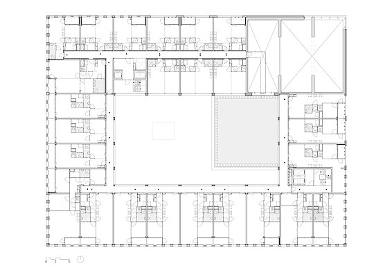
Plan 06
Copyright: Studioninedots
Plan 10
Copyright: Studioninedots
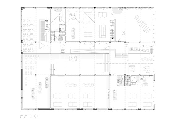
Section 1
Copyright: Studioninedots
Section 2
Copyright: Studioninedots
Producttags
AAN
UIT
Westbeat
30 juni 2021
0
0
0
0
Westbeat voegt een dynamische nieuwe schakel toe aan de openbare ruimte van Amsterdam Nieuw-West. Het mixed-use complex heeft als kern een openbare ‘Superspace’ die maar liefst 65 x 50 meter meet, 8,5 meter hoog is en met een constructie van 86 bogen sculpturaal is vormgegeven.
Een sculpturale verbinder
Deze Superspace vormt een netwerk van uitnodigende, gedeelde open ruimtes voor divers en collectief gebruik met werkplekken, horecagelegenheden, voorstellingen en concerten. Dit flexibel gebruik, ook in de toekomst, is mogelijk doordat met de constructie van bogen het vloeroppervlak vrij is gelaten. Het netwerk van bogen van verschillende afmetingen en verschillen in vloerhoogtes resulteert in diverse soorten open en intieme ruimtes. Bovendien overbruggen de bogen de constructie tussen de grote overspanningen in de parkeerkelder en de 150 woningen boven de superruimte. In de façade zijn de bogen zo groot dat de culturele activiteit binnen steeds wordt geëtaleerd, met de meest omvangrijke bogen op de hoeken als uitnodigend gebaar.
“Voor de sociale ambities van Westbeat móet de architectuur onweerstaanbaar zijn; zo'n enorme gewelfde openbare ruimte creëert de wow-factor die we ons hadden voorgesteld.”
- Albert Herder, Studioninedots
Sprong over de ring
Westbeat markeert de ‘Sprong over de Ring’ (naast de A10), overbrugt de hoogteverschillen in de omgeving met nieuwe looproutes door het gebouw en beperkt de effecten van geluid, drukte en fijnstof door dove gevels en groene, beplantte galerijen aan de buitenzijde, en zonnige balkons en leefgalerijen aan de binnentuin. Vanuit een maatschappelijk perspectief richt Westbeat zich op jonge wereldburgers met betaalbare huisvesting en ondersteunt het de ondernemende en creatieve geest van deze opkomende wijk. Het dient zo als verbinding tussen verschillende boeiende stadsgewesten.
Westbeat: WanderVoid XL
Op deze drukke locatie ziet Studioninedots Westbeat als katalysator voor ontmoeting, uitwisseling en verbinding. Het bureau onderzoekt het ontwerp van iconische openbare ruimtes zonder vast gebruik en lanceerde in dat kader het concept WanderVoids. Dit als reactie op het feit dat te veel plekken in de overvolle stad voorgeprogrammeerd zijn, té specifiek ingericht voor een beperkte doelgroep. In Westbeat creëert de Superspace ruimte voor experiment, spanning en verwondering. Deze ruimtes zijn voor Studioninedots een fascinatie én zij zien hier een maatschappelijk relevante opgave. Ze herkennen een hernieuwd verlangen naar fysieke plekken die een beroep doen op onze verbeeldingskracht en daarmee essentieel zijn voor de leefbaarheid in de stad.
Stel jezelf kort voor! Dan weet het betreffende bedrijf wie hun model gedownload heeft.
Wil je niet bij elke download jouw gegevens in hoeven voeren?
Klik dan hier om in te loggen
.
Heb je nog geen account?
Maak dan hier een gratis account aan
.
Voornaam
Achternaam
E-mailadres
Downloaden
Wanneer je modellen downloadt op Architectenweb.nl worden relevante gegevens van jou – zoals jouw naam en e-mailadres – met het betreffende bedrijf gedeeld. Meer hierover lees je in ons
privacybeleid
.
Locatie
Trefwoorden
mixed-use
amsterdam
westbeat
woningbouw
studioninedots
amsterdam nieuw-west
superspace
stadsdeel nieuw-west
culturele gebouwen
Studioninedots
Neem contact op
Projectdata
Staat van realisatie
Voltooid
Start ontwerpproces
2017
Start bouw
2018
Oplevering
2020
Ingebruikname
2020
Plaats
Amsterdam
Bruto m
2
24300
m
3
96250
Meewerkende partijen
Architect
Studioninedots
Projectarchitect
Albert Herder, Joost Maatkamp
Ontwerpteam
Vincent van der Klei, Arie van der Neut, Metin van Zijl, Wouter Hermanns, Rutger van der Meer, Laura Berasaluce, Lesia Topolnyk, Joost Körver
Opdrachtgever
Lingotto, Syntrus Achmea Real Estate & Finance
Aannemer
Heddes Bouw & Ontwikkeling
Constructeur
Royal HaskoningDHV
Adviseurs installaties E & W
Huygen Installatie adviseurs
Fotograaf
Frans Parthesius
Stedenbouwkundige
AtelierBouwkunde
Landschapsarchitect
Moss Amsterdam, Donkergroen, greenfortune
Visualisaties
Absent Matter
, VERO,
Studio KU+
Adviseur bouwfysica
Cauberg Huygen
Adviseur bouwkosten
Skaal
Leveranciers
Overig
Frans Parthesius
Neem contact op met
Studioninedots
Je bent momenteel niet ingelogd. Hierdoor is het alleen mogelijk om meer informatie per e-mail op te vragen. Wil je liever gebeld worden of documentatie per post ontvangen?
Klik dan hier om in te loggen
.
Heb je nog geen account?
Maak dan hier een gratis account aan
.
Voornaam
Achternaam
E-mailadres
Opmerkingen
Bij iedere aanvraag worden relevante gegevens van jou gedeeld met het betreffende bedrijf. Meer hierover lees je in ons
privacybeleid
.
Ja, denk met me mee rond de
materialisering van mijn project
Meer projecten van Studioninedots
Octavia Hill
Studioninedots
Niemeyer
Studioninedots
Spark
Studioninedots
Cityplot Buiksloterham
Studioninedots
C14
Studioninedots
Oostenburg
Studioninedots
Facette Bordeaux
Studioninedots
Suite 9
Studioninedots
Highnote
Studioninedots
YCON
Studioninedots
360 Degrees
Studioninedots
Karper K.
Studioninedots
De Jakoba
Studioninedots
DC Van Hall
Studioninedots
Wet Beast
Studioninedots
Bovenbouwwerkplaats
Studioninedots
Antoni
Studioninedots
Lieven de Key HQ
Studioninedots
Villa Fifty-Fifty
Studioninedots
Woonhuis PH
Studioninedots
Octavia Hill
Studioninedots
Niemeyer
Studioninedots
Spark
Studioninedots
Cityplot Buiksloterham
Studioninedots
C14
Studioninedots
Oostenburg
Studioninedots
Facette Bordeaux
Studioninedots
Suite 9
Studioninedots
Highnote
Studioninedots
YCON
Studioninedots
360 Degrees
Studioninedots
Karper K.
Studioninedots
De Jakoba
Studioninedots
DC Van Hall
Studioninedots
Wet Beast
Studioninedots
Bovenbouwwerkplaats
Studioninedots
Antoni
Studioninedots
Lieven de Key HQ
Studioninedots
Villa Fifty-Fifty
Studioninedots
Woonhuis PH
Studioninedots
Toon alles
Andere Projecten
Onderwijsgebouw Aurora, Wageningen
WEBO
Sandwichpanelenwand hygiënische afbouw
Sentho B.V.
Transformeerbare vergaderruimtes in HNK Amsterdam
BREEDVELD mobiele wandsystemen
Complete buiteninrichting kantooromgeving
Falco B.V.
TopAccess Dakluik bij Porsche Service Factory
Staka Dakluiken
Nieuwbouw villa Tegenbosch, Eindhoven, Noord-Braba
van Os Architecten
Moderne villa Alkmaar
BNLA architecten
Appartementencomplex in Purmerend
SSAB Swedish Steel BV
Office Winhov over project Pulse met Archicad
KUBUS | Specialist in Archicad
Nieuwbouw moderne bungalow, Prinsenbeek, Noord-Bra
van Os Architecten
Verbouwing villa Ruitersbos, Breda, Noord-Brabant
van Os Architecten
Nieuwbouw schuurwoning, Oosterhout, Noord-Brabant
van Os Architecten
Ga naar het projecten-overzicht
Voor een optimale gebruikservaring plaatst Architectenweb functionele cookies. Wat de verschillende cookies precies doen leggen we uit in een
overzicht
. Cookies van social media kun je optioneel
aanzetten
.
Akkoord
Instellingen
Annuleren
OK
Sluiten
Doorgaan
Inloggen
Maak een gratis persoonlijk account aan
Feedback
Feedback
Wij horen graag jouw feedback. Laat je reactie achter en eventueel jouw e-mail adres.
Reactie
Verstuur