Projecten
Producten
Bedrijven
Vacatures
Agenda
Awards
Podcasts
more_horiz
Videos
Magazine
Favorieten
Profiel
Uitloggen
Abonneer je nu op onze nieuwsbrieven!
Abonneren
Nee, bedankt
Ja, denk met me mee rond de
materialisering van mijn project
Producten
Copyright: Frans Parthesius
Copyright: Frans Parthesius
Copyright: Frans Parthesius
Copyright: Frans Parthesius
Copyright: Frans Parthesius
Copyright: Frans Parthesius
Copyright: Frans Parthesius
Copyright: Frans Parthesius
Copyright: Frans Parthesius
Copyright: Frans Parthesius
Copyright: Frans Parthesius
Copyright: Frans Parthesius
Copyright: Frans Parthesius
Copyright: Frans Parthesius
Copyright: Studioninedots
Copyright: Studioninedots
Copyright: Studioninedots
Copyright: Studioninedots
Copyright: Studioninedots
Copyright: Studioninedots
Copyright: Studioninedots
Copyright: Studioninedots
Copyright: Studioninedots
Copyright: Studioninedots
Producttags
AAN
UIT
Lieven de Key HQ
24 juni 2022
1
0
0
0
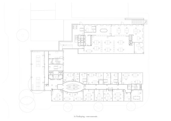
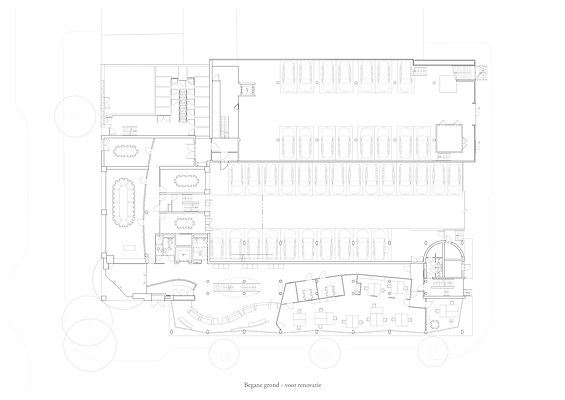
Studioninedots heeft het bestaande kantoor van woningbouwvereniging Lieven de Key in Amsterdam getransformeerd tot een duurzaam en toekomstbestendig hoofdkantoor. De twee vestigingen van de corporatie zijn efficiënt samengevoegd in het bestaande pand aan de Hoogte Kadijk, zodat op de plek van de andere vestiging bovendien ruimte ontstond voor nieuwe sociale huurwoningen.
Het verouderde interieur van de oorspronkelijke kantoorgebouwen heeft zoveel mogelijk plaats gemaakt voor een transparante en verrassende kantooromgeving, die aansluit bij de moderne ambities van Lieven de Key. De nieuw ontstane ruimtes bieden plek voor spontane interacties en gebeurtenissen, en kennen een open interpretatie in functie. Het flexibele kantoorconcept, natuurlijke materialen, een overvloed aan daglicht en het vele groen dat rond en in het gebouw is geïntroduceerd bereiden de woningcorporatie voor op de toekomst.
De nieuwe gevels worden gekarakteriseerd door de betonstructuur die oorspronkelijke gebouwen als een lint bij elkaar bindt, en geven het hoofdkantoor een krachtig gezicht. Via de doorlopende ramen ontstaat het contact tussen de binnenwereld en de straat. In de grote uitsparing in het hart van het gebouw ligt een groen atrium dat rondom overspoeld wordt met natuurlijk licht.
Ons uitgangspunt voor het ontwerp was het thema verbinding – van mensen, van de bestaande gebouwen en met de buurt. Het aan elkaar schakelen van de drie oorspronkelijke gebouwen gaf ons de mogelijkheid om een volledig geopende begane grond te creëren, een dynamisch landschap met inspirerende ruimtes voor gezamenlijk overleg en informele ontmoetingen. De flexibele werkruimtes faciliteren niet alleen uiteenlopende programma’s en gebruikers, maar verhogen efficiëntie door meer mensen in dezelfde gebouwen onder te brengen.
Over de volledige hoogte van het atrium loopt de centrale trap, de groene long van het gebouw en een eyecatcher vanaf de straat. De trap wordt getypeerd door split-level plateaus, die fungeren als sluiproutes en nieuwe plekken voor spontane interacties tussen collega’s. Vanwege de dynamiek op de trap zijn de collectieve werkfuncties eromheen gegroepeerd en zijn de activiteiten die meer rust of concentratie vereisen juist op afstand geplaatst.
In het hart van de begane grond ligt de weelderige binnentuin. Deze groene ruimte lijkt via de open gevels aan weerszijden in het Werklab en het restaurant door te lopen, en springt in het oog vanaf de Nieuwe Vaart. Met mooi weer kunnen rondom de puien worden geopend, zodat ook de tuin integraal onderdeel wordt van de open begane grond.
In plaats van materialen toe te voegen, hebben we er juist naar gestreefd zoveel mogelijk materialen weg te halen. Dit creëert niet alleen meer vrije hoogtes en transparantie, maar draagt daarnaast sterk bij aan de duurzaamheidsscore van het gebouw. De kaders in de betonstructuur die het gebouw zijn gezicht geeft, refereren naar de kenmerkende boogelementen in de gebouwen in de omgeving.
Stel jezelf kort voor! Dan weet het betreffende bedrijf wie hun model gedownload heeft.
Wil je niet bij elke download jouw gegevens in hoeven voeren?
Klik dan hier om in te loggen
.
Heb je nog geen account?
Maak dan hier een gratis account aan
.
Voornaam
Achternaam
E-mailadres
Downloaden
Wanneer je modellen downloadt op Architectenweb.nl worden relevante gegevens van jou – zoals jouw naam en e-mailadres – met het betreffende bedrijf gedeeld. Meer hierover lees je in ons
privacybeleid
.
Locatie
Trefwoorden
kantoor
transformatie
nieuwe werken
duurzaamheid
hergebruik
renovatie
lieven de key
studioninedots
Architectenweb Awards 2022
Kantoorgebouw van het Jaar
Nominatie
Bekijk alle genomineerden
Studioninedots
Neem contact op
Projectdata
Staat van realisatie
Voltooid
Start ontwerpproces
2018
Start bouw
2020
Oplevering
2021
Ingebruikname
2021
Plaats
Amsterdam
Meewerkende partijen
Architect
Studioninedots
Interieurarchitect
Studioninedots
Projectarchitect
Metin van zijl, jurjen van der horst
Ontwerpteam
TE-Team: Studioninedots (leidend), DZAP, Techniplan, DPA, Bouwadviesbureau Strackee, Skaal Bouweconomisch Adviesbureau, DELVA Landschapsarchitecten/Urbanisme
Opdrachtgever
Lieven de Key
Aannemer
Hillen en Roosen / Hemubo
Fotograaf
Frans Parthesius
Interieurontwerper
Studioninedots
Landschapsarchitect
Delva Landscape Architecture & Urbanism
Neem contact op met
Studioninedots
Je bent momenteel niet ingelogd. Hierdoor is het alleen mogelijk om meer informatie per e-mail op te vragen. Wil je liever gebeld worden of documentatie per post ontvangen?
Klik dan hier om in te loggen
.
Heb je nog geen account?
Maak dan hier een gratis account aan
.
Voornaam
Achternaam
E-mailadres
Opmerkingen
Bij iedere aanvraag worden relevante gegevens van jou gedeeld met het betreffende bedrijf. Meer hierover lees je in ons
privacybeleid
.
Ja, denk met me mee rond de
materialisering van mijn project
Meer projecten van Studioninedots
Light House
Studioninedots
Octavia Hill
Studioninedots
Niemeyer
Studioninedots
Spark
Studioninedots
Cityplot Buiksloterham
Studioninedots
C14
Studioninedots
Oostenburg
Studioninedots
Facette Bordeaux
Studioninedots
Suite 9
Studioninedots
Highnote
Studioninedots
YCON
Studioninedots
360 Degrees
Studioninedots
Karper K.
Studioninedots
De Jakoba
Studioninedots
DC Van Hall
Studioninedots
Wet Beast
Studioninedots
Bovenbouwwerkplaats
Studioninedots
Antoni
Studioninedots
Westbeat
Studioninedots
Villa Fifty-Fifty
Studioninedots
Woonhuis PH
Studioninedots
Light House
Studioninedots
Octavia Hill
Studioninedots
Niemeyer
Studioninedots
Spark
Studioninedots
Cityplot Buiksloterham
Studioninedots
C14
Studioninedots
Oostenburg
Studioninedots
Facette Bordeaux
Studioninedots
Suite 9
Studioninedots
Highnote
Studioninedots
YCON
Studioninedots
360 Degrees
Studioninedots
Karper K.
Studioninedots
De Jakoba
Studioninedots
DC Van Hall
Studioninedots
Wet Beast
Studioninedots
Bovenbouwwerkplaats
Studioninedots
Antoni
Studioninedots
Westbeat
Studioninedots
Villa Fifty-Fifty
Studioninedots
Woonhuis PH
Studioninedots
Toon alles
Andere Projecten
De stad van Aedes: waar werken wonen wordt
Tétris Design & Build
Nieuwbouw Residentie ZICHT Venlo
Knauf Insulation
Fraké Noir gevelbekleding op sanitairgebouw
Houthandel van Dam
Nieuwbouw Slingeland Ziekenhuis Doetinchem
Knauf Insulation
The Family Delft
Houthandel van Dam
Houtlook lamellen voor aantrekkelijke nieuwbouw
Renson
De Toerist in Breda
DUCO Ventilation & Sun Control
Solarlux vouwwanden - Zuidkade Scheveningen
Solarlux Nederland B.V.
Multifunctioneel gebouw met aluminium vliesgevel
Aliplast Aluminium Systems
Van gesloten gevel naar transparant visitekaartje
Rockpanel
Den Hartogh Basecamp (Video)
Schüco Nederland
Architectuur met een speels karakter
Caparol
Ga naar het projecten-overzicht
Voor een optimale gebruikservaring plaatst Architectenweb functionele cookies. Wat de verschillende cookies precies doen leggen we uit in een
overzicht
. Cookies van social media kun je optioneel
aanzetten
.
Akkoord
Instellingen
Annuleren
OK
Sluiten
Doorgaan
Inloggen
Maak een gratis persoonlijk account aan
Feedback
Feedback
Wij horen graag jouw feedback. Laat je reactie achter en eventueel jouw e-mail adres.
Reactie
Verstuur