Projecten
Producten
Bedrijven
Vacatures
Agenda
Awards
Podcasts
more_horiz
Videos
Magazine
Favorieten
Profiel
Uitloggen
Abonneer je nu op onze nieuwsbrieven!
Abonneren
Nee, bedankt
Ja, denk met me mee rond de
materialisering van mijn project
Producten
De Geus Leiden 1
De Geus Leiden 2
De Geus Leiden 3
De Geus Leiden 4
De Geus Leiden 5
De Geus Leiden 6
De Geus Leiden 7
De Geus Leiden 8
De Geus Leiden 9
De Geus Leiden 10
De Geus Leiden 11
De Geus Leiden 12
De Geus Leiden 13
De Geus Leiden 14
De Geus Leiden 15
De Geus Leiden 16
De Geus Leiden 17
Producttags
AAN
UIT
De Geus Leiden
6 februari 2023
0
0
0
0
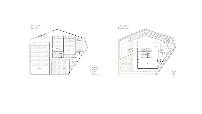
Bioscoop, congrescentrum, restaurant, buurtwinkel, retail, openbare fietsenstalling, appartement en daktuin - dat is De Geus. Dit ruime programma op een compacte locatie is mogelijk gemaakt door een woontoren bovenop acht gestapelde bioscoopzalen te plaatsen: een gedurfde constructie die resulteert in een levendig publiek gebouw.
De bakstenen plint met verfijnde gedetailleerde pijlers en hoge ramen opent de interne mix van programma naar het stationsplein. Een multiplexbioscoop, conferentiecentrum en restaurants garanderen dag en nacht een levendige interactie. De buurtwinkel en de openbare fietsenstalling kijken uit op het station. De ingangen van de bioscoop en de restaurants kijken uit op het historische stadscentrum. Zo verandert het gebouw het stationsplein van een verkeersplein in een levendig centrumgebied. De Geus creëert de uitnodiging om Leiden binnen te gaan.
De Geus verbindtHet stationsgebied vormt een overgangszone tussen de moderne hoogschalige academische ziekenhuiscampus en de kleinschalige historische binnenstad. Het gebied transformeert momenteel van een chaotisch verkeersgebied naar een aantrekkelijke verblijfsplek. Dit vraagt om de geloofwaardige levendigheid die De Geus biedt met haar publieke programma en uitnodigende daktuin. Een stadsblok dat de twee werelden verenigt door middel van een bakstenen plint in de schaal van de binnenstad en een lichttoren die de entree van het stationsgebied markeert.
Betaalbare woningen zijn onderontwikkeld, hoewel er veel vraag naar is. De Geus draagt bij aan de gemeentelijke woningbouwdoelstellingen voor het huisvesten van starters en empty nesters die nu te vaak gedwongen zijn naar andere steden te verhuizen. De woontoren met een verdiepte ligging in de plint voorkomt een scherp contrast met het historische centrum en zorgt voor een aangename wind. De appartementen met ruim uitzicht in combinatie met de daktuin zorgen voor een aangename woonbeleving in Leiden.
Stel jezelf kort voor! Dan weet het betreffende bedrijf wie hun model gedownload heeft.
Wil je niet bij elke download jouw gegevens in hoeven voeren?
Klik dan hier om in te loggen
.
Heb je nog geen account?
Maak dan hier een gratis account aan
.
Voornaam
Achternaam
E-mailadres
Downloaden
Wanneer je modellen downloadt op Architectenweb.nl worden relevante gegevens van jou – zoals jouw naam en e-mailadres – met het betreffende bedrijf gedeeld. Meer hierover lees je in ons
privacybeleid
.
OZ
Neem contact op
Projectdata
Staat van realisatie
In ontwikkeling
Meewerkende partijen
Architect
OZ architect
Projectarchitect
Oresti Sarafopoulos
Ontwerpteam
Martin de Jong, Ytse Jousma, Koos Zwitser
Opdrachtgever
Sustay
Visualisaties
Vivid Vision
Adviseur
Bioscopen Leiden B.V., Goudstikker - de Vries B.V., Huygen Installatieadviseurs B.V., LBP|SIGHT, Akor B.V.
Neem contact op met
OZ
Je bent momenteel niet ingelogd. Hierdoor is het alleen mogelijk om meer informatie per e-mail op te vragen. Wil je liever gebeld worden of documentatie per post ontvangen?
Klik dan hier om in te loggen
.
Heb je nog geen account?
Maak dan hier een gratis account aan
.
Voornaam
Achternaam
E-mailadres
Opmerkingen
Bij iedere aanvraag worden relevante gegevens van jou gedeeld met het betreffende bedrijf. Meer hierover lees je in ons
privacybeleid
.
Ja, denk met me mee rond de
materialisering van mijn project
Meer projecten van OZ
Binck City Park, Den Haag
OZ
Codam Amsterdam
OZ
Four Elements Hotel Amsterdam
OZ
Curaçao Medical Centre
OZ
The Diamond House Bahamas
OZ
Downtown Rotterdam
OZ
Holland Casino Utrecht
OZ
Evenementengebouw Middelkerke
OZ
Hofplein 19 Rotterdam
OZ
De Werf NDSM Amsterdam
OZ
Tussen Kasteel en Wijchens Meer
OZ
Het Cornelium Amsterdam
OZ
Het Gildenhof Zwolle
OZ
KARSP Amsterdam
OZ
High Five Utrecht
OZ
OurDomain Amsterdam
OZ
Lumen Scheveningen
OZ
Barrio Lobi Amsterdam
OZ
BOLD Amsterdam
OZ
De Baak
OZ
The Joan Amsterdam
OZ
The Terraced Tower Rotterdam
OZ
Oostenburg Amsterdam
OZ
Atradius hoofdkantoor
OZ
MBO College Noord
OZ
Studio's en kantoren Endemol
OZ
Hoofdkantoor FrieslandCampina
OZ
Hotel en studentenhuisvesting Casa400
OZ
Research & Development Centre
OZ
Paardenmarkt
OZ
Binck City Park, Den Haag
OZ
Codam Amsterdam
OZ
Four Elements Hotel Amsterdam
OZ
Curaçao Medical Centre
OZ
The Diamond House Bahamas
OZ
Downtown Rotterdam
OZ
Holland Casino Utrecht
OZ
Evenementengebouw Middelkerke
OZ
Hofplein 19 Rotterdam
OZ
De Werf NDSM Amsterdam
OZ
Tussen Kasteel en Wijchens Meer
OZ
Het Cornelium Amsterdam
OZ
Het Gildenhof Zwolle
OZ
KARSP Amsterdam
OZ
High Five Utrecht
OZ
OurDomain Amsterdam
OZ
Lumen Scheveningen
OZ
Barrio Lobi Amsterdam
OZ
BOLD Amsterdam
OZ
De Baak
OZ
The Joan Amsterdam
OZ
The Terraced Tower Rotterdam
OZ
Oostenburg Amsterdam
OZ
Atradius hoofdkantoor
OZ
MBO College Noord
OZ
Studio's en kantoren Endemol
OZ
Hoofdkantoor FrieslandCampina
OZ
Hotel en studentenhuisvesting Casa400
OZ
Research & Development Centre
OZ
Paardenmarkt
OZ
Toon alles
Andere Projecten
Paviljoens Vleuterweide in Utrecht
SSAB Swedish Steel BV
Six Degrees Café
Malaysian Timber Council
Open vloergootsysteem voor The CubeHouse Amsterdam
HPL Systems BV
Almere De Laren
Schippers Architecten
Wooncomplex Lariks in Houthaven
Mapro
Nieuwe kantoorinrichting BDO Brabant
Kronospan
De Toerist in Breda
DUCO Ventilation & Sun Control
In ontwikkeling: IKC Strandeiland, Amsterdam
WEBO
Gorter op nieuwbouw sociale huurappartementen
Gorter Luiken BV
Prefab villa - Egmond aan Zee
Houthandel van Dam
Nieuwbouw poeliersbedrijf Van Berkel Kip
Ruys Groep
Nieuwbouw 107 appartementen Spoordok
Gorter Luiken BV
Ga naar het projecten-overzicht
Voor een optimale gebruikservaring plaatst Architectenweb functionele cookies. Wat de verschillende cookies precies doen leggen we uit in een
overzicht
. Cookies van social media kun je optioneel
aanzetten
.
Akkoord
Instellingen
Annuleren
OK
Sluiten
Doorgaan
Inloggen
Maak een gratis persoonlijk account aan
Feedback
Feedback
Wij horen graag jouw feedback. Laat je reactie achter en eventueel jouw e-mail adres.
Reactie
Verstuur