Projecten
Producten
Bedrijven
Vacatures
Agenda
Awards
Podcasts
more_horiz
Videos
Magazine
Thema's
Favorieten
Profiel
Uitloggen
Producten
Producttags
AAN
UIT
Datcha house 2, Nijmegen (Lent)
19 december 2014
0
0
0
0
Ontwerp
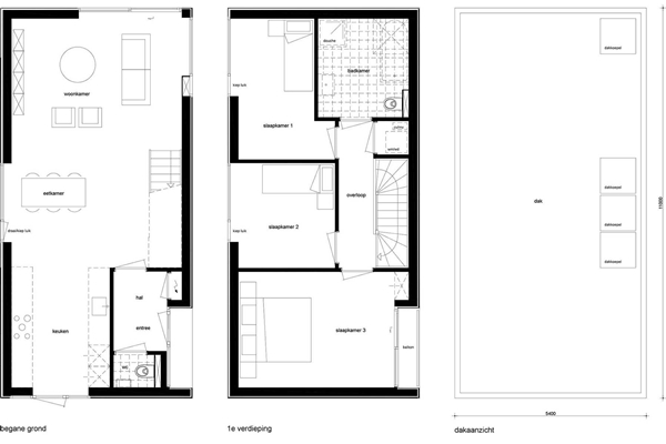
Datcha house 2 is een vrijstaande woning die is geïnspireerd op de typisch Russische datcha's. Dit zijn zomerhuizen in het groen die in de loop der tijd zijn getransformeerd en uitgebouwd tot volwaardige woningen. Datcha house is zo ontwikkeld dat de basis opzet altijd hetzelfde is; een rechthoekige plattegrond met de entree aan de zijkant, die vervolgens op maat kan worden uitgebouwd en aangepast aan uw woonwensen. Zo kan er gekozen worden uit verschillende dakvormen, uit-/opbouwen en gevelmaterialen en kan de woning worden verbreed en verdiept. Hierdoor is elke datcha uiteindelijk uniek.
De woning heeft grote verdieping hoge ramen die zorgen voor veel daglicht, uitzicht naar buiten en een ruimtelijke beleving. De ramen hebben geïntegreerde aluminium luiken of ramen die te openen zijn om de woning te voorzien van frisse lucht van buiten. De aluminium kozijnen liggen vlak in de gevel en creëren een sterk contrast met de toegepaste natuurlijke gevelmaterialen. De entree van de woning is duidelijk herkenbaar verdiept in de gevel, om droog te kunnen staan als het regent.
Zie voor meer informatie:
www.kavelwoning.nl.
Stel jezelf kort voor! Dan weet het betreffende bedrijf wie hun model gedownload heeft.
Wil je niet bij elke download jouw gegevens in hoeven voeren?
Klik dan hier om in te loggen
.
Heb je nog geen account?
Maak dan hier een gratis account aan
.
Voornaam
Achternaam
E-mailadres
Downloaden
Wanneer je modellen downloadt op Architectenweb.nl worden relevante gegevens van jou – zoals jouw naam en e-mailadres – met het betreffende bedrijf gedeeld. Meer hierover lees je in ons
privacybeleid
.
Locatie
Trefwoorden
vrijstaand
zelfbouwwoning
zelfbouw
kavelwoning
datcha
nijmegen
8A Architecten
Neem contact op
Projectdata
Staat van realisatie
Voltooid
Start bouw
2015
Plaats
Nijmegen
Kosten
164500
Bruto m
2
120
m
3
360
Neem contact op met
8A Architecten
Je bent momenteel niet ingelogd. Hierdoor is het alleen mogelijk om meer informatie per e-mail op te vragen. Wil je liever gebeld worden of documentatie per post ontvangen?
Klik dan hier om in te loggen
.
Heb je nog geen account?
Maak dan hier een gratis account aan
.
Voornaam
Achternaam
E-mailadres
Opmerkingen
Bij iedere aanvraag worden relevante gegevens van jou gedeeld met het betreffende bedrijf. Meer hierover lees je in ons
privacybeleid
.
Ja, denk met me mee rond de
materialisering van mijn project
Meer projecten van 8A Architecten
Tussenwoning met loggia's, Amsterdam IJburg
8A Architecten
Tussenwoning met watervaltrap, Delft
8A Architecten
Uitbouw en interieur tussenwoning, Zeist
8A Architecten
Villa Middenwaard, Amstelveen
8A Architecten
CPO Riethoven Park 16Hoven, Rotterdam
8A Architecten
Vrijstaande stadswoning, Dordrecht
8A Architecten
Kubuswoning, KubusEiland, Utrecht
8A Architecten
CPO van 3 rijwoningen, Nijmegen (Lent)
8A Architecten
Hoekwoning Homeruskwartier, Almere
8A Architecten
Vrijstaande woning met dakterras, Nijmegen (Lent)
8A Architecten
Datcha house 3, Nijmegen (Lent)
8A Architecten
Verbouwing arbeiderswoning tot 'pied a terre'
8A Architecten
Villa 8A
8A Architecten
verbouwing vakantiehuis Bourgogne
8A Architecten
levensloopbestendige woningen
8A Architecten
watersportpaviljoen
8A Architecten
fietsenstalling
8A Architecten
Louwman Groep
8A Architecten
Benetton Group
8A Architecten
zwervende erven
8A Architecten
Tussenwoning met loggia's, Amsterdam IJburg
8A Architecten
Tussenwoning met watervaltrap, Delft
8A Architecten
Uitbouw en interieur tussenwoning, Zeist
8A Architecten
Villa Middenwaard, Amstelveen
8A Architecten
CPO Riethoven Park 16Hoven, Rotterdam
8A Architecten
Vrijstaande stadswoning, Dordrecht
8A Architecten
Kubuswoning, KubusEiland, Utrecht
8A Architecten
CPO van 3 rijwoningen, Nijmegen (Lent)
8A Architecten
Hoekwoning Homeruskwartier, Almere
8A Architecten
Vrijstaande woning met dakterras, Nijmegen (Lent)
8A Architecten
Datcha house 3, Nijmegen (Lent)
8A Architecten
Verbouwing arbeiderswoning tot 'pied a terre'
8A Architecten
Villa 8A
8A Architecten
verbouwing vakantiehuis Bourgogne
8A Architecten
levensloopbestendige woningen
8A Architecten
watersportpaviljoen
8A Architecten
fietsenstalling
8A Architecten
Louwman Groep
8A Architecten
Benetton Group
8A Architecten
zwervende erven
8A Architecten
Toon alles
Andere Projecten
IKC Meeroevers - Groningen
ZOETMULDER
Merwede - Stadsblok 1 en 2 / vier gebouwen
ZOETMULDER
Merwede - stadsblok 11 / gebouw Stronk
ZOETMULDER
House in the mountains
SSAB Swedish Steel BV
Niemeyer
Studioninedots
Nidum Boetiek Hotel In Grave
AXOR + hansgrohe
Wintercircus Gent: Historie in Nieuw Licht
VELUX Commercial Benelux B.V.
Groen gevelsysteem voor De Kruitfabriek
Jansen Staalkabels
Woonhuis met maatwerk cabine- en autolift
Flexitec
Nieuwbouw WeenerXL 's-Hertogenbosch
Alwiti BV
Merletcollege
VELUX Commercial Benelux B.V.
NS Amsterdam Zaanstraat
Nolte Mezzanine
Ga naar het projecten-overzicht
Voor een optimale gebruikservaring plaatst Architectenweb functionele cookies. Wat de verschillende cookies precies doen leggen we uit in een
overzicht
. Cookies van social media kun je optioneel
aanzetten
.
Akkoord
Instellingen
Annuleren
OK
Sluiten
Doorgaan
Inloggen
Maak een gratis persoonlijk account aan
Feedback
Feedback
Wij horen graag jouw feedback. Laat je reactie achter en eventueel jouw e-mail adres.
Reactie
Verstuur