Projecten
Producten
Bedrijven
Vacatures
Agenda
Awards
Podcasts
more_horiz
Videos
Magazine
Thema's
Favorieten
Profiel
Uitloggen
Producten
Copyright: 8A Architecten
Copyright: 8A Architecten
Copyright: 8A Architecten
Copyright: 8A Architecten
Copyright: 8A Architecten
Copyright: 8A Architecten
Copyright: 8A Architecten
Copyright: 8A Architecten
Copyright: 8A Architecten
Copyright: 8A Architecten
Copyright: 8A Architecten
Copyright: 8A Architecten
Copyright: 8A Architecten
Copyright: 8A Architecten
Copyright: 8A Architecten
Copyright: 8A Architecten
Copyright: 8A Architecten
Copyright: 8A Architecten
Copyright: 8A Architecten
Copyright: 8A Architecten
Copyright: 8A Architecten
Producttags
AAN
UIT
Tussenwoning met watervaltrap, Delft
19 december 2022
0
0
0
0
Vijf jaar lang is gewerkt aan de Willem van Oranje-tunnel in het centrum van Delft. Niet alleen is het spoorviaduct verdwenen dat de stadsdelen een halve eeuw van elkaar scheidde, Delft heeft er ook een modern vervoersknooppunt en stadskantoor bij. Door de verandering is er ruimte ontstaan voor de ontwikkeling van een nieuw stuk stad: Nieuw Delft. Het uitgangspunt voor de ontwikkeling is het plan ‘Zicht op Delft’ van Palmbout Urban Landscapes.
Coendersbuurt
In het nieuwe gedeelte van de Coendersbuurt in Delft heeft 8A een zelfbouw woning gebouwd in particulier opdrachtgeverschap (PO). De tussenwoning maakt onderdeel uit van de op het noordwesten gerichte straatgevel van de Keizer Karelstraat, met aan beide kanten zelfbouw woningen.
Opgave
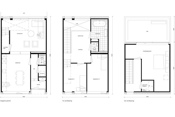
De tussenwoning is ontworpen voor een starters echtpaar met kinderwens. Binnen de maximale afmetingen van 6,0x10m en 161m2 bvo moest een programma worden ondergebracht van twee kinderkamers, een badkamer, een hoofdslaapkamer, een dakterras en een ruime woonruimte met open keuken. De opgave was om een verrassende gezinswoning te ontwerpen met veel licht en ruimtelijkheid, maar met voldoende privacy richting de straat.
Watervaltrap
Om veel licht en ruimtelijkheid te creëren is een watervaltrap ontworpen van twee rechte steektrappen achter elkaar. De eikenhouten trap begint aan de achterkant in de woonkamer, en eindigt aan de voorkant in de overloop van de hoofdslaapkamer op de 2e verdieping. Dit was net mogelijk met de maximaal te bebouwen diepte van 10m. Het grote trapgat dat hierdoor ontstaat en de vide die hieraan is verbonden, geeft het beoogde licht en de ruimtelijkheid aan de woning.
Keuken
De open keuken die aan de voorkant naast de entree van de woning ligt, is met twee traptreden verhoogd en wordt hierdoor ruimtelijk gescheiden van de woonkamer. Tegelijkertijd geeft de verhoging meer privacy in de keuken vanaf de straat en verbindt deze de woning met de verplichtte Delftse stoep.
Entresol
Op de 1e verdieping, tussen de twee trappen in, ligt een entresol die met de vide van de woonkamer is verbonden. De entresol wordt gebruikt als multifunctionele ruimte en overloop, die toegang geeft tot de twee kinderkamers, badkamer en wc. De twee kinderkamers liggen aan de voorgevel op het noorden en zijn hierdoor in de zomer voldoende koel. De badkamer ligt op het zuiden tegen het blinde deel van de achtergevel en heeft hierdoor volledige privacy. Het daklicht dat op het dakterras uitkomt geeft de badkamer het benodigde daglicht van boven. Op de 2e verdieping ligt de hoofdslaapkamer, dat in de toekomst aan de voorkant nog is uit te breiden met een badkamer en suite. De hoofdslaapkamer is met een grote schuifpui verbonden met het dakterras aan de achterkant.
Gevels
De voorgevel van de woning is meer gesloten dan de achtergevel, voor voldoende privacy richting de straat. De indeling van de voorgevel bestaat uit een entree, twee liggende en een staande raamstrook. De staande raamstrook markeert de positie van de watervaltrap, die in de achtergevel op een lagere positie terugkomt. De entree ligt verdiept in de gevel om droog voor de voordeur te kunnen staan als het regent. Hierdoor is de entree ook duidelijk herkenbaar. De achtergevel heeft een grote schuifpui bij de woonkamer en een loopdeur in de staande raamstrook als achterdeur. De gevels zijn bekleed met verticaal aangebrachte zwart houten geveldelen, gecombineerd met mat zwart aluminium kozijnen. Deze vormen samen een sterk contrast met het interieur van de woning dat juist heel licht is.
Stel jezelf kort voor! Dan weet het betreffende bedrijf wie hun model gedownload heeft.
Wil je niet bij elke download jouw gegevens in hoeven voeren?
Klik dan hier om in te loggen
.
Heb je nog geen account?
Maak dan hier een gratis account aan
.
Voornaam
Achternaam
E-mailadres
Downloaden
Wanneer je modellen downloadt op Architectenweb.nl worden relevante gegevens van jou – zoals jouw naam en e-mailadres – met het betreffende bedrijf gedeeld. Meer hierover lees je in ons
privacybeleid
.
Locatie
Trefwoorden
tussenwoning
zelfbouw
delft
coendersbuurt
zelfbouw woning
nieuw delft
rijwoning
8A Architecten
Neem contact op
Projectdata
Staat van realisatie
Voltooid
Start bouw
2018
Oplevering
2018
Ingebruikname
2018
Plaats
Delft
Bruto m
2
161
Meewerkende partijen
Architect
8A Architecten
Projectarchitect
Robert Uijttewaal
Opdrachtgever
Particulier (PO)
Fotograaf
Luuk Kramer Fotografie BV
Interieurontwerper
8A Architecten
Leveranciers
Houten geveldelen
Leegwater Houtbereiding B.V.
Neem contact op met
8A Architecten
Je bent momenteel niet ingelogd. Hierdoor is het alleen mogelijk om meer informatie per e-mail op te vragen. Wil je liever gebeld worden of documentatie per post ontvangen?
Klik dan hier om in te loggen
.
Heb je nog geen account?
Maak dan hier een gratis account aan
.
Voornaam
Achternaam
E-mailadres
Opmerkingen
Bij iedere aanvraag worden relevante gegevens van jou gedeeld met het betreffende bedrijf. Meer hierover lees je in ons
privacybeleid
.
Ja, denk met me mee rond de
materialisering van mijn project
Meer projecten van 8A Architecten
Tussenwoning met loggia's, Amsterdam IJburg
8A Architecten
Uitbouw en interieur tussenwoning, Zeist
8A Architecten
Villa Middenwaard, Amstelveen
8A Architecten
CPO Riethoven Park 16Hoven, Rotterdam
8A Architecten
Vrijstaande stadswoning, Dordrecht
8A Architecten
Kubuswoning, KubusEiland, Utrecht
8A Architecten
CPO van 3 rijwoningen, Nijmegen (Lent)
8A Architecten
Hoekwoning Homeruskwartier, Almere
8A Architecten
Vrijstaande woning met dakterras, Nijmegen (Lent)
8A Architecten
Datcha house 3, Nijmegen (Lent)
8A Architecten
Datcha house 2, Nijmegen (Lent)
8A Architecten
Verbouwing arbeiderswoning tot 'pied a terre'
8A Architecten
Villa 8A
8A Architecten
verbouwing vakantiehuis Bourgogne
8A Architecten
levensloopbestendige woningen
8A Architecten
watersportpaviljoen
8A Architecten
fietsenstalling
8A Architecten
Louwman Groep
8A Architecten
Benetton Group
8A Architecten
zwervende erven
8A Architecten
Tussenwoning met loggia's, Amsterdam IJburg
8A Architecten
Uitbouw en interieur tussenwoning, Zeist
8A Architecten
Villa Middenwaard, Amstelveen
8A Architecten
CPO Riethoven Park 16Hoven, Rotterdam
8A Architecten
Vrijstaande stadswoning, Dordrecht
8A Architecten
Kubuswoning, KubusEiland, Utrecht
8A Architecten
CPO van 3 rijwoningen, Nijmegen (Lent)
8A Architecten
Hoekwoning Homeruskwartier, Almere
8A Architecten
Vrijstaande woning met dakterras, Nijmegen (Lent)
8A Architecten
Datcha house 3, Nijmegen (Lent)
8A Architecten
Datcha house 2, Nijmegen (Lent)
8A Architecten
Verbouwing arbeiderswoning tot 'pied a terre'
8A Architecten
Villa 8A
8A Architecten
verbouwing vakantiehuis Bourgogne
8A Architecten
levensloopbestendige woningen
8A Architecten
watersportpaviljoen
8A Architecten
fietsenstalling
8A Architecten
Louwman Groep
8A Architecten
Benetton Group
8A Architecten
zwervende erven
8A Architecten
Toon alles
Andere Projecten
Het Streek Lyceum, Ede
Ector Hoogstad Architecten
Muziekcentrum Gebr. de Nobel, Leiden
Ector Hoogstad Architecten
Gemeentehuis Krimpenerwaard
Ector Hoogstad Architecten
Matrix VII Life Science Incubator, Amsterdam
Ector Hoogstad Architecten
Annie M.G. Schmidtschool, Den Haag
Ector Hoogstad Architecten
Center Court, Geleen
Ector Hoogstad Architecten
Renovatie Luxor Theater met Swisspearl Zenor
Swisspearl Nederland
Boterhalle – akoestiek en duurzaamheid in balans
Merford
Renovatie Gemeentehuis Rheden
Hunter Douglas Architectural
Accoya voor iconisch NEMO-dakterras
Accoya
Theater aan de Parade
Espero B.V.
Verbinding in MFA De Trochset te Jistrum
Troldtekt Benelux
Ga naar het projecten-overzicht
Voor een optimale gebruikservaring plaatst Architectenweb functionele cookies. Wat de verschillende cookies precies doen leggen we uit in een
overzicht
. Cookies van social media kun je optioneel
aanzetten
.
Akkoord
Instellingen
Annuleren
OK
Sluiten
Doorgaan
Inloggen
Maak een gratis persoonlijk account aan
Feedback
Feedback
Wij horen graag jouw feedback. Laat je reactie achter en eventueel jouw e-mail adres.
Reactie
Verstuur