Projecten
Producten
Bedrijven
Vacatures
Agenda
Awards
Podcasts
more_horiz
Videos
Magazine
Thema's
Favorieten
Profiel
Uitloggen
Producten
Copyright: Sonja Velda
Copyright: Sonja Velda
Copyright: Sonja Velda
Copyright: Sonja Velda
Copyright: Sonja Velda
Copyright: Sonja Velda
Copyright: 8A Architecten
Producttags
AAN
UIT
Vrijstaande stadswoning, Dordrecht
18 december 2022
0
0
0
0
Stadswerven is een nieuw levendig stedelijk gebied aan het water als aanvulling op het centrum van Dordrecht. Wonen aan het water met de historische binnenstad op loopafstand. Eens vierde de scheepvaartindustrie hier hoogtij. Een nieuwe voetgangers- en fietsbrug verbindt de nieuwe wijk met het centrum. In het stedenbouwkundig plan wordt aansluiting gezocht bij de bijzondere sfeer en karakteristiek van de Dordtse binnenstad door het toepassen van gesloten bouwblokken, een pandsgewijze opbouw en verrassende verborgen woonhofjes. Binnen Stadswerven B-Noord is aan de kant van de Merwede een nieuwe locatie voor zelfbouw ontwikkeld: Werf van Gips. Hier heeft gemeente Dordrecht zelfbouw kavels verkocht voor rijwoningen en vrijstaande stadswoningen. In één van de hofjes van Werf van Gips is door 8A een vrijstaande stadswoning gebouwd in particulier opdrachtgeverschap (PO).
Opgave
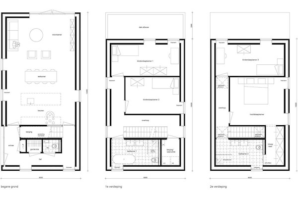
De stadswoning is ontworpen voor een samengesteld gezin met drie kinderen. De opgave was om binnen de maximale afmetingen van het kavelpaspoort van 6,0x10m en drie bouwlagen, een vrijstaande stadswoning te ontwerpen met vier slaapkamers, twee badkamers en een ruime leefruimte. Daarnaast was veel daglicht en privacy een belangrijke wens van de bewoners.
Entree
De stadswoning ligt in de hoek van het hofje en staat 90 graden gedraaid en versprongen ten opzichte van de naastgelegen zelfbouw woningen. Dit is de aanleiding geweest om de entree op de hoek te leggen. De entree kijkt prominent uit op het hofje en geeft de stadswoning een sterke verbinding met de straat.
Ruimtelijke opzet
Op wens van de bewoners is de trap opgenomen in de entreehal. Door de breedte van de woning is het mogelijk geweest om een rechte steektrap dwars in de woning te plaatsen, waardoor een spannende rondloop in de woning is ontstaan. Tegelijkertijd is het mogelijk om de natte ruimten en installaties boven elkaar te leggen voor een logisch verticaal leidingverloop. De slaapkamers worden ontsloten met een langsgang en zijn op wens van de bewoners zoveel mogelijk op het zuiden gericht. Doordat deze opzet meer ruimte vraagt van de begane grond, is de woning aan de achterkant met 2,0m uitgebouwd om meer ruimte te creëren voor de woonkamer met leefkeuken.
Verdiepingshoge ramen
De stadswoning is volledig opgetrokken uit antraciet gekleurd traditioneel metselwerk en heeft grote verdiepingshoge ramen die aansluiten op de verticale geleding van de traditionele herenhuizen uit de binnenstad. Door de grote hoogte geven de ramen veel licht en ruimtelijkheid in de woning, maar zorgt de geringe breedte van de ramen tegelijkertijd voor veel privacy.
Zorgvuldig toegepaste materialen
De gevel is verbijzonderd door een rondgaande band van geribbeld metselwerk ter hoogte van de 1e verdieping. De band deelt het volume van de woning in drie delen en geeft de gevel tegelijkertijd een mooie beëindiging. Het ontbreken van kozijnen op de bovenste verdieping ter plaatse van de langsgang draagt hieraan bij. De langsgang en overloop worden door drie dakkoepels van daglicht voorzien. De gevel is zorgvuldig gedetailleerd door toepassing van antraciet gekleurde aluminium kozijnen die met een negge terugliggen in de gevel. De entree is prominent vormgegeven door de afwijkende grote gevelopening met een diepere negge en plaatstalen luifeltje, om droog voor de voordeur te kunnen staan als het regent. Hierdoor heeft de entree een statig karakter en is duidelijk herkenbaar voor bezoekers.
Stel jezelf kort voor! Dan weet het betreffende bedrijf wie hun model gedownload heeft.
Wil je niet bij elke download jouw gegevens in hoeven voeren?
Klik dan hier om in te loggen
.
Heb je nog geen account?
Maak dan hier een gratis account aan
.
Voornaam
Achternaam
E-mailadres
Downloaden
Wanneer je modellen downloadt op Architectenweb.nl worden relevante gegevens van jou – zoals jouw naam en e-mailadres – met het betreffende bedrijf gedeeld. Meer hierover lees je in ons
privacybeleid
.
Locatie
Trefwoorden
dordrecht
stadswerven
zelfbouw
vrijstaande stadswoning
zelfbouwwoning
stadswoning
werf van gips
8A Architecten
Neem contact op
Projectdata
Staat van realisatie
Voltooid
Start bouw
2017
Oplevering
2017
Ingebruikname
2017
Plaats
Dordrecht
Bruto m
2
192
Meewerkende partijen
Architect
8A Architecten
Projectarchitect
Robert Uijttewaal
Opdrachtgever
particulier
Fotograaf
Sonja Velda
Leveranciers
Kozijnen
Alcoa Architectural Systems
Neem contact op met
8A Architecten
Je bent momenteel niet ingelogd. Hierdoor is het alleen mogelijk om meer informatie per e-mail op te vragen. Wil je liever gebeld worden of documentatie per post ontvangen?
Klik dan hier om in te loggen
.
Heb je nog geen account?
Maak dan hier een gratis account aan
.
Voornaam
Achternaam
E-mailadres
Opmerkingen
Bij iedere aanvraag worden relevante gegevens van jou gedeeld met het betreffende bedrijf. Meer hierover lees je in ons
privacybeleid
.
Ja, denk met me mee rond de
materialisering van mijn project
Meer projecten van 8A Architecten
Tussenwoning met loggia's, Amsterdam IJburg
8A Architecten
Tussenwoning met watervaltrap, Delft
8A Architecten
Uitbouw en interieur tussenwoning, Zeist
8A Architecten
Villa Middenwaard, Amstelveen
8A Architecten
CPO Riethoven Park 16Hoven, Rotterdam
8A Architecten
Kubuswoning, KubusEiland, Utrecht
8A Architecten
CPO van 3 rijwoningen, Nijmegen (Lent)
8A Architecten
Hoekwoning Homeruskwartier, Almere
8A Architecten
Vrijstaande woning met dakterras, Nijmegen (Lent)
8A Architecten
Datcha house 3, Nijmegen (Lent)
8A Architecten
Datcha house 2, Nijmegen (Lent)
8A Architecten
Verbouwing arbeiderswoning tot 'pied a terre'
8A Architecten
Villa 8A
8A Architecten
verbouwing vakantiehuis Bourgogne
8A Architecten
levensloopbestendige woningen
8A Architecten
watersportpaviljoen
8A Architecten
fietsenstalling
8A Architecten
Louwman Groep
8A Architecten
Benetton Group
8A Architecten
zwervende erven
8A Architecten
Tussenwoning met loggia's, Amsterdam IJburg
8A Architecten
Tussenwoning met watervaltrap, Delft
8A Architecten
Uitbouw en interieur tussenwoning, Zeist
8A Architecten
Villa Middenwaard, Amstelveen
8A Architecten
CPO Riethoven Park 16Hoven, Rotterdam
8A Architecten
Kubuswoning, KubusEiland, Utrecht
8A Architecten
CPO van 3 rijwoningen, Nijmegen (Lent)
8A Architecten
Hoekwoning Homeruskwartier, Almere
8A Architecten
Vrijstaande woning met dakterras, Nijmegen (Lent)
8A Architecten
Datcha house 3, Nijmegen (Lent)
8A Architecten
Datcha house 2, Nijmegen (Lent)
8A Architecten
Verbouwing arbeiderswoning tot 'pied a terre'
8A Architecten
Villa 8A
8A Architecten
verbouwing vakantiehuis Bourgogne
8A Architecten
levensloopbestendige woningen
8A Architecten
watersportpaviljoen
8A Architecten
fietsenstalling
8A Architecten
Louwman Groep
8A Architecten
Benetton Group
8A Architecten
zwervende erven
8A Architecten
Toon alles
Andere Projecten
Barendrecht - Zuiderzicht
Schippers Architecten
Veilige daktoegang bij nieuwbouw De Admiraal
Gorter Luiken BV
Bleckmann Venlo
Nolte Mezzanine
Puttershoek - Princessehof
Schippers Architecten
Inspirerende showroom in hartje Rotterdam
De Machinekamer
Gorter luiken voor nieuwbouw AZC Houthaven
Gorter Luiken BV
Rotterdam Airport kiest entreematoplossing emco
EMCO Benelux B.V.
Transformatie met karakter
Rebrick
Performance Factory, Enschede
Swisspearl Nederland
Parel in de polder met Oraé Low-Carbon Glass
Saint-Gobain Glass Benelux
De Kroon in Alphen aan den Rijn
Holonite B.V.
Renovatie met respect voor oorspronkelijke ontwerp
Caparol
Ga naar het projecten-overzicht
Voor een optimale gebruikservaring plaatst Architectenweb functionele cookies. Wat de verschillende cookies precies doen leggen we uit in een
overzicht
. Cookies van social media kun je optioneel
aanzetten
.
Akkoord
Instellingen
Annuleren
OK
Sluiten
Doorgaan
Inloggen
Maak een gratis persoonlijk account aan
Feedback
Feedback
Wij horen graag jouw feedback. Laat je reactie achter en eventueel jouw e-mail adres.
Reactie
Verstuur