Projecten
Producten
Bedrijven
Vacatures
Agenda
Awards
Podcasts
more_horiz
Videos
Magazine
Thema's
Favorieten
Profiel
Uitloggen
Producten
Producttags
AAN
UIT
fietsenstalling
12 april 2010
0
0
0
0
fietsenstalling
De gemeente Nieuwegein schreef eind 2009 een projectprijsvraag uit onder architecten tot en met 35 jaar voor de nieuwbouw van een fietsenstalling. Het ontwerp van 8A Architecten is één van 10 genomineerde ontwerpen.
opgave
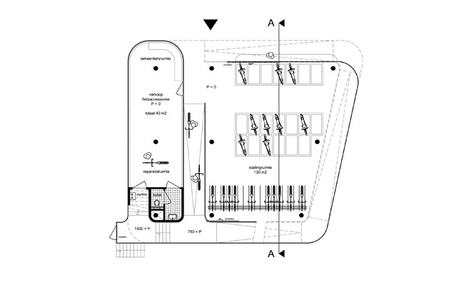
De opgave omvatte het ontwerpen van een permanente bewaakte fietsenstalling op de Ringstede in het centrum van Nieuwegein. De gemeente wil met een nieuwe fietsenstalling in de toekomst een aantrekkelijke entree bieden tot de binnenstad die in sfeer en kwaliteit aansluit bij het vernieuwde stadshart. De gevraagde capaciteit van de fietsenstalling was ca. 400 plekken voor fietsen en 20 plekken voor bromfietsen. Verder moest de fietsenstalling een beheerderruimte krijgen met goed zicht op de fietsen en werd een bouwbudget opgegeven van € 400.000,- (excl. BTW, onvoorzien en fietsenrekken).
ontwerp
Het gebouw van 8A Architecten is ontworpen als een opvallend en expressief gebouw, waarmee een bewust tegenwicht wordt geboden aan de Ringstede dat op dit moment een onaantrekkelijk binnengebied is met alleen maar achterkanten en manoeuvrerende vrachtwagens. Het is ontworpen vanuit de primaire gedachte dat een fietsenstalling zoveel mogelijk fietsen, zo veilig mogelijk moet kunnen stallen. Daarom bestaat de kern van het gebouw uit een zo efficiënt mogelijke stapeling van fietsen over drie bouwlagen, omarmd door een spiraal van hellingbanen die de verdiepingen ontsluit en de fietsen tegelijkertijd beschermen. De hoeken van de hellingbanen zijn afgerond om een vloeiende route te creëren en de richting van de hellingbanen te accentueren. De hellingbanen hebben een kleine hellingshoek waardoor ze comfortabel te gebruiken zijn. Hierdoor ontstaat een heel gebruiksvriendelijk gebouw met een herkenbare expressieve uitstraling van een fietsenstalling.
Het gebouw past zich aan aan zijn omgeving doordat de verzinkt stalen gevel speelt met open en dicht. Het opent zich richting de entree van de Ringstede om de fietsers uit te nodigen en keert zich af tegen de bevoorradingsroute van de HEMA doordat de gevel hier meer gesloten is. De open delen van de gevel laten voldoende licht en lucht het gebouw binnen. Alle stallingruimten in het gebouw zijn daarmee overdekte buitenruimten. De gesloten delen van de gevel geeft het gebouw de benodigde veiligheid. De drie daklichten geven op de 2e verdieping extra licht van boven. ’s Avonds als het gebouw van binnenuit wordt verlicht wordt het verschil tussen open en dicht nog meer zichtbaar.
De route door het gebouw die moet worden afgelegd loopt altijd langs de beheerderruimte en reparatieruimte met verkoop van fietsaccessoires. Deze functies zijn als één grote ruimte ontworpen met op ooghoogte rondom glas. Dit geeft de beheerder maximaal overzicht en controle op wie er binnenkomt of weggaat, en geeft tegelijkertijd een aanloop van mensen aan wie hij zijn diensten en producten kan verkopen. De entree van de fietsenstalling is teruggelegd in de gevel en ligt naast de beheerderruimte aan de doodlopende steeg langs het ING gebouw dat hierdoor de functie van entreegebied krijgt. De sociale- en verkeersveiligheid van de fietsenstalling, maar ook van de Ringstede, wordt hiermee gewaarborgd.
Het gebouw is door zijn aantrekkingskracht een passende entree tot de nieuwe binnenstad en het aangrenzende winkelgebied, en stimuleert hiermee het fietsverkeer van en naar de binnenstad van Nieuwegein.
Stel jezelf kort voor! Dan weet het betreffende bedrijf wie hun model gedownload heeft.
Wil je niet bij elke download jouw gegevens in hoeven voeren?
Klik dan hier om in te loggen
.
Heb je nog geen account?
Maak dan hier een gratis account aan
.
Voornaam
Achternaam
E-mailadres
Downloaden
Wanneer je modellen downloadt op Architectenweb.nl worden relevante gegevens van jou – zoals jouw naam en e-mailadres – met het betreffende bedrijf gedeeld. Meer hierover lees je in ons
privacybeleid
.
Locatie
Trefwoorden
fiets
fietsenstalling
zink
8A Architecten
Neem contact op
Projectdata
Staat van realisatie
Niet van toepassing
Plaats
Nieuwegein
Kosten
400000
Bruto m
2
225
m
3
675
Neem contact op met
8A Architecten
Je bent momenteel niet ingelogd. Hierdoor is het alleen mogelijk om meer informatie per e-mail op te vragen. Wil je liever gebeld worden of documentatie per post ontvangen?
Klik dan hier om in te loggen
.
Heb je nog geen account?
Maak dan hier een gratis account aan
.
Voornaam
Achternaam
E-mailadres
Opmerkingen
Bij iedere aanvraag worden relevante gegevens van jou gedeeld met het betreffende bedrijf. Meer hierover lees je in ons
privacybeleid
.
Ja, denk met me mee rond de
materialisering van mijn project
Meer projecten van 8A Architecten
Tussenwoning met loggia's, Amsterdam IJburg
8A Architecten
Tussenwoning met watervaltrap, Delft
8A Architecten
Uitbouw en interieur tussenwoning, Zeist
8A Architecten
Villa Middenwaard, Amstelveen
8A Architecten
CPO Riethoven Park 16Hoven, Rotterdam
8A Architecten
Vrijstaande stadswoning, Dordrecht
8A Architecten
Kubuswoning, KubusEiland, Utrecht
8A Architecten
CPO van 3 rijwoningen, Nijmegen (Lent)
8A Architecten
Hoekwoning Homeruskwartier, Almere
8A Architecten
Vrijstaande woning met dakterras, Nijmegen (Lent)
8A Architecten
Datcha house 3, Nijmegen (Lent)
8A Architecten
Datcha house 2, Nijmegen (Lent)
8A Architecten
Verbouwing arbeiderswoning tot 'pied a terre'
8A Architecten
Villa 8A
8A Architecten
verbouwing vakantiehuis Bourgogne
8A Architecten
levensloopbestendige woningen
8A Architecten
watersportpaviljoen
8A Architecten
Louwman Groep
8A Architecten
Benetton Group
8A Architecten
zwervende erven
8A Architecten
Tussenwoning met loggia's, Amsterdam IJburg
8A Architecten
Tussenwoning met watervaltrap, Delft
8A Architecten
Uitbouw en interieur tussenwoning, Zeist
8A Architecten
Villa Middenwaard, Amstelveen
8A Architecten
CPO Riethoven Park 16Hoven, Rotterdam
8A Architecten
Vrijstaande stadswoning, Dordrecht
8A Architecten
Kubuswoning, KubusEiland, Utrecht
8A Architecten
CPO van 3 rijwoningen, Nijmegen (Lent)
8A Architecten
Hoekwoning Homeruskwartier, Almere
8A Architecten
Vrijstaande woning met dakterras, Nijmegen (Lent)
8A Architecten
Datcha house 3, Nijmegen (Lent)
8A Architecten
Datcha house 2, Nijmegen (Lent)
8A Architecten
Verbouwing arbeiderswoning tot 'pied a terre'
8A Architecten
Villa 8A
8A Architecten
verbouwing vakantiehuis Bourgogne
8A Architecten
levensloopbestendige woningen
8A Architecten
watersportpaviljoen
8A Architecten
Louwman Groep
8A Architecten
Benetton Group
8A Architecten
zwervende erven
8A Architecten
Toon alles
Andere Projecten
Daglicht als hart van Kubota’s hoofdkantoor
VELUX Commercial Benelux B.V.
NS Amsterdam Zaanstraat
Nolte Mezzanine
RVS staalkabelnetten voor De Amersfoortse Berg
Jansen Staalkabels
Geluidsscherm bij Hotel & Wellness Zuiver te A'dam
Kokosystems B.V.
Brinker, stijlvol comfort met slimme solar screens
SunCircle
Veilige daktoegang in stijlvol hotelconcept
Gorter Luiken BV
Meander Medisch Centrum rekent af met afvalstress
Stansz
Gorter op De Nieuwe Kern
Gorter Luiken BV
Gemeentehuis Krimpenerwaard
Ector Hoogstad Architecten
Matrix VII Life Science Incubator, Amsterdam
Ector Hoogstad Architecten
Het Streek Lyceum, Ede
Ector Hoogstad Architecten
Muziekcentrum Gebr. de Nobel, Leiden
Ector Hoogstad Architecten
Ga naar het projecten-overzicht
Voor een optimale gebruikservaring plaatst Architectenweb functionele cookies. Wat de verschillende cookies precies doen leggen we uit in een
overzicht
. Cookies van social media kun je optioneel
aanzetten
.
Akkoord
Instellingen
Annuleren
OK
Sluiten
Doorgaan
Inloggen
Maak een gratis persoonlijk account aan
Feedback
Feedback
Wij horen graag jouw feedback. Laat je reactie achter en eventueel jouw e-mail adres.
Reactie
Verstuur