Projecten
Producten
Bedrijven
Vacatures
Agenda
Awards
Podcasts
more_horiz
Videos
Magazine
Thema's
Favorieten
Profiel
Uitloggen
Producten
Producttags
AAN
UIT
Verbouwing arbeiderswoning tot 'pied a terre'
19 december 2014
2
0
0
0
Opgave
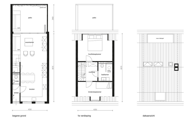
De opgave omvat de transformatie van een arbeiderswoning tot 'pied a terre' in Leiden voor een Nederlands gezin uit Parijs. De opdrachtgevers wilden de relatief kleine woning van 76 m2 zoveel mogelijk ruimte en licht geven.
Ruimte
Om zoveel mogelijk ruimte te creëren is de woning volledig gestript van alle binnenwanden en is een eikenhouten meubel ontworpen waarin verschillende functies zijn geïntegreerd en verborgen voor het oog. Het meubel heeft op de begane grond zowel een entrée, toilet, wasmachine kast, trap en bank in zich, waardoor veel ruimte wordt bespaart en tegelijkertijd als een prominent los element in de woning staat. Het meubel loopt van beneden door naar de 1e verdieping waar de badkamer en de twee slaapkamers zich bevinden.
Licht
Om zoveel mogelijk licht de woning binnen te laten vallen, is in de woonkamer ter breedte van de woning een schuifpui geplaatst. Op de verdieping is in de hoofdslaapkamer een dakkapel aangebracht en in de overloop twee dakramen in de nok die licht geven van boven. Al deze openingen zitten aan de achterkant van de woning en hebben het mogelijk gemaakt om de voorgevel van de woning in zijn originele staat terug te kunnen brengen. Hierdoor wordt bij binnenkomst pas duidelijk wat voor andere wereld er achter de originele gevel schuil gaat.
Stel jezelf kort voor! Dan weet het betreffende bedrijf wie hun model gedownload heeft.
Wil je niet bij elke download jouw gegevens in hoeven voeren?
Klik dan hier om in te loggen
.
Heb je nog geen account?
Maak dan hier een gratis account aan
.
Voornaam
Achternaam
E-mailadres
Downloaden
Wanneer je modellen downloadt op Architectenweb.nl worden relevante gegevens van jou – zoals jouw naam en e-mailadres – met het betreffende bedrijf gedeeld. Meer hierover lees je in ons
privacybeleid
.
Locatie
Trefwoorden
arbeiderswoning
verbouwing
8A Architecten
Neem contact op
Projectdata
Staat van realisatie
Voltooid
Start bouw
2013
Plaats
Leiden
Bruto m
2
76
Neem contact op met
8A Architecten
Je bent momenteel niet ingelogd. Hierdoor is het alleen mogelijk om meer informatie per e-mail op te vragen. Wil je liever gebeld worden of documentatie per post ontvangen?
Klik dan hier om in te loggen
.
Heb je nog geen account?
Maak dan hier een gratis account aan
.
Voornaam
Achternaam
E-mailadres
Opmerkingen
Bij iedere aanvraag worden relevante gegevens van jou gedeeld met het betreffende bedrijf. Meer hierover lees je in ons
privacybeleid
.
Ja, denk met me mee rond de
materialisering van mijn project
Meer projecten van 8A Architecten
Tussenwoning met loggia's, Amsterdam IJburg
8A Architecten
Tussenwoning met watervaltrap, Delft
8A Architecten
Uitbouw en interieur tussenwoning, Zeist
8A Architecten
Villa Middenwaard, Amstelveen
8A Architecten
CPO Riethoven Park 16Hoven, Rotterdam
8A Architecten
Vrijstaande stadswoning, Dordrecht
8A Architecten
Kubuswoning, KubusEiland, Utrecht
8A Architecten
CPO van 3 rijwoningen, Nijmegen (Lent)
8A Architecten
Hoekwoning Homeruskwartier, Almere
8A Architecten
Vrijstaande woning met dakterras, Nijmegen (Lent)
8A Architecten
Datcha house 3, Nijmegen (Lent)
8A Architecten
Datcha house 2, Nijmegen (Lent)
8A Architecten
Villa 8A
8A Architecten
verbouwing vakantiehuis Bourgogne
8A Architecten
levensloopbestendige woningen
8A Architecten
watersportpaviljoen
8A Architecten
fietsenstalling
8A Architecten
Louwman Groep
8A Architecten
Benetton Group
8A Architecten
zwervende erven
8A Architecten
Tussenwoning met loggia's, Amsterdam IJburg
8A Architecten
Tussenwoning met watervaltrap, Delft
8A Architecten
Uitbouw en interieur tussenwoning, Zeist
8A Architecten
Villa Middenwaard, Amstelveen
8A Architecten
CPO Riethoven Park 16Hoven, Rotterdam
8A Architecten
Vrijstaande stadswoning, Dordrecht
8A Architecten
Kubuswoning, KubusEiland, Utrecht
8A Architecten
CPO van 3 rijwoningen, Nijmegen (Lent)
8A Architecten
Hoekwoning Homeruskwartier, Almere
8A Architecten
Vrijstaande woning met dakterras, Nijmegen (Lent)
8A Architecten
Datcha house 3, Nijmegen (Lent)
8A Architecten
Datcha house 2, Nijmegen (Lent)
8A Architecten
Villa 8A
8A Architecten
verbouwing vakantiehuis Bourgogne
8A Architecten
levensloopbestendige woningen
8A Architecten
watersportpaviljoen
8A Architecten
fietsenstalling
8A Architecten
Louwman Groep
8A Architecten
Benetton Group
8A Architecten
zwervende erven
8A Architecten
Toon alles
Andere Projecten
Het Streek Lyceum, Ede
Ector Hoogstad Architecten
Muziekcentrum Gebr. de Nobel, Leiden
Ector Hoogstad Architecten
Gemeentehuis Krimpenerwaard
Ector Hoogstad Architecten
Matrix VII Life Science Incubator, Amsterdam
Ector Hoogstad Architecten
Annie M.G. Schmidtschool, Den Haag
Ector Hoogstad Architecten
Center Court, Geleen
Ector Hoogstad Architecten
Renovatie Luxor Theater met Swisspearl Zenor
Swisspearl Nederland
Boterhalle – akoestiek en duurzaamheid in balans
Merford
Renovatie Gemeentehuis Rheden
Hunter Douglas Architectural
Accoya voor iconisch NEMO-dakterras
Accoya
Theater aan de Parade
Espero B.V.
Verbinding in MFA De Trochset te Jistrum
Troldtekt Benelux
Ga naar het projecten-overzicht
Voor een optimale gebruikservaring plaatst Architectenweb functionele cookies. Wat de verschillende cookies precies doen leggen we uit in een
overzicht
. Cookies van social media kun je optioneel
aanzetten
.
Akkoord
Instellingen
Annuleren
OK
Sluiten
Doorgaan
Inloggen
Maak een gratis persoonlijk account aan
Feedback
Feedback
Wij horen graag jouw feedback. Laat je reactie achter en eventueel jouw e-mail adres.
Reactie
Verstuur