Projecten
Producten
Bedrijven
Vacatures
Agenda
Awards
Podcasts
more_horiz
Videos
Magazine
Favorieten
Profiel
Uitloggen
Abonneer je nu op onze nieuwsbrieven!
Abonneren
Nee, bedankt
Ja, denk met me mee rond de
materialisering van mijn project
Copyright: Sebastian van Damme
Copyright: Sebastian van Damme
Copyright: Sebastian van Damme
Copyright: Sebastian van Damme
Copyright: Sebastian van Damme
Copyright: Sebastian van Damme
Copyright: Sebastian van Damme
Copyright: Sebastian van Damme
Copyright: Sebastian van Damme
Copyright: Sebastian van Damme
Copyright: Sebastian van Damme
Copyright: Sebastian van Damme
Copyright: Sebastian van Damme
Copyright: Sebastian van Damme
Copyright: Sebastian van Damme
Situatie
Copyright: GROUP A
Voor
Copyright: GROUP A
Na
Copyright: GROUP A
Concept plein
Copyright: GROUP A
Concept daglicht en markering entree
Copyright: GROUP A
Concept extra verdieping
Copyright: GROUP A
Doorsnede met trappartij in plint
Copyright: GROUP A
Doorsnede trap
Copyright: GROUP A
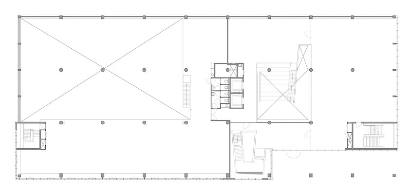
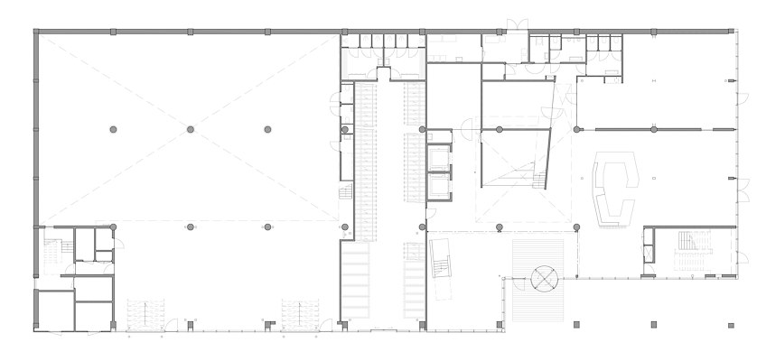
Begane grond
Copyright: GROUP A
Verdieping
Copyright: GROUP A
Het pand voor de verbouwing
Copyright: GROUP A
Het pand tijdens de verbouwing
Copyright: GROUP A
Voormalig hoofdkantoor Ferro in M4H verbouwd tot bedrijfsverzamelgebouw
15 april, 11:01
In het Merwe-Vierhavensgebied (M4H) in Rotterdam is Ferro Offices opgeleverd. Naar ontwerp van
GROUP A
werd het voormalige hoofdkantoor van chemiebedrijf Ferro verbouwd tot een bedrijfsverzamelgebouw voor jonge (maritieme) maakbedrijven, die zich bezighouden met energietransitie, mobiliteit en circulariteit.
Daarbij is net uit 1969 stammende pand tot op het casco gestript en opnieuw opgebouwd. Door de bestaande structuur te behouden, is ongeveer 75 procent minder CO2 uitgestoten in vergelijking met volledige nieuwbouw, stelt GROUP A. Meest zichtbare ingreep is de nieuwe gevel, die bestaat uit houten lamellen en glas.
Karakteristieke elementen uit het oorspronkelijke gebouw zijn behouden en gerestaureerd, waaronder glazen bouwstenen in de gevel en de monumentale natuurstenen trap met houten leuningen. Dankzij de draagkracht van de bestaande constructie kon een extra verdieping worden toegevoegd boven op het bestaande volume, zonder ingrijpende,
materiaalintensieve
aanpassingen. De zuidgevel is teruggelegd waardoor terrassen op de kantoorvloeren ontstaan die buitenruimte en natuurlijke zonwering bieden.
Een ruim collectief gebied vormt het hart van het kantoorgebouw. Door het gebouw van binnenuit te openen creëert Group A een atrium dat daglicht tot diep in het gebouw brengt en de entree accentueert. Entree en vide bevinden zich direct bij de teruggelegde gevel. Het entreegebied biedt ruimte voor programmering met een houten tribunetrap en koffie- en lunchbar. In het atrium verbindt een sculpturale trap de flexibel opgezette kantoorvloeren.
Het gebouw is volledig gasloos, voorzien van zonnepanelen, voldoet aan de BENG-normen, heeft energielabel A++++ en is gelabeld als BREEAM-NL Outstanding. GROUP A maakte het ontwerp in opdracht van het Havenbedrijf Rotterdam.
Trefwoorden
rotterdam
merwe-vierhavens
m4h
group a
bedrijfsverzamelgebouw
verbouwing
Locatie
Best gelezen
1
Jaarboek Architectuur in Nederland 2025/2026 gepresenteerd
donderdag, 7 mei
2
Kunsthal BRUSK in Brugge opent officieel zijn deuren
vrijdag, 8 mei
3
Neprom-prijs 2026 toegekend aan De Groene Loper Maastricht
maandag, 11 mei
4
Woningbouwproject Switi trekt 'verloren strook' alsnog bij de omgeving
maandag, 11 mei
5
Vandersalm Architecten herinterpreteert historisch erf bij Zwolse stadsboerderij
maandag, 11 mei
Gerelateerde nieuwsberichten
Herbestemming Ferro-kantoor in M4H Rotterdam gestart
9 april 2024
Wat valt er te leren van Ministerie van Maak?
1 november 2022
'Materialenwerf' in M4H vormt festivalhart Rotterdam Architectuur Maand
31 maart
Nominaties Rotterdam Architectuurprijs 2026 bekend
20 april
Groen licht voor transformatie van historische Citrusveiling in M4H naar ontwerp van Nudus
30 januari
Gebiedsambitiedocument voor Rotterdamse wijk Keilekwartier vastgesteld
22 januari
MoederscheimMoonen Architects ontwerpt eigen kantoor in historische vertrekhal Oranjelijn Rotterdam
19 november 2025
Eb en vloed bepalen het formaat van Getijdenpark Keilehaven
19 augustus 2024
Herbestemming Ferro-kantoor in M4H Rotterdam gestart
9 april 2024
Wat valt er te leren van Ministerie van Maak?
1 november 2022
'Materialenwerf' in M4H vormt festivalhart Rotterdam Architectuur Maand
31 maart
Nominaties Rotterdam Architectuurprijs 2026 bekend
20 april
Groen licht voor transformatie van historische Citrusveiling in M4H naar ontwerp van Nudus
30 januari
Gebiedsambitiedocument voor Rotterdamse wijk Keilekwartier vastgesteld
22 januari
MoederscheimMoonen Architects ontwerpt eigen kantoor in historische vertrekhal Oranjelijn Rotterdam
19 november 2025
Eb en vloed bepalen het formaat van Getijdenpark Keilehaven
19 augustus 2024
Toon alles
Andere nieuwsberichten
Vijf finalisten voor Heuvelinkprijs 2026
3 uur geleden
De finalisten voor de Heuvelinkprijs 2026 zijn bekend. Vijf projecten komen in aanmerking voor deze editie van de tweejaarlijkse Arnhemse nieuwbouwprijs.
Parkeerplein naast Tilburgse schouwburg maakt plaats voor multifunctionele gebouwen
Vandaag, 11:57
Een samenwerkingsverband van HilberinkBosch architecten, Werkstatt en Orange Architects heeft de architectenselectie voor de herontwikkeling van het Louis Bouwmeesterplein in Tilburg gewonnen.
'Zwevend huis' naar ontwerp van Benthem Crouwel in Amersfoortse wijk
Vandaag, 10:54
De woning bestaat uit een open plint met daarbovenop een gesloten volume met een leisteengevel, dat reageert op de traditionele zadeldaken in de buurt.
Nog drie dagen om jouw suggestie voor de Architect van het Jaar 2026 in te sturen
Vandaag, 09:00
Welke architect, of collectief van architecten, heeft dit jaar de grootste bijdrage geleverd aan de ontwikkeling van de architectuur in Nederland? Stuur jouw suggestie uiterlijk 15 mei 2026 op naar Architectenweb.
Consortium met RxDomi en TU/e ontwikkelt netbewuste woning
3 uur geleden
In het project CoLiBRIE ontwikkelt een consortium, met onder meer RxDomi en TU/e, een nieuw type woning die comfortabel, duurzaam en betaalbaar is, zonder het energienet extra te belasten.
Minimaal half miljard extra nodig voor verbreding A27
4 uur geleden
Op het traject van 47 kilometer moeten extra rijbanen komen om de dagelijkse files te verlichten. Ook worden bruggen vervangen.
RVO constateert laagste groei windenergie op land in jaren
Vandaag, 10:02
De uitbreiding van windenergie op land in Nederland is op een historisch laag niveau.
Alsemgeest Design & Build en Ferm Architecten gaan verder als één bureau
Gisteren, 13:42
De bureaus blijven voorlopig naast elkaar bestaan, waarbij Nico Alsemgeest (68) zich langzaam zal terugtrekken.
Onderzoek: Nederlander wil verduurzamen, maar vindt het duur
Gisteren, 12:26
Een kleine meerderheid van de Nederlanders wil graag verduurzamen, maar bij een groot gedeelte komt het daar niet van.
Geld voor eigen sociale initiatieven bewoners aardbevingsgebied
Gisteren, 10:33
het geld komt uit het potje van ‘Nij Begun’, het grootschalige programma van het Rijk om de economie en sociale ontwikkeling in het noorden te verbeteren.
Ga naar het nieuws-archief
1
0
0
0
Voor een optimale gebruikservaring plaatst Architectenweb functionele cookies. Wat de verschillende cookies precies doen leggen we uit in een
overzicht
. Cookies van social media kun je optioneel
aanzetten
.
Akkoord
Instellingen
Annuleren
OK
Sluiten
Doorgaan
Inloggen
Maak een gratis persoonlijk account aan
Feedback
Feedback
Wij horen graag jouw feedback. Laat je reactie achter en eventueel jouw e-mail adres.
Reactie
Verstuur