Projecten
Producten
Bedrijven
Vacatures
Agenda
Awards
Podcasts
more_horiz
Videos
Magazine
Favorieten
Profiel
Uitloggen
Abonneer je nu op onze nieuwsbrieven!
Abonneren
Nee, bedankt
Ja, denk met me mee rond de
materialisering van mijn project
Citrusveiling, Rotterdam, Nudus
Copyright: Nudus
Citrusveiling, Rotterdam, oorspronkelijk gebouw
Copyright: Piet Rook
Citrusveiling, Rotterdam, Nudus
Copyright: Nudus
Citrusveiling, Rotterdam, Nudus
Copyright: Nudus
Citrusveiling, Rotterdam, Nudus, maquette
Copyright: Nudus
Citrusveiling, Rotterdam, Nudus, axonometrie
Copyright: Nudus
Citrusveiling, Rotterdam, Nudus
Copyright: Nudus
Citrusveiling, Rotterdam, Nudus
Copyright: Nudus
Citrusveiling, Rotterdam, Nudus
Copyright: Nudus
Citrusveiling, Rotterdam, Nudus
Copyright: Nudus
Groen licht voor transformatie van historische Citrusveiling in M4H naar ontwerp van Nudus
30 januari, 9:15
De transformatie van de monumentale
Citrusveiling
in de Rotterdamse
Merwe-Vierhavens (M4H)
is officieel van start gegaan.
Nudus
maakte het ontwerp dat voorziet in nieuwe bestemming als verzamelgebouw voor start-ups, innovatieve ondernemers en creatieve makers.
Fruithaven
Het
bestaande gebouw
werd tussen 1951 en 1955 ontworpen door Hugh Maaskant en Bert van Dommelen. Sinds 2010 staat het te boek als rijksmonument. De oorspronkelijke functie als fruitveiling herinnert aan een eerdere glorietijd van het Merwe-Vierhavensgebied (M4H) als een grote fruithaven met een internationale betekenis. In het gebied werd lange tijd fruit verscheept, opgeslagen en dus ook geveild. Het gebouw dat Maaskant en Van Dommelen ontwierpen moest destijds een verdere versterking en groei van de haven en van ondernemers op dit gebied bestendigen. De nieuwe betekenis als verzamelgebouw voor een andere generatie ondernemers komt met veel historisch gevoel voor understatement in de naam Citrus Club tot uitdrukking.
Activering
Met de herontwikkeling van het complex wordt een nieuw hoofdstuk aan de voorafgaande havengeschiedenis toegevoegd. De transformatie kan tevens gezien worden als een verdere impuls voor de ontwikkeling en groei van het
Rotterdam Makers District
. Het gebouw transformeert en de omgeving wordt verder geactiveerd.
Nudus geeft aan dat het zich bij de eerste van drie ontwikkelingsfases zal richten op de herbestemming van de voormalige koelloodsen. Daarbij werkt het bureau, onder meer, samen met
Berns Architectuur
. De gesloten, industriële ruimtes zullen daarbij veranderen in ruimtes die uitnodigende werkplekken bieden aan start-ups, innovatieve ondernemers en creatieve makers.
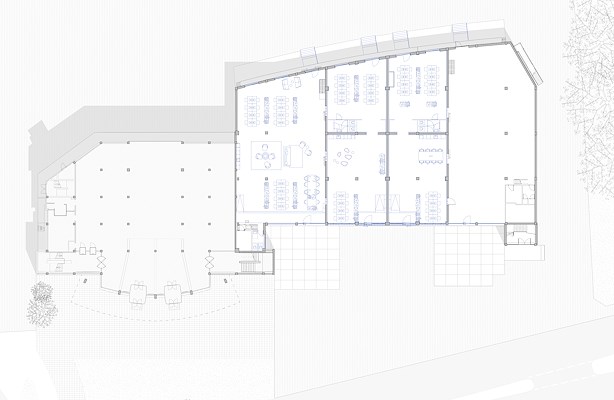
Twee delen
Het complex van Maaskant en van Dommelen bestaat grofweg uit twee gebouwtypologieën: koelloodsen en een veilinggebouw. De koelloodsen zijn ontworpen en gebouwd als functionele en donkere ruimtes met een uitgesproken constructief karakter en een sobere afwerking. Hier werd in het verleden het fruit opgeslagen. Het veilinggebouw met veilingzaal (met ruimte voor 400 fruithandelaren) had een meer publieke, open betekenis en uitstraling. De naar voren stekende, halfronde bakstenen gevel, alsmede de uitstekende raampartijen en glazen trappenhuizen symboliseren dat.
Voortbouwen
Nudus geeft aan dat aan het ontwerp voor de transformatie een analyse van Maaskants ontwerptaal voorafging. Daarbij werden het kenmerkende spel van open en gesloten volumes, robuuste materialiteit en heldere structuur als aanknopingspunten benoemd. Nudus zocht vervolgens naar manieren om binnen de logica van het oorspronkelijke ontwerp meer daglicht toe te laten. Maar dat zonder de balans in de gevelcompositie te verstoren.
Het ontwerp voor de zuidgevel is opgebouwd uit twee delen. In de middelste beuken worden de bestaande bakstenen hergebruikt in een nieuwe open baksteencompositie. Zes stenen vormen samen een carrémodule van 43 x 33cm. Die modules worden vervolgens gestapeld. Deze ingreep brengt, volgens de architecten, veel daglicht binnen in de werkruimtes en zorgt tegelijkertijd voor natuurlijke zonwering aan de zuidgevel.
De buitenste beuken aan weerszijde van het baksteenwerk zijn uitgewerkt als open vlakken. Hier waren voorheen grote schuifdeuren geplaatst waardoor vrachtwagens het gebouw in en uit konden rijden. De nieuwe, open vlakken zullen een venster op het nieuwe gebruik van het gebouw gaan vormen. De twee vlakken hebben een horizontale vlakverdeling die samenwerkt met de gevelindeling van de bovenliggende verdieping. De inpassing van de postkasten en de deuren is met veel aandacht en in lijn met de gevel van het veilingdeel door de architecten uitgewerkt. De betonnen kolommen en balken én de bakstenen wanden vormen in de loodsen de basis van een lichte, open werkomgeving.
Gelaagd antwoord
Nudus wil met deze aanpassingen aan en ingrepen in het bestaande gebouw een zorgvuldig en gelaagde reactie geven op zowel het gebouwde erfgoed als de nieuwe functies.Het denkt zo de oorspronkelijke compositie te versterken en nieuw gebruik mogelijk te maken zonder de eerste platweg te kopiëren. De toekomstige Citrus Club zal blijvend rationeel en zakelijk van opzet zijn, maar ook een expressieve en bijzondere uitstraling krijgen.
Stappen
De transformatie van de Citrusveiling verloopt gefaseerd. De nu te zetten eerste stap vormt een opmaat naar een bredere ontwikkeling waarin de Citrus Club moet gaan uitgroeien tot een dynamische ontmoetingsplek met ruimte voor werken, cultuur en publiek programma. Daarmee wordt gehoopt dat het gebouw een centrale rol krijgt in het nieuwe makers district. Naast een herinnering aan een specifiek deel van de havengeschiedenis kunnen de plek en het gebouw een aanjager worden voor een nieuwe duurzame toekomst van M4H, menen de betrokken partijen.
Trefwoorden
rotterdam
m4h
nudus
transformatie
hugh maaskant
merwe-vierhavens
rotterdam makers district
verzamelgebouw
Locatie
Best gelezen
1
44 woningen op bosrijke locatie in Driebergen
vrijdag, 15 mei
2
AM en Amvest zoeken architecten voor herontwikkeling Draka-terrein
dinsdag, 19 mei
3
Woningbouwproject KAAP langs het IJ in Amsterdam voltooid
dinsdag, 19 mei
4
Tien nominaties voor NRP Gulden Feniks 2026
vrijdag, 15 mei
5
Dam & Partners ontwerpt multifunctioneel gebouw in Schinkelhaven
dinsdag, 19 mei
Gerelateerde nieuwsberichten
'Materialenwerf' in M4H vormt festivalhart Rotterdam Architectuur Maand
31 maart
Nudus en Proof of the sum geselecteerd voor groot laboratoriumgebouw Groningen
1 oktober 2025
Nudus, Bedaux de Brouwer en Stramien winnen tender voor sluitstuk Spoorzone Tilburg
23 augustus 2025
Circulaire renovatie Paleis van Justitie in Den Haag: ‘Hier worden bakens verzet’
2 april
Nudus en Sweco Architects presenteren stedenbouwkundig ontwerp voor mogelijke nieuwe campus ASML
16 mei 2025
Voormalig hoofdkantoor Ferro in M4H verbouwd tot bedrijfsverzamelgebouw
15 april
Nudus presenteert ontwerp Matrix Innovation Center op Zuidas
13 november 2024
Realisatie omvangrijk houten gebouw van Nudus voor Havenbedrijf Rotterdam stap dichterbij
20 november 2024
Rotterdam wil 2.500 woningen en andere functies in Merwehaven
24 mei 2023
Gebiedsambitiedocument voor Rotterdamse wijk Keilekwartier vastgesteld
22 januari
Eb en vloed bepalen het formaat van Getijdenpark Keilehaven
19 augustus 2024
Fruitloodsen M4H verbouwd tot onderkomen brouwerij en maakindustrie
8 september 2021
'Materialenwerf' in M4H vormt festivalhart Rotterdam Architectuur Maand
31 maart
Nudus en Proof of the sum geselecteerd voor groot laboratoriumgebouw Groningen
1 oktober 2025
Nudus, Bedaux de Brouwer en Stramien winnen tender voor sluitstuk Spoorzone Tilburg
23 augustus 2025
Circulaire renovatie Paleis van Justitie in Den Haag: ‘Hier worden bakens verzet’
2 april
Nudus en Sweco Architects presenteren stedenbouwkundig ontwerp voor mogelijke nieuwe campus ASML
16 mei 2025
Voormalig hoofdkantoor Ferro in M4H verbouwd tot bedrijfsverzamelgebouw
15 april
Nudus presenteert ontwerp Matrix Innovation Center op Zuidas
13 november 2024
Realisatie omvangrijk houten gebouw van Nudus voor Havenbedrijf Rotterdam stap dichterbij
20 november 2024
Rotterdam wil 2.500 woningen en andere functies in Merwehaven
24 mei 2023
Gebiedsambitiedocument voor Rotterdamse wijk Keilekwartier vastgesteld
22 januari
Eb en vloed bepalen het formaat van Getijdenpark Keilehaven
19 augustus 2024
Fruitloodsen M4H verbouwd tot onderkomen brouwerij en maakindustrie
8 september 2021
Toon alles
Andere nieuwsberichten
Interdisciplinair team met OMA en OKRA presenteert visie op evolutie van Rome
Vandaag, 16:32
De stedelijke visie Roma Continua bouwt voort op de essentie en sterke punten van de eeuwenoude stad.
Renovatie station Leeuwarden door Movares afgerond
Vandaag, 11:58
Eind vorig jaar is de vernieuwing van station Leeuwarden afgerond. Zowel de gevel als de vloer van het stationsgebouw als de eveneens monumentale perronkappen zijn gerenoveerd.
Publicatie memoreert en actualiseert gedachtegoed Michael van der Vlis
Vandaag, 09:22
Tim Verlaan en Petra Brouwer schetsen de opkomst van een gemengd, democratisch en dichtbebouwd Amsterdam aan de hand van het denken en doen van de voormalige wethouder.
Woningbouwproject KAAP langs het IJ in Amsterdam voltooid
Gisteren, 14:39
Langs het IJ zijn vijf woongebouwen met in totaal zeventig appartementen, commerciële ruimten op de begane grond en een circulair horecapaviljoen gerealiseerd.
Binnenhof al bij voorbaat te klein voor alle organisaties
Vandaag, 14:47
Nog voordat de verbouwing van het Binnenhof klaar is, is het complex te klein voor alle organisaties die erin moeten.
Inschrijving Stadsbouwprijs Amersfoort 2026 gestart
Vandaag, 13:29
Tot en met dinsdag 30 juni 18.00 uur kunnen projecten worden aangeleverd die in de afgelopen twee jaar binnen de gemeentegrenzen van de Keistad zijn gerealiseerd.
Drents stikstofplan om vergunningverlening vlot te trekken
Vandaag, 10:43
Drenthe denkt in het najaar van 2027 weer te kunnen beginnen met het verlenen van vergunningen voor zaken als woningbouw.
TNO ontwikkelt technologie voor recycling zonnepanelen
Gisteren, 15:32
Volgens het onderzoeksbureau kunnen zonnepanelen met de technologie efficiënt en energiezuinig worden ontmanteld en kan meer dan 99 procent van het gebruikte zilver en hoogzuiver silicium worden teruggewonnen.
Bouwconcerns renoveren Drechttunnel voor 233 miljoen euro
Gisteren, 13:47
Bouwconcerns Heijmans en Dura Vermeer en technisch dienstverlener SPIE gaan aan de slag met de renovatie en het onderhoud van de Drechttunnel van snelweg A16.
Ondernemers vragen kabinet om crisisaanpak netcongestie
Gisteren, 11:33
Ondernemersorganisaties roepen het kabinet op netcongestie als een nationale crisis te behandelen.
Ga naar het nieuws-archief
JaapJan Berg
Redacteur
0
0
0
0
Voor een optimale gebruikservaring plaatst Architectenweb functionele cookies. Wat de verschillende cookies precies doen leggen we uit in een
overzicht
. Cookies van social media kun je optioneel
aanzetten
.
Akkoord
Instellingen
Annuleren
OK
Sluiten
Doorgaan
Inloggen
Maak een gratis persoonlijk account aan
Feedback
Feedback
Wij horen graag jouw feedback. Laat je reactie achter en eventueel jouw e-mail adres.
Reactie
Verstuur