Projecten
Producten
Bedrijven
Vacatures
Agenda
Awards
Podcasts
more_horiz
Videos
Magazine
Favorieten
Profiel
Uitloggen
Abonneer je nu op onze nieuwsbrieven!
Abonneren
Nee, bedankt
Ja, denk met me mee rond de
materialisering van mijn project
Copyright: Sebastian van Damme
Copyright: Sebastian van Damme
Copyright: Sebastian van Damme
Copyright: Sebastian van Damme
Copyright: Sebastian van Damme
Copyright: Sebastian van Damme
Copyright: Sebastian van Damme
Copyright: Sebastian van Damme
Copyright: Sebastian van Damme
Copyright: Sebastian van Damme
Copyright: Sebastian van Damme
Copyright: Sebastian van Damme
Copyright: Sebastian van Damme
Copyright: Sebastian van Damme
Copyright: Sebastian van Damme
Copyright: Sebastian van Damme
Copyright: Sebastian van Damme
Copyright: Sebastian van Damme
Copyright: Sebastian van Damme
Copyright: Sebastian van Damme
Copyright: Studioninedots
Copyright: Studioninedots
Copyright: Studioninedots
Copyright: Studioninedots
Copyright: Studioninedots
Copyright: Studioninedots
Copyright: Studioninedots
Copyright: Studioninedots
Copyright: Studioninedots
Copyright: Studioninedots
Copyright: Studioninedots
Copyright: Studioninedots
Copyright: Studioninedots
Copyright: Studioninedots
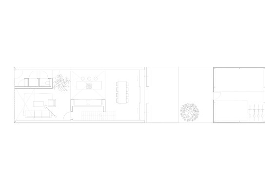
Studioninedots ontwerpt zelfbouwwoning als landschap van gestapelde doosjes
25 maart, 10:44
Op het Centrumeiland in Amsterdam heeft
Studioninedots
een woonhuis voor een stel met twee kinderen ontworpen. Light House oogt als een strak volume, maar aan de binnenzijde is een speels landschap van gestapelde doosjes gerealiseerd. De verschillende functies zijn in deze volumes over het gehele huis verspreid.
De opdrachtgevers hebben Studioninedots benaderd met een simpel maar groot verzoek: ontwerp een huis dat draait om verbinding - tussen henzelf en met hun kinderen en tegelijkertijd met de omgeving. Vanuit deze ambitie kreeg het architectenbureau vrijwel volledig carte blanche voor het ontwerp van de zelfbouwwoning.
Binnen het grotendeels verticale volume ontwierp Studioninedots een landschap van gestapelde volumes. Waar in een traditioneel huis veel functies op de begane grond worden samengebracht, is in Light House elke belangrijke activiteit van het gezin, zoals eten, samenkomen met vrienden of ontspannen, in een eigen ‘doosje’ ondergebracht.
De indeling is ontworpen om mee te groeien met het gezin. De doosjes zijn bedoeld om de centrale activiteiten slimmer door het huis te verspreiden, terwijl ze tegelijkertijd ruimte laten voor nieuwe interpretaties in de toekomst, meldt Studioninedots.
Vakantiehuis
Recht boven de keuken, het hart van Light House, zweeft een beschut volume waar de bewoners rustig kunnen lezen, yoga doen, een film kijken of ontspannen. Veertien meter hoger bevindt zich het uitbundiger ontworpen ‘vakantiehuis’, als de bijzondere plek waar het gezin bij elkaar kan komen. Deze hoge ruimte heeft aan weerszijden plafondhoge, boogvormige ramen en ligt aan een buitenterras met uitzicht over het IJmeer.
De onderste helft van het huis ligt achter een muur van vierkante glasblokken. De blokken laten daglicht diep het huis binnenvallen en vervormen tegelijkertijd het zicht, zodat het leven binnen vanaf de straat waarneembaar is, maar op zo’n abstracte manier dat de bewoners hun gevoel van geborgenheid behouden
Dit ritme van vierkanten komt terug in de stalen persroosterelementen langs de achtergevel, wat het huis een heldere en samenhangende identiteit geeft. Industriële materialen in verschillende grijstinten - ruw, reflecterend of doorschijnend - zorgen voor een spel van texturen en geven het exterieur een abstract, steeds veranderend karakter, wanneer het zonlicht er overdag telkens anders op valt.
Lichtgewicht systeem
Light House is gebouwd als een lichtgewicht systeem, met een stalen frame dat is ingevuld met prefab houten elementen. Deze opzet biedt flexibiliteit en maakt demontage eenvoudig, meldt Studioninedots. Net als bij alle kavels op Centrumeiland wordt het water in Light House op eigen terrein beheerd, in lijn met de duurzaamheidsambities van het eiland.
Trefwoorden
zelfbouw
amsterdam
woonhuis
centrumeiland
ijburg
studioninedots
Locatie
Best gelezen
1
Symposium rond het ontwerp van scholen – standaardisatie versus maatwerk
woensdag, 6 mei
2
Woonhuis met groen geglazuurde gevelstenen voor Buiksloterham
woensdag, 6 mei
3
Jaarboek Architectuur in Nederland 2025/2026 gepresenteerd
donderdag, 7 mei
4
Amsterdam schrijft eerste tender uit voor gebouw Weespertrekvaart-Oost
woensdag, 6 mei
5
Kunsthal BRUSK in Brugge opent officieel zijn deuren
vrijdag, 8 mei
Gerelateerde nieuwsberichten
Studioninedots – Albert Herder vertrekt, Wouter Hermanns en Stijn de Jongh treden toe
15 april
AG NOVA ontwerpt woon-zorggebouw voor kwetsbare ouderen op Centrumeiland
18 februari
Space&Matter, Common City en Zenzo winnen tender voor een van de laatste kavels van Centrumeiland in Amsterdam
16 januari
De Warren ontvangt Ammodo Architecture Award
22 november 2024
Eerste Mooijburg-complex op Centrumeiland Amsterdam opgeleverd
17 juni 2024
Woongebouw voor zelfbouwcollectief wij_land op Centrumeiland klaar
15 december 2023
Compact woongebouw voor een kleine bouwgroep op Centrumeiland
22 augustus 2023
Grotendeels houten entreegebouw Centrumeiland officieel geopend
20 april 2023
Bijzonder hoge woonkeuken als centrale leefruimte
13 februari 2023
Architectenweb symposium: ontwerpen van autovrije buurten
25 maart
Octavia Hill is een gebouw met verschillende verschijningsvormen
28 januari
Nieuwe gebouwen zorgen voor 1.100 woningen in Pompenburg Rotterdam
11 december 2025
Studioninedots en Felixx presenteren ontwerp transformatie voormalige Niemeyerfabriek
10 december 2025
Studioninedots deelt nieuwe beelden van project Spark op Smakkelaarsveld in Utrecht
24 november 2025
Studioninedots – Albert Herder vertrekt, Wouter Hermanns en Stijn de Jongh treden toe
15 april
AG NOVA ontwerpt woon-zorggebouw voor kwetsbare ouderen op Centrumeiland
18 februari
Space&Matter, Common City en Zenzo winnen tender voor een van de laatste kavels van Centrumeiland in Amsterdam
16 januari
De Warren ontvangt Ammodo Architecture Award
22 november 2024
Eerste Mooijburg-complex op Centrumeiland Amsterdam opgeleverd
17 juni 2024
Woongebouw voor zelfbouwcollectief wij_land op Centrumeiland klaar
15 december 2023
Compact woongebouw voor een kleine bouwgroep op Centrumeiland
22 augustus 2023
Grotendeels houten entreegebouw Centrumeiland officieel geopend
20 april 2023
Bijzonder hoge woonkeuken als centrale leefruimte
13 februari 2023
Architectenweb symposium: ontwerpen van autovrije buurten
25 maart
Octavia Hill is een gebouw met verschillende verschijningsvormen
28 januari
Nieuwe gebouwen zorgen voor 1.100 woningen in Pompenburg Rotterdam
11 december 2025
Studioninedots en Felixx presenteren ontwerp transformatie voormalige Niemeyerfabriek
10 december 2025
Studioninedots deelt nieuwe beelden van project Spark op Smakkelaarsveld in Utrecht
24 november 2025
Toon alles
Andere nieuwsberichten
Van Eesteren Museum organiseert expositie over architect Afaina de Jong
Vandaag, 15:24
Vanaf 29 mei presenteert het Van Eesteren Museum in Amsterdam de eerste retrospectieve tentoonstelling van architect, ontwerper en onderzoeker Afaina de Jong.
Schoonhovens College van Geurst & Schulze architecten stimuleert vakmanschap, ontmoeting en leerprestaties
Vandaag, 14:29
Het nieuwe Schoonhovens College en de sporthal De Meent die Geurst & Schulze architecten in Schoonhoven ontwierpen bundelen voorzieningen voor beroepsonderwijs en sport.
LED-gevel winkelpand knipoogt naar Rietveld-façade Bioscoop Vreeburg
Vandaag, 11:35
Op het Vredenburg in Utrecht heeft Heyligers architects de gevel van een winkel- en kantoorpand gerenoveerd. In het ontwerp heeft het bureau de uitstraling van de door Gerrit Rietveld ontworpen gevel voor de toenmalige bioscoop willen benaderen.
Zijn tenders in Duitsland beter geregeld dan in Nederland?
Vandaag, 09:00
Met zijn team werkte architect Alexander Pols afgelopen periode aan een ontwerp voor een architectenselectie in Berlijn. Gezien de aanhoudende discussie over de tendercultuur in Nederland... is het bij onze oosterburen beter geregeld?
Alsemgeest Design & Build en Ferm Architecten gaan verder als één bureau
Vandaag, 13:42
De bureaus blijven voorlopig naast elkaar bestaan, waarbij Nico Alsemgeest (68) zich langzaam zal terugtrekken.
Onderzoek: Nederlander wil verduurzamen, maar vindt het duur
Vandaag, 12:26
Een kleine meerderheid van de Nederlanders wil graag verduurzamen, maar bij een groot gedeelte komt het daar niet van.
Geld voor eigen sociale initiatieven bewoners aardbevingsgebied
Vandaag, 10:33
het geld komt uit het potje van ‘Nij Begun’, het grootschalige programma van het Rijk om de economie en sociale ontwikkeling in het noorden te verbeteren.
Tachtig Nederlandse tuindorpen behandeld in nieuwe atlas
Gisteren, 16:33
Bij uitgeverij Wbooks is Atlas van Tuindorpen in Nederland verschenen.
Rapport: veilig Bonaire kostbaar, maar nietsdoen is veel duurder
Gisteren, 10:48
Om de inwoners van Bonaire te beschermen tegen de gevolgen van klimaatverandering, zijn investeringen van tussen de 1,2 en 1,8 miljard dollar nodig.
Nieuwe coalitie Moerdijk hamert op duidelijkheid en compensatie
8 mei, 4:27
Er wordt al langere tijd gesproken over opheffing van het Brabantse dorp Moerdijk, een van de elf kernen van de gemeente.
Ga naar het nieuws-archief
Ronnie Weessies
Redacteur
1
0
0
0
Voor een optimale gebruikservaring plaatst Architectenweb functionele cookies. Wat de verschillende cookies precies doen leggen we uit in een
overzicht
. Cookies van social media kun je optioneel
aanzetten
.
Akkoord
Instellingen
Annuleren
OK
Sluiten
Doorgaan
Inloggen
Maak een gratis persoonlijk account aan
Feedback
Feedback
Wij horen graag jouw feedback. Laat je reactie achter en eventueel jouw e-mail adres.
Reactie
Verstuur