Projecten
Producten
Bedrijven
Vacatures
Agenda
Awards
Podcasts
more_horiz
Videos
Magazine
Favorieten
Profiel
Uitloggen
Abonneer je nu op onze nieuwsbrieven!
Abonneren
Nee, bedankt
Ja, denk met me mee rond de
materialisering van mijn project
Copyright: Marcel van der Burg
Copyright: Marcel van der Burg
Copyright: Marcel van der Burg
Copyright: Marcel van der Burg
Copyright: Marcel van der Burg
Copyright: Marcel van der Burg
Copyright: Marcel van der Burg
Copyright: Marcel van der Burg
Copyright: Marcel van der Burg
Copyright: Marcel van der Burg
Copyright: Marcel van der Burg
Copyright: Marcel van der Burg
Copyright: Marcel van der Burg
Copyright: Marcel van der Burg
Situatietekening met de drie Plus Ultra-gebouwen, met Plus Ultra III links bovenaan
Copyright: Proof of the Sum
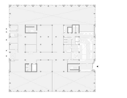
Plattegrond begane grond
Copyright: Proof of the Sum
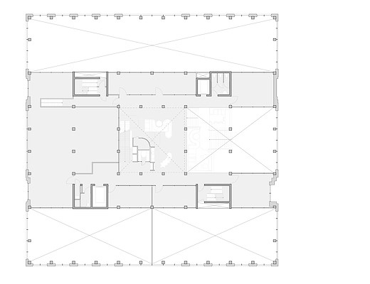
Plattegrond eerste verdieping
Copyright: Proof of the Sum
Doorsnede
Copyright: Proof of the Sum
Bedrijfsverzamelgebouw Plus Ultra op universiteitscampus Wageningen klaar
18 december 2025, 11:10
Op de campus van Wageningen University & Research is bedrijfsverzamelgebouw Plus Ultra III opgeleverd. De draagconstructie van het 7.600 vierkante meter omvattend gebouw is nagenoeg volledig van CLT gerealiseerd en de gevel is bekleed met tegels van gerecycled plastic.
Proof of the Sum
is verantwoordelijk voor het ontwerp.
Plus Ultra III biedt plek aan instellingen en bedrijven die aansluiten op de kennisdomeinen van de Wageningen Campus; landbouw, voeding en biobased producten. In het gebouw zijn laboratoria, ‘pilot-plants’ (proeffabriekjes waarin productieprocessen kunnen worden getest), kantoren en gedeelde ontmoetingsruimten aanwezig.
Plus Ultra III is volgens Proof of the Sum het eerste Nederlandse laboratoriumgebouw met een vrijwel volledig houten draagconstructie. Ook toepassingen als het gerecyclede plastic, een WKO, zonnepanelen, energiezuinige installaties en hoge isolatiewaardes maken het gebouw goed voor een BREEAM-NL Excellent-certificering.
Ondernemersplein
Plus Ultra II vormt het laatste van drie verzamelgebouwen op de ‘business-strip’ van de campus. Hiermee kon de openbare ruimte tussen de drie gebouwen worden ingericht als ‘Ondernemersplein’. De entrees van alle gebouwen liggen aan dit deze openbare ruimte, die verkeersvrij en geschikt voor evenementen wordt ingericht.
Het plein bestaat uit verschillende ruimten en bevat een verbindend centraal meubel. Verspreid rond de gebouwen zijn nestmogelijkheden voor verschillende dieren gerealiseerd. Voor de openbare ruimte werkte Proof of the Sum samen met
Loos van Vliet
.
Het gebouw kent een zodanige flexibiliteit dat aanpassingen in de toekomst aan ruimten, ruimtefuncties en bijbehorende installaties eenvoudig kunnen plaatsvinden, zonder grote bouwkundige en/of installatietechnische wijzigingen. Flexibiliteit en aanpasbaarheid zijn daarom in het ontwerp van de constructie, de installaties en de inrichting geïmplementeerd.
Atrium
Plus Ultra III heeft grotendeels een dubbelhoge plint, zodat de activiteiten van de pilot plants afleesbaar zijn vanaf de campus en het Ondernemersplein. Vanaf de tweede verdieping springt de gevel elke bouwlaag tien centimeter verder naar buiten. Hiermee reflecteert de nieuwbouw de beweging in de gevel van Plus Ultra I. Deze beweging verwijst naar de directe vertaling van Plus Ultra: ‘steeds meer, verklaart Proof of the Sum.
Het atrium van Plus Ultra III ligt in dezelfde as als de entree van Plus Ultra I. Door de pilot plant-activiteiten in Plus Ultra III en hun logistieke en technische vereisten start het gemeenschappelijke atrium vanaf de eerste verdieping. Hierdoor ontstaat vanaf het Ondernemersplein gezien een diagonale werking naar het hart van de nieuwbouw. Dit manifesteert zich in een zogeheten venster dat zich opent richting het Ondernemersplein.
Om te voorkomen dat de installaties in het zicht liggen en dat er geluidshinder optreedt, zijn de technische installaties opgenomen binnen de gevel van het gebouw. Hierdoor blijft het gevelbeeld consistent en zal de voorbijganger de aanwezigheid van grotere installaties niet merken, stelt Proof of the Sum.
Dubbelhoog
De gevels van de begane grond en eerste verdieping zijn dubbelhoog en hebben een extra accent gekregen door middel van de plint. Deze plint integreert zowel de hoofdentree aan de oostgevel als de logistieke entree aan de westgevel.
Plus Ultra III is ontworpen in opdracht van Kadans Science Partner, dat zich richt op de investering in, verhuur van en beheer van specifieke bedrijfs(verzamel)gebouwen.
https://vimeo.com/1146960812?fl=pl&fe=sh
Trefwoorden
clt
bedrijfsverzamelgebouw
wageningen
loos van vliet
hout
wageningen university & research
proof of the sum
laboratorium
plus ultra
Locatie
Best gelezen
1
44 woningen op bosrijke locatie in Driebergen
vrijdag, 15 mei
2
Parkeerplein naast Tilburgse schouwburg maakt plaats voor multifunctionele gebouwen
woensdag, 13 mei
3
Neprom-prijs 2026 toegekend aan De Groene Loper Maastricht
maandag, 11 mei
4
Vandersalm Architecten herinterpreteert historisch erf bij Zwolse stadsboerderij
maandag, 11 mei
5
Schoonhovens College van Geurst & Schulze architecten stimuleert vakmanschap, ontmoeting en leerprestaties
dinsdag, 12 mei
Gerelateerde nieuwsberichten
Wageningen Campus krijgt verzamelgebouw met houten constructie
30 april 2024
Plus Ultra Amsterdam beleeft officiële opening
12 februari 2024
Bouw Plus Ultra op Utrecht Science Park van start gegaan
25 april 2023
Bedrijfsverzamelgebouw Plus Ultra II opgeleverd
25 mei 2020
Plus Ultra: een uitnodiging tot synergie en innovatie
12 april 2016
Wageningen Campus krijgt verzamelgebouw met houten constructie
30 april 2024
Plus Ultra Amsterdam beleeft officiële opening
12 februari 2024
Bouw Plus Ultra op Utrecht Science Park van start gegaan
25 april 2023
Bedrijfsverzamelgebouw Plus Ultra II opgeleverd
25 mei 2020
Plus Ultra: een uitnodiging tot synergie en innovatie
12 april 2016
Toon alles
Gerelateerde bedrijven
Pretty Plastic
Building from Waste: gemaakt van 100% gerecycled PVC
Andere nieuwsberichten
Tien nominaties voor NRP Gulden Feniks 2026
15 mei, 2:20
In november wijst de jury een aantal winnaars aan uit deze selectie voor de nationale prijs voor renovatie en transformatie van de gebouwde omgeving.
Nieuwe Instituut brengt rijkscollectie architectuur en stedenbouw tot leven in Collection Gallery
15 mei, 1:17
Op donderdag 18 juni opent het Nieuwe Instituut de zogeheten Collection Gallery. In deze nieuwe interactieve ruimte wil de instelling in Rotterdam de Rijkscollectie voor Nederlandse Architectuur en Stedenbouw tot leven brengen.
44 woningen op bosrijke locatie in Driebergen
15 mei, 9:26
De gemeente Utrechtse Heuvelrug selecteerde het plan Bosrand Heidestein. Het team dat het ontwerp en de realisatie verzorgt, bestaat uit KRKTR Projectontwikkeling, Reuvers Ontwik-keling en Bouw, MIX architectuur, MAAK space, Merosch en Kwirkey.
Vijf finalisten voor Heuvelinkprijs 2026
13 mei, 3:06
De finalisten voor de Heuvelinkprijs 2026 zijn bekend. Vijf projecten komen in aanmerking voor deze editie van de tweejaarlijkse Arnhemse nieuwbouwprijs.
ITA Ensemble speelt 'De Architect' van sterregisseur Rebecca Frecknall
15 mei, 3:11
De voorstelling is een hedendaagse bewerking van Henirik Ibsens 'Bouwmeester Solness'.
Commissie: milieustudie Schiphol schiet tekort voor omwonenden
15 mei, 12:08
De Commissie voor de milieueffectrapportage stelt zelfs dat het rapport herzien zou moeten worden.
Koen Pörtzgen benoemd tot partner bij Zecc Architecten
15 mei, 10:15
Samen met Marnix van der Meer (54) en Bart Kellerhuis (47) vormt de 39-jarige Pörtzgen vanaf dit jaar de directie van het Utrechtse bureau.
Consortium met RxDomi en TU/e ontwikkelt netbewuste woning
13 mei, 2:56
In het project CoLiBRIE ontwikkelt een consortium, met onder meer RxDomi en TU/e, een nieuw type woning die comfortabel, duurzaam en betaalbaar is, zonder het energienet extra te belasten.
Minimaal half miljard extra nodig voor verbreding A27
13 mei, 1:38
Op het traject van 47 kilometer moeten extra rijbanen komen om de dagelijkse files te verlichten. Ook worden bruggen vervangen.
RVO constateert laagste groei windenergie op land in jaren
13 mei, 10:02
De uitbreiding van windenergie op land in Nederland is op een historisch laag niveau.
Ga naar het nieuws-archief
Ronnie Weessies
Redacteur
0
0
0
0
Voor een optimale gebruikservaring plaatst Architectenweb functionele cookies. Wat de verschillende cookies precies doen leggen we uit in een
overzicht
. Cookies van social media kun je optioneel
aanzetten
.
Akkoord
Instellingen
Annuleren
OK
Sluiten
Doorgaan
Inloggen
Maak een gratis persoonlijk account aan
Feedback
Feedback
Wij horen graag jouw feedback. Laat je reactie achter en eventueel jouw e-mail adres.
Reactie
Verstuur