Projecten
Producten
Bedrijven
Vacatures
Agenda
Awards
Podcasts
more_horiz
Videos
Magazine
Favorieten
Profiel
Uitloggen
Abonneer je nu op onze nieuwsbrieven!
Abonneren
Nee, bedankt
Ja, denk met me mee rond de
materialisering van mijn project
Copyright: Eva Bloem
Copyright: Eva Bloem
Copyright: Eva Bloem
Copyright: Eva Bloem
Copyright: Eva Bloem
Copyright: Eva Bloem
Copyright: Eva Bloem
Copyright: Eva Bloem
Copyright: Eva Bloem
Copyright: Eva Bloem
Copyright: Eva Bloem
Copyright: Eva Bloem
Copyright: Eva Bloem
Copyright: Eva Bloem
Copyright: Eva Bloem
Copyright: De Zwarte Hond
IKC De Brug gelauwerd als Schoolgebouw van het Jaar 2025
5 november 2025, 21:40
Tijdens de feestelijke uitreiking van de Architectenweb Awards 2025, op woensdagavond 5 november in het Keilepand in Rotterdam, is het project IKC De Brug gelauwerd als Schoolgebouw van het Jaar 2025. De basisschool in Nieuwerbrug aan den Rijn is ontworpen door
De Zwarte Hond
.
Een sfeervolle school die tegelijkertijd compact én genereus is, vindt de jury. In plaats van gangen is er een grote binnenruimte die voor allerlei activiteiten gebruikt kan worden. De houten dakconstructie buigt elegant door en bevat tussen zijn balken biobased akoestische panelen. De lokalen kijken rondom uit over groen en zijn daarmee verbonden. Kortom, de natuurlijke, tactiele, ruimtelijke omgeving die je kinderen gunt.
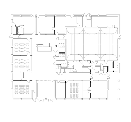
Bij de uitbreiding van het dorp Nieuwerbrug aan de Rijn, in het Groene Hart, is ervoor gekozen om een nieuwe school te realiseren voor alle kinderen in het dorp. In het gebouw zijn een peuterspeelzaal, basisonderwijs en buitenschoolse opvang opgenomen. De gymzaal die aan de school is toegevoegd heeft ook een eigen entree, waardoor die buiten de openingstijden van de school ook gebruikt kan worden door sportverenigingen uit het dorp.
De grote gemeenschappelijke ruimte in het hart van de school kan door middel van vouwwanden eenvoudig vergroot worden en zelfs geopend worden naar buiten toe. Zo kunnen allerhande bijeenkomsten in de school gefaciliteerd worden. De school is bijna energieneutraal en heeft een dak dat deels begroeid is en deels voorzien is van PV-panelen.
In de architectuur van de school verwijst De Zwarte Hond op een speelse manier naar de dorpse en landelijke omgeving. Omdat hout relatief eenvoudig te buigen is, kon het dak licht doorbuigen. Een eenvoudige en toch heel krachtige ingreep, vindt de jury, omdat het de school zo een eigen karakter geeft in het dorp, maar van binnen ook gewoon heel goed werkt. De materiaaltransitie levert hier echt een nieuwe architectuur op, constateert de jury.
De gevel van de school is uitgevoerd in metselwerk in koppenformaat. De handgevormde stenen geven de gevel daarbij een prettige tactiliteit. De uitvouwbare buitenzonwering is stijlvol tussen de penanten gemonteerd. Het kalme ritme van de gevel strekt zich over alle gevels uit, maar kent één uitzondering bij de kleinsten op de school. Het raam waar de ouders nog even naar hun kinderen kunnen zwaaien is namelijk rond. Het is een goede illustratie van de ruimtelijke kwaliteit die De Zwarte Hond hier heeft weten te realiseren.
Op deze plek had de gemeente oorspronkelijk een tweelaagse school bedacht, maar De Zwarte Hond heeft de gemeente ervan kunnen overtuigen om toch voor een eenlaagse school te gaan. Zo kon een veel compactere school gerealiseerd worden waar alle lokalen zich openen naar dezelfde gemeenschappelijke ruimte. Het is zo een school geworden die intern echt met zichzelf verbonden is. Terwijl er tegelijkertijd ook overal doorzichten zijn naar buiten.
Het enige nadeel van de eenlaagse school is dat de buitenruimte voor de kleinsten toch wat compact is gebleven. Wellicht dat de gemeente daar in de toekomst nog iets aan kan doen.
Nominaties
In de categorie Schoolgebouw van het Jaar nomineerde de jury dit jaar vier projecten. Naast IKC De Brug ging het om Education Centre University of Groningen, ontworpen door KAAN Architecten; Herta Mohrgebouw, Universiteit Leiden, ontworpen door De Zwarte Hond; en Cube, werkgebouw voor UTwente, ontworpen door Civic Architects, VDNDP en Studio Groen+Schild.
Jury
De jury bestond dit jaar uit architect Christina Kaiser (Braaksma & Roos), architect Metin van Zijl (Studioninedots), architect Maartje Nuy (Studio Nuy van Noort), landschapsarchitect Hannah Schubert (B+B), architect Rob Meurders (diederendirrix) en architectuurfotograaf / architect Sebastian van Damme.
De inzendingen voor de prijs Schoolgebouw van het Jaar 2025 zijn beoordeeld op maatschappelijke relevantie, vakmanschap, innovatie en duurzaamheid.
Partners
Naast de prijs voor Schoolgebouw van het Jaar zijn op 5 november ook prijzen uitgereikt in de volgende categorieën: Woongebouw van het Jaar, Kantoorgebouw van het Jaar, Zorggebouw van het Jaar, Interieur van het Jaar en Publiek gebouw van het Jaar. Ook is de winnaar van de verkiezing voor Architect van het Jaar 2025 bekendgemaakt.
De Architectenweb Awards 2025 zijn mede mogelijk gemaakt door hoofdpartners
Reynaers Aluminium
en
Forster
, en partners
Eestairs
,
Qbiq Wall Systems
,
Villeroy & Boch
en
Ambius
.
Trefwoorden
schoolgebouw van het jaar 2025
schoolgebouw van het jaar
architectenweb awards
de zwarte hond
architectenweb awards 2025
ikc de brug
Best gelezen
1
Woontoren Front door Monadnock wint tiende Architectuurprijs Nijmegen
donderdag, 9 april
2
SeARCH en Heutink Groep winnen tender voor woongebouw Sluisbuurt
vrijdag, 10 april
3
Architect Cees Dam op 93-jarige leeftijd overleden
dinsdag, 14 april
4
Powerhouse Company wint aanbesteding voor verbouwing Vista College Maastricht
dinsdag, 14 april
5
Padelhal vormt nieuwe kop van sportcomplex in Bussum
donderdag, 9 april
Gerelateerde nieuwsberichten
Nominaties Schoolgebouw van het Jaar 2025 bekend
17 september 2025
Marga Klompé Building uitgeroepen tot Schoolgebouw van het Jaar 2024
6 november 2024
Foto's uitreiking Architectenweb Awards 2025
6 november 2025
Nominaties Schoolgebouw van het Jaar 2024 bekend
18 september 2024
Faculteit ITC, Universiteit Twente, bekroond als Schoolgebouw van het Jaar 2023
8 november 2023
Alle data rond Architectenweb Awards 2026 bekend
30 maart
Nominaties Schoolgebouw van het Jaar 2023 bekend
18 september 2023
Kindcentrum Zuiderkroon bekroond als Schoolgebouw van het Jaar 2022
12 oktober 2022
Binnentuin speelt belangrijke rol in woongebouw BuitenBuren Almere
27 februari
Nominaties Schoolgebouw van het Jaar 2022 bekend
12 september 2022
Fontys R10 winnaar prijs Schoolgebouw van het Jaar 2021
10 november 2021
Nominaties Schoolgebouw van het Jaar 2021 bekend
20 september 2021
Uitbreiding Rietveld en Sandberg Instituut is Schoolgebouw van het Jaar 2020
28 oktober 2020
Nominaties 'Schoolgebouw van het Jaar 2020' bekend
16 september 2020
Atlas-gebouw bekroond als Schoolgebouw van het Jaar 2019
31 oktober 2019
Nominaties ‘Schoolgebouw van het Jaar 2019’ bekend
18 september 2019
De Henricus (Berger Barnett Architecten) bekroond als Schoolgebouw van het Jaar 2018
8 november 2018
Nominaties 'Schoolgebouw van het Jaar 2018' bekend
4 oktober 2018
Nominaties Schoolgebouw van het Jaar 2025 bekend
17 september 2025
Marga Klompé Building uitgeroepen tot Schoolgebouw van het Jaar 2024
6 november 2024
Foto's uitreiking Architectenweb Awards 2025
6 november 2025
Nominaties Schoolgebouw van het Jaar 2024 bekend
18 september 2024
Faculteit ITC, Universiteit Twente, bekroond als Schoolgebouw van het Jaar 2023
8 november 2023
Alle data rond Architectenweb Awards 2026 bekend
30 maart
Nominaties Schoolgebouw van het Jaar 2023 bekend
18 september 2023
Kindcentrum Zuiderkroon bekroond als Schoolgebouw van het Jaar 2022
12 oktober 2022
Binnentuin speelt belangrijke rol in woongebouw BuitenBuren Almere
27 februari
Nominaties Schoolgebouw van het Jaar 2022 bekend
12 september 2022
Fontys R10 winnaar prijs Schoolgebouw van het Jaar 2021
10 november 2021
Nominaties Schoolgebouw van het Jaar 2021 bekend
20 september 2021
Uitbreiding Rietveld en Sandberg Instituut is Schoolgebouw van het Jaar 2020
28 oktober 2020
Nominaties 'Schoolgebouw van het Jaar 2020' bekend
16 september 2020
Atlas-gebouw bekroond als Schoolgebouw van het Jaar 2019
31 oktober 2019
Nominaties ‘Schoolgebouw van het Jaar 2019’ bekend
18 september 2019
De Henricus (Berger Barnett Architecten) bekroond als Schoolgebouw van het Jaar 2018
8 november 2018
Nominaties 'Schoolgebouw van het Jaar 2018' bekend
4 oktober 2018
Toon alles
Gerelateerde video's
Prijsuitreiking Architectenweb Awards 2025
Impressie van een feestelijke avond
Andere nieuwsberichten
Woontoren Front vervult meerdere rollen in Hart van de Waalsprong
Gisteren, 16:31
Vorige week werd de door Mondadnock ontworpen woontoren Front onderscheiden met de Architectuurprijs Nijmegen. Het achthoekige gebouw in Lent markeert het centrum van de stadsuitbreiding Hart van de Waalsprong.
Bijzonder erfgoed Fundatie van Renswoude Utrecht gered
Gisteren, 15:29
Hendrick de Keyser Monumenten heeft de Fundatie van Renswoude in Utrecht, een bijzonder goed bewaard ensemble uit de 18e eeuw, verworven. Hiermee blijven gebouw, historisch interieur en collectie als een geheel behouden.
Studioninedots – Albert Herder vertrekt, Wouter Hermanns en Stijn de Jongh treden toe
Gisteren, 14:51
De medeoprichter en partner van het bureau gaat verder als zelfstandig adviseur en supervisor. Wouter Hermanns en Stijn de Jongh zijn juist tot partner benoemd bij Studioninedots.
BURA, LOLA en Goudappel maken plan voor vernieuwing stationsgebied Haarlem
Gisteren, 12:11
De bureaus mogen onder meer een het busstation en de openbare ruimte herinrichten, de mogelijkheden voor fietsparkeren uitbreiden en een plan maken voor de sloop en nieuwbouw van het Beresteyncomplex tegenover het station.
ING: optoppen en splitsen van woningen steeds minder haalbaar
Gisteren, 13:22
Het kabinet-Jetten gaat naar verwachting het doel van 15.000 extra woningen per jaar uit verbouwingen niet halen, stelt ING.
Geen rechtszaak over subsidie ministerie aan Van Gogh Museum
Gisteren, 10:02
De zaak draait om geld dat het museum nodig zegt te hebben voor een renovatie.
AFM: funderingsproblemen bij bijna 220.000 woningen
14 april, 1:25
De huizen van bijna een half miljoen woningeigenaren hebben een hoog risico op funderingsproblemen of een mogelijke kwetsbare fundering.
Oprichter omgevallen vastgoedconcern Evergrande bekent schuld
14 april, 9:17
Evergrande was ooit de grootste projectontwikkelaar van China, maar kwam in de problemen toen het zijn schulden niet kon terugbetalen.
Grote en kleine gemeenten balen van bouwregels Zuid-Holland
10 april, 4:31
Grote en kleine gemeenten in Zuid-Holland hebben hun zorgen geuit over nieuwe regels van de provincie, die volgens hen de woningbouw belemmeren.
Twijfels in Zuid-Holland over halen van doelen landelijk gebied
10 april, 12:18
De meeste partijen in de Zuid-Hollandse politiek hebben twijfels over de plannen die in zestien deelgebieden zijn gemaakt voor de aanpak van het landelijk gebied.
Ga naar het nieuws-archief
0
0
0
0
Voor een optimale gebruikservaring plaatst Architectenweb functionele cookies. Wat de verschillende cookies precies doen leggen we uit in een
overzicht
. Cookies van social media kun je optioneel
aanzetten
.
Akkoord
Instellingen
Annuleren
OK
Sluiten
Doorgaan
Inloggen
Maak een gratis persoonlijk account aan
Feedback
Feedback
Wij horen graag jouw feedback. Laat je reactie achter en eventueel jouw e-mail adres.
Reactie
Verstuur