Projecten
Producten
Bedrijven
Vacatures
Agenda
Awards
Podcasts
more_horiz
Videos
Magazine
Thema's
Favorieten
Profiel
Uitloggen
Abonneer je nu op onze nieuwsbrieven!
Abonneren
Nee, bedankt
Ja, denk met me mee rond de
materialisering van mijn project
Copyright: DigiDaan
Copyright: DigiDaan
Copyright: DigiDaan
Copyright: DigiDaan
Copyright: DigiDaan
Copyright: DigiDaan
Copyright: DigiDaan
Copyright: DigiDaan
Copyright: DigiDaan
Copyright: DigiDaan
Copyright: DigiDaan
Copyright: DigiDaan
Copyright: DigiDaan
Copyright: DigiDaan
Copyright: DigiDaan
Copyright: DigiDaan
Situatie
Copyright: GROUP A
Concept
Copyright: GROUP A
Concept
Copyright: GROUP A
Concept
Copyright: GROUP A
Concept
Copyright: GROUP A
Concept
Copyright: GROUP A
Concept
Copyright: GROUP A
Concept
Copyright: GROUP A
Concept
Copyright: GROUP A
Axo achterzijde
Copyright: GROUP A
Doorsnede
Copyright: GROUP A
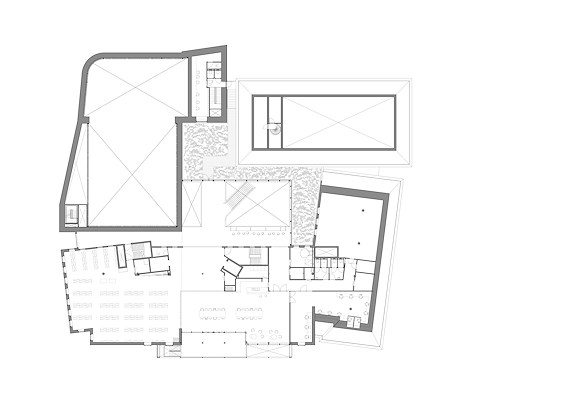
Begane grond
Copyright: GROUP A
Eerste verdieping
Copyright: GROUP A
Tweede verdieping
Copyright: GROUP A
Oud bankgebouw in Bladel getransformeerd tot cultureel centrum Bruis
16 juli 2025, 10:59
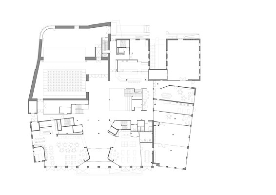
In het Brabantse Bladel is een voormalig bankgebouw getransformeerd tot cultureel centrum Bruis. Het pand aan de Markt biedt plaats aan een theaterzaal, bibliotheek, café en meer dan 45 verenigingen.
GROUP A
renoveerde het bestaande gebouw en breidde het uit met een opvallend uitkragend volume aan de marktzijde en een uitbreiding met een multifunctionele zaal aan de achterkant.
Door het nieuwe volume aan de kant van de Markt vormt het gebouw meer dan voorheen een herkenningspunt. Het volume, dat letterlijk de bestaande gevel doorbreekt, bestaat uit een stalen frame, houten lamellen en glas. In het volume bevinden zich een panoramazaal en balkons, aan de bovenkant wordt zicht geboden tot diep in het bestaande gebouw.
De uitbreiding met de multifunctionele zaal aan de achterkant is zo goed mogelijk ingebed in de dorpse omgeving. GROUP A ontwierp een volume met subtiele knikken, speelse daklijnen, openingen in de gevel en subtiele materiaalovergangen. Daarnaast koos het bureau voor een verfijnde gevelcompositie, dieptewerking in gesloten vlakken en een gekeimde plint. Het laden-lossen en de technische ruimten zijn zorgvuldig ingepast, zonder de openheid verloren te laten gaan.
De multifunctionele zaal is ontworpen als flexibele ruimte voor uiteenlopende culturele en maatschappelijke activiteiten: van theater en dans tot workshops, diners en bijeenkomsten. Dankzij een uitschuifbare tribune en verstelbare podiumdelen kan de zaal zich aanpassen aan de behoefte van het moment. Een afgewogen balans aan reflecterende en absorberende akoestische panelen tezamen met gordijnen laat een divers bereik aan type voorstellingen toe, aldus GROUP A.
Centraal in het gebouw is een royaal atrium gerealiseerd dat bestaande en nieuwe delen verbindt. In de lichte en open ruimte leiden grote houten trappen naar de bibliotheek en de panoramazaal. Door allerlei typen ruimten, van beschutte hoeken tot publieke ruimten, te realiseren, moet elke gebruiker er een plekje kunnen vinden. Om extra ruimte te creëren, zijn ondersteunende functies verplaatst naar de kelder in het nieuwe volume aan de achterzijde.
Bestaande structuur grotendeels behouden
Bij de transformatie is de bestaande structuur van het bankgebouw grotendeels behouden. Materialen uit gesloopte delen, zoals kozijnen, kanaalwerk, metselwerk en installaties, zijn hergebruikt. Het gebouw is verduurzaamd met lucht/water-warmtepompen, regenwateropslag en hoogwaardige isolatie.
GROUP A werkte voor het ontwerp samen met Fabrique en ABT. Daarnaast was er een nauwe samenwerking met de gemeente Bladel en cultureel centrum Den Herd, laat het bureau weten.
Trefwoorden
group a
transformatie
bladel
cultureel centrum
Locatie
Best gelezen
1
MVSA Architects en Powerhouse Company ontwerpen dubbele woontoren bij Den Haag Centraal
maandag, 30 maart
2
Schiphol maakt nieuwe 'huisarchitecten' bekend
donderdag, 26 maart
3
Amsterdam wil hiphopcentrum realiseren in stadsdeel Zuidoost
vrijdag, 27 maart
4
Jan Knikker vertrekt bij MVRDV
maandag, 30 maart
5
Menselijk contact, licht en lucht staan centraal bij appartementencomplex van SO-IL
donderdag, 26 maart
Gerelateerde nieuwsberichten
GROUP A, ABT en Fabrique geselecteerd voor Gemeenschapshuis in Bladel
17 november 2020
Tweede prijs voor Group A in ontwerpcompetitie metrostation Hamburg
24 juni 2025
Bouw 741 woningen in Max Euwe Kwartier Rotterdam gestart
19 december 2024
Team Ballast Nedam Development wint tender toren en woonblok bij Amstelstation
2 september 2024
Group A ontwerpt twee stadsblokken met scala aan panden voor Merwede Utrecht
10 juli 2024
Group A presenteert concept voor Paris Proof Stadsblok
14 juni 2024
Bouw fabriekscomplex Quooker gestart
15 mei 2024
Afsprakenbrief getekend voor ontwikkeling multifunctioneel complex ArenaPoort West
30 april 2024
Veel Nederlandse winnaars bij de Archello Awards 2025
2 december 2025
Herbestemming Ferro-kantoor in M4H Rotterdam gestart
9 april 2024
GROUP A, ABT en Fabrique geselecteerd voor Gemeenschapshuis in Bladel
17 november 2020
Tweede prijs voor Group A in ontwerpcompetitie metrostation Hamburg
24 juni 2025
Bouw 741 woningen in Max Euwe Kwartier Rotterdam gestart
19 december 2024
Team Ballast Nedam Development wint tender toren en woonblok bij Amstelstation
2 september 2024
Group A ontwerpt twee stadsblokken met scala aan panden voor Merwede Utrecht
10 juli 2024
Group A presenteert concept voor Paris Proof Stadsblok
14 juni 2024
Bouw fabriekscomplex Quooker gestart
15 mei 2024
Afsprakenbrief getekend voor ontwikkeling multifunctioneel complex ArenaPoort West
30 april 2024
Veel Nederlandse winnaars bij de Archello Awards 2025
2 december 2025
Herbestemming Ferro-kantoor in M4H Rotterdam gestart
9 april 2024
Toon alles
Andere nieuwsberichten
Voormalige verffabriek in Overschie omgevormd tot buurt met 125 woningen
2 uur geleden
Op de plek van een voormalige verffabriek aan de Schansweg in Rotterdam worden 125 woningen gerealiseerd. Ook biedt het plan ruimte voor achthonderd tot duizend vierkante meter aan bedrijfsruimte.
Woningbouwproject Nieuw Zuid in Hilversum voltooid
3 uur geleden
Op de plek van het voormalige zorgcomplex Zuiderheide zijn vijf appartementengebouwen voor verschillende doelgroepen gerealiseerd, naar ontwerp van verschillende architectenbureaus.
BURA publiceert resultaten ontwerpend onderzoek Marineterrein Amsterdam
4 uur geleden
Onder de titel Postgroei Marineterrein deed BURA onderzoek naar de contouren van een proeftuin voor sociaal-economische innovatie.
'Materialenwerf' in M4H vormt festivalhart Rotterdam Architectuur Maand
31 maart, 2:05
Op 3 juni opent het flexibel opgezette bouwwerk in M4H, waar gebruikte bouwmaterialen worden verzameld, bewerkt en opnieuw ingezet. Gedurende de hele maand juni wordt er getest hoe een circulaire stad eruit kan zien, meldt AIR Rotterdam.
Amsterdam krijgt dertig meter hoge Self Storage Tower naar ontwerp dedato
3 uur geleden
Minerva Development heeft de onherroepelijke bouwvergunning voor een dertig meter hoge ‘Self Storage Tower’ in het Amsterdamse Westpoortgebied.
Prijzen van nieuwbouwkavels verder gestegen
Vandaag, 12:30
De prijzen van nieuwbouwkavels zijn in het vierde kwartaal met gemiddeld 15,3 procent gestegen vergeleken met een jaar eerder.
Kamer: onderhoud en veiligheid voorop bij keuzes infrastructuur
Vandaag, 09:32
Onderhoud en veiligheid moeten volgens de Tweede Kamer vooropstaan bij pijnlijke keuzes die het kabinet gaat maken over infrastructuur.
Michael Braungart luistert vijftienjarig jubileum Cradle to Cradle Café op
31 maart, 11:27
Op dinsdag 14 april organiseert het Cradle to Cradle Café een speciaal jubileumfestival in Utrecht ter gelegenheid van zijn vijftienjarig bestaan.
PBL: politieke keuzes nodig voor aanpassing klimaatverandering
31 maart, 10:23
Een verstandige keuze is alvast om alles klimaatadaptief aan te pakken, aldus het Planbureau voor de Leefomgeving.
OM vervolgt oud-werknemers Strukton na Saudische omkopingskwestie
30 maart, 4:52
Eerder werd al bekend dat het bouwbedrijf voor tien miljoen euro heeft geschikt in de corruptiezaak.
Ga naar het nieuws-archief
Ronnie Weessies
Redacteur
0
0
0
0
Voor een optimale gebruikservaring plaatst Architectenweb functionele cookies. Wat de verschillende cookies precies doen leggen we uit in een
overzicht
. Cookies van social media kun je optioneel
aanzetten
.
Akkoord
Instellingen
Annuleren
OK
Sluiten
Doorgaan
Inloggen
Maak een gratis persoonlijk account aan
Feedback
Feedback
Wij horen graag jouw feedback. Laat je reactie achter en eventueel jouw e-mail adres.
Reactie
Verstuur