Projecten
Producten
Bedrijven
Vacatures
Agenda
Awards
Podcasts
more_horiz
Videos
Magazine
Thema's
Favorieten
Profiel
Uitloggen
Nieuw
Populair
Toon alles
Architectenweb magazine #14
Architectenweb magazine #13
Publieke gebouwen
Architectenweb magazine #12
Kantoren
Architectenweb magazine #11
Scholen
Architectenweb magazine #10
Zorg
Architectenweb magazine #14
Architectenweb magazine #10
Zorg
Architectenweb magazine #12
Kantoren
Architectenweb magazine #13
Publieke gebouwen
Architectenweb magazine #6
Transformatie en Renovatie
Om direct naar je favorieten te kunnen gaan is het nodig om eerst in te loggen.
Nieuw
Architectenweb Awards 2025
Architectenweb Awards 2024
Architectenweb Awards 2023
Architectenweb Awards 2022
Architectenweb Awards 2021
Architectenweb Awards 2020
Architectenweb Awards 2019
Architectenweb Awards 2018
Om direct naar je favorieten te kunnen gaan is het nodig om eerst in te loggen.
Nieuw
Populair
Favorieten
Toon alles
Vakwerk Architecten
Nominatie voor de prijs voor Architect van het Jaar 2025
Sanne van Manen
Nominatie voor de prijs voor Architect van het Jaar 2025
KSA
Nominatie voor de prijs voor Architect van het Jaar 2025
KRFT
Nominatie voor de prijs voor Architect van het Jaar 2025
Joost Ector
Nominatie voor de prijs voor Architect van het Jaar 2025
Prijsuitreiking Architectenweb Awards 2024
Impressie van een feestelijke avond
Martens, Willems & Humblé Architecten
Nominatie voor de prijs voor Architect van het Jaar 2024
Uitreiking van Architectenweb Awards 2020
Impressie van de prijsuitreiking via Zoom
De Zwarte Hond
Nominatie voor de prijs voor Architect van het Jaar 2024
Avond met De Zwarte Hond
Symposium
Om direct naar je favorieten te kunnen gaan is het nodig om eerst in te loggen.
Nieuw
Populair
Categorieën
Favorieten
Toon alles
Brandpreventie Academy BV
Cay Circulaire Keukens
Circulaire keukens en pantry's
Studio Kirsten Reith
Interieurontwerp
Studio175
Interieuradvies in regio Utrecht
Orange Automatic Doors
Indoorwrap
De specialist in Keukenwrappen
Cay Circulaire Keukens
Circulaire keukens en pantry's
Studio Kirsten Reith
Interieurontwerp
Studio175
Interieuradvies in regio Utrecht
Interior & Co
Orange Automatic Doors
Indoorwrap
De specialist in Keukenwrappen
Architecten
Architectuur
Mobiliteit en infrastructuur
Stedenbouw en landschapsarchitectuur
Leveranciers
Gevels
Daken
Ramen en deuren
Trappen, liften en balustrades
Binnenwanden
Vloeren
Plafonds
Verlichting
Sanitair
Projectinrichting
Installaties
Constructies
Buitenruimte
Software
Adviseurs
Bestekschrijvers
Bouwmanagement
Installatie adviseurs E
Bouwfysica
Calculators
Installatie adviseurs G/W
Bouwkundig tekenwerk
Constructeurs
Lichtadviseurs
Adviseur beveiliging
Juristen
Intermediairs, Payrolling
Aannemers
Overig
Presentatie
Instellingen / onderwijs
Overig
Om direct naar je favorieten te kunnen gaan is het nodig om eerst in te loggen.
Nieuw
Populair
Favorieten
Toon alles
Gesprek met Stephan Sliepenbeek over hoogbouw in Amstel III
Gesprek met Ellen van Bueren over gebiedsontwikkeling en hoogbouw
Gesprek met Ma Yansong over ontwerpen die emotie oproepen
Gesprek met Paul de Ruiter over innovatieve en duurzame hoogbouw
Gesprek met Pi de Bruijn over zijn ontwerpen voor de Tweede Kamer toen en nu
Gesprek met Ellen van Bueren over gebiedsontwikkeling en hoogbouw
Gesprek met Oresti Sarafopoulos over het ontwerpen van een kantoorgebouw met bijna geen installaties
Gesprek met Stijn Steenbakkers over verdichting en hoogbouw in Eindhoven
Gesprek met Pi de Bruijn over zijn ontwerpen voor de Tweede Kamer toen en nu
Gesprek met Paul de Ruiter over innovatieve en duurzame hoogbouw
Om direct naar je favorieten te kunnen gaan is het nodig om eerst in te loggen.
Nieuw
Populair
Categorieën
Favorieten
Toon alles
Den Hartogh Basecamp
FÆnslet
Exclusieve wooneenheden
Alphen aan de Rijn - Park 100
Rivierwoning in het ritme van het Rijngebied
ASML Gebouw 3
Prinsenpark, Rotterdam
IVY, Amsterdam
IKC De Brug
Houthavens, Amsterdam
Architectuur
Woningbouw
Zorg
Hotels
Restaurants en café’s
Winkels
Sportgebouwen
Culturele gebouwen
Overheidsgebouwen
Scholen
Kantoren
Bedrijfsgebouwen
Paviljoens en kunst
Overig
Mobiliteit en infrastructuur
Trein- en metrostations
Luchthavens
Busstations
Parkeergarages
Fietsparkeren
Wegen
Bruggen
Water
Energie
Tankstations en laadstations
Waterzuivering en afvalverwerking
Overig
Stedenbouw en landschapsarchitectuur
Regionale visies
Gebiedsvisies
Plannen stedelijk weefsel
Amusementsparken en dierentuinen
Lichtontwerpen
Openbare ruimte
Pleinen
Parken
Tuinen
Speelplaatsen
Uitkijktorens
Overige (bijv. begraafplaatsen)
Om direct naar je favorieten te kunnen gaan is het nodig om eerst in te loggen.
Nieuw
Populair
Categorieën
Favorieten
Toon alles
Rook- en warmteafvoer (RWA)
Een essentieel onderdeel van gebouwontwerp
Lumiglaze – Het vlakglas van VELUX Commercial
Een nieuw tijdperk in daglichtontwerp – minimalistisch, functioneel en klaar voor de toekomst.
Akoestisch kussen.
Ervaar de ultime natuurlijke oplossing voor akoestiek problemen.
Knauf MaxSpace
Minder wand, méér ruimte. Het ideale profiel voor meer winst per m²
Veelzijdig straatmeubilair
Van openbare ruimte naar (be)leefomgeving
Digital Prints
Meer mogelijkheden in gekleurd staal
Element+ H-I
Hout - Aluminium Elementgevel
Vierkante vluchtroutearmaturen voor grote ruimtes
Zichtbare veiligheid van alle kanten
Schüco Zonweringsysteem Integralmaster in FWS
Bescherming tegen zon, verblinding en privacy – verborgen en volledig geïntegreerd
GROHE Cubeo: kranen voor elke badkamer
Stijlvol en duurzaam design voor jarenlang plezier
Gevels
Gevelbekleding
Vliesgevels
Zonwering buiten
Isolatie
Gevelconstructies
Signing
Overig
Daken
Dakafwerkingen
Dakisolatie
Dakconstructies
Dakranden, dakgoten en HWA's
Dakramen
Lichtkoepels
Lichtstraten
Schoorstenen
Overig
Dakluiken
Ramen en deuren
Raam- en deursystemen / kozijnen
Vliesgevels
Hang- en sluitwerk
Beveiliging en luiken
Dorpels en vensterbanken
Lateien
Roosters
Glas
Dakramen
Dakkoepels
Lichtstraten
Zonwering buiten
Zonwering binnen
Buitendeuren
Binnendeuren
Postvakken en brievenbussen
Overig
Dakluiken
Trappen, liften en balustrades
Trappen
Roltrappen
Liften
Balustrades en hekwerken
Galerijen
Binnenwanden
Binnenwanden
Wandafwerking
Vloeren
Constructieve vloeren
Verhoogde vloeren
Vloerafwerkingen
Overig
Plafonds
Tegels
Lineair
Grill
Open en roosters
Naadloos
Eilanden en baffles
Plafondafwerkingen
Ophangsystemen
Overig
Klimaatplafonds
Verlichting
Binnenverlichting
Buitenverlichting
Sanitair
Kranen en douchesets
Wastafels
Douchewanden en douchebakken
Baden
Waterclosets
Accessoires
Overig
Projectinrichting
Stoelen
Banken
Tafels
Kasten
Balies
Vrijstaande wanden
Keukens
Accessoires
Overig
Cabines
Interieurbeplanting
Stoffering
Installaties
Verwarming, koeling en ventilatie
Elektrotechnische installaties
Schakelmateriaal
Domotica
Deurcommunicatie
Beveiliging
Liften
Onderhoudsinstallaties
Overig
Brandbeveiliging
Constructies
Draagconstructies
Funderingen en kelders
Overig
Brandbeveiliging
Buitenruimte
Bestratingen en verhardingen
Afwateringen
Terreinafscheidingen en geluidsschermen
Buitenmeubilair
Fietsparkeren
Terrassen
Terrasoverkappingen
Bruggen
Accessoires
Overig
Beplanting
Sport- en speeltoestellen
Software
Tekenen 2D
Modelleren 3D / BIM
Visualisatie / rendering
Parametrisch ontwerpen
Bouwfysica
Draagconstructie
Overig
Virtual Reality
Cloudoplossingen
Om direct naar je favorieten te kunnen gaan is het nodig om eerst in te loggen.
Nieuw
Populair
Favorieten
Toon alles
LIAG over duurzaamheid centraal in project
Online
Zomerwandelingen Nieuwe Stad op Zondag 2025
Amsterdam
Prefab beurs - 7 t/m 9 oktober 2025
Brabanthallen 's-Hertogenbosch
Boekpresentatie en panelgesprek met Floor Milikows
Prins Hendrikkade 600, 1011 VX Amsterdam
Architects Table ’25: Lunch & Inspiratie in HAUT Amsterdam
ATAG LIVE – HAUT gebouw, Spaklerweg 10F, 1096 BA Amsterdam (tegenover metrostation Spaklerweg)
Architects Table ’25: Lunch & Inspiratie in HAUT Amsterdam
ATAG LIVE – HAUT gebouw, Spaklerweg 10F, 1096 BA Amsterdam (tegenover metrostation Spaklerweg)
Ontdek het seminarieprogramma van Architect@Work Amsterdam
De Kromhouthal, Gedempt Hamerkanaal 231, Amsterdam
LIAG over duurzaamheid centraal in project
Online
1.Lectures HouseEurope! Renovate, don’t speculate
Pakhuis de Zwijger
Carbon Stories: Architects taking sustainable initiatives
Keilepand Rotterdam
Om direct naar je favorieten te kunnen gaan is het nodig om eerst in te loggen.
Nieuw
Toon alles
Design
Duurzaamheid
Gevel
Infrastructuur
Interieur
Kantoren
Leisure
Openbare ruimte
Publieke gebouwen
Scholen
Transformatie en Renovatie
Woningbouw
Zorg
Om direct naar je favorieten te kunnen gaan is het nodig om eerst in te loggen.
Nieuw
Populair
Toon alles
Bouwkundig projectleider (per direct)
Revit Modelleur / bouwkundige (per direct)
BIM/REVIT-modelleur
Bureaumanager
Nederlandstalige projectleider
Medior Technisch Interieurtekenaar
Junior Architect gezocht!
wUrck zoekt junior Architect
Project Architect
Shift zoekt medior/senior architect
Assistent Ontwerper & vakidioot
Architect
Om direct naar je favorieten te kunnen gaan is het nodig om eerst in te loggen.
Copyright: ZJA Architects & Engineers
Copyright: ZJA Architects & Engineers
Copyright: ZJA Architects & Engineers
Copyright: ZJA Architects & Engineers
Copyright: ZJA Architects & Engineers
Copyright: ZJA Architects & Engineers
Copyright: ZJA Architects & Engineers
Copyright: ZJA Architects & Engineers
Copyright: ZJA Architects & Engineers
Copyright: ZJA Architects & Engineers
Copyright: ZJA Architects & Engineers
Copyright: ZJA Architects & Engineers
Herstel van de symmetrie op station Amsterdam Centraal
Copyright: ZJA Architects & Engineers
Ingrepen in de transfercapaciteit van station Amsterdam Centraal
Copyright: ZJA Architects & Engineers
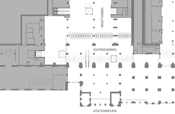
Nieuwe situatie plattegrond entree van de westelijke reizigerstunnel station Amsterdam Centraal
Copyright: ZJA Architects & Engineers
Oude situatie plattegrond entree van de westelijke reizigerstunnel station Amsterdam Centraal
Copyright: ZJA Architects & Engineers
Vernieuwde entree westelijke reizigerstunnel Amsterdam Centraal geopend
30 juni, 11:13
Begin deze maand is de vernieuwde entree voor de westelijke reizigerstunnel van station Amsterdam Centraal geopend. Er is zowel fysiek als visueel meer ruimte gecreëerd in de zogenaamde Westknoop, die tot de drukste punten van het Amsterdamse hoofdstation behoort. Daarbij is de oorspronkelijke architectuur van het monument ingezet om de leesbaarheid van het gebouw te vergroten.
Het ontwerp voor de vernieuwing was in handen van
ZJA Architects & Engineers
, in samenwerking met
Braaksma & Roos Architectenbureau
en
IGG
. Dit team, met ZJA als hoofdarchitect, verzorgt het ontwerp voor de gehele verbouwing van Amsterdam Centraal, die in 2030 voltooid moet zijn. In de Westknoop kwamen alle uitdagingen van de grootschalige verbouwing samen, meldt ZJA.
Het was zaak om meer ruimte te creëren voor de reiziger binnen een rijksmonument, terwijl het station ondertussen in bedrijf bleef. Heldere ontwerpuitgangspunten, een ongekend precisiewerk en een innige samenwerking tussen alle bouwpartners zorgden er volgens projectleider Teun Teeuwisse (ZJA) voor dat er een frisse, overzichtelijke en aangename ruimte is ontstaan. Ook is de oorspronkelijke architectuur van het monument beter zichtbaar gemaakt, want tevens de leesbaarheid van het gebouw moet vergroten.
Om fysiek meer ruimte te creëren, zijn de trappen en roltrappen naar de perrons verplaatst. De (te) steile hellingbaan aan de kant van de stationshal heeft hiervoor plaatsgemaakt. . Daarboven zijn de achter plaatstaal verdwenen gemetselde bogen van de originele perronconstructie teruggebracht. Ook zijn de noordgevel van het Cuypersgebouw en de voormalige grondkerende wand weer herkenbaar gemaakt.
De donkere hoekige en ‘metalen’ vormgeving uit de jaren tachtig is vervangen door lichte kleuren en accenten bij de trappen. Tegen de wand van het monument zijn naast verkeerstrappen brede treden gerealiseerd waarop bezoekers kunnen zitten. Verder zijn er in het gebied twee liften geplaatst die de entree, de reizigerstunnel en het eerste perron met elkaar verbinden.
Oosttunnel
Nu de Westknoop klaar is gaat de smalle oosttunnel op de schop gaan. Deze wordt verbreed en voorzien van winkels. Pal daarnaast wordt een grote inpandige fietsenstalling met 8800 plekken gerealiseerd, naar een ontwerp van Arcadis. Ondertussen worden de perrons stuk voor stuk verbreed, door het huidige aantal sporen tussen de perrons terug te brengen en de capaciteit van de stijgpunten - trappen, liften en roltrappen - vergroot.
De verbouwing en uitbreiding van Amsterdam Centraal is onderdeel uit van het Programma Hoogfrequent Spoorvervoer (PHS), dat als doel heeft meer treinen te kunnen laten rijden en de transferruimte in het hele station (op een aangename manier) te vergroten. Ook stijgt het aantal treinreizigers van 200.000 naar 275.000 per dag in 2030, waarvoor perrons breder en langer worden. Verder worden spoorbruggen rond het station vervangen en wordt bij de Dijksgracht een ongelijkvloerse kruising aangelegd zodat treinen niet meer op elkaar hoeven te wachten.
Eerder dit jaar werd het eerste deel van de nieuwe Eurostar-terminal in de voormalige Amstelpassage van het station
in gebruik genomen
.
Trefwoorden
igg
verbouwing
station
amsterdam centraal
amsterdam cs
braaksma & roos architectenbureau
amsterdam
zja architects & engineers
zja
Locatie
Best gelezen
1
Na renovatie en verduurzaming heeft Aquarium van Artis zijn helderheid terug
donderdag, 25 september
2
Rapport: rijke Amsterdammers leven steeds vaker apart van rest
dinsdag, 30 september
3
Architectenweb symposium: klein maar fijn wonen?
donderdag, 25 september
4
Kabinet wil wijken erbij op 127 plekken in Nederland
maandag, 29 september
5
Leiden wil verhoogd busstation naast treinperrons centraal station
dinsdag, 30 september
Gerelateerde nieuwsberichten
Dynamisch wolkenplafond leidt reizigers naar hun Eurostar-trein
13 februari
Meer foto's en video van Eurostar-terminal op Amsterdam Centraal
4 juli
Vernieuwing voor Westknoop station Amsterdam Centraal
15 mei 2023
Fietsenstalling Amsterdam CS en De Warren winnaars Gouden A.A.P. 2023
10 mei 2023
Alle werkzaamheden aan IJboulevard Amsterdam afgerond
18 april 2023
Fietsenstalling IJboulevard achter station Amsterdam CS in gebruik genomen
22 februari 2023
Nieuwe fietsenstalling aan voorzijde station Amsterdam CS officieel geopend
25 januari 2023
In beeld: Sail Amsterdam 2025
21 augustus
Station Amsterdam Centraal wacht grote vernieuwing
29 januari 2021
Glazen puien koninklijke wachtkamer Amsterdam CS onthuld
18 januari 2018
Gerenoveerde Oostlijn Amsterdam officieel geopend
12 december 2018
Opening Noord-Zuidlijn: ‘Een beetje meer lucht voor Amsterdam’
23 juli 2018
Noord-Zuidlijn Amsterdam officieel geopend
20 juli 2018
Dynamisch wolkenplafond leidt reizigers naar hun Eurostar-trein
13 februari
Meer foto's en video van Eurostar-terminal op Amsterdam Centraal
4 juli
Vernieuwing voor Westknoop station Amsterdam Centraal
15 mei 2023
Fietsenstalling Amsterdam CS en De Warren winnaars Gouden A.A.P. 2023
10 mei 2023
Alle werkzaamheden aan IJboulevard Amsterdam afgerond
18 april 2023
Fietsenstalling IJboulevard achter station Amsterdam CS in gebruik genomen
22 februari 2023
Nieuwe fietsenstalling aan voorzijde station Amsterdam CS officieel geopend
25 januari 2023
In beeld: Sail Amsterdam 2025
21 augustus
Station Amsterdam Centraal wacht grote vernieuwing
29 januari 2021
Glazen puien koninklijke wachtkamer Amsterdam CS onthuld
18 januari 2018
Gerenoveerde Oostlijn Amsterdam officieel geopend
12 december 2018
Opening Noord-Zuidlijn: ‘Een beetje meer lucht voor Amsterdam’
23 juli 2018
Noord-Zuidlijn Amsterdam officieel geopend
20 juli 2018
Toon alles
Andere nieuwsberichten
EGM architecten voltooit duurzame renovatie rijksmonument Moreelsepark
Gisteren, 13:20
De hoogwaardige renovatie van Utrechts kantoorpand brengt monumentale architectuur en Paris Proof-ambitie samen
Nudus en Proof of the Sum geselecteerd voor groot laboratoriumgebouw Groningen
Gisteren, 11:00
Een team met onder meer Nudus en Proof of the Sum is geselecteerd voor het ontwerp van het nieuwe Centraal Laboratorium voor Diagnostiek en Research (CLDR) op de Healthy Ageing Campus in Groningen.
Nieuwe editie van DigiBouw vindt plaats op 19 en 20 november in Utrecht
Gisteren, 09:59
AI, robotisering, parametrisch ontwerpen en bouwen, verandermanagement, veiligheid, open standaarden, BIM, slimme bouwlogistiek, CO2-reductie op de bouwplaats… dat zijn de thema’s die aan bod komen bij DigiBouw.
Nominaties Interieur van het Jaar 2025 bekend
Gisteren, 09:00
Als onderdeel van de Architectenweb Awards 2025 wordt begin november de prijs voor Interieur van het Jaar 2025 uitgereikt. Uit de achttien inzendingen voor deze prijs heeft de jury drie projecten genomineerd.
Zuid-Holland wil in ‘oogstjaar’ 2026 plannen uitvoeren
Gisteren, 15:16
De provincie investeert onder meer in infrastructuur, woningbouw, natuur en versterking van kleine kernen.
Rijk schrijft aanbesteding uit voor nieuwe marinierskazerne
Gisteren, 14:27
Eind 2031 wil het Korps Mariniers vanuit zijn huidige kazerne in Doorn verhuizen naar een nieuw onderkomen op de bestaande Defensielocatie Kamp Nieuw-Milligen vlakbij Apeldoorn.
Landschapstriënnale 2026 strijkt neer in Arnhem
Gisteren, 11:57
Het thema van de komende editie van de manifestatie is ‘Op Waterbasis’.
Veelzijdig ontwerper Mathieu Bruls verzorgt 21e Peutz-lezing
30 september, 3:05
Bruls (1960) is een veelzijdig ontwerper, die naast gebouwen en stedenbouwkundige plannen onder meer interieurs, meubels en tentoonstellingen ontwerpt.
Rekenkamer betwijfelt of miljoenen voor Woningbouwimpuls nuttig waren
30 september, 12:03
Het is ‘twijfelachtig’ of honderden miljoenen euro's overheidsgeld hebben geleid tot meer woningen, schrijft de Rekenkamer.
Rapport: rijke Amsterdammers leven steeds vaker apart van rest
30 september, 9:44
Het wel of niet bezitten van een woning zorgt voor een steeds grotere welvaartskloof tussen Amsterdammers.
Ga naar het nieuws-archief
Ronnie Weessies
Redacteur
0
0
0
0
Voor een optimale gebruikservaring plaatst Architectenweb functionele cookies. Wat de verschillende cookies precies doen leggen we uit in een
overzicht
. Cookies van social media kun je optioneel
aanzetten
.
Akkoord
Instellingen
Annuleren
OK
Sluiten
Doorgaan
Inloggen
Maak een gratis persoonlijk account aan
Feedback
Feedback
Wij horen graag jouw feedback. Laat je reactie achter en eventueel jouw e-mail adres.
Reactie
Verstuur