Projecten
Producten
Bedrijven
Vacatures
Agenda
Awards
Podcasts
more_horiz
Videos
Magazine
Thema's
Favorieten
Profiel
Uitloggen
Abonneer je nu op onze nieuwsbrieven!
Abonneren
Nee, bedankt
Ja, denk met me mee rond de
materialisering van mijn project
Copyright: Aiste Rakauskaite
Copyright: Aiste Rakauskaite
Copyright: Aiste Rakauskaite
Copyright: Aiste Rakauskaite
Copyright: Aiste Rakauskaite
Copyright: Aiste Rakauskaite
Copyright: Aiste Rakauskaite
Copyright: Paul Swagerman
Copyright: Paul Swagerman
Copyright: Paul Swagerman
In plaats van voort te borduren op de bestaande strokenbouw, stelden de bureaus twee slanke torens voor
Copyright: WE architecten
Schema gevels
Copyright: WE architecten
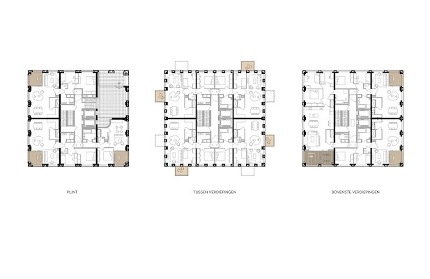
Plattegronden
Copyright: WE architecten
Woontorens aan de Schie vormen baken én overgang voor achterliggende wijk
7 februari 2025, 15:36
Bij de Spaanse Brug in het Rotterdamse stadsdeel Overschie zijn afgelopen jaar twee woontorens naar ontwerp van
WE architecten
opgeleverd. De gebouwen bieden plaats aan 76 huurwoningen, vooral in het middeldure segment. Waar de hoogste toren naast de brug fungeert als een baken voor de entree van de wijk Welschen, zorgt de lagere toren naar een overgang naar de bestaande bebouwing.
De ontwikkeling van de torens, die sinds 2011 braak lag, maakt deel uit van de vernieuwing van de naoorlogse wijk. WE architecten won de architectenselectie in 2018. In plaats van voort te borduren op de bestaande strokenbouw, stelde het bureau twee slanke torens voor. Hierdoor bleef het oeverpark behouden, behielden omwonenden hun uitzicht op het kanaal en kregen alle woningen overhoeks uitzicht zonder onaantrekkelijke galerij, verklaart WE architecten.
Afgeschuinde daken
De torens kenmerken zich door afgeschuinde daken. De gevels, uitgevoerd in metselwerk, sluiten aan op de architectuur van de omgeving. De dubbelhoge portalen en de taps toelopende balkons in prefabbeton met een beige kleurtoeslag, refereren volgens WE architecten aan de ‘bescheiden ornamentiek’ van de oorspronkelijke betonarchitectuur.
De gevels zijn door een onderverdeling verbijzonderd. In de onderste en bovenste lagen zorgen loggia’s voor accenten in het gevelbeeld, privacy en beschutting tegen de wind. De uitkragende balkons op de tussenliggende verdiepingen bieden uitzicht op het park en het kanaal.
Er is gebruikt gemaakt van een efficiënte en helder opgezet bouwsysteem. Binnen deze structuur is een gevarieerd woningaanbod opgenomen, variërend van twee- tot vierkamerappartementen. De algemene ruimten zijn ontworpen met eikenhouten accenten bij de woningtoegangen en aandacht voor details zoals armaturen en signing. De torens beschikken over dubbelhoge entrees.
Park
Het door
Felixx Landscape Architects & Planners
ontworpen park wordt geaccentueerd met gemaaide verblijfsplekken en natuurlijke zones waar bloemen- en kruidenmengsels vrij kunnen groeien. Om dichte plinten met bergingen te voorkomen, is het landschap over de bergingen heen geglooid. Wadi’s zijn geïntegreerd in het glooiende terrein. Ze vangen piekbuien op, doordat de hemelwaterafvoeren van de gebouwen erop zijn aangesloten.
Trefwoorden
we architecten
woontoren
felixx landscape architects & planners
woningbouw
middeldure huur
overschie
rotterdam
huurwoningen
Locatie
Best gelezen
1
PSV presenteert plannen voor uitbreiding Philips Stadion
vrijdag, 20 maart
2
Luxe appartementengebouw naast klooster Etten-Leur door Studio AAAN klaar
donderdag, 19 maart
3
Houten Stelthuis van Woonpioniers is aardbevings- en klimaatbestendig
woensdag, 18 maart
4
BureauVanEig verbetert uitstraling Haagse rijtjeswoningen bij verduurzaming
dinsdag, 17 maart
5
KAAN Architecten en De Zwarte Hond winnen tender voor Area 19 TU Eindhoven
vrijdag, 20 maart
Gerelateerde nieuwsberichten
Woningen in getransformeerde Baumannkerk in gebruik genomen
31 augustus 2022
College Rotterdam stelt gebiedsambitiedocument Hart van Overschie vast
2 mei 2025
Woningbouwproject Lloyd Yard in Rotterdam opgeleverd
13 juni 2024
Bouw natuurinclusief project De Juffer in Pijnacker gestart
10 april 2024
Bouw 115 energieneutrale woningen in Leidsche Rijn Centrum gestart
5 april 2023
LEVS en WE architecten presenteren opgeleverd project ZuidHaven
29 juni 2022
WE Architecten en ZUS ontwerpen woongebouw op basis van groene omgeving
5 april 2022
Zuid-Holland stemt in met plannen bouw 250.000 woningen tot 2032
11 maart 2025
Rotterdam ambieert Paris Proof woonwijk in Schiehaven Noord
13 maart 2025
Samenwerkingsverband met Blink en WE architecten wint tender Markthuis Papendrecht
15 juli 2025
WE architecten levert socialewoningbouwcomplex Zeeburgereiland op
24 september 2021
Archetypische huisjesgevel maakt individuele woningen cpo-project zichtbaar
9 juli 2021
Team onder leiding van VORM wint selectie woningbouwplan Roots
22 april 2021
Paul de Ruiter Architects, WE Architecten en ZUS ontwerpen woonblok op Lloydpier
14 februari 2020
Eigenzinnige zelfbouwwoning in Delftse Coendersbuurt
11 oktober 2019
Bouw blok 22B van WE architecten gestart
13 februari 2019
Nieuwe Rotterdamse aanpak woningbouw: meer snelheid, minder regels en heldere keuzes
20 mei 2025
Woningen in getransformeerde Baumannkerk in gebruik genomen
31 augustus 2022
College Rotterdam stelt gebiedsambitiedocument Hart van Overschie vast
2 mei 2025
Woningbouwproject Lloyd Yard in Rotterdam opgeleverd
13 juni 2024
Bouw natuurinclusief project De Juffer in Pijnacker gestart
10 april 2024
Bouw 115 energieneutrale woningen in Leidsche Rijn Centrum gestart
5 april 2023
LEVS en WE architecten presenteren opgeleverd project ZuidHaven
29 juni 2022
WE Architecten en ZUS ontwerpen woongebouw op basis van groene omgeving
5 april 2022
Zuid-Holland stemt in met plannen bouw 250.000 woningen tot 2032
11 maart 2025
Rotterdam ambieert Paris Proof woonwijk in Schiehaven Noord
13 maart 2025
Samenwerkingsverband met Blink en WE architecten wint tender Markthuis Papendrecht
15 juli 2025
WE architecten levert socialewoningbouwcomplex Zeeburgereiland op
24 september 2021
Archetypische huisjesgevel maakt individuele woningen cpo-project zichtbaar
9 juli 2021
Team onder leiding van VORM wint selectie woningbouwplan Roots
22 april 2021
Paul de Ruiter Architects, WE Architecten en ZUS ontwerpen woonblok op Lloydpier
14 februari 2020
Eigenzinnige zelfbouwwoning in Delftse Coendersbuurt
11 oktober 2019
Bouw blok 22B van WE architecten gestart
13 februari 2019
Nieuwe Rotterdamse aanpak woningbouw: meer snelheid, minder regels en heldere keuzes
20 mei 2025
Toon alles
Andere nieuwsberichten
Uitbreiding van New Museum door OMA officieel geopend
1 uur geleden
Het nieuwe volume, dat tegen het door SANAA ontworpen museumgebouw uit 2002 is geplaats, biedt onder meer ruimte aan nieuwe expositiezalen, educatiefaciliteiten en een eigen onderkomen voor de culturele ‘incubator’ van het museum NEW INC.
Vernieuwde Welstandsnota Rotterdam staat in teken van Omgevingswet, duurzaamheid en gebruiksgemak
3 uur geleden
De Rotterdamse Welstandsnota uit 2012 is geactualiseerd. Daarbij waren nieuwe inzichten en regelgeving, alsmede het gebruiksgemak voor gemeente en aanvragers bepalend.
PSV presenteert plannen voor uitbreiding Philips Stadion
20 maart, 3:37
De Eindhovense club wil de capaciteit van zijn onderkomen opschroeven met maximaal 25.000 bezoekers. Om dit te bewerkstelligen, komt er een nieuwe schil rond het stadion waarin een derde ring is opgenomen.
Rijkswaterstaat staakt renovatie markante houten Krùsrak-brug in Sneek
20 maart, 11:32
Tijdens de renovatie werd duidelijk dat de constructieve veiligheid van de brug niet langer kan worden verzekerd, laat RWS weten. De uit 2008 stammende Krúsrak-brug over de rijksweg 7 is ontworpen door Onix en Archterbosch Architecten.
Boekholt schrapt wet die voorrang statushouders stopt
2 uur geleden
De minister werkt aan een alternatieve wet, die pas in werking treedt als er genoeg mogelijkheden zijn om statushouders aan een huis te helpen.
Friesland brengt duizenden karakteristieke boerderijen in kaart
20 maart, 2:16
Door alle informatie over de voor het landschap kenmerkende gebouwen op één plek te brengen, moet het makkelijker worden om ze te behouden.
ING: bijna de helft van de huiseigenaren stelt verduurzaming uit
20 maart, 12:18
De meeste mensen vinden dat de overheid te weinig doet om dit te stimuleren.
Rekenkamer kraakt resultaten EU-innovatiefonds voor verduurzaming
20 maart, 9:25
Het Innovatiefonds van de Europese Unie levert veel minder resultaat op dan verwacht op het gebied van verduurzaming en innovatie.
Provincie schrapt beoogde locaties windturbines in Groene Hart
19 maart, 1:35
De provincie had twaalf plekken op het oog, maar dat leidde tot maatschappelijk en politiek verzet.
Staten Utrecht willen netcongestie versneld aanpakken
19 maart, 9:44
De fracties wezen op de noodzaak van het zo snel mogelijk realiseren van een hoogspanningsstation dat essentieel is voor het opsplitsen van het elektriciteitsnetwerk tussen de Flevopolder, Gelderland en Utrecht.
Ga naar het nieuws-archief
Ronnie Weessies
Redacteur
0
0
0
0
Voor een optimale gebruikservaring plaatst Architectenweb functionele cookies. Wat de verschillende cookies precies doen leggen we uit in een
overzicht
. Cookies van social media kun je optioneel
aanzetten
.
Akkoord
Instellingen
Annuleren
OK
Sluiten
Doorgaan
Inloggen
Maak een gratis persoonlijk account aan
Feedback
Feedback
Wij horen graag jouw feedback. Laat je reactie achter en eventueel jouw e-mail adres.
Reactie
Verstuur