Projecten
Producten
Bedrijven
Vacatures
Agenda
Awards
Podcasts
more_horiz
Videos
Magazine
Thema's
Favorieten
Profiel
Uitloggen
Copyright: Fedde de Weert
Copyright: Fedde de Weert
Copyright: Fedde de Weert
Copyright: Fedde de Weert
Copyright: Fedde de Weert
Copyright: WE architecten
Copyright: WE architecten
Copyright: Fedde de Weert
Copyright: WE architecten
Copyright: WE architecten
Copyright: WE architecten
Copyright: WE architecten
Copyright: WE architecten
Copyright: WE architecten
WE architecten levert socialewoningbouwcomplex Zeeburgereiland op
24 september 2021, 14:17
Op het Zeeburgereiland in Amsterdam is woongebouw De Finish opgeleverd. Het gebouw, dat is ontworpen door
WE architecten
, huisvest 56 sociale huurappartementen, een apotheek, een huisartsenpraktijk, fysiotherapie en een warmteoverslagstation. Met hun ontwerp wilden de architecten voortbouwen op de hoofdstedelijke traditie van hoogwaardige volkshuisvesting.
De Finish is direct naast het door RAU Architects ontworpen
Cburg College
gebouwd en sluit qua opbouw en volume (zeker aan de achterkant) aan op dit onderwijspand en andere gebouwen in de directe omgeving. Door het volume op te splitsen in een plint, middendeel en kroon, krijgt het gebouw een menselijke schaal, verklaart WE Architecten.
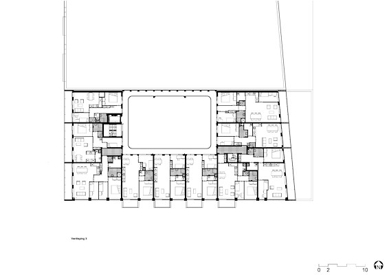
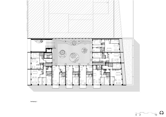
De plint bestaat uit grote gevelopeningen tussen een reeks metselwerkpenanten, die voor licht en uitzicht zorgen. Vanuit overhoeks perspectief genieten de huisartsen en fysiotherapiepraktijk juist de nodige privacy. Het middendeel bestaat uit royale raamstroken, afgewisseld met dichte geveldelen en balkons, terwijl de kroon wordt gekenmerkt door verdiepinghoge vensters.
Via een dubbelhoge entree pal naast het Cburg College worden de woningen ontsloten en toegang geboden tot de binnenhof. Met zijn intieme karakter contrasteert deze binnenplaats enigszins met het expressieve metselwerkexterieur en de verdere omgeving.
De gevels rond de binnenhof bestaan deels uit Resysta, een biobased gevelplank gemaakt van een restproduct van rijstvlies. De vloer van het hof heeft het karakter van een ‘piazza’ gekregen, dankzij het formaat van de tegels en de natuurstenen toeslag.
Zorgvuldig ontworpen
Om de kwaliteit van de verblijfsruimte in het gebouw te optimaliseren, is onder meer de dubbelhoge entree voorzien van een tribunetrap, bevatten de galerijen afgeronde hoeken, zijn huisnummers en armaturen zorgvuldig ontworpen en zijn ter verlevendiging grote bloempotten en plantenvakken met bomen geplaatst.
De bovenste drie verdiepingen van het gebouw zijn aan één zijde open, waardoor de kroon hier een U-vorm heeft gekregen. De galerijen lopen echter door en bieden, vrij hangend in de lucht, zicht op de beeldbepalende silo’s van het Zeeburgereiland en het achtergelegen Markermeer.
Woningcorporatie De Alliantie is de opdrachtgever van het project.
Locatie
Best gelezen
1
Finalisten presenteren ontwerp voor Shift Landmark in Rotterdam
woensdag, 4 maart
2
Nieuwe Hittekaart Woningmarkt 2026 van BPD toont aanhoudende woningdruk
dinsdag, 3 maart
3
Strijp-S krijgt woonbuurtje met karakteristieken voormalig Philips-terrein
maandag, 2 maart
4
Melkmeisje staat model voor woontoren De Catharina in Zaandam
vrijdag, 27 februari
5
Haagse gemeenteraad stemt in met bouw van 11.400 woningen in nieuw stadscentrum
maandag, 2 maart
Gerelateerde nieuwsberichten
WE Architecten en ZUS ontwerpen woongebouw op basis van groene omgeving
5 april 2022
Amsterdam bouwt buurt met 1.800 woningen in Baaibuurt-West
22 maart 2024
Woontorens aan de Schie vormen baken én overgang voor achterliggende wijk
7 februari 2025
Woningbouwproject Lloyd Yard in Rotterdam opgeleverd
13 juni 2024
Zeven lessen rond het ontwerp van sociale woningbouw
2 oktober 2023
Archetypische huisjesgevel maakt individuele woningen cpo-project zichtbaar
9 juli 2021
Team onder leiding van VORM wint selectie woningbouwplan Roots
22 april 2021
Paul de Ruiter Architects, WE Architecten en ZUS ontwerpen woonblok op Lloydpier
14 februari 2020
Bouw blok 22B van WE architecten gestart
13 februari 2019
MNNR Architects ontwerpt supermarkt met sociaal woonprogramma erboven
23 februari 2022
Nominaties Gouden A.A.P. 2022 bekend
5 maart 2022
WE Architecten en ZUS ontwerpen woongebouw op basis van groene omgeving
5 april 2022
Amsterdam bouwt buurt met 1.800 woningen in Baaibuurt-West
22 maart 2024
Woontorens aan de Schie vormen baken én overgang voor achterliggende wijk
7 februari 2025
Woningbouwproject Lloyd Yard in Rotterdam opgeleverd
13 juni 2024
Zeven lessen rond het ontwerp van sociale woningbouw
2 oktober 2023
Archetypische huisjesgevel maakt individuele woningen cpo-project zichtbaar
9 juli 2021
Team onder leiding van VORM wint selectie woningbouwplan Roots
22 april 2021
Paul de Ruiter Architects, WE Architecten en ZUS ontwerpen woonblok op Lloydpier
14 februari 2020
Bouw blok 22B van WE architecten gestart
13 februari 2019
MNNR Architects ontwerpt supermarkt met sociaal woonprogramma erboven
23 februari 2022
Nominaties Gouden A.A.P. 2022 bekend
5 maart 2022
Toon alles
Andere nieuwsberichten
Architect Oliver Thill op 55-jarige leeftijd overleden
3 uur geleden
Afgelopen maandag is op 55-jarige leeftijd architect Oliver Thill overleden. Het door hem en André Kempe opgerichte Atelier Kempe Thill behoort tot de meest gewaardeerde Nederlandse architectenbureaus van de afgelopen 25 jaar.
HvdHA ontwerpt twee woonblokken in Utrecht Terwijde volgens typologie van woonpalazzo
Vandaag, 10:49
In Utrecht Terwijde worden twee woonblokken met 161 sociale huurwoningen naar ontwerp van Hans van der Heijden Architecten gerealiseerd. De gebouwen worden ontworpen volgens de typologie van een ‘woonpalazzo’.
Sweco neemt Belgische activiteiten Conix RDBM Architects over
Gisteren, 16:31
Sweco voegt opnieuw een grote vis toe aan zijn vijver van overgenomen architectenbureaus. Vanaf 30 april zet Conix RDBM Architects zijn Belgische activiteiten voort onder de naam Sweco Architects.
VAi schijnt licht op feministische vrouwenwerkgroep uit de jaren tachtig
Gisteren, 15:47
In de jaren 1980 ging de Vlaamse Werkgroep Vrouwen en Wonen de strijd aan met het heersende patriarchale woon- en maatschappijmodel. Het Vlaams Architectuurinstituut organiseert een tentoonstelling over deze wegbereiders en hun boodschap.
Hardt Hyperloop failliet verklaard door rechtbank
Vandaag, 11:37
Het Rotterdamse bedrijf was bezig met de ontwikkeling van technologie om mensen op hoge snelheid via capsules door een vacuümbuis te vervoeren.
Onderzoek: zeespiegel kustgebieden hoger dan in studies aangenomen
Vandaag, 09:13
De zeespiegel aan de kust is in grote delen van de wereld waarschijnlijk hoger dan in veel wetenschappelijke studies wordt aangenomen.
Gelderland geeft voorrang aan vergunningen met minder stikstof
Gisteren, 12:24
De plannen zijn onderdeel van het pakket maatregelen dat het Gelderse bestuur wil nemen om de vergunningverlening voor zaken als de woningbouw weer op gang te krijgen.
Amsterdam bouwde opnieuw minder woningen dan de bedoeling is
Gisteren, 10:56
Wethouder Steven van Weyenberg spreekt van een ‘sprong in de aantallen’, omdat er in 2025 beduidend meer huizen bijkwamen dan de jaren daarvoor.
Rijksvastgoedbedrijf zet eerste deelgebied nieuwe wijk Valkenhorst in Katwijk te koop
3 maart, 3:26
Op deze locatie mogen de eerste 450 van de in totaal 5.600 woningen worden gebouwd.
Verkoopgolf van woningen door investeerders zet door
2 maart, 2:57
Investeerders hebben in het vierde kwartaal van vorig jaar de meeste woningen verkocht sinds 2021, meldt het Kadaster.
Ga naar het nieuws-archief
Ronnie Weessies
Redacteur
1
0
0
0
Voor een optimale gebruikservaring plaatst Architectenweb functionele cookies. Wat de verschillende cookies precies doen leggen we uit in een
overzicht
. Cookies van social media kun je optioneel
aanzetten
.
Akkoord
Instellingen
Annuleren
OK
Sluiten
Doorgaan
Inloggen
Maak een gratis persoonlijk account aan
Feedback
Feedback
Wij horen graag jouw feedback. Laat je reactie achter en eventueel jouw e-mail adres.
Reactie
Verstuur