Projecten
Producten
Bedrijven
Vacatures
Agenda
Awards
Podcasts
more_horiz
Videos
Magazine
Favorieten
Profiel
Uitloggen
Abonneer je nu op onze nieuwsbrieven!
Abonneren
Nee, bedankt
Ja, denk met me mee rond de
materialisering van mijn project
Copyright: Judith van der Poel
Copyright: Jeroen Musch
Copyright: Jeroen Musch
Copyright: Jeroen Musch
Copyright: Jeroen Musch
Copyright: Jeroen Musch
Copyright: Jeroen Musch
Copyright: Jeroen Musch
Copyright: Jeroen Musch
Copyright: Jeroen Musch
Copyright: Jeroen Musch
Situatie
Copyright: Jasper Smits Architecten
Dwarsdoorsnede
Copyright: Jasper Smits Architecten
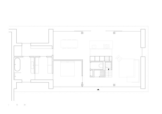
Begane grond
Copyright: Jasper Smits Architecten
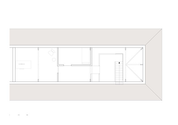
Verdieping
Copyright: Jasper Smits Architecten
Jasper Smits Architecten ontwerpt levensloopbestendige woning in woonboerderij
8 september 2023, 13:20
Als onderdeel van een woonboerderij in het Gelderse Hulshorst heeft Jasper Smits Architecten een levensloopbestendige woning voor twee bewoners ontworpen. Op een verhoogde werkruimte na bevinden alle functies zich op de begane grond. De werkruimte ligt bovenop een vrijstaand, centraal gepositioneerd blok dat meerdere functies herbergt.
De woning is gerealiseerd in een nieuwgebouwde woonboerderij, die op de plek staat van een oude woonboerderij die verloren is gegaan bij een brand. De bewoners waarvoor Jasper Smits een nieuw huis heeft ontworpen, woonden voordien in de omgebouwde stal van de afgebrande boerderij. Ook de andere oorspronkelijke bewoners zijn in de nieuwe boerderij gaan wonen, maar die hebben voor een eigen ontwerp gekozen. Om de overgang naar de andere woning te verspoelen, is een setback in de gevel gemaakt.
De door Jasper Smits ontworpen woning heeft een volledig houten constructie. De nok symboliseert de boerderijtypologie en geeft de ruimte extra hoogte. Dankzij een lichtstraat in het dak brengt de nok bovendien extra daglicht naar binnen. Centraal in de woonkamer staat een vrijstaand blok met daarin een toilet, garderobe, meterkast en keukenwand. Een trap leidt naar een werkruimte, die deels uitkraagt boven het keukendeel.
De woonkamer heeft verder een open plattegrond, waarbij de eet- en zithoek uitgewisseld kunnen worden. Via glazen puien in beide langsgevels kunnen de bewoners hun woning openen en zo vanuit hun woonkamer de tuin in stappen. De slaapkamers bevinden zich in het deel van de woning dat ter hoogte van de bestaande schuur ligt.
Trefwoorden
jasper smits
woonboerderij
woonhuis
jasper smits architecten
hulshorst
Best gelezen
1
Woontoren Front door Monadnock wint tiende Architectuurprijs Nijmegen
donderdag, 9 april
2
Spoorwegverleden inspireert ontwerp woonblok Wisselspoor 10 in Utrecht
woensdag, 8 april
3
Rotterdam mag woningen gaan bouwen aan de Parkhaven
woensdag, 8 april
4
KOW wint met Marker Woods tender voor nieuwe wijk Eschmarkerveld
woensdag, 8 april
5
RED Company vraagt vergunning aan voor productie- en onderzoeksfaciliteit Lilly
dinsdag, 7 april
Gerelateerde nieuwsberichten
Blokken met sociale woningen New Brooklyn door Jasper Smits opgeleverd
25 september 2024
Parochiegebouw met meerdere levens getransformeerd tot woonhuis
23 juni 2022
Limburgse bessenplantage uitgebreid met (on)opvallende groepsaccommodatie
4 september 2025
Keuterij getransformeerd tot eigentijds woonhuis
24 november 2023
Een schuur-studio bij een eigentijdse woonboerderij
14 augustus 2023
Minimalistische details voor een gerenoveerde en uitgebreide woning
11 november 2024
Blokken met sociale woningen New Brooklyn door Jasper Smits opgeleverd
25 september 2024
Parochiegebouw met meerdere levens getransformeerd tot woonhuis
23 juni 2022
Limburgse bessenplantage uitgebreid met (on)opvallende groepsaccommodatie
4 september 2025
Keuterij getransformeerd tot eigentijds woonhuis
24 november 2023
Een schuur-studio bij een eigentijdse woonboerderij
14 augustus 2023
Minimalistische details voor een gerenoveerde en uitgebreide woning
11 november 2024
Toon alles
Andere nieuwsberichten
Restauratie Atlasbeeld op dak Koninklijk Paleis Amsterdam afgerond
10 april, 3:38
Het beeld op het fronton van het paleis was in juli van zijn plek gehaald voor een uitgebreide onderhoudsbeurt in Antwerpen.
Nieuw zitgebied Lounge 2 Schiphol geïnspireerd door overgangsfase in oeuvre Mondriaan
10 april, 2:16
Op luchthaven Schiphol is de derde en laatste fase van door Beyond Space ontworpen zitgebieden opgeleverd. Net als de eerste twee fases van het project is dit gedeelte geïnspireerd door het werk van Mondriaan, maar dan uit een eerdere periode.
SeARCH en Heutink Groep winnen tender voor woongebouw Sluisbuurt
10 april, 11:15
Gebouw Radius biedt plek aan zo’n honderd appartementen, een stadskamer, een binnentuin, daktuinen en andere gemeenschappelijke ruimtes. Het gebouw wordt gerealiseerd van natuurlijke materialen als hout, stampleem en leemsteen.
Woontoren Front door Monadnock wint tiende Architectuurprijs Nijmegen
9 april, 10:00
“Front is een optimistisch icoon, gemaakt met lef, dat ambachtelijkheid en vakmanschap uitstraalt”, stelt de jury in zijn rapport.
Grote en kleine gemeenten balen van bouwregels Zuid-Holland
10 april, 4:31
Grote en kleine gemeenten in Zuid-Holland hebben hun zorgen geuit over nieuwe regels van de provincie, die volgens hen de woningbouw belemmeren.
Twijfels in Zuid-Holland over halen van doelen landelijk gebied
10 april, 12:18
De meeste partijen in de Zuid-Hollandse politiek hebben twijfels over de plannen die in zestien deelgebieden zijn gemaakt voor de aanpak van het landelijk gebied.
Huurprijzen stijgen harder dan koopwoningprijzen
10 april, 9:31
Volgens Huurwoningen.nl en Pararius moesten nieuwe huurders in het eerste kwartaal gemiddeld 21,12 euro per vierkante meter per maand neerleggen.
ABN AMRO: investeringen defensie vergroten druk op bouwcapaciteit
9 april, 12:29
Kazernes, opslagplaatsen en oefenterreinen dingen om dezelfde aannemers, ingenieurs en installateurs die ook nodig zijn voor bijvoorbeeld woningbouw.
Europa kent 831 miljoen euro subsidie toe aan Utrechtse projecten
9 april, 9:27
Het gaat onder meer om projecten tegen oververhitting van gebouwen, slimmer gebruik van energie en het hergebruik van materialen en grondstoffen.
Rotterdam mag woningen gaan bouwen aan de Parkhaven
8 april, 3:38
De Raad van State maakte woensdag bekend dat alle bezwaren tegen het bestemmingsplan zijn verworpen.
Ga naar het nieuws-archief
Ronnie Weessies
Redacteur
0
0
0
0
Voor een optimale gebruikservaring plaatst Architectenweb functionele cookies. Wat de verschillende cookies precies doen leggen we uit in een
overzicht
. Cookies van social media kun je optioneel
aanzetten
.
Akkoord
Instellingen
Annuleren
OK
Sluiten
Doorgaan
Inloggen
Maak een gratis persoonlijk account aan
Feedback
Feedback
Wij horen graag jouw feedback. Laat je reactie achter en eventueel jouw e-mail adres.
Reactie
Verstuur