Projecten
Producten
Bedrijven
Vacatures
Agenda
Awards
Podcasts
more_horiz
Videos
Magazine
Thema's
Favorieten
Profiel
Uitloggen
Copyright: Jeroen Musch
Copyright: Jeroen Musch
Copyright: Jeroen Musch
Copyright: Jeroen Musch
Copyright: Jeroen Musch
Copyright: Jeroen Musch
Copyright: Jeroen Musch
Copyright: Jeroen Musch
Copyright: Jeroen Musch
Copyright: Jasper Smits
Copyright: Jasper Smits
Copyright: Jasper Smits
Copyright: Jasper Smits
Copyright: Jasper Smits
Parochiegebouw met meerdere levens getransformeerd tot woonhuis
23 juni 2022, 11:47
Architect
Jasper Smits
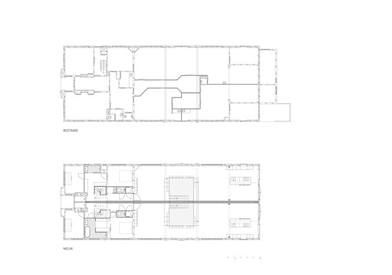
heeft het voormalige parochiegebouw De Vereeniging in De Bilt getransformeerd tot een woonhuis voor twee gezinnen. Het langgerekte pand is in twee symmetrische helften gedeeld, waardoor twee nagenoeg gelijke woningen ontstonden. Ook binnen zijn nog kenmerken van de vroegere situatie herkenbaar.
Het uit 1930 stammende parochiegebouw De Vereeniging heeft meerdere levens gehad en kent een roemruchte geschiedenis. Het heeft onder meer gefungeerd as repetitieruimte voor het kerkkoor en bibliotheek, maar ook als concertpodium waar onder meer The Golden Earrings (voordat ze Golden Earring heetten) hebben opgetreden.
De buitenzijde van het gebouw is zoveel mogelijk intact gelaten, er zijn alleen ingrepen gepleegd die noodzakelijk waren om het pand tot woonhuis te herbestemmen. De nieuwe, dubbele voordeur is gebaseerd op het originele ontwerp. Het raam in de topgevel, dat gesplitst moest worden, kreeg een terugliggende stijl in metselwerk. Om meer daglicht in de woonruimte te krijgen, zijn de ramen in de zijgevel verhoogd. Ook hiervoor vormde de originele blauwdruk het uitgangspunt.
Ongebruikelijke lengte
De woningen kennen een ongebruikelijke lengte van meer dan dertig meter. Desondanks laten de woningen zich bij binnenkomst in een oogopslag lezen, dankzij een lange zichtlijn vanaf de voordeur tot aan de achtertuin.
In de nieuwe situatie huisvest het karakteristieke voorhuis werk- en slaapvertrekken. Op de begane grond hebben de woningen aan de straatzijde een werkkamer en aan de achterzijde een ouderslaapkamer met badkamer. Nieuwe trappen leiden naar de verdieping waar de kinderen slapen.
Om de oorspronkelijke opzet van het parochiehuis terug te brengen, is een later toegevoegde opbouw op het tussenlid tussen voor- en achterbouw verwijderd. Ook zijn achter het vroegere podium op het uiteinde van het gebouw enkele aanbouwen verwijderd.
Entresol
De grootste metamorfose heeft plaatsgevonden in het vroegere zaalgedeelte achter het voorhuis. Dankzij een nieuwe gevlinderde betonvloer en het oorspronkelijke houten plafond behoudt de twintig meter lange, ruim vier meter hoge ruimte zijn zaalkarakteristiek. Halverwege de ruimte hangt aan het plafond een met blauwstaal beklede entresol, daaronder bevindt zich een zitkuil.
Dankzij de opvallende entresol annex ‘roomdivider’ ontstaan vier vrijwel vierkante leefzones die met de oorspronkelijke draagconstructie en gevelindeling samenvallen. Het gaat om een (speel)ruimte voor de kinderen, een zitgebied (rust/lezen onder, tv kijken boven), een eetgedeelte met haard en een keuken. De zijramen zijn voorzien van antracietkleurige aluminium kozijnen met restauratieprofiel, die het industriële karakter van de woning versterken.
Podium
De voorheen gesloten achterwand van het podium opent zich via een groot raam en openslaande deuren richting de achtertuin. Het hogere deel van de keuken herinnert aan de vroegere aanwezigheid van het podium.
Trefwoorden
transformatie
woonhuis
jasper smits
woning
de bilt
Locatie
Best gelezen
1
Finalisten presenteren ontwerp voor Shift Landmark in Rotterdam
woensdag, 4 maart
2
Nieuwe Hittekaart Woningmarkt 2026 van BPD toont aanhoudende woningdruk
dinsdag, 3 maart
3
Strijp-S krijgt woonbuurtje met karakteristieken voormalig Philips-terrein
maandag, 2 maart
4
Melkmeisje staat model voor woontoren De Catharina in Zaandam
vrijdag, 27 februari
5
Architect Oliver Thill op 55-jarige leeftijd overleden
donderdag, 5 maart
Gerelateerde nieuwsberichten
Jasper Smits Architecten ontwerpt levensloopbestendige woning in woonboerderij
8 september 2023
Blokken met sociale woningen New Brooklyn door Jasper Smits opgeleverd
25 september 2024
Limburgse bessenplantage uitgebreid met (on)opvallende groepsaccommodatie
4 september 2025
Zecc, Jasper Smits en Lindeloof ontwerpen woonblok bij oude scheepswerf Krimpen aan den IJssel
19 mei 2022
Ard Hoksbergen wint Abe Bonnema Prijs voor Jonge Architecten
13 december 2020
Video: portretten genomineerden 'jonge' Abe Bonnema Prijs
4 december 2020
Het Lichtruim van GROUP A verbindt omgeving
3 februari 2014
BYTR schept meer ruimte voor kringloopwinkel
17 augustus 2012
Gezocht: interieurontwerp bij transformatieprojecten
12 september 2022
Jasper Smits Architecten ontwerpt levensloopbestendige woning in woonboerderij
8 september 2023
Blokken met sociale woningen New Brooklyn door Jasper Smits opgeleverd
25 september 2024
Limburgse bessenplantage uitgebreid met (on)opvallende groepsaccommodatie
4 september 2025
Zecc, Jasper Smits en Lindeloof ontwerpen woonblok bij oude scheepswerf Krimpen aan den IJssel
19 mei 2022
Ard Hoksbergen wint Abe Bonnema Prijs voor Jonge Architecten
13 december 2020
Video: portretten genomineerden 'jonge' Abe Bonnema Prijs
4 december 2020
Het Lichtruim van GROUP A verbindt omgeving
3 februari 2014
BYTR schept meer ruimte voor kringloopwinkel
17 augustus 2012
Gezocht: interieurontwerp bij transformatieprojecten
12 september 2022
Toon alles
Andere nieuwsberichten
Architect Oliver Thill op 55-jarige leeftijd overleden
Vandaag, 14:27
Afgelopen maandag is op 55-jarige leeftijd architect Oliver Thill overleden. Het door hem en André Kempe opgerichte Atelier Kempe Thill behoort tot de meest gewaardeerde Nederlandse architectenbureaus van de afgelopen 25 jaar.
HvdHA ontwerpt twee woonblokken in Utrecht Terwijde volgens typologie van woonpalazzo
Vandaag, 10:49
In Utrecht Terwijde worden twee woonblokken met 161 sociale huurwoningen naar ontwerp van Hans van der Heijden Architecten gerealiseerd. De gebouwen worden ontworpen volgens de typologie van een ‘woonpalazzo’.
Sweco neemt Belgische activiteiten Conix RDBM Architects over
Gisteren, 16:31
Sweco voegt opnieuw een grote vis toe aan zijn vijver van overgenomen architectenbureaus. Vanaf 30 april zet Conix RDBM Architects zijn Belgische activiteiten voort onder de naam Sweco Architects.
VAi schijnt licht op feministische vrouwenwerkgroep uit de jaren tachtig
Gisteren, 15:47
In de jaren 1980 ging de Vlaamse Werkgroep Vrouwen en Wonen de strijd aan met het heersende patriarchale woon- en maatschappijmodel. Het Vlaams Architectuurinstituut organiseert een tentoonstelling over deze wegbereiders en hun boodschap.
Hardt Hyperloop failliet verklaard door rechtbank
Vandaag, 11:37
Het Rotterdamse bedrijf was bezig met de ontwikkeling van technologie om mensen op hoge snelheid via capsules door een vacuümbuis te vervoeren.
Onderzoek: zeespiegel kustgebieden hoger dan in studies aangenomen
Vandaag, 09:13
De zeespiegel aan de kust is in grote delen van de wereld waarschijnlijk hoger dan in veel wetenschappelijke studies wordt aangenomen.
Gelderland geeft voorrang aan vergunningen met minder stikstof
Gisteren, 12:24
De plannen zijn onderdeel van het pakket maatregelen dat het Gelderse bestuur wil nemen om de vergunningverlening voor zaken als de woningbouw weer op gang te krijgen.
Amsterdam bouwde opnieuw minder woningen dan de bedoeling is
Gisteren, 10:56
Wethouder Steven van Weyenberg spreekt van een ‘sprong in de aantallen’, omdat er in 2025 beduidend meer huizen bijkwamen dan de jaren daarvoor.
Rijksvastgoedbedrijf zet eerste deelgebied nieuwe wijk Valkenhorst in Katwijk te koop
3 maart, 3:26
Op deze locatie mogen de eerste 450 van de in totaal 5.600 woningen worden gebouwd.
Verkoopgolf van woningen door investeerders zet door
2 maart, 2:57
Investeerders hebben in het vierde kwartaal van vorig jaar de meeste woningen verkocht sinds 2021, meldt het Kadaster.
Ga naar het nieuws-archief
Ronnie Weessies
Redacteur
1
0
0
0
Voor een optimale gebruikservaring plaatst Architectenweb functionele cookies. Wat de verschillende cookies precies doen leggen we uit in een
overzicht
. Cookies van social media kun je optioneel
aanzetten
.
Akkoord
Instellingen
Annuleren
OK
Sluiten
Doorgaan
Inloggen
Maak een gratis persoonlijk account aan
Feedback
Feedback
Wij horen graag jouw feedback. Laat je reactie achter en eventueel jouw e-mail adres.
Reactie
Verstuur