Projecten
Producten
Bedrijven
Vacatures
Agenda
Awards
Podcasts
more_horiz
Videos
Magazine
Favorieten
Profiel
Uitloggen
Abonneer je nu op onze nieuwsbrieven!
Abonneren
Nee, bedankt
Ja, denk met me mee rond de
materialisering van mijn project
Copyright: Jeroen Musch
Copyright: Jeroen Musch
Copyright: Jeroen Musch
Copyright: Jeroen Musch
Copyright: Jeroen Musch
Copyright: Jeroen Musch
Copyright: Jeroen Musch
Copyright: Jeroen Musch
Copyright: Jeroen Musch
Copyright: Jeroen Musch
Copyright: Jeroen Musch
Copyright: Jeroen Musch
Copyright: Jeroen Musch
Copyright: Jeroen Musch
Situatie
Copyright: Jasper Smits Architecten
Concept
Copyright: Jasper Smits Architecten
Doorsnede
Copyright: Jasper Smits Architecten
Doorsnede
Copyright: Jasper Smits Architecten
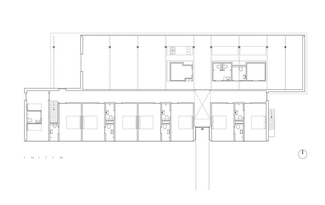
Begane grond
Copyright: Jasper Smits Architecten
Verdieping
Copyright: Jasper Smits Architecten
Limburgse bessenplantage uitgebreid met (on)opvallende groepsaccommodatie
4 september 2025, 14:47
Op de bessenplantage Blankwater in Swalmen is naar ontwerp van
Jasper Smits Architecten
in samenwerking met
Raumkultur
een groepsaccommodatie opgeleverd. Boshuis Blankwater biedt plek aan vijftien slaapvertrekken en een gemeenschappelijke ruimte. Het gebouw bestaat uit twee volumes.
Het 730 vierkante meter omvattende zwarte Boshuis maakt deel uit van een 62 hectare omvattend landgoed nabij de Duitse grens. Het landgoed omvat verder een bos, grasland, een blauwebessenplantage en een lunchcafé. Het nieuwe gebouw is op bescheiden wijze ‘ingenesteld’ in een oksel aan de rand van het bos.
Om het Boshuis te bereiken lopen bezoekers vanaf de parkeerplaats door het bos naar het gebouw. Onderweg ontneemt de groepsaccommodatie het zicht op de bessenplantage, maar dat wordt binnen ruimschoots vergoed met een weids uitzicht over het landgoed en de ruggen waar de blauwebessenplanten op groeien.
Ieder volume herbergt een eigen programma
Het gebouw refereert qua vorm aan de schuren in de directe omgeving, die vaak van een aanbouw zijn voorzien. De twee volumes, met ieder hun eigen constructieprincipe, verdelen ook het programma van de groepsaccommodatie in twee delen. De gemeenschappelijke ruimte bevindt zich in het volume gericht op de bessenplantage, terwijl het andere volume de slaapvertrekken herbergt.
De slaapvertrekken op de begane grond richten zich op het bos, terwijl de slaapvertrekken op de eerste verdieping op de lucht en de bessenplantage georiënteerd zijn. Elke ruimte heeft zo een eigen relatie met de omgeving. De gangen zijn ingetogen gehouden, met daglichttoetreding van twee kanten en verlichting als ‘intuïtieve begeleiders’ naar de verschillende ruimtes in het gebouw.
De gemeenschappelijke ruimte is bedoeld voor zowel voor grote als kleinere groepen. Het dak rust op gelamineerde liggers die op dubbele kolommen staan. Deze kolommen staan bijna twee meter van de gevel en maken de grote zaal op deze manier een stuk intiemer. Het houten dak dat schuin oploopt zorgt voor zowel intimiteit als ruimtelijkheid, stelt Jasper Smits Architecten.
Interieurontwerp
Het collectief van ontwerpers en makers Raumkultur is verantwoordelijk voor het interieurontwerp en de levering van de (maatwerk-)inrichting. In de gemeenschappelijke ruimte zijn de functionele maatwerken als keuken, kasten en hoge tafels in de studio ontworpen en geproduceerd in eigen werkplaats. De wandlampen, die zijn geïnspireerd op planten, zijn als creatief maatwerk uitgegeven aan een van de medewerkers van het collectief.
In de slaap- en badkamers is de lijn van maatwerken doorgevoerd in de bedhoofden met verplaatsbare nachtkastjes, de schrijf-/koffertafels en de multifunctionele
vanity shelfs
met geïntegreerde verlichting en handdoekhaakjes in de badkamers. D
Het boshuis is met minimaal budget gebouwd. Jasper Smits Architecten heeft hiertoe scherpe keuzes gemaakt in materialisatie, vloeropbouw, installaties en het reduceren van het aantal aansluitingen. Zo is een zeer sober, doch elegant houten gebouw gerealiseerd. Het casco van het boshuis is volledig geprefabriceerd in hout. Het stalen dak is niet voorzien van goten zodat het regenwater direct de natuur in kan stromen. Door de grote ramen met weerspiegelend glas verandert het aanzicht van het gebouw gedurende de dag en per seizoen.
Trefwoorden
raumkultur
jasper smits architecten
swalmen
jasper smits
groepsaccomodatie
Locatie
Best gelezen
1
AM en Amvest zoeken architecten voor herontwikkeling Draka-terrein
dinsdag, 19 mei
2
Woningbouwproject KAAP langs het IJ in Amsterdam voltooid
dinsdag, 19 mei
3
Renovatie station Leeuwarden door Movares afgerond
woensdag, 20 mei
4
Dam & Partners ontwerpt multifunctioneel gebouw in Schinkelhaven
dinsdag, 19 mei
5
Utrechtse flats gerenoveerd volgens 'chassis-carrosseriemethode'
donderdag, 21 mei
Gerelateerde nieuwsberichten
Raumkultur en IkLandschap lanceren manifest over woonvormen voor ouderen
23 maart
Blokken met sociale woningen New Brooklyn door Jasper Smits opgeleverd
25 september 2024
Jasper Smits Architecten ontwerpt levensloopbestendige woning in woonboerderij
8 september 2023
Parochiegebouw met meerdere levens getransformeerd tot woonhuis
23 juni 2022
Zecc, Jasper Smits en Lindeloof ontwerpen woonblok bij oude scheepswerf Krimpen aan den IJssel
19 mei 2022
Ard Hoksbergen wint Abe Bonnema Prijs voor Jonge Architecten
13 december 2020
Raumkultur en IkLandschap lanceren manifest over woonvormen voor ouderen
23 maart
Blokken met sociale woningen New Brooklyn door Jasper Smits opgeleverd
25 september 2024
Jasper Smits Architecten ontwerpt levensloopbestendige woning in woonboerderij
8 september 2023
Parochiegebouw met meerdere levens getransformeerd tot woonhuis
23 juni 2022
Zecc, Jasper Smits en Lindeloof ontwerpen woonblok bij oude scheepswerf Krimpen aan den IJssel
19 mei 2022
Ard Hoksbergen wint Abe Bonnema Prijs voor Jonge Architecten
13 december 2020
Toon alles
Andere nieuwsberichten
SOME architects presenteert resultaten van onderzoek naar woonwensen 55-plussers
22 mei, 4:09
Publicatie ‘Woontitanen’ biedt inspiratie en handvatten om kloof tussen vraag en aanbod in woningaanbod voor 55-plussers te dichten.
In beeld: inschuiven dakdeel van 2,4 miljoen kilo over Vivaldipassage
22 mei, 2:43
Bij station Amsterdam Zuid vond afgelopen week een bijzondere inschuifoperatie plaats. Ten oosten van het station werd een nieuw dakdeel met een gewicht van 2,4 miljoen kilo over de toekomstige Vivalipassage geschoven.
Brug van hergebruikte materialen over Papaverkanaal in Buiksloterham
22 mei, 1:15
Knipscheer Infra en Rademacher / De Vries Architecten hebben de aanbesteding gewonnen voor een brug van hergebruikte materialen in de Amsterdamse wijk Buiksloterham.
OZ transformeert kantoorgebouw achter voormalig hoofdkantoor Shell tot Ypsilon Park
22 mei, 10:41
OZ transformeert een kantoorgebouw uit de jaren zeventig aan de Wassenaarseweg in Den Haag tot een woongebouw. Ypsilon Park bestaat uit 79 appartementen en penthouses, die in grootte variëren van 75 tot 280 vierkante meter.
Amsterdam wil woningbezitters weren uit sociale huurwoning
22 mei, 12:23
Het stadsbestuur wil daarmee duidelijk maken dat het onwenselijk is dat huizenbezitters sociale huurwoningen bezet houden.
Mogelijk minder ruimte nodig voor uitbreidingsplannen Moerdijk
22 mei, 9:47
Het dorp Moerdijk zou in dat geval kunnen blijven bestaan, aldus de gemeente.
Museum Rotterdam ontvangt sleutels van Citykerk Het Steiger
21 mei, 3:01
Citykerk Het Steiger, een wederopbouwmonument in de Rotterdamse binnenstad, ondergaat in de komende jaren een transformatie naar onderkomen voor Museum Rotterdam, alsook naar woon- en kantoorruimte.
Naturalis: Nederlandse natuur verbetert, maar niet snel genoeg
21 mei, 1:50
Het gaat beter met de natuur in Nederland, maar niet snel genoeg om aan afspraken te voldoen.
Bouw van flexwoningen valt tegen, ziet Rekenkamer
21 mei, 9:50
De 948 miljoen euro die sinds 2021 opzij is gezet om meer flexwoningen te bouwen, is pas deels uitgegeven.
Binnenhof al bij voorbaat te klein voor alle organisaties
20 mei, 2:47
Nog voordat de verbouwing van het Binnenhof klaar is, is het complex te klein voor alle organisaties die erin moeten.
Ga naar het nieuws-archief
Ronnie Weessies
Redacteur
1
0
0
0
Voor een optimale gebruikservaring plaatst Architectenweb functionele cookies. Wat de verschillende cookies precies doen leggen we uit in een
overzicht
. Cookies van social media kun je optioneel
aanzetten
.
Akkoord
Instellingen
Annuleren
OK
Sluiten
Doorgaan
Inloggen
Maak een gratis persoonlijk account aan
Feedback
Feedback
Wij horen graag jouw feedback. Laat je reactie achter en eventueel jouw e-mail adres.
Reactie
Verstuur