Projecten
Producten
Bedrijven
Vacatures
Agenda
Awards
Podcasts
more_horiz
Videos
Magazine
Favorieten
Profiel
Uitloggen
Abonneer je nu op onze nieuwsbrieven!
Abonneren
Nee, bedankt
Ja, denk met me mee rond de
materialisering van mijn project
Copyright: Luuk Kramer
Copyright: Luuk Kramer
Copyright: Luuk Kramer
Copyright: Luuk Kramer
Copyright: Luuk Kramer
Copyright: Luuk Kramer
Copyright: Luuk Kramer
Copyright: Luuk Kramer
Copyright: Luuk Kramer
Copyright: Luuk Kramer
Copyright: Luuk Kramer
Copyright: Luuk Kramer
Copyright: Luuk Kramer
Copyright: Luuk Kramer
Copyright: Luuk Kramer
Copyright: Luuk Kramer
Impressie Cruquiuswerf
Copyright: atelier Puuur, Theo van Leur
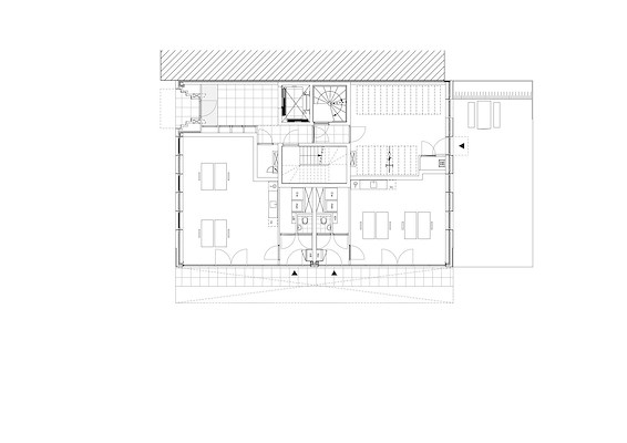
Begane grond
Copyright: atelier Puuur
Verdieping 1 tot en met 4
Copyright: atelier Puuur
Verdieping 6
Copyright: atelier Puuur
Westgevel
Copyright: atelier Puuur
Zuidgevel
Copyright: atelier Puuur
Situatie
Copyright: atelier Puuur
Robuust woongebouw als hoekpunt van Cruquiswerf
30 augustus 2023, 11:10
Op Cruquiuseiland, in het Oostelijk Havengebied in Amsterdam, is het woongebouw De Parel van Cruquiswerf opgeleverd. Het robuust ogende pand, ontwikkeld door
PEX Real Estate
en ontworpen door
atelier Puuur
, vormt het sluitstuk van een stedenbouwkundig ensemble en een markant hoekpunt aan de kade.
De Parel van Cruquiswerf maakt deel uit van Cruquiuswerf, een woningbouwproject op het schiereiland in het Oostelijk Havengebied. Het woongebouw staat aan de kade, vlakbij het punt waar de Nieuwevaart en het Amsterdam-Rijnkanaal elkaar ontmoeten. Met de voorzijde naar het water gekeerd vormt het woongebouw de beëindiging van een ensemble langs de Nieuwevaartweg.
Overhoekse leefruimten
Het gebouw omvat tien woningen. De appartementen op de tussenverdiepingen hebben een oppervlakte van zo’n 90 m
2
. De brede, overhoekse woonkamers komen uit op de balkons van 18 m
2
over de volledige breedte van de woning, met een weids uitzicht over het water. Bovenin het gebouw liggen twee penthouses van twee verdiepingen met elk een totale oppervlakte van 160 m
2
en riante overhoekse dakterrassen van 40 m
2
.
Op de begane grond bevinden zich twee bedrijfsruimten van circa 60m
2
en een inpandige collectieve fietsenstalling. Voor het parkeren van de auto kunnen de bewoners terecht in de ondergrondse garage van het aangrenzende Cruquiuswerf-project.
Licht getint metselwerk
Met het metselwerk in witte en beige tinten sluit de Parel van Cruquiswerf in verschijning aan bij de omliggende gebouwen. Tegelijkertijd onderscheidt het kopblok zich op subtiele wijze in de detaillering en het materiaalgebruik, legt atelier Puuur uit. De wasserstrich-bakstenen zijn in wildverband gemetseld, afwisselend in vlakken met staand en liggend verband.
Het metselwerk is doorgezet rond de balkons, waardoor ze een onderdeel van de hoofdmassa vormen. De bovenste verdieping en de plint zijn voorzien van natuurstenen gevelbekleding. Een getrapte nis accentueert de hoofdentree.
Het project gebruikt een luchtwarmtepomp in combinatie met vloerverwarming en -koeling en zonnepanelen op het dak. Een ventilatiesysteem met warmteterugwinning en hoogwaardige gebouwisolatie dragen bij aan vermindering van de warmtevraag.
Trefwoorden
pex real estate
atelier puuur
amsterdam
appartementengebouw
woongebouw
woningbouw
cruquiuswerf
cruquiuseiland
gebiedstransformatie
Locatie
Best gelezen
1
Anterieure overeenkomst voor bouw woontoren The Four in Eindhoven
donderdag, 16 april
2
Architecten voor restauratie en herbestemming Rivièrahal gekozen
donderdag, 16 april
3
De ondergrondse strijd om een duurzamere stad
donderdag, 16 april
4
Nominaties Rotterdam Architectuurprijs 2026 bekend
maandag, 20 april
5
Jury maakt shortlist Prix de Rome Architectuur 2026 bekend
donderdag, 16 april
Gerelateerde nieuwsberichten
The Rock Weespertrekvaart door Atelier PUUUR in gebruik genomen
20 november 2025
Bouw twaalf woongebouwen op Cruquiuswerf Amsterdam gestart
16 januari 2019
Bouw paviljoen van Atelier PUUUR met buurtfunctie en voorzieningen gestart
11 maart
NEPROM-prijs naar ontwikkeling van Cruquius in Amsterdam
17 mei 2024
Bouw woonzorgcomplex in wijk Nieuw Delft van start
1 augustus 2023
Waaiervormige woonbuurt op Cruquiseiland naar integraal ontwerp van KCAP
8 januari 2025
Overeenkomst voor complex met sociale huurwoningen Weespertrekvaartbuurt
14 juli 2021
Eerste grootschalige woongebouw Centrumeiland IJburg klaar
7 april 2021
LEVS architecten bundelt projecten op Cruquiuseiland in boek
16 januari 2024
Waterlooplein krijgt multifunctionele marktboxen
20 september 2019
Atelier PUUUR presenteert CPO-project Centrumeiland
17 juli 2018
Lofts in een loods op Cruquiuseiland
12 juli 2022
The Harbour Club is een icoon op Cruquiuseiland
5 april 2022
LEVS architecten presenteert woongebouw De Bocht op Cruquiuseiland
18 maart 2022
Woongebouw met friends-appartementen Cruquiusgebied klaar
14 augustus 2020
Winnaars Zuiderkerkprijs en Geurt Brinkgreve Bokaal 2018
14 december 2018
Rijnboutt presenteert voorlopig ontwerp kop van Cruquius
19 september 2018
Gouden Piramide 2014 voor De Nieuwe Ooster
24 november 2014
Bouw Amsterdamse Houthaven van start
20 december 2013
Moskee met overgang voor Doetinchem
26 oktober 2011
The Rock Weespertrekvaart door Atelier PUUUR in gebruik genomen
20 november 2025
Bouw twaalf woongebouwen op Cruquiuswerf Amsterdam gestart
16 januari 2019
Bouw paviljoen van Atelier PUUUR met buurtfunctie en voorzieningen gestart
11 maart
NEPROM-prijs naar ontwikkeling van Cruquius in Amsterdam
17 mei 2024
Bouw woonzorgcomplex in wijk Nieuw Delft van start
1 augustus 2023
Waaiervormige woonbuurt op Cruquiseiland naar integraal ontwerp van KCAP
8 januari 2025
Overeenkomst voor complex met sociale huurwoningen Weespertrekvaartbuurt
14 juli 2021
Eerste grootschalige woongebouw Centrumeiland IJburg klaar
7 april 2021
LEVS architecten bundelt projecten op Cruquiuseiland in boek
16 januari 2024
Waterlooplein krijgt multifunctionele marktboxen
20 september 2019
Atelier PUUUR presenteert CPO-project Centrumeiland
17 juli 2018
Lofts in een loods op Cruquiuseiland
12 juli 2022
The Harbour Club is een icoon op Cruquiuseiland
5 april 2022
LEVS architecten presenteert woongebouw De Bocht op Cruquiuseiland
18 maart 2022
Woongebouw met friends-appartementen Cruquiusgebied klaar
14 augustus 2020
Winnaars Zuiderkerkprijs en Geurt Brinkgreve Bokaal 2018
14 december 2018
Rijnboutt presenteert voorlopig ontwerp kop van Cruquius
19 september 2018
Gouden Piramide 2014 voor De Nieuwe Ooster
24 november 2014
Bouw Amsterdamse Houthaven van start
20 december 2013
Moskee met overgang voor Doetinchem
26 oktober 2011
Toon alles
Andere nieuwsberichten
Studio Makkink & Bey zet Parkpaviljoen weer in het spotlicht
Vandaag, 16:47
In opdracht van stichting Droom en Daad is het historische Rotterdamse Parkpaviljoen gerenoveerd en kreeg het een hernieuwde functie
De Kuil bouwt voort op karakter Afrikaanderwijk en voegt iets nieuws toe
Vandaag, 14:22
In Rotterdam-Zuid is afgelopen jaar woningbouwproject De Kuil opgeleverd. Verdeeld over meerdere gebouwen zijn in totaal 232 woningen in verschillende typologieën gerealiseerd.
Rotterdam zoekt ontwerper voor permanente Luchtsingel
Vandaag, 12:00
Daartoe is de gemeente woensdag een openbare selectie gestart. Door de selectie laagdrempelig te houden, hoopt de gemeente kans te geven aan ontwerptalent.
KAW viert jubileum met investering in concrete projecten
Vandaag, 09:00
Het bureau viert zijn 50-jarig bestaan en viert dat met een investering in nieuwe, betaalbare woningen binnen bestaand vastgoed.
Ontwerpwedstrijd voor nieuwe 'jas' Utrechtse elektriciteitshuisjes
Vandaag, 15:18
In Utrecht worden de komende vijftien jaar zo’n achthonderd elektriciteitshuisjes geplaatst.
Provincies willen snel crisisaanpak voor overvol stroomnet
Vandaag, 12:01
Het Interprovinciaal Overleg (IPO) roept de regering onder meer op meer geld uit te trekken voor warmtenetten en waterstof om de gevolgen van netcongestie beter op te vangen.
Synchroon en BPD ontwikkelen meer dan vierhonderd woningen in Sloterdijk I
Vandaag, 10:14
Team V architectuur is aangesteld voor het ontwerp, in de uitwerking van de plannen worden waarschijnlijk nog andere architecten bij het project betrokken.
Onvoltooid attractiepark Rotterdam geveild voor 6,5 miljoen euro
Gisteren, 13:54
Ondernemer Hennie van der Most heeft meer dan tien jaar gewerkt aan de bouw van het park aan de Doklaan in Rotterdam.
'Amsterdamse RAI gaat binnen paar weken in de verkoop'
Gisteren, 10:50
De nieuwe aandeelhouder moet de portemonnee trekken voor de bouw van woningen en kantoren op het RAI-terrein, meldt het FD.
Minister wil Lelystad Airport openen in oktober 2027
20 april, 12:24
Het vliegveld heeft nog geen natuurvergunning, maar Vincent Karremans werkt ‘parallel’ aan de andere zaken die nog moeten worden geregeld voordat vakantievluchten vanuit Flevoland kunnen beginnen.
Ga naar het nieuws-archief
Robert Muis
Redacteur
0
0
0
0
Voor een optimale gebruikservaring plaatst Architectenweb functionele cookies. Wat de verschillende cookies precies doen leggen we uit in een
overzicht
. Cookies van social media kun je optioneel
aanzetten
.
Akkoord
Instellingen
Annuleren
OK
Sluiten
Doorgaan
Inloggen
Maak een gratis persoonlijk account aan
Feedback
Feedback
Wij horen graag jouw feedback. Laat je reactie achter en eventueel jouw e-mail adres.
Reactie
Verstuur