Projecten
Producten
Bedrijven
Vacatures
Agenda
Awards
Podcasts
more_horiz
Videos
Magazine
Thema's
Favorieten
Profiel
Uitloggen
Abonneer je nu op onze nieuwsbrieven!
Abonneren
Nee, bedankt
Ja, denk met me mee rond de
materialisering van mijn project
Copyright: Jannes Linders
Copyright: Jannes Linders
Copyright: Jannes Linders
Copyright: Jannes Linders
Copyright: Jannes Linders
Copyright: Jannes Linders
Copyright: Jannes Linders
Copyright: Jannes Linders
Copyright: Jannes Linders
Copyright: Jannes Linders
Copyright: Jannes Linders
Copyright: Jannes Linders
Blok F, doorsnede 1
Copyright: Steenhuis Bukman Architecten
Blok F, doorsnede 2
Copyright: Steenhuis Bukman Architecten
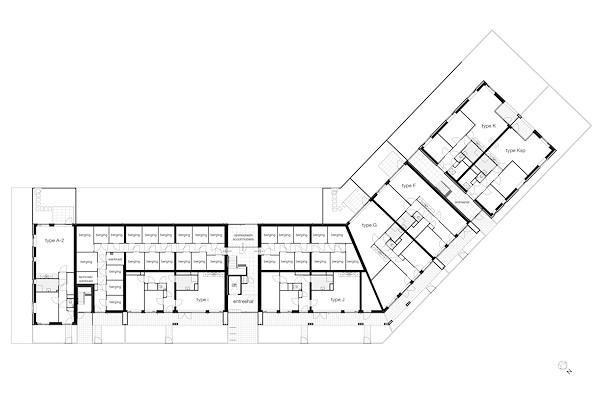
Blok F, begane grond
Copyright: Steenhuis Bukman Architecten
Blok G2, tweede verdieping
Copyright: Steenhuis Bukman Architecten
Situatie
Copyright: Steenhuis Bukman Architecten
Steenhuis Bukman Architecten geeft woongebouwen opvallende gevelritmiek
24 juli 2023, 10:56
Als onderdeel van een centrumplan in de gemeente Barendrecht zijn aan de Mr. Lohmanstraat drie appartementengebouwen met in totaal 93 sociale huurwoningen en galerijontsluiting gerealiseerd. In zijn ontwerp heeft
Steenhuis Bukman Architecten
een anoniem en monotoon beeld vermeden en tevens aansluiting gezocht bij omliggende bebouwing.
Barendrecht raakte in de jaren na de Tweede Wereldoorlog sterk in trek bij forensen, waardoor het dorp uitbreidde met verschillende woonwijken. Samen met de historische dorpskern vormen die het huidige centrum. De Middenbaan, een oude dijk, is met tal van winkels, horeca en theater Het Kruispunt het hart van het huidige Barendrecht.
Centrumplan van Barendrecht
Voor dit winkelgebied en de omliggende woonomgeving heeft de gemeente Barendrecht in 2015 een centrumplan, inclusief beeldkwaliteitsplan ontwikkeld. Dit plan voorziet in een forse uitbreiding van het aantal parkeerplaatsen aan het Achterom, onderaan de genoemde dijk, in een brede openbare zone tussen winkelgebied en de jarenvijftigbuurt De Driehoek.
Deze vroeg-naoorlogse buurt is een ontwerp van architect en stedenbouwkundige Willem Wissing, vertelt Steenhuis Bukman Architecten. Het betreft een kleinschalige wijk met eengezinswoningen in korte blokken met licht hellende daken in een losse open verkaveling, kenmerkend voor die tijd.
Nieuw gevelfront
Om de ingrepen uit het centrumplan mogelijk te maken moest een aantal eengezinswoningen van corporatie Patrimonium Barendrecht worden afgebroken. De nieuwbouw moest vervolgens de stedenbouwkundige structuur van de wijk weer herstellen en tegelijk een nieuw gevelfront vormen aan de parkeerzone.
Daarbij was het van belang dat deze nieuwe openbare ruimte beslist geen anonieme achterkantsfeer zou oproepen, maar een volwaardige en aantrekkelijke entree van het centrumgebied zou zijn. In opdracht van Patrimonium maakte Steenhuis Bukman Architecten een plan, dat bestaat uit drie appartementengebouwen met in totaal 93 sociale-huurwoningen.
Galerij-ontsluiting
De opdrachtgever wilde levensloopbestendige woningen voor de doelgroep; daardoor stond de gebouwtypologie met galerij-ontsluiting vast, legt het architectenbureau uit. Het lag voor de hand dat de galerijen aan de parkeerzone zouden liggen: de minst aantrekkelijke kant wat betreft uitzicht en zonlicht.
De architecten wilden voorkomen dat door de grote gevellengte van bijna 300 meter er aan de straatzijde – de parkeerzone – een anoniem en monotoon beeld zou ontstaan. Door het hoofdtrappenhuis centraal te positioneren, is ieder blok visueel opgedeeld in kleinere bouwdelen en zijn er telkens slechts enkele voordeuren per galerij.
Op deze manier is ook anonimiteit in het gebruik ondervangen, omdat iedere woning maar enkele buren heeft. De galerijen lopen alleen voor de tussenwoningen langs, zodat de galerijlengte minimaal is en de kopappartementen tevens zicht op straat hebben. De horizontale lijn van de galerijen is onderbroken door verticale baksteen penanten, afgewisseld met kleinere metselwerkkolommen in verticaal tegelverband. Voorts zijn er grote betonkaders met matglas tegenover elke voordeur.
Verbijzonderingen
Het metselwerk is in hoogwaardige wasserstrichsteen en alle prefab beton is met wit cement uitgevoerd. De woningen zijn royaal bemeten in oppervlakte, en uitgevoerd met veel glas in de gevels en grote balkons op het zuidwesten. De nieuwbouw is deels vierlaags en drielaags bij de aansluiting op de 2e Barendrechtseweg, passend bij de schaal van de bestaande tweekappers uit de jaren vijftig.
Op de begane grond liggen steeds bijzondere woningtypes, met hun ontsluiting direct vanaf de straat. Het beeld van de bovenste verdieping van de vierlaagse blokken is verbijzonderd met een metselwerk borstwering waardoor het geheel lager oogt, legt het architectenbureau uit.
De tussengelegen lagen, met de opvallende gevelritmiek, geven het geheel een mooie geleding, passend in de schaal van het dorpse. De toepassing van een schuin pannendak is essentieel en dragen eraan bij dat het buurtje De Driehoek weer als geheel herkenbaar is.
Trefwoorden
gevel
galerij
metselwerk
steenhuis bukman architecten
barendrecht
appartementengebouw
Locatie
Best gelezen
1
Kantoorcomplex door Goof Spruit bij station Utrecht krijgt tweede leven als De Nieuwe Tuin
woensdag, 11 maart
2
Woongebouw door van Bergen Kolpa vormt nieuwe markering langs bocht Rotte
dinsdag, 10 maart
3
Gerenoveerd Valkhof Museum heropent deuren op 6 juni
dinsdag, 10 maart
4
Alkmaar selecteert VenhoevenCS en Wind voor nieuwbouw Hoornse Vaart
maandag, 9 maart
5
Zeven ontwerpteams aan de slag met herontwikkeling Bernhardkazerne Amersfoort
woensdag, 11 maart
Gerelateerde nieuwsberichten
Woongebouw van Steenhuis Bukman als ankerpunt voor Apeldoornse wijk
5 mei 2021
Bloei wordt nieuwe, groene buurt in Barendrechtse wijk Vrouwenpolder
18 januari 2024
Herstel en vernieuwing van een naoorlogse wijk
20 februari 2024
Nieuwbouw in Rotterdamse zuidelijke tuinstad opgeleverd
16 november 2020
Vier woongebouwen in ‘Amersfoortse traditie’ door Steenhuis Bukman Architecten
11 november 2024
Vrijstaande woonblokken als een waaier aan het park
1 mei 2019
Zeeburger Zilt gevarieerd maar verwant gebouwenensemble
11 december 2017
Woningbouwproject als impuls voor eenzijdige wijk
18 november 2024
Woonbuurt van Steenhuis Bukman vormt zuidwestelijke sluitstuk van Delftzicht
17 december 2024
Amsterdamse Nieuwbouwprijs voor project Steenhuis Bukman
8 november 2017
Robuust gebouwenensemble markeert entree tot woonbuurt in RijswijkBuiten
26 augustus 2024
Steenhuis Bukman wint tender in centrum Maassluis
29 mei 2017
Delfts Schiekwartier krijgt stoere woonbuurt
16 januari 2017
Woongebouw voor Turkse ouderen klaar
24 februari 2012
Steenhuis Bukman wint Booming Amersfoort
19 april 2010
Eigentijds appartementengebouw voegt zich soepel in vroeg-naoorlogse wijk
22 januari 2025
Woongebouw van Steenhuis Bukman als ankerpunt voor Apeldoornse wijk
5 mei 2021
Bloei wordt nieuwe, groene buurt in Barendrechtse wijk Vrouwenpolder
18 januari 2024
Herstel en vernieuwing van een naoorlogse wijk
20 februari 2024
Nieuwbouw in Rotterdamse zuidelijke tuinstad opgeleverd
16 november 2020
Vier woongebouwen in ‘Amersfoortse traditie’ door Steenhuis Bukman Architecten
11 november 2024
Vrijstaande woonblokken als een waaier aan het park
1 mei 2019
Zeeburger Zilt gevarieerd maar verwant gebouwenensemble
11 december 2017
Woningbouwproject als impuls voor eenzijdige wijk
18 november 2024
Woonbuurt van Steenhuis Bukman vormt zuidwestelijke sluitstuk van Delftzicht
17 december 2024
Amsterdamse Nieuwbouwprijs voor project Steenhuis Bukman
8 november 2017
Robuust gebouwenensemble markeert entree tot woonbuurt in RijswijkBuiten
26 augustus 2024
Steenhuis Bukman wint tender in centrum Maassluis
29 mei 2017
Delfts Schiekwartier krijgt stoere woonbuurt
16 januari 2017
Woongebouw voor Turkse ouderen klaar
24 februari 2012
Steenhuis Bukman wint Booming Amersfoort
19 april 2010
Eigentijds appartementengebouw voegt zich soepel in vroeg-naoorlogse wijk
22 januari 2025
Toon alles
Gerelateerde bedrijven
Steenhuis Bukman Architecten
Architectuur/Stedenbouw
Andere nieuwsberichten
De Urbanisten schetst perspectief voor vitale en aantrekkelijke Rotterdamse binnenstad
13 maart, 4:41
In opdracht van BIZ RotterdamCentrum maakte De Urbanisten een perspectief voor een vitale en aantrekkelijke binnenstad die samengaat met een meer klimaat- en natuursensitieve inrichting
Studio Vinke en Loos van Vliet ontwerpen blok met woningen in haven Lelystad
13 maart, 3:24
In de haven van Lelystad wordt een blok met 160 woningen naar ontwerp van Studio Vinke in samenwerking met Atelier Loos van Vliet gerealiseerd. Bataviahof wordt het middelste van vijf wooncomplexen, waarvan er inmiddels twee zijn gerealiseerd.
Cepezed geselecteerd voor ontwerp Collectiecentrum Overijssel
13 maart, 2:15
Het Delftse bureau won de Europese aanbesteding die was uitgeschreven voor het gebouw, dat een plek krijgt in het Havenkwartier in Deventer.
Smiljan Radic onderscheiden met Pritzker Prize 2026
13 maart, 12:09
De zestigjarige Chileen wordt door de jury geprezen als een architect die elke opgave met een hoge mate van originaliteit benadert en gebouwen ontwerpt die zowel fragiel ogen als een stille vorm van plezier uitstralen.
NVM: verkoopgolf huurwoningen vergroot ongelijkheid starters
13 maart, 4:03
Waar een recordaantal starters hun eerste woning kon kopen, zagen anderen hun kansen juist afnemen, zegt de makelaarsorganisatie.
IT-systeem Omgevingswet schiet na twee jaar nog steeds tekort
13 maart, 1:20
Het IT-systeem dat overheden nodig hebben om de Omgevingswet uit te voeren, voldoet nog steeds niet aan minimale eisen.
Eindhoven bouwt 5400 studentenwoningen
13 maart, 11:04
De woningen moeten het tekort aan studentenhuisvesting helpen oplossen.
Experts: versnel energietransitie en hou Gronings gas als airbag
12 maart, 1:58
Dat is nodig om minder afhankelijk te worden van andere landen, stellen 22 experts die gespecialiseerd zijn in veiligheid en energie.
Wet die leegstandheffing mogelijk maakt volgende week van kracht
12 maart, 11:35
Gemeenten mogen zelf bepalen of ze de belasting invoeren en hoe hoog die dan wordt.
Raad van State blokkeert plan voor verbouwing ring Utrecht
11 maart, 4:31
Vorig jaar kreeg het kabinet de opdracht om de stikstofuitstoot van het project beter uit te leggen, maar dat is niet gelukt.
Ga naar het nieuws-archief
Robert Muis
Redacteur
1
0
0
0
Voor een optimale gebruikservaring plaatst Architectenweb functionele cookies. Wat de verschillende cookies precies doen leggen we uit in een
overzicht
. Cookies van social media kun je optioneel
aanzetten
.
Akkoord
Instellingen
Annuleren
OK
Sluiten
Doorgaan
Inloggen
Maak een gratis persoonlijk account aan
Feedback
Feedback
Wij horen graag jouw feedback. Laat je reactie achter en eventueel jouw e-mail adres.
Reactie
Verstuur