Projecten
Producten
Bedrijven
Vacatures
Agenda
Awards
Podcasts
more_horiz
Videos
Magazine
Favorieten
Profiel
Uitloggen
Abonneer je nu op onze nieuwsbrieven!
Abonneren
Nee, bedankt
Ja, denk met me mee rond de
materialisering van mijn project
Operaplein, Amersfoort, ontworpen door Steenhuis Bukman Architecten
Copyright: Jannes Linders
Operaplein, Amersfoort, ontworpen door Steenhuis Bukman Architecten
Copyright: Jannes Linders
Operaplein, Amersfoort, ontworpen door Steenhuis Bukman Architecten
Copyright: Jannes Linders
Operaplein, Amersfoort, ontworpen door Steenhuis Bukman Architecten
Copyright: Jannes Linders
Operaplein, Amersfoort, ontworpen door Steenhuis Bukman Architecten
Copyright: Jannes Linders
Operaplein, Amersfoort, ontworpen door Steenhuis Bukman Architecten
Copyright: Jannes Linders
Operaplein, Amersfoort, ontworpen door Steenhuis Bukman Architecten
Copyright: Jannes Linders
Operaplein, Amersfoort, ontworpen door Steenhuis Bukman Architecten
Copyright: Jannes Linders
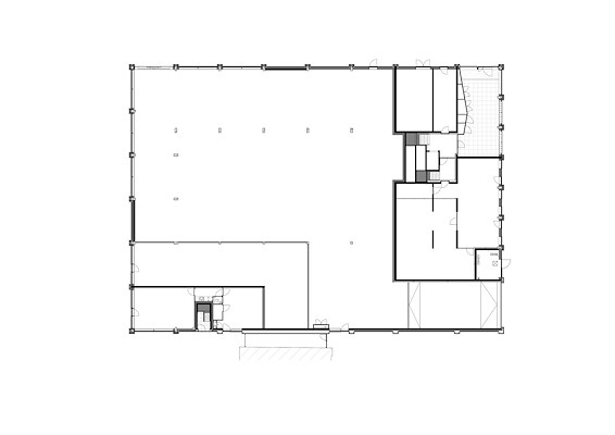
Begane grond
Copyright: Steenhuis Bukman Architecten
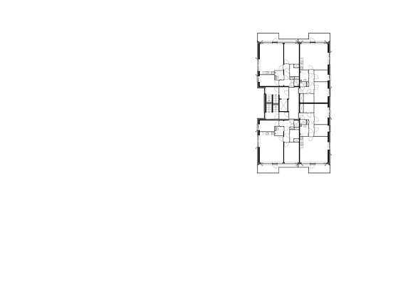
Tweede verdieping
Copyright: Steenhuis Bukman Architecten
Zesde verdieping
Copyright: Steenhuis Bukman Architecten
Woningbouwproject als impuls voor eenzijdige wijk
18 november 2024, 14:59
In de Amersfoortse wijk Schuilenburg is op de plek van voorheen winkelcentrum Operaplein een woongebouw gerealiseerd met een toren op de hoek en een supermarkt en een buurtruimte op de begane grond. Om te voorkomen dat de nieuwbouw de omliggende bestaande gebouwen qua uitstraling zou degraderen, heeft
Steenhuis Bukman Architecten
gekozen voor ‘beheerste’ en passende architectuur.
Operaplein, door Steenhuis Bukman Architecten ontworpen in opdracht van Blauwhoed, ligt in een wijk uit de jaren zestig van de vorige eeuw. Het bouwblok biedt ruimte aan een supermarkt, een buurtruimte en zestig appartementen in verschillende woningtypes. Het project betekent een verrijking van de woningdifferentiatie in de buurt. Verder omvatte de herontwikkeling een verbetering en vergroening van de openbare ruimte.
Meedenkgroep
Vanuit de politiek was gevraagd om het plan in overleg met een meedenkgroep te ontwikkelen, vertelt Steenhuis Bukman Architecten. In de periode voor de herontwikkeling van het plein was er sprake van onder andere beheersproblemen en drugsgerelateerde overlast. De meedenkgroep bestond uit buurtbewoners uit de directe omgeving van het oude winkelcentrum.
Een belangrijk argument voor de meedenkgroep om akkoord te gaan met nieuwbouw van zestig woningen was het programma met onder andere jongerenwoningen en het idee van een ‘impuls’ voor de woonomgeving. De meedenkgroep maakte duidelijk dat de buurt werd ervaren als sleets, uit de tijd, eenzijdig wat betreft bewoners en woningen, en problematisch in beheer en uitstraling.
Het ontwerpteam legde diverse hoogte- en volumevarianten voor, lichtte de varianten en hun bezonning uitgebreid toe en besprak daarvan de voor- en tegenargumenten met de meedenkgroep. Dit resulteerde in de keuze voor een slankere, hogere toren omdat hiermee de slagschaduw de bestaande woningen het snelst passeert. De laagbouw op de winkelruimte is juist zo laag mogelijk gehouden en spiegelt op die manier de woningen aan de overkant van de Operaweg.
Rustig en beheerst
De ‘architectuur’ van Schuilenburg is exemplarisch voor het moment van bouw in jaren zestig, vertelt Steenhuis Bukman Architecten. Het ontwerp is generiek, repetitief en eenzijdig in woningtypologie (‘laag-midden-hoog’) en het materiaalgebruik is niet-expressief, met bijvoorbeeld een flets getinte baksteen. De architecten wilden voorkomen dat het nieuwe gebouw de omgeving wat betreft de uitstraling zou degraderen.
Het architectenbureau heeft met de nieuwe architectuur daarom aansluiting gezocht bij de bestaande gebouwen in de buurt. Het bureau heeft gestreefd naar een passende planopzet en een architectuurvocabulaire van middelen: repetitie, proporties, een grafisch beeld en zacht materiaalgebruik. “Dus niet-expressief maar ontspannen, leunend op rust en beheersing”, aldus de architecten.
Vergroening
De toenmalige architectuur paste bij een woonomgeving waarin groen een veel nadrukkelijker rol had. De woonomgeving van Schuilenburg was echter van meet af aan verhard. Daarbij kwam nu een intensiveringsprogramma met veel meer woningen en een parkeeropgave bij de supermarkt.
“Dat was reden om het gebouw ‘ontspannen’ te houden, maar ook om met Le Far West als landschapsarchitect de directe woonomgeving aan te pakken”, vertelt Steenhuis Bukman Architecten. De openbare ruimte heeft een zo groen mogelijke, klimaatadaptieve invulling gekregen. Daarnaast is het binnenterrein van het nieuwe bouwblok voorzien van een groen dak en is gevelbegroeiing aangeplant in aansluiting op de Ariawegzijde.
Trefwoorden
winkelcentrum
schuilenburg
le far west
appartementengebouw
transformatie
woningbouw
supermarkt
amersfoort
Locatie
Best gelezen
1
Architect Cees Dam op 93-jarige leeftijd overleden
dinsdag, 14 april
2
Powerhouse Company wint aanbesteding voor verbouwing Vista College Maastricht
dinsdag, 14 april
3
Tien bureaus geselecteerd voor tweede ronde nieuwbouw De Meervaart
woensdag, 15 april
4
Voormalig hoofdkantoor Ferro in M4H verbouwd tot bedrijfsverzamelgebouw
woensdag, 15 april
5
QWA heeft A16 boven Rotterdam eigen identiteit gegeven
maandag, 13 april
Gerelateerde nieuwsberichten
Vier woongebouwen in ‘Amersfoortse traditie’ door Steenhuis Bukman Architecten
11 november 2024
Bouw 215 appartementen op oude kantoorlocatie in Amersfoort gestart
3 december 2024
Robuust gebouwenensemble markeert entree tot woonbuurt in RijswijkBuiten
26 augustus 2024
Herstel en vernieuwing van een naoorlogse wijk
20 februari 2024
Steenhuis Bukman Architecten geeft woongebouwen opvallende gevelritmiek
24 juli 2023
Woongebouw van Steenhuis Bukman als ankerpunt voor Apeldoornse wijk
5 mei 2021
Nieuwbouw in Rotterdamse zuidelijke tuinstad opgeleverd
16 november 2020
Twee scholen ontworpen door SVP opgeleverd in Amersfoort
8 december 2025
Vrijstaande woonblokken als een waaier aan het park
1 mei 2019
Zeeburger Zilt gevarieerd maar verwant gebouwenensemble
11 december 2017
Amsterdamse Nieuwbouwprijs voor project Steenhuis Bukman
8 november 2017
Steenhuis Bukman wint tender in centrum Maassluis
29 mei 2017
Delfts Schiekwartier krijgt stoere woonbuurt
16 januari 2017
Woongebouw voor Turkse ouderen klaar
24 februari 2012
Steenhuis Bukman wint Booming Amersfoort
19 april 2010
Jubileum voor Steenhuis Bukman Architecten
17 november 2009
Vier woongebouwen in ‘Amersfoortse traditie’ door Steenhuis Bukman Architecten
11 november 2024
Bouw 215 appartementen op oude kantoorlocatie in Amersfoort gestart
3 december 2024
Robuust gebouwenensemble markeert entree tot woonbuurt in RijswijkBuiten
26 augustus 2024
Herstel en vernieuwing van een naoorlogse wijk
20 februari 2024
Steenhuis Bukman Architecten geeft woongebouwen opvallende gevelritmiek
24 juli 2023
Woongebouw van Steenhuis Bukman als ankerpunt voor Apeldoornse wijk
5 mei 2021
Nieuwbouw in Rotterdamse zuidelijke tuinstad opgeleverd
16 november 2020
Twee scholen ontworpen door SVP opgeleverd in Amersfoort
8 december 2025
Vrijstaande woonblokken als een waaier aan het park
1 mei 2019
Zeeburger Zilt gevarieerd maar verwant gebouwenensemble
11 december 2017
Amsterdamse Nieuwbouwprijs voor project Steenhuis Bukman
8 november 2017
Steenhuis Bukman wint tender in centrum Maassluis
29 mei 2017
Delfts Schiekwartier krijgt stoere woonbuurt
16 januari 2017
Woongebouw voor Turkse ouderen klaar
24 februari 2012
Steenhuis Bukman wint Booming Amersfoort
19 april 2010
Jubileum voor Steenhuis Bukman Architecten
17 november 2009
Toon alles
Gerelateerde bedrijven
Steenhuis Bukman Architecten
Architectuur/Stedenbouw
Andere nieuwsberichten
OMA gebruikt bestaand gebouw als canvas bij renovatie Edo-Tokyo Museum
Gisteren, 15:55
Na een renovatie van bijna vier jaar is het Edo-Tokyo Museum in de Japanse hoofdstad Tokio heropend. OMA nam het uit 1993 stammende gebouw, dat is ontworpen door de Metabolist Kiyonori Kikutake, onder handen.
Winnaars verkiezing Beste Bossche Gebouw 2020–2025 bekend
Gisteren, 14:16
De vakjury en het publiek wezen elk in drie categorieën een winnaar aan. Daarnaast kende vakjury nog een wildcard toe aan een project.
Appartementengebouwen door MIX architectuur vormen sluitstuk Noorderhaven Zutphen
Gisteren, 12:29
In de nieuwe buurt Noorderhaven in Zutphen zijn drie appartementengebouwen naar ontwerp van MIX architectuur opgeleverd. De gebouwen met in totaal tachtig woningen vormen het sluitstuk van de gebiedsontwikkeling.
EUmies Award naar renovatie congrescentrum in Charleroi en tijdelijke ruimtes Sloveens theater
Gisteren, 10:54
Donderdag zijn de winnaars van de EUmies Award 2026 bekendgemaakt. De renovatie van het congrescentrum Charleroi Palais des Expositions won in de belangrijkste categorie architectuur.
Woningbouwzaken krijgen langer voorrang bij Raad van State
Gisteren, 16:49
Om het huizentekort tegen te gaan, blijft de Raad van State woningbouwzaken met voorrang behandelen.
Inspectie positief over verbetering sociale veiligheid TU Delft
Gisteren, 11:36
De TU Delft heeft aanzienlijke stappen gezet om de sociale veiligheid voor medewerkers te verbeteren.
NVM vreest minder nieuwbouw door veranderende voorrang stroomnet
Gisteren, 09:23
Bouwers kunnen, door onzekerheid over welke projecten straks nog maatschappelijke prioriteit krijgen in een bepaalde regio, besluiten om minder nieuwe huizen te bouwen.
Architecten voor restauratie en herbestemming Rivièrahal gekozen
16 april, 12:00
Voor de grootscheepse restauratie en herbestemming van de Rivièrahal in de Rotterdamse Diergaarde Blijdorp zijn Mecanoo en BiermanHenket geselecteerd.
Bewoners aardbevingsgebied Groningen blijven kritisch op herstel
16 april, 10:34
Door de complexiteit en onzekerheid van het jarenlange proces ervaren mensen stress en frustratie.
ING: optoppen en splitsen van woningen steeds minder haalbaar
15 april, 1:22
Het kabinet-Jetten gaat naar verwachting het doel van 15.000 extra woningen per jaar uit verbouwingen niet halen, stelt ING.
Ga naar het nieuws-archief
Robert Muis
Redacteur
0
0
0
0
Voor een optimale gebruikservaring plaatst Architectenweb functionele cookies. Wat de verschillende cookies precies doen leggen we uit in een
overzicht
. Cookies van social media kun je optioneel
aanzetten
.
Akkoord
Instellingen
Annuleren
OK
Sluiten
Doorgaan
Inloggen
Maak een gratis persoonlijk account aan
Feedback
Feedback
Wij horen graag jouw feedback. Laat je reactie achter en eventueel jouw e-mail adres.
Reactie
Verstuur