Abonneer je nu op onze nieuwsbrieven!
Abonneren
Nee, bedankt
Ja, denk met me mee rond de
materialisering van mijn project
Copyright: Sebastian van Damme
Copyright: Sebastian van Damme
Copyright: Sebastian van Damme
Copyright: Sebastian van Damme
Copyright: Sebastian van Damme
Copyright: Sebastian van Damme
De collectieve huiskamer
Copyright: Sebastian van Damme
De collectieve huiskamer
Copyright: Sebastian van Damme
De collectieve huiskamer
Copyright: Sebastian van Damme
De filmzaal
Copyright: Sebastian van Damme
De woningen hebben een eigen entree
Copyright: Sebastian van Damme
De canyon
Copyright: Sebastian van Damme
De canyon
Copyright: Sebastian van Damme
De canyon
Copyright: Sebastian van Damme
De canyon
Copyright: Sebastian van Damme
Galerij met canyon
Copyright: Sebastian van Damme
Galerij met canyon
Copyright: Sebastian van Damme
Galerij met canyon
Copyright: Sebastian van Damme
Copyright: Sebastian van Damme
De bospatio
Copyright: Sebastian van Damme
De bospatio
Copyright: Sebastian van Damme
De bospatio
Copyright: Sebastian van Damme
De bospatio
Copyright: Sebastian van Damme
Het dakstrand
Copyright: Sebastian van Damme
De poolbar
Copyright: Sebastian van Damme
Copyright: Sebastian van Damme
Copyright: Sebastian van Damme
Copyright: Sebastian van Damme
Concept
Copyright: Orange Architects
Concept
Copyright: Orange Architects
Programma
Copyright: Orange Architects
Langsdoorsnede
Copyright: Orange Architects
Dwarsdoorsnede
Copyright: Orange Architects
Begane grond
Copyright: Orange Architects
Derde verdieping
Copyright: Orange Architects
Dakverdieping
Copyright: Orange Architects
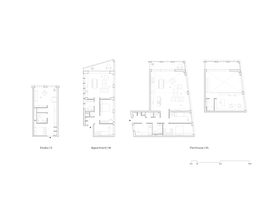
Woningtypen
Copyright: Orange Architects
Westgevel
Copyright: Orange Architects
Detail vloer en gevel
Copyright: Orange Architects
Duurzaamheidsschema
Copyright: Orange Architects
Woongebouw Jonas ontdek je vooral aan de binnenkant
Onlangs is woongebouw Jonas in de Amsterdamse wijk IJburg in gebruik genomen. Het complex in de haven van de wijk telt 273 woningen, waarvan 190 middeldure huur- en 83 koopwoningen. Op uitnodiging van ontwikkelaar Amvest, Orange Architects, Felixx Landscape Architects & Planners, Ballast Nedam West en ABT bezocht Architectenweb het gebouw.
Jonas is een groot gebouw op een prominente plek, maar je zou het niet meteen een eyecatcher á la het Sluishuis noemen. Het langwerpige complex aan de haven van IJburg heeft een onmiskenbaar maritiem karakter, zonder dat er nu meteen een schip (of walvis, de naam van het gebouw is ontleend aan het verhaal van Jonas en de walvis) in valt te herkennen. In de gevel zijn een aantal ‘specials’ uitgelicht, in de vorm van een aantal grote vensters met een houten kader waarachter zich onder meer een bijzondere woning en een yogaruimte bevinden.

Maar om Jonas nu een echte blikvanger te noemen, nee. Het onderscheid met de andere gebouwen in de omgeving is bedrieglijk subtiel. Het complex heeft een speelsere vorm dan de rechttoe-rechtaan-blokken die de wijk kenmerken en de gevel is van zink, in plaats van baksteen. Verder vormt het gebouw vooral een vanzelfsprekende, rustige achtergrond voor de zeilschepen die in de haven liggen afgemeerd. Dat kun je uiteraard als een kwaliteit beschouwen, zeker voor een complex dat een omvangrijk programma (30.000 vierkante meter) huisvest. Toch moet je naar binnen om het gebouw echt te kunnen waarderen. Gelukkig kan dat, deels, dankzij de publiek toegankelijke begane grond.
Combinatie publiek gebruik en stedelijk woonprogramma
Jonas is gebouwd op een schiereiland waar tot enkele jaren een veld lag dat vooral door kinderen werd gebruikt om bijvoorbeeld te voetballen. Voor hun ontwerp wilden de architecten het publieke karakter en speelse gebruik van de locatie bewaren en combineren met een hedendaags stedelijk woonprogramma, waarbij behalve woningen collectieve voorzieningen als een filmzaal, ‘dakstrand’ en een huiskamer voor de hele buurt worden gerealiseerd. Ook voorziet het plan in een voorplein met publieke functies als een tribune, een strandje en een speeleiland. Behalve dat (buurt)bewoners er kunnen vertoeven en recreëren, is het de bedoeling dat er openbare filmvertoningen, barbecues en andere evenementen worden georganiseerd.

Het publieke karakter is doorgetrokken over de gehele begane grond van het gebouw. Het nog op te leveren voorplein grenst aan de collectieve huiskamer op de kop van het gebouw, waar bewoners en bezoekers kunnen ontspannen en activiteiten organiseren. Deze grotachtige ruimte, waarin je ook de bek van een walvis zou kunnen herkennen, vormt het voorportaal van het meest spectaculaire onderdeel van het project; de ‘canyon’. Door de gefacetteerde, met houten latten beklede wanden, plafonds en receptiebalie vormt de huiskamer al een beleving op zich. Toch is de daaropvolgende canyon, de centrale ontsluitingsruimte van het gebouw, nog een tikje indrukwekkender.
Canyon
De canyon is daadwerkelijk vormgegeven als een bergkloof, een beeld dat wordt opgeroepen door een samenspel van gebogen houten lamellen en telkens anders afgeschuinde betonnen schijven. De in lengte verschillende lamellen zijn door middel van splitpennen aan elkaar bevestigd. “Wij noemen dat Pinokkio-scharnieren, naar het voorbeeld van trekpoppen die ook met behulp van splitpennen in elkaar zijn gezet”, zegt Jeroen Schipper van Orange Architects. Vanaf de eerste verdieping, die alleen toegankelijk is voor bewoners, loopt een bergpad tot aan het dak; een hellend pad dat met de wand mee beweegt naar boven.

De canyon is niet slechts een visuele truc, bedoeld om een verder doordeweekse woongalerij op te leuken. Ook de gevel van de woningen meandert mee en de beukmaten wisselen, waardoor de woningen verschillende breedtes en dieptes hebben. Daarnaast tellen sommige woningen meer verdiepingen, zodat er voor de nodige diversiteit in woningtypes gezorgd kon worden. Het palet varieert van compacte studio’s (het overgrote deel van het aanbod, zeventig procent van de woningen behoort tot het ‘betaalbare’ segment en is 43 tot 52 m² groot), duplexwoningen en urban villa’s.
Patio
De sequentie van publiek toegankelijke ruimtes op de begane grond wordt beëindigd door een patio met bomen, die is omgeven met houten gevels (als contrast met de ‘hardere’ zinken buitengevel van het gebouw). In de hoek van het volume zit een opening met een trap die afloopt naar het water. Er wordt nog een brug gerealiseerd tussen Jonas en het naastgelegen hotel. Als dat is gebeurd kunnen voetgangers een volledig rondje maken door de haven van IJburg, zowel langs als door het gebouw.

Een hedendaags woongebouw is niet klaar zonder dat er iets bijzonders op het dak is gerealiseerd. De bewoners van Jonas en hun gasten hebben de beschikking gekregen over een heus ‘dakstrand’, inclusief poolbar. Midden tussen de woningen op de dakverdieping ligt een recreatielandschap rond een waterstroom die over het daklicht van de ondergelegen canyon loopt. Om het vakantiegevoel te versterken, bestaat een deel van de bestrating uit stenen van Portugees graniet. Je vraagt je af of de bewoners van de woningen rondom op termijn nog blij zijn met de recreatieve functie (ook al is het dakstrand niet openbaar toegankelijk) voor hun huis, maar dat zal de tijd leren.
Alle uitgangspunten in tender gerealiseerd
Amvest en consorten wonnen de tender van de gemeente Amsterdam voor Jonas in 2017, vooral op criteria als kwaliteit en duurzaamheid. Gedurende het bouwproces ging aannemer Sprangers failliet en kregen de partijen onder meer te maken met oplopende bouwkosten en vertraagde leveranties. Toch zijn alle uitgangspunten waarmee het samenwerkingsverband de tender won gerealiseerd, zegt Schipper. “Natuurlijk zijn er discussies geweest of we bepaalde dingen moesten aanpassen, maar we vonden het belangrijk dat we de beloftes die we in de tender hebben gedaan ook waarmaakten. Ook woog bij deze tender het grondbod slechts voor tien procent mee en wij hebben van alle partijen het laagste bod uitgebracht.” Verder is het niet onbelangrijk is dat ontwikkelaar Amvest tevens de eigenaar is van het gebouw en daarmee verantwoordelijk is voor de exploitatie. Behalve Jonas heeft Amvest ook de gebouwen IJland en De Havenmeester in de haven van IJburg in bezit.

Gerelateerde nieuwsberichten

Gerelateerde podcasts

Gerelateerde video's

Andere nieuwsberichten

'Stuttende' en contrasterende installatie voor Besiendershuis Nijmegen

Vandaag, 15:52

Specht architectuur en stedenbouw toont met meergeneratiehofje alledaagse woongemeenschappelijkheid

Vandaag, 14:25

Mobiliteitshub van gerecycled tropisch hardhout voor Tholen

Vandaag, 11:41

Kleurrijke textielinstallatie van Simone Post voor entreegebied Centraal Museum

Vandaag, 09:05

Verzet natuurorganisaties tegen stroomkabel via Schiermonnikoog

Vandaag, 16:39

ING: huizenprijzen stijgen dit jaar niet verder door hoger aanbod

Vandaag, 13:03

TenneT mag datacenteraansluiting uitstellen om vol stroomnet

Vandaag, 10:11

Brabant investeert 1,4 miljoen in waterfilter in Vlaanderen

30 april, 3:51

Rli: klimaat, vervuiling en groei bedreigen beschikbaarheid drinkwater

30 april, 12:20

ABN AMRO: huurwetaanpassingen stoppen uittocht beleggers niet

30 april, 9:04
Ronnie WeessiesRedacteur
KUBUS | Specialist in Archicad
SAPA
Reynaers Aluminium Nederland
Jansen
SAB-profiel bv
Aliplast Aluminium Systems
Kingspan Light & Air
ALUCOBOND®
Caparol
Tarkett BV
Kawneer
Grohe Nederland B.V.
Malaysian Timber Council
OCS | Office Cabling Systems
Swisspearl Nederland
Forster Nederland N.V.
VELUX Commercial Benelux B.V.
Sempergreen
Houthandel van Dam
Aluprof Nederland BV
QbiQ Wall Systems
Forbo Flooring
Schüco Nederland
Cedral
Sto Isoned bv
Triflex bv
Gorter Luiken BV
wienerberger
DUCO Ventilation & Sun Control
BEWI IsoBouw
ROCKWOOL B.V.
Mview+
Rockfon (ROCKWOOL B.V.)
Gira Nederland B.V.
Kingspan Geïsoleerde Panelen
GEZE Benelux  B.V.
Renson
Metaglas Groep
ABB | Busch-Jaeger
Jung | Hateha B.V.
Knauf B.V.
Saint-Gobain Glass Benelux
Faay Vianen B.V.
objectflor
Boon Edam Nederland B.V.
Hunter Douglas Architectural
VOLA Nederland BV
Forbo Eurocol Nederland B.V.
EQUITONE gevelpanelen
Holonite B.V.
Kronospan
Tata Steel Colorcoat®
Architectenweb
Over ons
Contact

© 2002 - 2026 Architectenweb BV / Voorwaarden / Privacy / Disclaimer / Sitemap
Annuleren
OK
Sluiten
Doorgaan
Inloggen
Maak een gratis persoonlijk account aan