Copyright: Ossip van Duivenbode
Copyright: Ossip van Duivenbode
Luchtfoto, 1969
Copyright: Bron: 'Nefkens – Amersfoort 1880-2000. Drie generaties ondernemers in vervoer', Peter Baas
Copyright: Ossip van Duivenbode
Copyright: Ossip van Duivenbode
In de jaren 1970: florerend als 'autogebouw'
Copyright: archief
Copyright: Ossip van Duivenbode
Copyright: Ossip van Duivenbode
2017: aaneengesloten glazen pui aan het voorplein
Copyright: De Kort Van Schaik
Copyright: Ossip van Duivenbode
Copyright: Ossip van Duivenbode
2017: inrit parkeerkelder in brede achterruimte
Copyright: De Kort Van Schaik
Copyright: Ossip van Duivenbode
Copyright: Ossip van Duivenbode
Copyright: Ossip van Duivenbode
2017: dak met de kenmerkende neon-letters
Copyright: De Kort Van Schaik
Copyright: Ossip van Duivenbode
Copyright: Ossip van Duivenbode
Copyright: Ossip van Duivenbode
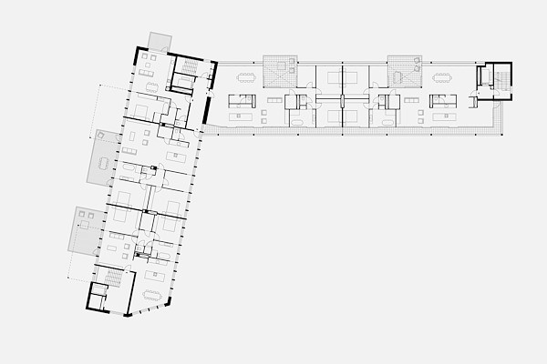
Nefkens Park, begane grond
Copyright: De Kort Van Schaik
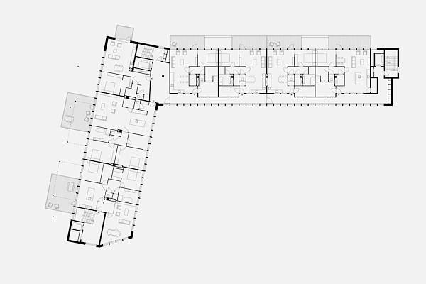
Nefkens Park, eerste verdieping
Copyright: De Kort Van Schaik
Nefkens Park, tweede verdieping
Copyright: De Kort Van Schaik
Nefkens Park, derde verdieping
Copyright: De Kort Van Schaik
Nefkens Park, vierde verdieping
Copyright: De Kort Van Schaik
Nefkens Park, vijfde verdieping
Copyright: De Kort Van Schaik
Nefkens Park, doorsende
Copyright: De Kort Van Schaik
Nefkens Park, oude situatie
Copyright: De Kort Van Schaik
Nefkens Park, nieuwe situatie
Copyright: De Kort Van Schaik
Nefkens Park: een voorbeeldige herbestemming van Post 65-architectuur
Aan een kruising van wegen nabij de binnenstad van Amersfoort staat het markante Nefkens-gebouw, een goed voorbeeld van architectuur uit de late jaren 60 van de vorige eeuw. Het voormalige bedrijfspand is in opdracht van Schipper Bosch getransformeerd tot woongebouw, waarbij De Kort Van Schaik de oorspronkelijke kwaliteiten van het gebouw in ere heeft hersteld en benut. Het architectenbureau hoopt dat het project een voorbeeld vormt van de mogelijkheden die ‘post 65’-architectuur biedt voor herbestemming.
Het Nefkens-gebouw biedt na de transformatie ruimte aan 31 woningen: 24 koop- en 7 shortstay-appartementen. Aan het L-vormige gebouw heeft De Kort Van Schaik twee penthouse-verdiepingen toegevoegd. Middels een onderdoorgang en vergroening is het gebouw bovendien beter verbonden met het achterliggende park. Royale balkons en terrassen zorgen ervoor dat de voorheen inactieve parkzijde nu tot leven komt.

Het voormalige bedrijfsgebouw uit 1969 is een gemeentelijk monument. Het werd ontworpen door Gé Pothoven voor het Amersfoortse autobedrijf Nefkens en bevatte een autoshowroom en benzinepomp op de begane grond en kantoren daarboven. Door zijn L-vorm en voorplein maakt het gebouw als vanzelfsprekend een uitnodigend gebaar naar de stad. Met zijn eenduidige grille van betonnen gevelkolommen is het een toonbeeld van het optimisme waarmee gebouwen in de jaren 60 werden opgetrokken, legt De Kort Van Schaik uit. Tegelijk zoekt het met zijn expressieve bakstenen kopgevels aansluiting bij zijn meer traditionele buren.
Levendig voorplein
Het gebouw, met de kenmerkende rode neonletters op het dak, richt zich volledig op de automobilist die over de Utrechtseweg de binnenstad uit rijdt. Toen het gebouw twintig jaar geleden in handen kwam van ontwikkelaar en belegger Schipper Bosch, werd het pompstation ontmanteld en ging de showroom dienen als restaurant. Het gebouw werd zo meer een ontmoetingsplek, maar met het verdwijnen van de auto-gerelateerde functies ging veel van de oorspronkelijke levendigheid op het voorplein verloren.

De herbestemming tot woongebouw is aangegrepen om meer verblijfskwaliteit op het voorplein te creëeren. Een groot planten- en bomenvak vormt nu een buffer voor de drukte van de Utrechtseweg. Dit komt het terras van de horeca-functie ten goede en het maakt het voorplein ook geschikt om aan te wonen. Zo heeft De Kort Van Schaik in een deel van de voormalige showroom zeven shortstay-appartementen ontworpen, die de voorruimte als gemeenschappelijke ruimte gebruiken. De grote schuifdeuren waardoor voorheen auto’s in en uit reden, zijn nu te gebruiken om de ruimte naar het voorplein open te zetten, waarmee er een nieuwe levendigheid kan ontstaan.
De stad groter maken
Aan de voorzijde omarmt het gebouw de stad, maar de achterliggende Bloemweg keerde het altijd de rug toe. Dit terwijl de achterzijde inmiddels tot een parkachtig gebied met woningen was ontwikkeld, vertelt De Kort Van Schaik. Het ontsluiten en activeren van deze zijde namen de architecten dan ook als een speerpunt bij de transformatie.
In het hart van het gebouw is een onderdoorgang gemaakt, waardoor voetgangers vanaf het voorplein het achterliggende gebied kunnen bereiken en vice versa. Door de aanwezigheid van drie toegangen – één voor bewoners, één voor de huurders van de shortstay-appartementen en één voor het nieuwe restaurant – is de doorgang het kloppend hart van het gebouw geworden.

Om het culturele belang van de onderdoorgang – die het gebouw iets kleiner, maar de stad iets groter maakt – te onderstrepen, is door kunstenaar Thomas Trum op één van zijwanden een kunstwerk gemaakt. Het werk getiteld ‘Two green lines’ vervolmaakt de nieuwe verbinding die met de onderdoorgang tot stand is gekomen.
De onderdoorgang maakt het gebouw iets kleiner, maar de stad iets groter
Buitenruimtes toevoegen
Eén van de voornaamste opgaven die de transformatie van een kantoor- naar een woongebouw met zich meebrengt is het maken van private buitenruimtes, legt De Kort Van Schaik uit. Bij het Nefkens-gebouw heeft het bureau die aan de achtergevels toegevoegd. Door de aanwezigheid van de buitenruimtes wordt de achterzijde verder geactiveerd, wat de sociale controle op de openbare ruimte ten goede komt. ZUS was verantwoordelijk voor het ontwerp van de buitenruimte.

In de brede open ruimte achter het hoge bouwdeel bevond zich enkel de inrit van de parkeerkelder. Deze is nu ter hoogte van de eerste verdieping volledig afgedekt door een groot terras met bomenbak. Naar boven toe zijn royale balkons geplaatst, die ten opzichte van elkaar verspringen. Elk balkon vormt zo een luifel voor de buitenruimtes eronder, wat maakt dat alle buitenruimtes zowel zon- als schaduwrijk zijn en beschutting bieden tegen de regen. De kolommen van de balkons steunen af op de balkons eronder, wat een driedimensionaal spel oplevert van witte kolommen die uit de bestaande gevel lijken te stappen.
Penthouses
Het dak van elke vleugel is uitgebreid met een nieuwe bouwlaag met penthouses. Het voortzetten van de zichtbare en duidelijk afleesbare constructie is bij deze uitbreiding als uitgangspunt genomen. Op de begane grond staan de kolommen op het stramien van 7 meter vrij in de ruimte van de voormalige showroom. Daarboven ligt een balk waarop gevelkolommen met een tussenruimte van 1,4 meter een grille vormen. De nieuwe verdiepingen op het dak pakken het ritme van 7 meter weer op, met stalen kolommen en een randbalk.

Terwijl op het maaiveld de glazen pui naar voren komt en de kolommen vrij in de ruimte staan, liggen de ramen tussen de gevelkolommen juist terug. Bij de penthouses heeft De Kort Van Schaik de glazen pui nog verder terug geplaatst, waardoor de nieuwe kolommen vrij staan. De ontstane tussenruimte dient als terras.

Het geborstelde aluminium weerspiegelt de omgeving en reageert op de weersomstandigheden. Zo glanst het als de zon erop staat, wordt het heel grijs bij bewolking en toont het zich haast blauw bij een strakblauwe hemel. Onder invloed van het Hollandse weer wisselt de opbouw meerdere keren per dag van kleur.
Transformatie jong monument
Met het project Nefkens Park heeft De Kort Van Schaik een jong monument uit de late jaren 60 herbestemd. Volgens het architectenbureau bevat het project een aantal componenten die voorbeeldstellend kunnen zijn voor de herbestemming van vergelijkbare gebouwen, met of zonder een monumentenstatus.
1. Verbeteren stedenbouwkundige situatie
De herbestemming is aangegrepen om aansluiting van het gebouw op zijn omgeving te verbeteren. In dit geval is het kavel intensief vergroend en is in het hart van het gebouw een publieke onderdoorgang gemaakt, waarmee een verbinding tussen de straat en het park tot stand is gebracht. Op die manier geeft het project iets terug aan de stad; een geste, die is onderstreept met het aanbrengen van een kunstwerk.
2. Voortbouwen op bestaande architectuur
Het bureau heeft aandachtig en liefdevol naar het gebouw gekeken. Bij alle aanpassingen aan het interieur en exterieur is uitgegaan van de oorspronkelijke kwaliteiten. Overmaat in hoogte en diepte is gebruikt voor de kwaliteit van de woningen. De dakopbouwen vormen een heldere beeïndiging van de kenmerkende zichtbare constructie van het gebouw. De onderdoorgang toont verwantschap met de verbijzonderingen van de plint op de koppen van het gebouw. Daarmee worden de aanpassingen een wezenlijk onderdeel van de bestaande architectuur.
3. Streven naar een duurzamer gebouw
Met de herbestemming is het gebouw aanzienlijk verduurzaamd. Zo benadert het de nieuwbouwnormen qua isolatiewaarde, aldus De Kort Van Schaik. Het dak is bekleed met witte dakbedekking om opwarming tegen te gaan. PV-panelen wekken stroom op voor de verlichting van de algemene ruimtes, de liften en de installaties. Tevens is het gebouw gereed om binnenkort te worden aangesloten op het nieuwe stadswarmtenet.

Gerelateerde nieuwsberichten

Gerelateerde bedrijven

Andere nieuwsberichten

Hans Been Architecten en LAP Landscape & Urban Design winnen tender in Hoeven

Vandaag, 13:00

RoosRos ontwerpt circulaire gym/beweegbox in Tilburg – eerste toepassing sorghumvezelisolatie

Vandaag, 12:00

Studioninedots deelt nieuwe beelden van project Spark op Smakkelaarsveld in Utrecht

Vandaag, 11:00

MVRDV ontwerpt groene woontoren met gemeenschappelijke balkons en dakterras in Taiwan

Vandaag, 10:00

Gemeente Den Haag komt met meldpunt voor onveilige plekken

Vandaag, 12:11

Vervoersregio's Rotterdam, Den Haag en Amsterdam willen miljard extra voor OV

21 november, 11:29

Mogelijke proef zelfrijdende pendelbussen tussen station Hoofddorp en Schiphol Trade Park

20 november, 2:15

Fietsflat bij Amsterdam Centraal wordt na 25 jaar gesloopt

20 november, 1:45

Maastricht grootste stijger op lijst van beste steden om te wonen

20 november, 1:15

Minder infraprojecten gaan door na bezuinigingen Prinsjesdag

20 november, 10:40
ATAG Nederland
KUBUS | Specialist in BIM-software
SAPA
Reynaers Aluminium Nederland
Jansen
SAB-profiel bv
Aliplast Aluminium Systems
Kingspan Light & Air
Hagemeister GmbH & Co. KG
ALUCOBOND®
Tarkett BV
Kawneer
Grohe Nederland B.V.
Malaysian Timber Council
OCS | Office Cabling Systems
Swisspearl Nederland
Forster Nederland N.V.
VELUX Commercial Benelux B.V.
Sempergreen
Houthandel van Dam
Aluprof Nederland BV
QbiQ Wall Systems
Forbo Flooring
Schüco Nederland
Cedral
Sto Isoned bv
Triflex bv
Gorter Luiken BV
wienerberger
Knauf Insulation
DUCO Ventilation & Sun Control
BEWI IsoBouw
Mview+
Rockfon (ROCKWOOL B.V.)
Gira Nederland B.V.
Kingspan Geïsoleerde Panelen
GEZE Benelux  B.V.
Renson
Metaglas Groep
ABB | Busch-Jaeger
Jung | Hateha B.V.
Knauf B.V.
Saint-Gobain Glass Benelux
Faay Vianen B.V.
objectflor
Boon Edam Nederland B.V.
Hunter Douglas Architectural
VOLA Nederland BV
Forbo Eurocol Nederland B.V.
EQUITONE gevelpanelen
Holonite B.V.
AXOR + hansgrohe
Tata Steel Colorcoat®
Architectenweb
Over ons
Contact

© 2002 - 2025 Architectenweb BV / Voorwaarden / Privacy / Disclaimer / Sitemap
Annuleren
OK
Sluiten
Doorgaan
Inloggen
Maak een gratis persoonlijk account aan