Projecten
Producten
Bedrijven
Vacatures
Agenda
Awards
Podcasts
more_horiz
Videos
Magazine
Favorieten
Profiel
Uitloggen
Abonneer je nu op onze nieuwsbrieven!
Abonneren
Nee, bedankt
Ja, denk met me mee rond de
materialisering van mijn project
Copyright: Marcel van der Burg
Copyright: Marcel van der Burg
Copyright: Marcel van der Burg
Copyright: Marcel van der Burg
Copyright: Marcel van der Burg
Copyright: Marcel van der Burg
Copyright: Marcel van der Burg
Copyright: Marcel van der Burg
Copyright: Marcel van der Burg
Copyright: Marcel van der Burg
Copyright: Marcel van der Burg
Copyright: Marcel van der Burg
Copyright: Marcel van der Burg
Copyright: Marcel van der Burg
Copyright: Marcel van der Burg
Copyright: Marcel van der Burg
Copyright: Marcel van der Burg
Copyright: VMX Architects
Copyright: VMX Architects
Copyright: VMX Architects
Copyright: VMX Architects
Copyright: VMX Architects
Copyright: VMX Architects
Copyright: VMX Architects
Copyright: VMX Architects
Haasje Over bekroond als Woongebouw van het Jaar 2021
10 november 2021, 19:30
Tijdens de feestelijke uitreiking van de Architectenweb Awards 2021, op woensdagavond 10 november in het Keilepand in Rotterdam, is Haasje Over op Strijp S in Eindhoven gekroond tot Woongebouw van het Jaar 2021. Het woongebouw is ontworpen door
VMX Architects
.
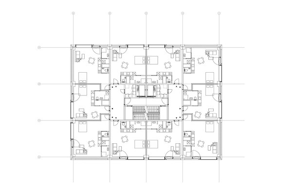
Woongebouw Haasje Over omvat 182 sociale huurwoningen die verdeeld zijn over een zeventig meter hoge toren en een brug die over de naastgelegen skatehal steekt. Aan de andere zijde van het gebouw voert een loopbrug, vanuit een grote gemeenschappelijke ruimte, naar de daktuin op gebouw Anton.
Op het voormalige fabrieksterrein van Philips hadden talloze gebouwen vertakkingen naar elkaar. Met de twee bruggen van Haasje Over wil VMX Architects deze verloren verbindingen niet alleen in herinnering roepen, maar vooral ook nieuw leven inblazen met programma dat past bij de nieuwe functie van de buurt.
Volgens de jury
Op deze complexe locatie heeft VMX Architects een aantal strategische keuzes gemaakt die enorm veel waarde creëren voor zowel de bewoners als de buurt, vindt de jury. Het project laat daarmee als geen ander zien wat voor meerwaarde een architect in een project kan inbrengen.
Het voorstel om vanuit de woontoren bruggen te maken over de naastgelegen skatehal en richting gebouw Anton noemt de jury zowel weloverwogen als brutaal. Weloverwogen omdat zo de zeer gewaardeerde skatehal behouden kon blijven en de bewoners van dit woongebouw zo ook gebruik kunnen maken van de daktuin bovenop gebouw Anton. En brutaal, want dergelijke verbindingen tussen gebouwen zijn in Nederland zelden vertoond.
Krachtig in het ontwerp, en ook opdrachtgever Trudo te prijzen, is dat op de plek waar de bruggen ontspringen aan de toren twee gemeenschappelijke ruimtes zijn gecreëerd. Bij de woonbrug over de skatehal gaat het om een gemeenschappelijke werkplaats. Bij de loopbrug richting de daktuin van gebouw Anton is een grote gemeenschappelijke woonkamer gemaakt met een groot dakterras op de loopbrug.
De woningen in het gebouw zijn daarbij nog een verhaal apart. Het gaat voor het hele gebouw om sociale huurwoningen en in de toren is de verdiepingshoogte, geïnspireerd om die in de naastgelegen gebouwen Anton en Gerard, op 3,60 meter gelegd. Het is aan de bewoners om die extra hoogte wel of niet te benutten, maar velen hebben er zelf een houten tussenverdieping gecreëerd. Dit levert niet alleen slimme woningen op, die werkelijk afgestemd zijn op de wensen van de bewoners, maar levert ook een niet onbelangrijk gevoel van eigenaarschap op. Aan de gevel heeft VMX Architects er daarbij voor gekozen om iedere woning te voorzien van een enorm raam, met dus een weids uitzicht over de stad, met daarnaast een luik en hoog raam waardoor geventileerd kan worden.
Een herkenbaar silhouet op afstand, een stoere materialisering als je iets dichterbij komt, een precieze detaillering en rechtdoorzee interieur als je naar binnengaat… Haasje Over is op alle schaalniveaus echt goed ontworpen, vindt de jury.
Genomineerden
Naast Haasje Over waren nog vier projecten voor de prijs genomineerd. Dat waren Foeliestraat 2-4 in Amsterdam van Ronald Janssen Architecten, Little C in Rotterdam van CULD en Inbo, Spaarndammerhart in Amsterdam van Korth Tielens Architecten & Marcel Lok_Architect en tot slot De Voortuinen in Amsterdam van Elephant.
De inzendingen voor de prijs Woongebouw van het Jaar 2021 zijn beoordeeld op maatschappelijke relevantie, vakmanschap en mate van vernieuwing. De jury bestond uit Gijs Baks (Space Encounters), Suzanne Ellis (Brique Architecten), Ingrid van der Heijden (Civic Architects), Eline Strijkers (DoepelStrijkers), Frederik Vermeesch (Rijnboutt) en Silvie Bruijning (Kondor Wessels Vastgoed).
Partners
Naast de prijs voor Woongebouw van het Jaar zijn bij de uitreiking van de Architectenweb Awards de volgende categorieprijzen toegekend: Kantoorgebouw van het Jaar, Schoolgebouw van het Jaar, Interieur van het Jaar en Publiek gebouw van het Jaar. De jury heeft bij deze editie geen projecten genomineerd in de categorie Zorggebouw van het Jaar; deze prijs is dan ook niet uitgereikt.
De architectuurprijzen worden door Architectenweb uitgereikt samen met hoofdpartners
Reynaers Aluminium
en
Forster
, en partners
QbiQ Wall Systems
,
Alprokon
en
Cerriva
.
Tevens is tijdens het evenement op 10 november de Architect van het Jaar 2021 bekendgemaakt.
Trefwoorden
architectenweb awards 2021
haasje over
woongebouw van het jaar
vmx architects
architectenweb awards
Best gelezen
1
Tentoonstelling in Het Noordbrabants Museum rond 50 jaar BPD Kunstcollectie
dinsdag, 5 mei
2
Negentiende-eeuwse woningen in Feijenoord gered door er kluswoningen van te maken
maandag, 4 mei
3
Uitkijkradartoren van RO&AD Architecten bereikt hoogste punt
dinsdag, 5 mei
4
Symposium rond het ontwerp van scholen – standaardisatie versus maatwerk
woensdag, 6 mei
5
Woonhuis met groen geglazuurde gevelstenen voor Buiksloterham
woensdag, 6 mei
Gerelateerde nieuwsberichten
Woongebouw Haasje Over heeft energiecentrale op het dak
1 augustus 2022
Tribunevormig gebouw van MVRDV met zicht op het hart van Strijp-S
10 mei 2024
De Jakoba bekroond als Woongebouw van het Jaar 2023
8 november 2023
Stuur nu jullie project in voor de prijs voor Woongebouw van het Jaar 2023
8 mei 2023
Nominaties Woongebouw van het Jaar 2023 bekend
6 september 2023
Stuur nu jullie projecten in voor de Architectenweb Awards 2022!
2 mei 2022
Stuur nu jullie project in voor de prijs voor Woongebouw van het Jaar 2025
12 mei 2025
Nominaties Woongebouw van het Jaar 2024 bekend
4 september 2024
Stuur nu jullie project in voor de prijs voor Woongebouw van het Jaar 2024
29 april 2024
Symposium waarin het nieuwe hybride stadsblok op de snijtafel gelegd wordt
16 mei 2022
MO*town Track 8 bekroond als Woongebouw van het Jaar 2025
5 november 2025
Nominaties Woongebouw van het Jaar 2025 bekend
3 september 2025
Stuur nu jullie project in voor de prijs voor Woongebouw van het Jaar 2026
1 minuut geleden
Stuur nu jullie projecten in voor de Architectenweb Awards 2023!
1 mei 2023
Bekroond woningbouwproject Spaarndammerhart staat centraal in boek
18 april 2023
Nominaties Woongebouw van het Jaar 2022 bekend
29 augustus 2022
Nog 5 dagen om projecten in te sturen voor de Architectenweb Awards 2022
20 juni 2022
Stuur nu jullie project in voor de prijs voor Woongebouw van het Jaar 2022
9 mei 2022
Nominaties Gouden Piramide 2022 bekend
14 april 2022
Abe Bonnema Architectuurprijs 2021 voor Spaarndammerhart
10 december 2021
Nominaties Zuiderkerkprijs en Geurt Brinkgreve Bokaal 2021 bekend
1 december 2021
Video's: genomineerden Abe Bonnema Architectuurprijs 2021
26 november 2021
Foto's uitreiking Architectenweb Awards 2021
11 november 2021
Nominaties Woongebouw van het Jaar 2021 bekend
6 september 2021
Fenix I uitgeroepen tot Woongebouw van het Jaar 2020
28 oktober 2020
Nominaties 'Woongebouw van het Jaar 2020' bekend
2 september 2020
Intense laagbouw Spijkerkwartier bekroond als Woongebouw van het Jaar 2019
31 oktober 2019
Nominaties 'Woongebouw van het Jaar 2019' bekend
4 september 2019
Superlofts Blok Y (Marc Koehler Architects) bekroond als Woongebouw van het Jaar 2018
8 november 2018
Nominaties ‘Woongebouw van het Jaar 2018’ bekend
20 september 2018
Stuur nu jullie projecten in voor de Architectenweb Awards 2021
3 mei 2021
Stuur nu jullie projecten in voor de Architectenweb Awards 2020
1 mei 2020
Architectenweb Awards 2019 open voor inschrijving
6 mei 2019
Architectenweb Awards 2018 open voor inschrijving
4 juni 2018
Woongebouw Haasje Over heeft energiecentrale op het dak
1 augustus 2022
Tribunevormig gebouw van MVRDV met zicht op het hart van Strijp-S
10 mei 2024
De Jakoba bekroond als Woongebouw van het Jaar 2023
8 november 2023
Stuur nu jullie project in voor de prijs voor Woongebouw van het Jaar 2023
8 mei 2023
Nominaties Woongebouw van het Jaar 2023 bekend
6 september 2023
Stuur nu jullie projecten in voor de Architectenweb Awards 2022!
2 mei 2022
Stuur nu jullie project in voor de prijs voor Woongebouw van het Jaar 2025
12 mei 2025
Nominaties Woongebouw van het Jaar 2024 bekend
4 september 2024
Stuur nu jullie project in voor de prijs voor Woongebouw van het Jaar 2024
29 april 2024
Symposium waarin het nieuwe hybride stadsblok op de snijtafel gelegd wordt
16 mei 2022
MO*town Track 8 bekroond als Woongebouw van het Jaar 2025
5 november 2025
Nominaties Woongebouw van het Jaar 2025 bekend
3 september 2025
Stuur nu jullie project in voor de prijs voor Woongebouw van het Jaar 2026
1 minuut geleden
Stuur nu jullie projecten in voor de Architectenweb Awards 2023!
1 mei 2023
Bekroond woningbouwproject Spaarndammerhart staat centraal in boek
18 april 2023
Nominaties Woongebouw van het Jaar 2022 bekend
29 augustus 2022
Nog 5 dagen om projecten in te sturen voor de Architectenweb Awards 2022
20 juni 2022
Stuur nu jullie project in voor de prijs voor Woongebouw van het Jaar 2022
9 mei 2022
Nominaties Gouden Piramide 2022 bekend
14 april 2022
Abe Bonnema Architectuurprijs 2021 voor Spaarndammerhart
10 december 2021
Nominaties Zuiderkerkprijs en Geurt Brinkgreve Bokaal 2021 bekend
1 december 2021
Video's: genomineerden Abe Bonnema Architectuurprijs 2021
26 november 2021
Foto's uitreiking Architectenweb Awards 2021
11 november 2021
Nominaties Woongebouw van het Jaar 2021 bekend
6 september 2021
Fenix I uitgeroepen tot Woongebouw van het Jaar 2020
28 oktober 2020
Nominaties 'Woongebouw van het Jaar 2020' bekend
2 september 2020
Intense laagbouw Spijkerkwartier bekroond als Woongebouw van het Jaar 2019
31 oktober 2019
Nominaties 'Woongebouw van het Jaar 2019' bekend
4 september 2019
Superlofts Blok Y (Marc Koehler Architects) bekroond als Woongebouw van het Jaar 2018
8 november 2018
Nominaties ‘Woongebouw van het Jaar 2018’ bekend
20 september 2018
Stuur nu jullie projecten in voor de Architectenweb Awards 2021
3 mei 2021
Stuur nu jullie projecten in voor de Architectenweb Awards 2020
1 mei 2020
Architectenweb Awards 2019 open voor inschrijving
6 mei 2019
Architectenweb Awards 2018 open voor inschrijving
4 juni 2018
Toon alles
Gerelateerde podcasts
Toren van Babel
Gesprek met Fieke van den Beuken over sociale woningen in hoogbouw
14 oktober 2022
Gerelateerde video's
Uitreiking Architectenweb Awards 2021
Sfeerimpressie van een feestelijke avond
Andere nieuwsberichten
Stuur nu jullie project in voor de prijs voor Woongebouw van het Jaar 2026
1 minuut geleden
Hebben jullie een woongebouw in Nederland ontworpen dat in de periode van 1 september 2025 tot en met 31 augustus 2026 opgeleverd of voltooid is? Stuur dat dan nu in voor de Architectenweb Awards 2026! Deadline is 19 juni 2026.
Jeroen de Willigen wordt stadsbouwmeester van Antwerpen
8 mei, 3:31
Op 1 juli begint hij aan zijn vijfjarige periode in de Vlaamse stad. De Willigen blijft verbonden aan zijn bureau De Zwarte Hond, zijn voorzitterschap van de BNA zal hij uiterlijk 1 januari volgend jaar opgeven.
Oorspronkelijke uitgangspunten leidend bij renovatie Patrimonium’s Hof
8 mei, 2:42
In opdracht van Hef Wonen werkten Mainport Putter & Partners en SmitsRinsma met veel zorg aan Rotterdamse historisch ensemble.
DP6 en i29 transformeren oude HBS in Utrecht tot onderkomen SSR
8 mei, 1:44
In Utrecht is de voormalige HBS aan de Catharijnesingel getransformeerd tot het nieuwe onderkomen van SSR, het opleidingsinstituut van de Rechtspraak en het Openbaar Ministerie.
Nieuwe coalitie Moerdijk hamert op duidelijkheid en compensatie
8 mei, 4:27
Er wordt al langere tijd gesproken over opheffing van het Brabantse dorp Moerdijk, een van de elf kernen van de gemeente.
Noorden gaat onderzoeken hoe regio kan bijdragen aan Lelylijn
8 mei, 12:09
De politiek praat al jaren over de Lelylijn, maar het loopt vast op de kosten.
BAM denkt mee te profiteren van toenemende defensie-uitgaven
7 mei, 3:38
Bouwconcern BAM denkt mee te kunnen profiteren van de energietransitie en toenemende defensie-uitgaven van de overheid.
ABN AMRO: tweedeling koper en huurder op woningmarkt groeit
7 mei, 11:30
Volgens deskundigen van de bank is wonen de laatste jaren over de gehele linie betaalbaarder geworden. Echter, vooral zittende huiseigenaren profiteren.
HDN: mensen vragen minder hypotheken aan door hogere rente
4 mei, 5:02
De gestegen hypotheekrente maakte zowel kopers als niet-kopers terughoudender.
Nieuwsuur: gifzones belemmeren woningbouw in zeker veertig gemeenten
4 mei, 10:37
De bouw van tienduizenden woningen in Nederland loopt vertraging op door regels rond zogeheten spuitvrije zones.
Ga naar het nieuws-archief
1
0
0
0
Voor een optimale gebruikservaring plaatst Architectenweb functionele cookies. Wat de verschillende cookies precies doen leggen we uit in een
overzicht
. Cookies van social media kun je optioneel
aanzetten
.
Akkoord
Instellingen
Annuleren
OK
Sluiten
Doorgaan
Inloggen
Maak een gratis persoonlijk account aan
Feedback
Feedback
Wij horen graag jouw feedback. Laat je reactie achter en eventueel jouw e-mail adres.
Reactie
Verstuur