Projecten
Producten
Bedrijven
Vacatures
Agenda
Awards
Podcasts
more_horiz
Videos
Magazine
Thema's
Favorieten
Profiel
Uitloggen
Copyright: adegfoto.com
Copyright: adegfoto.com
Copyright: adegfoto.com
Copyright: adegfoto.com
Copyright: adegfoto.com
Copyright: adegfoto.com
Copyright: adegfoto.com
Copyright: adegfoto.com
Copyright: adegfoto.com
Copyright: adegfoto.com
Copyright: Studio SAAM
Copyright: Studio SAAM
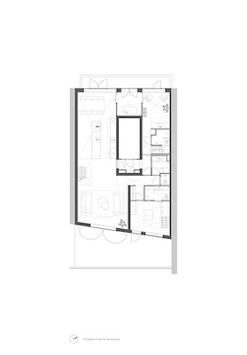
Een loft met een hangende vloer
5 augustus 2021, 13:53
Voor een particuliere opdrachtgever heeft
Studio SAAM
extra leefruimte gecreëerd in het casco appartement. De wensen moesten worden samengebracht met de beperkingen van het casco; het resultaat is een interieur met een stoere en tegelijkertijd warme uitstraling.
De nieuwe bewoners van een loft in Amsterdam-Noord wilden meer leefruimte in het appartement. Een tussenvloer toevoegen lag voor de hand, maar Studio SAAM zag zich gesteld voor twee uitdagingen: het casco kende weliswaar extra, maar toch beperkte hoogte, en bleek daarnaast beperkte mogelijkheden te bieden voor de verbindingen met de constructie van een entresol.
Dunne vloer aan kabels
Vloer en plafond dienden vrijgehouden te worden van constructie, vertelt het architectenbureau. Daarom richtte het zich op de ontmoeting tussen wand en plafond: het punt waar krachten worden afgedragen – en het punt waar zwaardere verbindingen kunnen worden gerealiseerd, legt Studio SAAM uit.
Aan dit punt heeft het architectenbureau de stalen constructie van de entresol door middel van diagonale stalen trekkabels opgehangen. Met het oog op de beperkte extra hoogte van het casco heeft de entresol zelf een minimale vloerdikte van slechts twaalf centimeter. Dit is bereikt met vloerdelen uit holle houten profielen, die zijn opgelegd op stalen L-profielen.
Materialisatie
De oplossingen voor de constructie van de tussenvloer sloten naadloos aan bij het uitgangspunt voor de materialisatie van het interieur. Met ‘ruwbouw is afbouw’ is gestreefd naar duurzaam, minimaal materiaalgebruik en een robuuste en tegelijkertijd warme sfeer. Van de toegepaste materialen hebben de architecten de kwaliteit en de uitstraling behouden.
De betonvloer van het appartement en het staal en hout van de entresol zijn zo min mogelijk behandeld. De cascowanden zijn alleen geschilderd waardoor de opbouw zichtbaar blijft, vertelt Studio SAAM. In de keuken, ontworpen door studio SOOL, is onbehandeld marmer toegepast.
Vides en zichtlijnen
De beleving van de ruimten op en onder de tussenvloer was een ander belangrijk aandachtspunt, vertelt Studio SAAM; de geringere hoogte van deze ruimten zouden niet moeten worden ervaren. Het bureau heeft sterk ingezet op zichtlijnen en op ‘meer vide dan verdieping’. Zo zijn alle ruimten onderling verbonden en blijft de ervaring van de oorspronkelijke hoogte overal aanwezig.
Trefwoorden
amsterdam-noord
woning
interieur
loft
amsterdam
entresol
studio saam
tussenverdieping
Best gelezen
1
Nieuw voorstel voor renovatie en uitbreiding De Kuip
woensdag, 26 november
2
Het streven naar nieuw is ouderwets
donderdag, 20 november
3
SAWA officieel geopend door Koningin Máxima
donderdag, 20 november
4
Space&Matter ontwerpt ingetogen houten paviljoen voor BSO in Zeist
vrijdag, 21 november
5
Studioninedots deelt nieuwe beelden van project Spark op Smakkelaarsveld in Utrecht
maandag, 24 november
Gerelateerde nieuwsberichten
Een persoonlijke zoektocht naar een woning die én duurzaam is én ruimtelijke kwaliteit biedt én betaalbaar is
22 juli 2021
Monumentale woning in hartje Amsterdam met geduld verbouwd en verduurzaamd
15 augustus 2024
Amsterdamse loft met conceptueel interieur van Firm Architects
12 juli 2021
Ex Interiors creëert ademruimte in een compacte woning
15 april 2021
Interieur te gast in een monumentale stolpboerderij
18 maart 2021
Een Dordtse woning strekt zich door een voormalige zeilmakerij
2 maart 2021
Op maat gemaakt interieur voor schrijver en kunstverzamelaar
19 februari 2021
Studio Modijefsky geeft traditioneel dijkhuis eigentijdse accenten
31 mei 2022
Drijvend huis met ruimtelijk interieur van i29
11 januari 2021
Open leefruimten achter een zwart houten gevel
17 december 2020
Een benedenwoning met lange zichtlijnen
19 november 2020
Een ongepolijste loft in een oude buurtgarage
15 juni 2023
Villa met harmonieuze eenheid van interieur en architectuur
21 oktober 2020
Herindeling van een vooroorlogse woning creëert een eigentijdse loft
30 april 2024
Meubelstukken delen de loft in
20 oktober 2020
Een eigentijdse stadswoning in het historisch hart van Amsterdam
30 september 2020
Woongebouw The Grid in wijk Aan het IJ Amsterdam-Noord klaar
7 december 2021
Nederlandse architect ontwerpt Italiaans appartement met kalm karakter
2 maart 2023
Een persoonlijke zoektocht naar een woning die én duurzaam is én ruimtelijke kwaliteit biedt én betaalbaar is
22 juli 2021
Monumentale woning in hartje Amsterdam met geduld verbouwd en verduurzaamd
15 augustus 2024
Amsterdamse loft met conceptueel interieur van Firm Architects
12 juli 2021
Ex Interiors creëert ademruimte in een compacte woning
15 april 2021
Interieur te gast in een monumentale stolpboerderij
18 maart 2021
Een Dordtse woning strekt zich door een voormalige zeilmakerij
2 maart 2021
Op maat gemaakt interieur voor schrijver en kunstverzamelaar
19 februari 2021
Studio Modijefsky geeft traditioneel dijkhuis eigentijdse accenten
31 mei 2022
Drijvend huis met ruimtelijk interieur van i29
11 januari 2021
Open leefruimten achter een zwart houten gevel
17 december 2020
Een benedenwoning met lange zichtlijnen
19 november 2020
Een ongepolijste loft in een oude buurtgarage
15 juni 2023
Villa met harmonieuze eenheid van interieur en architectuur
21 oktober 2020
Herindeling van een vooroorlogse woning creëert een eigentijdse loft
30 april 2024
Meubelstukken delen de loft in
20 oktober 2020
Een eigentijdse stadswoning in het historisch hart van Amsterdam
30 september 2020
Woongebouw The Grid in wijk Aan het IJ Amsterdam-Noord klaar
7 december 2021
Nederlandse architect ontwerpt Italiaans appartement met kalm karakter
2 maart 2023
Toon alles
Andere nieuwsberichten
Schiphol investeert tien miljard in nieuwe terminal en andere infrastructuur
Vandaag, 16:22
Schiphol wil tot 2035 tien miljard euro investeren in betere en duurzamere infrastructuur, waaronder een nieuwe terminal en vernieuwde pieren.
Video's: genomineerden voor de Abe Bonnema Architectuurprijs 2025
Vandaag, 13:00
Van de vier genomineerde architecten voor de Abe Bonnema Architectuurprijs 2025 zijn video's gemaakt.
'Landmark' voor duurzame toekomst komt in Rotterdamse wijk Waterkant
Vandaag, 11:53
De zogeheten Shift Landmark krijgt een plek in de toekomstige wijk Waterkant in Rotterdam-Zuid. Het gebouw moet een internationale trekpleister worden die mensen, bedrijven en andere organisaties aanzet tot actie voor een duurzame toekomst.
RxDOMI ontwikkelt modulaire, biobased mantelzorgwoning op basis van WikiHouse-systeem
Gisteren, 16:06
Met 3D-modules van 10 m2 kunnen kleinere en grote woonruimtes gerealiseerd worden. RxDOMI ontwikkelt en bouwt de modulaire mantelzorgwoning.
Flevoland rekent op kabinet bij openstellen Lelystad Airport
4 uur geleden
De provincie Flevoland rekent erop dat het kabinet Lelystad Airport niet alleen openstelt voor Defensie, maar ook voor vakantievluchten.
CBS: bijna acht procent van de corporatiewoningen naar statushouders
Vandaag, 14:42
Bijna acht procent van de huurwoningen van woningcorporaties die in 2023 vrijkwamen, ging dat jaar naar statushouders.
Kennisinstituut: reizen met auto, vliegtuig en e-bike in de lift
Gisteren, 12:56
Het wegverkeer, het aantal vliegtuigpassagiers, en het gebruik van de elektrische fiets zijn in 2024 gegroeid en naar verwachting zet die stijging door.
Amsterdam koppelt metrolijn 50 en 53 om capaciteit metronetwerk te verhogen
Gisteren, 10:00
Op het nieuwe netwerk kunnen de metro's vaker rijden: acht keer per uur overdag en tien keer per uur in de spits. Door de ontvlechting rijden er straks minder lijnen op hetzelfde spoor.
Gemeente Den Haag komt met meldpunt voor onveilige plekken
24 november, 12:11
De gemeente Den Haag heeft een meldpunt gecreëerd waar mensen melding kunnen maken van onveilige plekken. Experts bekijken de locaties vervolgens om vast te stellen welke maatregelen er nodig zijn om het gevoel van veiligheid te verbeteren.
Vervoersregio's Rotterdam, Den Haag en Amsterdam willen miljard extra voor OV
21 november, 11:29
Volgens burgemeester Jan van Zanen van Den Haag is 500 miljoen euro extra nodig "om niet achteruit te gaan door indexering en bezuinigingen". En nog eens 500 miljoen euro is nodig "om het OV mee te laten groeien met het aantal inwoners.
Ga naar het nieuws-archief
Robert Muis
Redacteur
2
0
0
0
Voor een optimale gebruikservaring plaatst Architectenweb functionele cookies. Wat de verschillende cookies precies doen leggen we uit in een
overzicht
. Cookies van social media kun je optioneel
aanzetten
.
Akkoord
Instellingen
Annuleren
OK
Sluiten
Doorgaan
Inloggen
Maak een gratis persoonlijk account aan
Feedback
Feedback
Wij horen graag jouw feedback. Laat je reactie achter en eventueel jouw e-mail adres.
Reactie
Verstuur