Projecten
Producten
Bedrijven
Vacatures
Agenda
Awards
Podcasts
more_horiz
Videos
Magazine
Thema's
Favorieten
Profiel
Uitloggen
Copyright: Ben Vulkers
Copyright: Ben Vulkers
Copyright: Ben Vulkers
Copyright: Ben Vulkers
Copyright: Ben Vulkers
Copyright: Ben Vulkers
Copyright: Ben Vulkers
Copyright: Ben Vulkers
Copyright: Ben Vulkers
Copyright: Ben Vulkers
Copyright: Ben Vulkers
Copyright: Ben Vulkers
Copyright: Ben Vulkers
Copyright: Ben Vulkers
Copyright: Ben Vulkers
Copyright: LIAG
Copyright: LIAG
Copyright: LIAG
Copyright: LIAG
Copyright: LIAG
Copyright: LIAG
Copyright: LIAG
Copyright: LIAG
Copyright: LIAG
Copyright: LIAG
Toegankelijk en flexibel VMBO-gebouw van LIAG
10 november 2020, 14:00
Het gebouw voor het nieuwe Beroepscollege Leystede, gelegen in het Leidse Houtkwartier is onlangs door leerlingen en leraren in gebruik genomen.
LIAG
heeft het gebouw ontworpen, dat onderdak biedt aan zowel speciaal als regulier voortgezet beroepsonderwijs.
De nieuwe school biedt ruimte aan leerlingen van het Bonaventuracollege, Visser ’t Hooft Lyceum en mytylschool De Thermiek, in totaal zo’n 550 leerlingen. Het nieuwe Beroepscollege Leystede voor VMBO biedt de bijzondere situatie dat het speciaal onderwijs is geïntegreerd in het regulier onderwijs, legt LIAG uit. Het bureau heeft de fysieke leeromgeving daar op moeten afstemmen.
Toegankelijk en flexibel
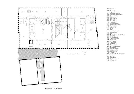
Het gebouw heeft een open structuur. Er zijn volgens het bureau veel open pleinen en daardoor kent het gebouw een grote mate van transparantie en toegankelijkheid. Door drie grote vides valt daglicht tot diep in het gebouw.
Elk (beroepsgericht) profiel heeft een eigen plek in het pand; die eigen plekken bestaan uit meerdere typen onderwijsruimten, zoals individuele studieplekken, groepsruimten, theorielokalen en praktijkruimten. De ruimten zijn echter alle geschikt voor diverse onderwijsactiviteiten; zelfs de technische ruimte is als onderwijsruimte te gebruiken, aldus LIAG.
De clusters zijn alle verbonden met de gemeenschappelijke ruimten. Door de open structuur en grote transparantie staan de leerlingen altijd in contact met elkaar, legt het architectenbureau uit. “Ze worden uitgedaagd en kunnen zien welke mogelijkheden worden geboden in de verschillende clusters.”
Verbinding met omgeving
Het schoolgebouw ligt op een bijzonder schakelpunt in de wijk; de schaal van het Houtkwartier met bebouwing uit de jaren ’20 en ’30 van de vorige eeuw treft hier de grootschalige volumes van de wederopbouw. Tegelijkertijd is de groene verbinding vanuit de stad richting het noorden bepalend voor de kavel, vertelt LIAG.
Het bureau ontwerp een gebouw uit meerdere volumes, die in hoogte, afmetingen en baksteenkleur verschillen. Hiermee sluit het pand aan alle kanten aan op de omgeving en de verschillen in stedenbouwkundige korrelgrootte. Het baksteen refereert aan de oorspronkelijke bebouwing van de wijk, maar is toegepast met een moderne kleurschakering en verbijzondering bij de entrees.
Een ritmische herhaling van de gevelopeningen verbindt de volumes. Op de hoeken en bij de entrees zorgen grotere openingen voor een relatie met de omgeving; de leerlingen hebben hier zicht op de buitenwereld en omwonenden krijgen een idee van de activiteiten die zich binnen afspelen, aldus het architectenbureau.
LIAG heeft het gebouw compact kunnen houden door dubbel ruimtegebruik. Hierdoor was er plek voor een groter buitenterrein, op het zuiden gelegen. Extra bomen zorgen voor een schaduwrijk plein. Ook hier is meervoudig gebruik ingecalculeerd; een kleine tribunetrap biedt mogelijkheden voor lessen of andere activiteiten in de openlucht.
Leerzame duurzaamheid
Het gebouw heeft geen gasaansluiting en een netto energieverbruik van nul. Dit is bereikt door het gebouw te voorzien van onder andere een dik isolatiepakket, drievoudig glas, goede kierdichting, ledverlichting, zonnepanelen en andere installaties voor energieopwekking.
De duurzame energievoorzieningen zijn in de school zichtbaar en toegankelijk voor de leerlingen; zo wordt het inzicht in de werking gegeven en kunnen ze leren werken met de installaties. Als er meer energie wordt opgewekt dan verbruikt, kan het overschot worden geleverd aan de buurt.
Trefwoorden
liag architekten en bouwadviseurs
onderwijs
schoolgebouw
liag
school
leiden
Locatie
Best gelezen
1
Plan voor nieuwe buurt op plek hoofdkantoor ABN AMRO op de Zuidas
vrijdag, 10 oktober
2
Flat Amsterdam-Noord 'aangekopt' met 53 seniorenwoningen
donderdag, 9 oktober
3
‘Alexander Straub zet grote groep vakgenoten weg als niet-relevant’
vrijdag, 10 oktober
4
bureau SLA ontdekt, transformeert en gebruikt rijksmonumentale werkplaats
donderdag, 9 oktober
5
Vier genomineerden voor de Abe Bonnema Architectuurprijs 2025
woensdag, 8 oktober
Gerelateerde nieuwsberichten
Compacte uitbreiding scholencomplex met ruimte voor groen
23 november 2020
LIAG wint architectenselectie vernieuwbouw Bonhoeffer College in Enschede
1 april 2022
Renovatie en uitbreiding voor karakteristiek schoolgebouw
13 februari 2024
Arie Aalbers neemt afscheid van LIAG: “Haalbaar én maakbaar, dat was mijn missie”
2 november 2023
LIAG geselecteerd voor nieuwbouw Vakcollege Thamen
26 februari 2024
Kindcentrum met openbare route naar het voedselbos
10 augustus 2021
Sporthal met opvallende elementen voor Elzenhagen Zuid
4 juli 2024
LIAG versterkt directieteam met Harmen Landman
19 september 2024
LIAG geeft Kindcentrum in Zoetermeer ruimte voor open onderwijs
8 oktober 2020
Studentenwoontoren op oud ziekenhuisterrein Oudenrijn klaar
1 oktober 2020
Circulaire gevelrenovatie Hogeschool Windesheim Zwolle van start
18 augustus 2020
Levensloopbestendige gezinswoning van LIAG
28 juli 2020
Nieuwe ruimten Universiteit Maastricht in getransformeerde kazerne
19 maart 2020
Auditorium van het Prinses Máxima Centrum officieel geopend
28 november 2019
Video: 100 jaar LIAG
2 oktober 2019
Nul-op-de-meter IKC van Grenovation is duurzaamste project
19 februari 2019
Start bouw zeventig meter hoge woontoren in Utrecht
3 oktober 2018
LIAG wint architectenselectie renovatie Windesheim-gebouwen
3 juli 2018
Prinses Máxima Centrum voor kinderoncologie officieel geopend
5 juni 2018
LIAG ontwerpt het nieuwe Wellantcollege Dordrecht
30 mei 2018
Helgasnelarchitecten schept rust en eenheid in schoolinterieurs
26 november 2020
Architecten|en|en realiseert schoolgebouw als driedelig maatpak
16 december 2020
Vernieuwing Koning Willem II College in Tilburg naar ontwerp architecten|en|en
15 februari 2021
Nominatieronde Rijnlandse Architectuurprijs 2021 geopend
17 mei 2021
Bouw gymzaal in Heijplaat Rotterdam gestart
3 juni 2021
Plan met 550 woningen en veel groene ruimte tegenover Naturalis
28 juni 2021
Carina Nørregaard benoemd tot partner bij LIAG
7 september 2021
10 aantrekkelijke atria in middelbare scholen
16 maart 2022
LIAG presenteert vernieuwd Keizer Karel College Amstelveen
24 maart 2023
Compacte uitbreiding scholencomplex met ruimte voor groen
23 november 2020
LIAG wint architectenselectie vernieuwbouw Bonhoeffer College in Enschede
1 april 2022
Renovatie en uitbreiding voor karakteristiek schoolgebouw
13 februari 2024
Arie Aalbers neemt afscheid van LIAG: “Haalbaar én maakbaar, dat was mijn missie”
2 november 2023
LIAG geselecteerd voor nieuwbouw Vakcollege Thamen
26 februari 2024
Kindcentrum met openbare route naar het voedselbos
10 augustus 2021
Sporthal met opvallende elementen voor Elzenhagen Zuid
4 juli 2024
LIAG versterkt directieteam met Harmen Landman
19 september 2024
LIAG geeft Kindcentrum in Zoetermeer ruimte voor open onderwijs
8 oktober 2020
Studentenwoontoren op oud ziekenhuisterrein Oudenrijn klaar
1 oktober 2020
Circulaire gevelrenovatie Hogeschool Windesheim Zwolle van start
18 augustus 2020
Levensloopbestendige gezinswoning van LIAG
28 juli 2020
Nieuwe ruimten Universiteit Maastricht in getransformeerde kazerne
19 maart 2020
Auditorium van het Prinses Máxima Centrum officieel geopend
28 november 2019
Video: 100 jaar LIAG
2 oktober 2019
Nul-op-de-meter IKC van Grenovation is duurzaamste project
19 februari 2019
Start bouw zeventig meter hoge woontoren in Utrecht
3 oktober 2018
LIAG wint architectenselectie renovatie Windesheim-gebouwen
3 juli 2018
Prinses Máxima Centrum voor kinderoncologie officieel geopend
5 juni 2018
LIAG ontwerpt het nieuwe Wellantcollege Dordrecht
30 mei 2018
Helgasnelarchitecten schept rust en eenheid in schoolinterieurs
26 november 2020
Architecten|en|en realiseert schoolgebouw als driedelig maatpak
16 december 2020
Vernieuwing Koning Willem II College in Tilburg naar ontwerp architecten|en|en
15 februari 2021
Nominatieronde Rijnlandse Architectuurprijs 2021 geopend
17 mei 2021
Bouw gymzaal in Heijplaat Rotterdam gestart
3 juni 2021
Plan met 550 woningen en veel groene ruimte tegenover Naturalis
28 juni 2021
Carina Nørregaard benoemd tot partner bij LIAG
7 september 2021
10 aantrekkelijke atria in middelbare scholen
16 maart 2022
LIAG presenteert vernieuwd Keizer Karel College Amstelveen
24 maart 2023
Toon alles
Andere nieuwsberichten
Architect@Work strijkt 30 en 31 oktober neer in De Kromhouthal in Amsterdam
2 uur geleden
Op donderdag 30 en vrijdag 31 oktober 2025 vindt Architect@Work plaats in De Kromhouthal in Amsterdam-Noord. Het wordt de tweede editie van het event in de metropoolregio Amsterdam en Architectenweb organiseert er weer een sprekersprogramma.
Bureau POLO geselecteerd als architect voor nieuw dienstencentrum in Beerse
Gisteren, 13:56
Het bureau POLO heeft een voorontwerp voor een nieuw gemeentelijk dienstencentrum van de gemeente Beerse gemaakt. Het project kwam, in opdracht van de gemeente, tot stand in samenwerking met ontwikkelaar en bouwer Groep Van Roey.
PosadMaxwan en Civic Architects maken plan voor herontwikkeling KMS-terrein Hengelo
Gisteren, 12:16
De gemeente heeft de grond deze zomer aangekocht en gaat in samenwerking met ontwikkelaar Trebbe het historische industriegebied herontwikkelen.
Nieuw shortstayhotel door Houben / Van Mierlo in stationsgebied Den Bosch
13 oktober, 1:47
Het shortstayhotel met 34 studio’s is gebouwd op de plek van het gesloopte Hotel Terminus. De voorgevel is ontworpen op basis van een analyse van de voorgevel van het oude hotel.
Pararius: huurmarkt zit op slot, huren stijgen verder
1 uur geleden
De vrije sector huurmarkt zit nog altijd ‘compleet op slot’, meldt woningplatform Pararius op basis van cijfers over het derde kwartaal.
PBL: Ook nieuw plan voor circulaire economie is niet genoeg
Gisteren, 14:42
In de nieuwe versie van het zogeheten Nationaal Programma Circulaire Economie staan ‘vooral veel intenties en plannen’, schrijft het planbureau.
Bossen en bodems in zwaar weer, klimaatraad maakt zich zorgen
Gisteren, 10:24
De klimaatverandering versnelt en de biodiversiteit gaat hard achteruit, terwijl er volgens de WKR steeds meer van de bossen en bodems wordt gevraagd.
'Helft investeerders spendeert opbrengsten verkochte huurhuizen in buitenland'
13 oktober, 2:41
Bijna de helft van de vastgoedinvesteerders die in Nederland huurwoningen van de hand doen, investeert de opbrengsten liever in het buitenland.
Duitsland slokt Nederlandse bouwkracht op
13 oktober, 11:16
De Duitse plannen voor honderden miljarden aan bouwinvesteringen zetten Nederland klem, waarschuwt ABN AMRO.
Renovatie en vernieuwing Fierenshoven beloond met Vlaamse opdrachtgeversprijs
10 oktober, 3:27
Het project naar ontwerp van Happel Cornelisse Verhoeven in samenwerking met Molenaar & Co architecten ontving de Prijs Wivina Demeester 2025.
Ga naar het nieuws-archief
Robert Muis
Redacteur
1
0
0
0
Voor een optimale gebruikservaring plaatst Architectenweb functionele cookies. Wat de verschillende cookies precies doen leggen we uit in een
overzicht
. Cookies van social media kun je optioneel
aanzetten
.
Akkoord
Instellingen
Annuleren
OK
Sluiten
Doorgaan
Inloggen
Maak een gratis persoonlijk account aan
Feedback
Feedback
Wij horen graag jouw feedback. Laat je reactie achter en eventueel jouw e-mail adres.
Reactie
Verstuur