Projecten
Producten
Bedrijven
Vacatures
Agenda
Awards
Podcasts
more_horiz
Videos
Magazine
Thema's
Favorieten
Profiel
Uitloggen
Nieuw
Populair
Toon alles
Architectenweb magazine #14
Architectenweb magazine #13
Publieke gebouwen
Architectenweb magazine #12
Kantoren
Architectenweb magazine #11
Scholen
Architectenweb magazine #10
Zorg
Architectenweb magazine #14
Architectenweb magazine #10
Zorg
Architectenweb magazine #12
Kantoren
Architectenweb magazine #13
Publieke gebouwen
Architectenweb magazine #6
Transformatie en Renovatie
Om direct naar je favorieten te kunnen gaan is het nodig om eerst in te loggen.
Nieuw
Architectenweb Awards 2025
Architectenweb Awards 2024
Architectenweb Awards 2023
Architectenweb Awards 2022
Architectenweb Awards 2021
Architectenweb Awards 2020
Architectenweb Awards 2019
Architectenweb Awards 2018
Om direct naar je favorieten te kunnen gaan is het nodig om eerst in te loggen.
Nieuw
Populair
Favorieten
Toon alles
Vakwerk Architecten
Nominatie voor de prijs voor Architect van het Jaar 2025
Sanne van Manen
Nominatie voor de prijs voor Architect van het Jaar 2025
KSA
Nominatie voor de prijs voor Architect van het Jaar 2025
KRFT
Nominatie voor de prijs voor Architect van het Jaar 2025
Joost Ector
Nominatie voor de prijs voor Architect van het Jaar 2025
Prijsuitreiking Architectenweb Awards 2024
Impressie van een feestelijke avond
Martens, Willems & Humblé Architecten
Nominatie voor de prijs voor Architect van het Jaar 2024
Uitreiking van Architectenweb Awards 2020
Impressie van de prijsuitreiking via Zoom
De Zwarte Hond
Nominatie voor de prijs voor Architect van het Jaar 2024
Avond met De Zwarte Hond
Symposium
Om direct naar je favorieten te kunnen gaan is het nodig om eerst in te loggen.
Nieuw
Populair
Categorieën
Favorieten
Toon alles
Brandpreventie Academy BV
Cay Circulaire Keukens
Circulaire keukens en pantry's
Studio Kirsten Reith
Interieurontwerp
Studio175
Interieuradvies in regio Utrecht
Orange Automatic Doors
Indoorwrap
De specialist in Keukenwrappen
Brandpreventie Academy BV
Interior & Co
Studio175
Interieuradvies in regio Utrecht
Cay Circulaire Keukens
Circulaire keukens en pantry's
Studio Kirsten Reith
Interieurontwerp
Indoorwrap
De specialist in Keukenwrappen
Architecten
Architectuur
Mobiliteit en infrastructuur
Stedenbouw en landschapsarchitectuur
Leveranciers
Gevels
Daken
Ramen en deuren
Trappen, liften en balustrades
Binnenwanden
Vloeren
Plafonds
Verlichting
Sanitair
Projectinrichting
Installaties
Constructies
Buitenruimte
Software
Adviseurs
Bestekschrijvers
Bouwmanagement
Installatie adviseurs E
Bouwfysica
Calculators
Installatie adviseurs G/W
Bouwkundig tekenwerk
Constructeurs
Lichtadviseurs
Adviseur beveiliging
Juristen
Intermediairs, Payrolling
Aannemers
Overig
Presentatie
Instellingen / onderwijs
Overig
Om direct naar je favorieten te kunnen gaan is het nodig om eerst in te loggen.
Nieuw
Populair
Favorieten
Toon alles
Gesprek met Stephan Sliepenbeek over hoogbouw in Amstel III
Gesprek met Ellen van Bueren over gebiedsontwikkeling en hoogbouw
Gesprek met Ma Yansong over ontwerpen die emotie oproepen
Gesprek met Paul de Ruiter over innovatieve en duurzame hoogbouw
Gesprek met Pi de Bruijn over zijn ontwerpen voor de Tweede Kamer toen en nu
Gesprek met Ellen van Bueren over gebiedsontwikkeling en hoogbouw
Gesprek met Oresti Sarafopoulos over het ontwerpen van een kantoorgebouw met bijna geen installaties
Gesprek met Stijn Steenbakkers over verdichting en hoogbouw in Eindhoven
Gesprek met Pi de Bruijn over zijn ontwerpen voor de Tweede Kamer toen en nu
Gesprek met Paul de Ruiter over innovatieve en duurzame hoogbouw
Om direct naar je favorieten te kunnen gaan is het nodig om eerst in te loggen.
Nieuw
Populair
Categorieën
Favorieten
Toon alles
Celsius
Duurzaam woonproject met veertien Gorter-dakluiken
Gorter voorziet Terrazza van veilige daktoegang
Industrieplein Hengelo
De energiemarkt revolutionair vernieuwen
Boekweitkamp, Den Haag
Exclusieve wooneenheden
Kantoorinterieur: van Rest tot Ruimte
De Grote Zwaan, Nijmegen
ASML Gebouw 3
Architectuur
Woningbouw
Zorg
Hotels
Restaurants en café’s
Winkels
Sportgebouwen
Culturele gebouwen
Overheidsgebouwen
Scholen
Kantoren
Bedrijfsgebouwen
Paviljoens en kunst
Overig
Mobiliteit en infrastructuur
Trein- en metrostations
Luchthavens
Busstations
Parkeergarages
Fietsparkeren
Wegen
Bruggen
Water
Energie
Tankstations en laadstations
Waterzuivering en afvalverwerking
Overig
Stedenbouw en landschapsarchitectuur
Regionale visies
Gebiedsvisies
Plannen stedelijk weefsel
Amusementsparken en dierentuinen
Lichtontwerpen
Openbare ruimte
Pleinen
Parken
Tuinen
Speelplaatsen
Uitkijktorens
Overige (bijv. begraafplaatsen)
Om direct naar je favorieten te kunnen gaan is het nodig om eerst in te loggen.
Nieuw
Populair
Categorieën
Favorieten
Toon alles
objectflor rubbervloeren nu Cradle to Cradle gecertificeerd
SaarFloor zijn bekroond met Cradle to Cradle certificaten
Collaro badkamercollectie
Karakter ontmoet stijlvol design
Core
Maximale geluidsisolatie en absorptie
Roval-KraaltrimPLUS
Klassiek profiel, functionele verlenging
Nieuw: CemSkin
Innovatieve cementcoating verlengt levensduur betonvloeren
Akoestisch kussen.
Ervaar de ultime natuurlijke oplossing voor akoestiek problemen.
StoTherm Wood: cementvrij gevelsysteem met houtvezelisolatie
Biobased gevelisolatie met natuurlijke prestaties
Digital Prints
Meer mogelijkheden in gekleurd staal
Lumiglaze – Het vlakglas van VELUX Commercial
Een nieuw tijdperk in daglichtontwerp – minimalistisch, functioneel en klaar voor de toekomst.
Veelzijdig straatmeubilair
Van openbare ruimte naar (be)leefomgeving
Gevels
Gevelbekleding
Vliesgevels
Zonwering buiten
Isolatie
Gevelconstructies
Signing
Overig
Daken
Dakafwerkingen
Dakisolatie
Dakconstructies
Dakranden, dakgoten en HWA's
Dakramen
Lichtkoepels
Lichtstraten
Schoorstenen
Overig
Dakluiken
Ramen en deuren
Raam- en deursystemen / kozijnen
Vliesgevels
Hang- en sluitwerk
Beveiliging en luiken
Dorpels en vensterbanken
Lateien
Roosters
Glas
Dakramen
Dakkoepels
Lichtstraten
Zonwering buiten
Zonwering binnen
Buitendeuren
Binnendeuren
Postvakken en brievenbussen
Overig
Dakluiken
Trappen, liften en balustrades
Trappen
Roltrappen
Liften
Balustrades en hekwerken
Galerijen
Binnenwanden
Binnenwanden
Wandafwerking
Vloeren
Constructieve vloeren
Verhoogde vloeren
Vloerafwerkingen
Overig
Plafonds
Tegels
Lineair
Grill
Open en roosters
Naadloos
Eilanden en baffles
Plafondafwerkingen
Ophangsystemen
Overig
Klimaatplafonds
Verlichting
Binnenverlichting
Buitenverlichting
Sanitair
Kranen en douchesets
Wastafels
Douchewanden en douchebakken
Baden
Waterclosets
Accessoires
Overig
Projectinrichting
Stoelen
Banken
Tafels
Kasten
Balies
Vrijstaande wanden
Keukens
Accessoires
Overig
Cabines
Interieurbeplanting
Stoffering
Installaties
Verwarming, koeling en ventilatie
Elektrotechnische installaties
Schakelmateriaal
Domotica
Deurcommunicatie
Beveiliging
Liften
Onderhoudsinstallaties
Overig
Brandbeveiliging
Constructies
Draagconstructies
Funderingen en kelders
Overig
Brandbeveiliging
Buitenruimte
Bestratingen en verhardingen
Afwateringen
Terreinafscheidingen en geluidsschermen
Buitenmeubilair
Fietsparkeren
Terrassen
Terrasoverkappingen
Bruggen
Accessoires
Overig
Beplanting
Sport- en speeltoestellen
Software
Tekenen 2D
Modelleren 3D / BIM
Visualisatie / rendering
Parametrisch ontwerpen
Bouwfysica
Draagconstructie
Overig
Virtual Reality
Cloudoplossingen
Om direct naar je favorieten te kunnen gaan is het nodig om eerst in te loggen.
Nieuw
Populair
Favorieten
Toon alles
Prefab beurs - 7 t/m 9 oktober 2025
Brabanthallen 's-Hertogenbosch
Boekpresentatie en panelgesprek met Floor Milikowsky
Prins Hendrikkade 600, 1011 VX Amsterdam
Architects Table ’25: Lunch & Inspiratie in HAUT Amsterdam
ATAG LIVE – HAUT gebouw, Spaklerweg 10F, 1096 BA Amsterdam (tegenover metrostation Spaklerweg)
Inspiratiedag @ Sempergreen – Gevelgroen
Defensieweg 1, 3984 LR Odijk
Architectenweb symposium: klein maar fijn wonen?
Pakhuis de Zwijger
Ontdek het seminarieprogramma van Architect@Work Amsterdam
De Kromhouthal, Gedempt Hamerkanaal 231, Amsterdam
Architects Table ’25: Lunch & Inspiratie in HAUT Amsterdam
ATAG LIVE – HAUT gebouw, Spaklerweg 10F, 1096 BA Amsterdam (tegenover metrostation Spaklerweg)
Boekpresentatie en panelgesprek met Floor Milikowsky
Prins Hendrikkade 600, 1011 VX Amsterdam
InterSolution 2026, dé netwerk- en vakbeurs voor zonne-energie
Flanders Expo (Hal 8) Maaltekouter 1 B - 9051 Gent / België
LIAG over duurzaamheid centraal in project
Online
Om direct naar je favorieten te kunnen gaan is het nodig om eerst in te loggen.
Nieuw
Toon alles
Design
Duurzaamheid
Gevel
Infrastructuur
Interieur
Kantoren
Leisure
Openbare ruimte
Publieke gebouwen
Scholen
Transformatie en Renovatie
Woningbouw
Zorg
Om direct naar je favorieten te kunnen gaan is het nodig om eerst in te loggen.
Nieuw
Populair
Toon alles
Junior Architect (NL/EN)
De Academie van Bouwkunst Amsterdam zoekt twee onderzoekers voor lectoraat
Site Practice zoekt medior architect met 3-6 jaar ervaring (Amsterdam)
DAT zoekt een BIM Modelleur (Revit)
stagiair bouwkunde Heerenveen
Meewerkend Voorman
Architect
Studio Nauta zoekt projectleider
Junior Architect (NL/EN)
Junior Ontwerper
Junior Architect gezocht!
De Academie van Bouwkunst Amsterdam zoekt twee onderzoekers voor lectoraat
Om direct naar je favorieten te kunnen gaan is het nodig om eerst in te loggen.
Copyright: Ronald Tilleman
Het gebouw in 2017
Copyright: SchilderScholte architecture
Copyright: Ronald Tilleman
Copyright: Ronald Tilleman
Copyright: Ronald Tilleman
Copyright: Ronald Tilleman
Copyright: Ronald Tilleman
Copyright: Ronald Tilleman
Copyright: Ronald Tilleman
Copyright: Ronald Tilleman
Copyright: Ronald Tilleman
Copyright: Ronald Tilleman
Copyright: Ronald Tilleman
Copyright: Ronald Tilleman
Copyright: Ronald Tilleman
Copyright: Ronald Tilleman
Copyright: Ronald Tilleman
Copyright: Ronald Tilleman
Copyright: Ronald Tilleman
Copyright: Ronald Tilleman
Copyright: SchilderScholte architecture
Copyright: SchilderScholte architecture
Copyright: SchilderScholte architecture
Copyright: SchilderScholte architecture
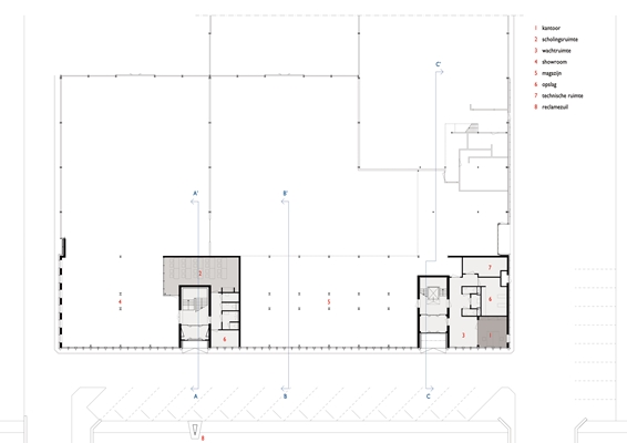
Begane grond
Copyright: SchilderScholte architecture
Eerste verdieping
Copyright: SchilderScholte architecture
Tweede verdieping
Copyright: SchilderScholte architecture
Nieuwe verschijning voor kantoorpand machineverhuurder
6 februari 2020, 13:19
Het bijna vijftig jaar oude hoofdkantoor van machineverhuurbedrijf Van der Spek in Vianen heeft een flinke gedaantewisseling ondergaan. Het pand is voorzien van een expressieve nieuwe gevel en ook het interieur is volledig vernieuwd. De hoofddraagconstructie, fundering en het dak van het oude gebouw zijn behouden gebleven bij de verbouwing, meldt
SchilderScholte architecture
.
Het kantoorpand uit het begin van de jaren zeventig was aan het einde van zijn levensduur en vertoonde allerlei bouwfysische gebreken, laat het Rotterdamse architectenbureau weten. De stalen draagconstructie was echter nog piekfijn in orde, waarop werd besloten deze net als de fundering, vloeren en het dak niet te slopen.
Bij de verbouwing is optimaal gebruik gemaakt van de flexibiliteit die de constructie biedt en als ‘hommage’ zijn in de showroom de stalen kolommen, liggers en vloeren bewust zichtbaar gelaten. Verder zijn herbruikbare bouwmaterialen uit de gevels en het interieur circulair gesloopt, zodat die een tweede leven konden krijgen.
Silhouet van een torenkraan
Van der Spek verhuurt en verkoopt betonpompen en machines voor onder meer grondverzet, hoog- en wegenbouw. Het nieuwe gevelontwerp is geïnspireerd op deze werkvelden; het silhouet van een torenkraan is geabstraheerd terug te vinden in het gebouw. De kroonlijst vormt daarbij de giek, het hoofdtrappenhuis de mast en de splitlevelruimtes boven de service-entree de last.
Behalve dat er diverse onderdelen van het bestaande gebouw zijn hergebruikt, is er bij de nieuwe elementen gekozen voor remontabel bouwen. Zo zijn de nieuwe buitenwanden opgebouwd uit prefab houtskeletbouwelementen met daarop mechanisch gemonteerde gevelpanelen en kozijnen van gerecycled aluminium.
Aan de straatzijde is een vliesgevel met verdiepingshoge ramen gerealiseerd. De taps toelopende aluminium lamellen zijn zo vormgegeven dat ze gedurende het hele jaar directe inval van zonlicht in de kantoorruimtes tegenhouden. Het ritme van de lamellen is op twee plaatsen onderbroken om de entrees duidelijk zichtbaar te maken vanaf de hoofdweg.
Voor de interieurafwerking zijn producten gebruikt waarin zoveel mogelijk gerecyclede en biobased materialen verwerkt zijn. De toegepaste materialen zijn zorgvuldig gedocumenteerd; hierdoor wordt het in de toekomst makkelijker om deze materialen opnieuw te gebruiken en blijft er minder afval over bij het slopen, verklaart SchilderScholte.
Open kantooromgeving
Het voormalige gangenkantoor is veranderd in een ruime en open kantooromgeving. Daarvoor is de verkeersruimte verlegd naar de achterzijde van het gebouw, gecombineerd met een vide en erboven een lichtstraat. Op die manier valt daglicht tot diep in het gebouw binnen en wordt luchtverplaatsing in het gebouw bevorderd met gebruik van zonnewarmte.
Om een gezonde en comfortabele werkomgeving te creëren, heeft het interieur een ruimtelijke en transparante indeling met een goede akoestiek. Verder wordt bewegen gestimuleerd, bijvoorbeeld door twee trappenhuizen centraal in het gebouw te positioneren en het bedieningspaneel voor onder meer de temperatuur juist op enige afstand van de werkplekken te plaatsen.
De vloercomposities zijn in overleg met de medewerkers tot stand gekomen. Dit heeft geleid tot een bonte schakering van kleuren op elke verdiepingsvloer, wat nog eens wordt versterkt doordat de binnenwanden en stoffering van het meubilair in corresponderende kleuren met de vloertegels zijn uitgevoerd. Ingebouwde kastenwanden nemen dankzij hun afwerking met zilverglans de kleur van de omgeving aan, met een rustig beeld als resultaat.
Het gebouw komt tegemoet aan de randvoorwaarden van de WELL Building Standard en beantwoordt aan de BENG-eisen voor utiliteitsbouw. Maatregelen die hiertoe bijdragen zijn zonnepanelen, een ‘witte’ dakbedekking met daarop plaatselijk een sedumdak, geluidsabsorptie en domotica die bijdraagt aan de energie-efficiëntie van het gebouw.
Trefwoorden
verbouwing
vianen
kantoorpand
renovatie
kantoorgebouw
schilderscholte architecten
schilderscholte architecture
Locatie
Best gelezen
1
Rapport: rijke Amsterdammers leven steeds vaker apart van rest
dinsdag, 30 september
2
Rijk schrijft aanbesteding uit voor nieuwe marinierskazerne
woensdag, 1 oktober
3
Architectenweb symposium: klein maar fijn wonen?
donderdag, 2 oktober
4
Leiden wil verhoogd busstation naast treinperrons centraal station
dinsdag, 30 september
5
Nominaties Interieur van het Jaar 2025 bekend
woensdag, 1 oktober
Gerelateerde nieuwsberichten
10 kantoorgebouwen met glazen gevels en grote overstekken
2 maart 2022
Winkelinterieur als tempel voor collectie
12 november 2015
Vier Nederlandse winnaars bij Duitse interieurprijzen
11 november 2015
Dutch Design Awards 2015 uitgereikt
26 oktober 2015
Canadese prijzen voor SchilderScholte
6 juli 2015
Skyline Rotterdam verwerkt in interieur kantoor
24 april 2015
AAArchitecten ontwerpt duurzaam hoofdkantoor Brabantia
17 september 2020
10 kantoorgebouwen met glazen gevels en grote overstekken
2 maart 2022
Winkelinterieur als tempel voor collectie
12 november 2015
Vier Nederlandse winnaars bij Duitse interieurprijzen
11 november 2015
Dutch Design Awards 2015 uitgereikt
26 oktober 2015
Canadese prijzen voor SchilderScholte
6 juli 2015
Skyline Rotterdam verwerkt in interieur kantoor
24 april 2015
AAArchitecten ontwerpt duurzaam hoofdkantoor Brabantia
17 september 2020
Toon alles
Andere nieuwsberichten
Winnaars Groninger Architectuurprijs 2025 bekendgemaakt
1 uur geleden
Zowel de vak- als publieksjury van de Groninger Architectuurprijs 2025 wees twee gedeelde winnaars aan, waarbij Dudok aan het Diep door de beide jury’s als winnaar werd gekozen.
Vakwerk Architecten – genomineerd voor prijs Architect van het Jaar 2025
3 uur geleden
Het ontwerp van ziekenhuizen weet Vakwerk Architecten volgens de jury tot nieuwe hoogtes te brengen. Met het ontwerp voor het psychiatrisch centrum in Groningen zet het bureau volgens de jury ook een nieuwe standaard in de psychiatrische zorg.
Plan Spot belooft Lelystad bruisend centrumgebied
3 oktober, 4:30
Heutink Groep, Groosman en LOLA Landscape Architects winnen tender stadshart met nieuw horecaplein.
Hoogste punt van woontoren Blaak 333 bereikt
3 oktober, 3:11
De door Kraaijvanger Architects ontworpen woontoren in het centrum van Rotterdam verrijst op de plek waar voorheen een kantoortoren van de Rabobank stond.
GL-PvdA wil komende tien jaar 36 miljard uitgeven aan woningbouw
2 uur geleden
Het grootste deel van het geld, 33 miljard euro, moet gaan naar publieke investeringen in de woningbouw.
Kamer wil dat Keijzer afziet van versoepelingen huurwet
3 oktober, 12:11
Sinds de huurwet - tegen de zin van Keijzer - van kracht werd, waarschuwen verhuurders dat daardoor het aanbod aan betaalbare huurwoningen afneemt.
Steden vrezen voor woningbouw door nieuwe regels netcongestie
2 oktober, 4:25
Amsterdam, Den Haag, Rotterdam en Utrecht vrezen dat de bouw van nieuwe woningen stil komt te liggen door netcongestie.
Dienst Toeslagen: plan voor wonen op vakantieparken onuitvoerbaar
2 oktober, 1:06
Het kabinetsplan om permanent wonen in vakantiehuisjes mogelijk te maken, is volgens de Dienst Toeslagen onuitvoerbaar.
Zuid-Holland wil in ‘oogstjaar’ 2026 plannen uitvoeren
1 oktober, 3:16
De provincie investeert onder meer in infrastructuur, woningbouw, natuur en versterking van kleine kernen.
Rijk schrijft aanbesteding uit voor nieuwe marinierskazerne
1 oktober, 2:27
Eind 2031 wil het Korps Mariniers vanuit zijn huidige kazerne in Doorn verhuizen naar een nieuw onderkomen op de bestaande Defensielocatie Kamp Nieuw-Milligen vlakbij Apeldoorn.
Ga naar het nieuws-archief
Ronnie Weessies
Redacteur
1
0
0
0
Voor een optimale gebruikservaring plaatst Architectenweb functionele cookies. Wat de verschillende cookies precies doen leggen we uit in een
overzicht
. Cookies van social media kun je optioneel
aanzetten
.
Akkoord
Instellingen
Annuleren
OK
Sluiten
Doorgaan
Inloggen
Maak een gratis persoonlijk account aan
Feedback
Feedback
Wij horen graag jouw feedback. Laat je reactie achter en eventueel jouw e-mail adres.
Reactie
Verstuur