Projecten
Producten
Bedrijven
Vacatures
Agenda
Awards
Podcasts
more_horiz
Videos
Magazine
Favorieten
Profiel
Uitloggen
Abonneer je nu op onze nieuwsbrieven!
Abonneren
Nee, bedankt
Ja, denk met me mee rond de
materialisering van mijn project
Copyright: Qupus Architectuur
Copyright: Qupus Architectuur
Copyright: Qupus Architectuur
Copyright: Qupus Architectuur
Copyright: Qupus Architectuur
Copyright: Qupus Architectuur
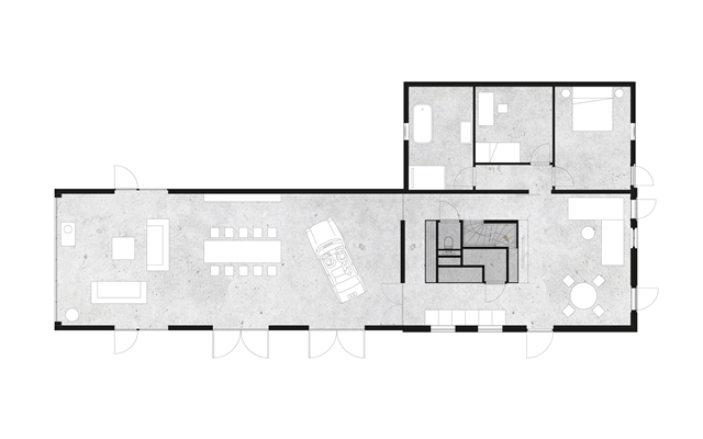
Plattegrond BG
Copyright: Qupus Architectuur
Copyright: Qupus Architectuur
Copyright: Qupus Architectuur
Copyright: Qupus Architectuur
Copyright: Qupus Architectuur
Copyright: Qupus Architectuur
Westgevel
Copyright: Qupus Architectuur
Oostgevel
Copyright: Qupus Architectuur
Voor- en achtergevel
Copyright: Qupus Architectuur
Copyright: Qupus Architectuur
Historische boerenschuur herrezen als woning
28 augustus 2018, 12:12
Qupus Architectuur
heeft een 19
e
-eeuwse boerenschuur bij Huize Snellenburg in Benschop herbouwd als eigentijdse woning. Het architectenbureau heeft de schuurwoning daarbij voorzien van een transparante pui aan de noordzijde, met ruim zicht over het polderlandschap.
De boerenschuur uit eind 19
e
eeuw kenmerkte zich volgens Qupus Architectuur door de ‘bescheiden en oprechte’ architectuur van het voorste en oudste deel. “Vol pragmatische keuzes en eigenaardige incidenten”, aldus de architecten.
Restaureren van het gebouw bleek te ingrijpend, zodat is gekozen voor herbouw. Daarbij heeft de originele schuur model gestaan voor het nieuwe ontwerp. Het achterste deel, aan de noordzijde, is vervangen door een eigentijdse interpretatie. In materialisatie heeft het bureau aansluiting gezocht bij de regionale context.
Lange zichtlijnen
Het voorste deel van de schuurwoning heeft een traditionele houten constructie, terwijl het achterste deel zich kenmerkt door een stalen spantconstructie. Het metselwerk van de tussenwand laat de scheiding tussen beide delen duidelijk zien.
Langs beide zijden in de woning is het zicht over de volledige lengte vrij gehouden. Op die manier heeft het architectenbureau de lange zichtlijnen van de omliggende polderverkaveling onderdeel van het interieur willen maken. De facilitaire functies en de trap naar de verdieping heeft het bureau geclusterd, zodat de woning verder ruim aanvoelt en flexibel in gebruik is.
Materialisatie
Aan de buitenzijde heeft Qupus Architectuur de gevel van het voorste deel exact ingedeeld als de oorspronkelijke schuur. Voor de bouw zijn oude stenen en gevelelementen hergebruikt.
Het achterste deel is afgewerkt met zinken dakbeplating en houten gevelbetimmering. De achtergevel is uitgevoerd als volledig transparante pui, met glasstroken tot bijna zes meter in de nok, aldus de architecten. Het geeft de bewoners een bijzonder uitzicht over het weidse polderlandschap.
Herontwikkeling
De herbouw van de (niet-monumentale) boerenschuur als schuurwoning is uitgevoerd voor een particuliere opdrachtgever. Het project is de eerste fase in de herontwikkeling van rijksmonument Huis Snellenburg.
Trefwoorden
herbouw
huize snellenburg
benschop
boerenschuur
woning
schuurwoning
qupus architectuur
Best gelezen
1
44 woningen op bosrijke locatie in Driebergen
vrijdag, 15 mei
2
AM en Amvest zoeken architecten voor herontwikkeling Draka-terrein
dinsdag, 19 mei
3
Woningbouwproject KAAP langs het IJ in Amsterdam voltooid
dinsdag, 19 mei
4
Dam & Partners ontwerpt multifunctioneel gebouw in Schinkelhaven
dinsdag, 19 mei
5
Renovatie station Leeuwarden door Movares afgerond
woensdag, 20 mei
Gerelateerde nieuwsberichten
Een schuur-studio bij een eigentijdse woonboerderij
14 augustus 2023
JURY! realiseert een hedendaagse dijkwoning in relatie met het landschap
17 juli 2024
Strakke schuurwoning in het open landschap
11 februari 2021
Woonhuis geïnspireerd op werkschuren uit omgeving
30 augustus 2019
Atelierschuur is eigentijdse vertaling van traditionele Twentse schuur
3 april 2019
Boerenerf krijgt nieuw leven met schuurwoningen en atelier
6 juli 2018
Schuur met traditie en oneffenheden van HilberinkBosch Architecten
17 mei 2018
Een winkel rond een overdekt erf
8 mei 2017
SeARCH presenteert verbouwde stolpboerderij
30 januari 2017
Winnaars ideeënprijsvraag Veemarkt bekend
2 maart 2012
Een schuur-studio bij een eigentijdse woonboerderij
14 augustus 2023
JURY! realiseert een hedendaagse dijkwoning in relatie met het landschap
17 juli 2024
Strakke schuurwoning in het open landschap
11 februari 2021
Woonhuis geïnspireerd op werkschuren uit omgeving
30 augustus 2019
Atelierschuur is eigentijdse vertaling van traditionele Twentse schuur
3 april 2019
Boerenerf krijgt nieuw leven met schuurwoningen en atelier
6 juli 2018
Schuur met traditie en oneffenheden van HilberinkBosch Architecten
17 mei 2018
Een winkel rond een overdekt erf
8 mei 2017
SeARCH presenteert verbouwde stolpboerderij
30 januari 2017
Winnaars ideeënprijsvraag Veemarkt bekend
2 maart 2012
Toon alles
Andere nieuwsberichten
Rotterdam Architectuur Maand maakt programma 2026-editie bekend
1 uur geleden
De organisatie van de RA Maand heeft het programma van het evenement bekendgemaakt. De Test Site Materialenwerf fungeert dit jeer als festvalhart van het evenement.
Utrechtse flats gerenoveerd volgens 'chassis-carrosseriemethode'
3 uur geleden
In de Utrechtse wijk Overvecht zijn in de flat Stroys de laatste 374 van in totaal 1800 woningen gerenoveerd. Vijf gebouwen werden onder handen genomen door DOOR architecten.
Interdisciplinair team met OMA en OKRA presenteert visie op evolutie van Rome
Gisteren, 16:32
De stedelijke visie Roma Continua bouwt voort op de essentie en sterke punten van de eeuwenoude stad.
Renovatie station Leeuwarden door Movares afgerond
Gisteren, 11:58
Eind vorig jaar is de vernieuwing van station Leeuwarden afgerond. Zowel de gevel als de vloer van het stationsgebouw als de eveneens monumentale perronkappen zijn gerenoveerd.
Museum Rotterdam ontvangt sleutels van Citykerk Het Steiger
1 uur geleden
Citykerk Het Steiger, een wederopbouwmonument in de Rotterdamse binnenstad, ondergaat in de komende jaren een transformatie naar onderkomen voor Museum Rotterdam, alsook naar woon- en kantoorruimte.
Naturalis: Nederlandse natuur verbetert, maar niet snel genoeg
2 uur geleden
Het gaat beter met de natuur in Nederland, maar niet snel genoeg om aan afspraken te voldoen.
Bouw van flexwoningen valt tegen, ziet Rekenkamer
Vandaag, 09:50
De 948 miljoen euro die sinds 2021 opzij is gezet om meer flexwoningen te bouwen, is pas deels uitgegeven.
Binnenhof al bij voorbaat te klein voor alle organisaties
Gisteren, 14:47
Nog voordat de verbouwing van het Binnenhof klaar is, is het complex te klein voor alle organisaties die erin moeten.
Inschrijving Stadsbouwprijs Amersfoort 2026 gestart
Gisteren, 13:29
Tot en met dinsdag 30 juni 18.00 uur kunnen projecten worden aangeleverd die in de afgelopen twee jaar binnen de gemeentegrenzen van de Keistad zijn gerealiseerd.
Drents stikstofplan om vergunningverlening vlot te trekken
Gisteren, 10:43
Drenthe denkt in het najaar van 2027 weer te kunnen beginnen met het verlenen van vergunningen voor zaken als woningbouw.
Ga naar het nieuws-archief
Robert Muis
Redacteur
6
0
0
0
Voor een optimale gebruikservaring plaatst Architectenweb functionele cookies. Wat de verschillende cookies precies doen leggen we uit in een
overzicht
. Cookies van social media kun je optioneel
aanzetten
.
Akkoord
Instellingen
Annuleren
OK
Sluiten
Doorgaan
Inloggen
Maak een gratis persoonlijk account aan
Feedback
Feedback
Wij horen graag jouw feedback. Laat je reactie achter en eventueel jouw e-mail adres.
Reactie
Verstuur