Projecten
Producten
Bedrijven
Vacatures
Agenda
Awards
Podcasts
more_horiz
Videos
Magazine
Favorieten
Profiel
Uitloggen
Abonneer je nu op onze nieuwsbrieven!
Abonneren
Nee, bedankt
Ja, denk met me mee rond de
materialisering van mijn project
Copyright: Christian van der Kooy
Copyright: Christian van der Kooy
Copyright: Christian van der Kooy
Copyright: Christian van der Kooy
Copyright: Christian van der Kooy
Copyright: Christian van der Kooy
Copyright: Christian van der Kooy
Copyright: Christian van der Kooy
Copyright: Christian van der Kooy
Copyright: Christian van der Kooy
Copyright: Christian van der Kooy
Copyright: Barcode Architects
Copyright: Barcode Architects
Villa X van Barcode Architects opgeleverd
15 september 2017, 12:22
Op een niet nader bekendgemaakte plek in de provincie Noord-Brabant heeft
Barcode Architects
Villa X opgeleverd. De villa is ontworpen als een eenvoudig, maar tegelijkertijd geraffineerd volume, dat als een massief in het groen staat. De leefruimte is centraal in het volume gesitueerd, ingeklemd tussen zwarte koppen en overdekt door een compact plat dak.
Door de gevels naar binnen te vouwen ontstaat een verrassende relatie tussen het interieur en de bosrijke omgeving, verklaart Barcode Architects. Het strakke volume bemiddelt tussen de voortuin met een monumentale beukenboom en de royale achtertuin. Aan de voorzijde, vanaf de straat loopt de tuin richting de voorgevel omhoog, wat de villa een statig en welhaast klassiek aanzien geeft.
Dankzij de openheid van de centrale leefruimte kan daglicht diep de woning binnendringen en hebben de bewoners uitzicht op de omgeving. Dankzij de subtiel gevouwen gevels ontstaat aan de voorzijde een ‘intermediair’ tussen de private en publieke ruimte en aan de achterkant een overdekt terras.
Belangrijke uitgangspunten voor de architectuur zijn eenvoud, hoogwaardig materiaalgebruik en een hedendaagse uitstraling. De gevels van de besloten gebouwdelen zijn uitgevoerd in antraciet beton dat robuust oogt maar zeer verfijnd gedetailleerd is. Beide zijgevels zijn gefabriceerd als één element, een twaalf ton wegende prefab betonwand van 11m x 3m.
Finesse
De materialen geven de villa een stoere uitstraling, terwijl het gladde en reflecterende oppervlak (dat is verkregen door het meerdere malen met de hand te polijsten) het project een verfijnde en luxueuze identiteit verleent. De finesse van het materiaal komt tot uitdrukking in het uitstulpende raam van de gastenkamer, dat met een elastische speelsheid van binnen naar buiten lijkt te zijn gedrukt.
Op de hoeken komen de zware gevelplaten, de daklijst en de terrasvloer samen in een scherpe hoeknaad, waarmee de strakke geometrie van het gebouw wordt benadrukt.
De masculiene en donkere uitstraling aan de buitenzijde contrasteert met de heldere leefruimte binnen, met zijn witte gietvloer, plafond en wanden. De privégedeeltes van het interieur kennen een intieme sfeer, met kamers die elk een eigen identiteit hebben; van de surrealistische toiletruimte tot de ‘zonnige’ gele gastenbadkamer.
Interieurelementen
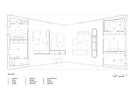
Door de verdiepingshoge glasgevel aan voor- en achterzijde is er vanuit de leefruimte een open verbinding met de voor- en achtertuin. Twee volledig op maat gemaakte interieurelementen verdelen de ruimte in geborgen zones voor de entree, woonkamer, eetkamer en keuken.
Het schijfvormige element in de woonkamer is bekleed met donker gebeitst bamboe, wat een relatie legt met de oude beukenboom in de voortuin. Het object verbergt alle gebouwinstallaties en biedt ruimte aan een open haard, de TV en een boekenkast. Alsof het de villa vastpint in het landschap, zo steekt het volume door het dak heen.
Het tweede interieurelement, in een T-vorm, scheidt de entree, de eetkamer en de donkere eiken keuken van elkaar. De twee houten elementen brengen warmte in het interieur en creëren een prettige, intieme schaal in de lichte leefruimte.
Trefwoorden
barcode architects
villa
Best gelezen
1
44 woningen op bosrijke locatie in Driebergen
vrijdag, 15 mei
2
Parkeerplein naast Tilburgse schouwburg maakt plaats voor multifunctionele gebouwen
woensdag, 13 mei
3
'Zwevend huis' naar ontwerp van Benthem Crouwel in Amersfoortse wijk
woensdag, 13 mei
4
Schoonhovens College van Geurst & Schulze architecten stimuleert vakmanschap, ontmoeting en leerprestaties
dinsdag, 12 mei
5
Zijn tenders in Duitsland beter geregeld dan in Nederland?
dinsdag, 12 mei
Gerelateerde nieuwsberichten
Nudus, Van Aken en Felixx tekenen ‘fabriek van de toekomst’ in Eindhoven
11 november 2022
Barcode Architects: ‘Van Rotterdam een wandelstad maken’
3 september 2020
Metamorfose voor jaren 60-bungalow
26 november 2018
Barcode Architects wint herontwikkelingsproject in Arnhem
1 oktober 2018
Minimalistische villa met een dak van turf
16 oktober 2017
Open en 'warme' villa in duinlandschap
25 september 2017
Barcode Architects wint prijsvraag voor herontwikkeling Ferdinandplatz in Dresden
25 augustus 2017
Barcode transformeert modernistisch postkantoor in Enschede tot bioscoop
21 juli 2017
Barcode ontwerpt ook woontoren naast The Muse
8 juni 2017
BIG en Barcode winnen tender Sluishuis
28 november 2016
Multifunctioneel gebouw Barcode in Bordeaux klaar
19 januari 2016
Barcode ontwerpt ensemble Spoorzone Delft
23 maart 2015
ABT en BARCODE ontwerpen ESL Utrecht
1 december 2014
Barcode finalist voor nieuw VN-kantoor in Bonn
17 september 2013
Barcode verzorgt herinrichting CZ-kantoor
21 februari 2013
Succes Barcode Architects in Lausanne
23 februari 2011
Nudus, Van Aken en Felixx tekenen ‘fabriek van de toekomst’ in Eindhoven
11 november 2022
Barcode Architects: ‘Van Rotterdam een wandelstad maken’
3 september 2020
Metamorfose voor jaren 60-bungalow
26 november 2018
Barcode Architects wint herontwikkelingsproject in Arnhem
1 oktober 2018
Minimalistische villa met een dak van turf
16 oktober 2017
Open en 'warme' villa in duinlandschap
25 september 2017
Barcode Architects wint prijsvraag voor herontwikkeling Ferdinandplatz in Dresden
25 augustus 2017
Barcode transformeert modernistisch postkantoor in Enschede tot bioscoop
21 juli 2017
Barcode ontwerpt ook woontoren naast The Muse
8 juni 2017
BIG en Barcode winnen tender Sluishuis
28 november 2016
Multifunctioneel gebouw Barcode in Bordeaux klaar
19 januari 2016
Barcode ontwerpt ensemble Spoorzone Delft
23 maart 2015
ABT en BARCODE ontwerpen ESL Utrecht
1 december 2014
Barcode finalist voor nieuw VN-kantoor in Bonn
17 september 2013
Barcode verzorgt herinrichting CZ-kantoor
21 februari 2013
Succes Barcode Architects in Lausanne
23 februari 2011
Toon alles
Andere nieuwsberichten
KAAN Architecten en TU Delft presenteren boek Building Narratives
1 uur geleden
Hoe kunnen verhalen het ontwerp kunnen sturen en vormgeven, in plaats van slechts als vertelmiddel te dienen? Die vraag staat centraal in het boek 'Building Narratives. Instances from the Architecture of Dialogue'.
Amsterdam start selectie voor circulair en gestapeld bedrijfsgebouw langs A5
4 uur geleden
De gemeente Amsterdam is een selectieprocedure gestart voor de bouw van een gestapeld en circulair bedrijfsgebouw in Sloterijk Poort Noord.
Noordbrabants Museum zoekt jonge architect voor herinrichting vaste collectiepresentatie
Vandaag, 10:41
Het Noordbrabants Museum in Den Bosch zoekt een jonge architect voor de herinrichting van diens vaste collectiepresentatie. Daartoe heeft het museum een open call uitgeschreven.
Stuur nu jullie project in voor de prijs voor Kantoorgebouw van het Jaar 2026
Vandaag, 09:00
Hebben jullie een kantoorgebouw in Nederland ontworpen dat in de periode van 1 september 2025 tot en met 31 augustus 2026 opgeleverd of voltooid is? Stuur dat dan nu in voor de Architectenweb Awards 2026! Deadline is 19 juni 2026.
Eneco pleit voor voldoende marktwerking in de energietransitie
49 minuten geleden
Aanleiding voor de oproep van het energiebedrijf is de steeds grotere rol van de overheid in de productie van energie.
Nationaal Park Utrechtse Heuvelrug wordt twee keer zo groot
3 uur geleden
Minister Van Essen heeft besloten om na het zuidelijke deel ook het noorden van het gebied de officiële status van Nationaal Park te geven.
BPD en Rabobank stimuleren biobased woningbouw en drinkwaterbesparing
4 uur geleden
BPD en Rabobank kondigen de bouwstart aan van 160 nieuwbouwwoningen met biobased materialen en drinkwaterbesparende technieken.
ITA Ensemble speelt 'De Architect' van sterregisseur Rebecca Frecknall
15 mei, 3:11
De voorstelling is een hedendaagse bewerking van Henirik Ibsens 'Bouwmeester Solness'.
Commissie: milieustudie Schiphol schiet tekort voor omwonenden
15 mei, 12:08
De Commissie voor de milieueffectrapportage stelt zelfs dat het rapport herzien zou moeten worden.
Koen Pörtzgen benoemd tot partner bij Zecc Architecten
15 mei, 10:15
Samen met Marnix van der Meer (54) en Bart Kellerhuis (47) vormt de 39-jarige Pörtzgen vanaf dit jaar de directie van het Utrechtse bureau.
Ga naar het nieuws-archief
Ronnie Weessies
Redacteur
0
0
0
0
Voor een optimale gebruikservaring plaatst Architectenweb functionele cookies. Wat de verschillende cookies precies doen leggen we uit in een
overzicht
. Cookies van social media kun je optioneel
aanzetten
.
Akkoord
Instellingen
Annuleren
OK
Sluiten
Doorgaan
Inloggen
Maak een gratis persoonlijk account aan
Feedback
Feedback
Wij horen graag jouw feedback. Laat je reactie achter en eventueel jouw e-mail adres.
Reactie
Verstuur