Projecten
Producten
Bedrijven
Vacatures
Agenda
Awards
Podcasts
more_horiz
Videos
Magazine
Thema's
Favorieten
Profiel
Uitloggen
Copyright: Barcode Architects
Copyright: Barcode Architects
Copyright: Barcode Architects
Copyright: Barcode Architects
Copyright: Barcode Architects
Copyright: Barcode Architects
Copyright: Barcode Architects
Copyright: Barcode Architects
Barcode verzorgt herinrichting CZ-kantoor
21 februari 2013, 10:29
De zorgverzekeraar CZ heeft
Barcode Architects
gevraagd het hoofdkantoor in Tilburg te herinrichten. Het Rotterdamse architectenbureau heeft de eerste fase van het project afgerond.
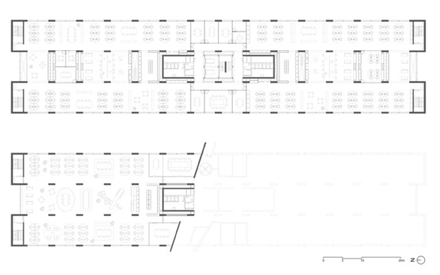
CZ wil de werkomgeving in het Tilburgse kantoor aanpassen aan het Nieuwe Werken. De opgave was om verschillende zones en flexibele werplekken toe te passen. Daarmee moest er een efficiëntere indeling van de werkvloer en meer gelegenheid tot communicatie worden bereikt. De ruim 100 meter lange en 23 meter brede plattegrond is door Barcode in drie zones verdeeld. Centraal ligt een gebied voor ontmoetingen en besprekingen; aan weerszijden zijn open werkplekken en concentratiezones gerealiseerd.
Materialisering
Voor de materialisering is het architectenbureau uitgegaan van “zowel het collectief als het unieke van de individuele ruimtes”, aldus Barcode. De indeling in drie zones wordt benadrukt door een nieuw verlaagd plafond, terwijl de vloerbedekking zorgt voor verbinding. Tevens accentueert de vloerbekleding met contrasterende kleuren de afzonderlijke ruimtes van vergadering en ontmoeting. De meubilering is afgestemd op het gebruik in de verschillende zones en sferen binnen de ruimte. Barcode heeft met de inrichting ook wat speelse elementen toegevoegd. Een voorbeeld daarvan is de wijze waarop de geperforeerde akoestische wanden zijn gebruikt als achtergrond. Het belang van onderlinge communicatie wordt uitgedrukt met een ‘oversized’ bartafel.
Speciaal ontwerp
Voor deze opdracht heeft Barcode ook een speciaal zitmeubel ontworpen. Het kruisvormige meubel is vervaardigd uit schuimmateriaal en is flexibel. Met het gemakkelijk te verplaatsen meubel heeft het architectenbureau nog een verbindend element op de werkvloer willen toevoegen.
Trefwoorden
kantoor
herinrichting
meubel
interieur
nieuwe werken
barcode architects
Best gelezen
1
Den Bosch 'pauzeert' aanbesteding voor ontwerp gebiedsontwikkeling Citadelpoort
maandag, 17 november
2
Expositie in Kunsthal belicht eerdere toeristische periode Rotterdam
dinsdag, 18 november
3
Het streven naar nieuw is ouderwets
donderdag, 20 november
4
Zelfsluitende Vlotterkering in Steyl vormt tevens 'balkon aan de Maas'
dinsdag, 18 november
5
Kleurrijk atrium vormt hart van nieuw internationaal hoofdkantoor NXP
maandag, 17 november
Gerelateerde nieuwsberichten
Villa X van Barcode Architects opgeleverd
15 september 2017
Multifunctioneel gebouw Barcode in Bordeaux klaar
19 januari 2016
Barcode Architects wint prijsvraag voor herontwikkeling Ferdinandplatz in Dresden
25 augustus 2017
Barcode transformeert modernistisch postkantoor in Enschede tot bioscoop
21 juli 2017
Barcode finalist voor nieuw VN-kantoor in Bonn
17 september 2013
NAi wint Biënnale-prijs Shenzhen
21 februari 2012
Puntig kantoorgebouw voor Bordeaux
23 mei 2012
Barcode Architects: ‘Van Rotterdam een wandelstad maken’
3 september 2020
Villa X van Barcode Architects opgeleverd
15 september 2017
Multifunctioneel gebouw Barcode in Bordeaux klaar
19 januari 2016
Barcode Architects wint prijsvraag voor herontwikkeling Ferdinandplatz in Dresden
25 augustus 2017
Barcode transformeert modernistisch postkantoor in Enschede tot bioscoop
21 juli 2017
Barcode finalist voor nieuw VN-kantoor in Bonn
17 september 2013
NAi wint Biënnale-prijs Shenzhen
21 februari 2012
Puntig kantoorgebouw voor Bordeaux
23 mei 2012
Barcode Architects: ‘Van Rotterdam een wandelstad maken’
3 september 2020
Toon alles
Andere nieuwsberichten
Studio for New Realities brengt binnenspel Plaswijckpark onder gevouwen dak
21 november, 2:00
Het Plaswijckpark in het noorden van Rotterdam biedt voor kinderen allerlei mogelijkheden om buiten te spelen. Voor dagen met minder goed weer is er nu een tweede paviljoen gerealiseerd met mogelijkheden om binnen te spelen.
Space&Matter ontwerpt ingetogen houten paviljoen voor BSO in Zeist
21 november, 9:30
Aan de rand van het dorpscentrum van Zeist, in een door woningen omzoomd binnengebied, ontwerpt Space&Matter een nieuwe buitenschoolse opvang (BSO) en gymzaal.
MoederscheimMoonen Architects benoemt vijf associates
21 november, 9:00
Om de basis van het groeiende bureau richting de toekomst te versterken heeft het nu vijf associates benoemd: Aldo Trim, Boy Hoffs, Maarten de Roij, Mike Pennings en Romano van den Dool.
ECHO Urban Design en RoosRos Architecten winnen tender Machinewerf Vlissingen
20 november, 4:30
ECHO Urban Design en RoosRos Architecten zijn samen met partners Leyten, Fullhouse, depart en Steenvlinder door de gemeente Vlissingen geselecteerd als winnende partner voor de ontwikkeling van locatie de Machinewerf in het Scheldekwartier.
Vervoersregio's Rotterdam, Den Haag en Amsterdam willen miljard extra voor OV
21 november, 11:29
Volgens burgemeester Jan van Zanen van Den Haag is 500 miljoen euro extra nodig "om niet achteruit te gaan door indexering en bezuinigingen". En nog eens 500 miljoen euro is nodig "om het OV mee te laten groeien met het aantal inwoners.
Mogelijke proef zelfrijdende pendelbussen tussen station Hoofddorp en Schiphol Trade Park
20 november, 2:15
De provincie Noord-Holland onderzoekt of het zelfrijdende pendelbussen zonder chauffeur kan laten rijden in de buurt van Schiphol. Als dit qua veiligheid en techniek haalbaar is, wil de provincie in 2027 een proef starten.
Fietsflat bij Amsterdam Centraal wordt na 25 jaar gesloopt
20 november, 1:45
Voor de door VMX Architects ontworpen fietsenstalling is geen nieuwe plek gevonden. Daarom wordt de 'fietsflat' nu gesloopt.
Maastricht grootste stijger op lijst van beste steden om te wonen
20 november, 1:15
Op de ranglijst van de Atlas voor Gemeenten steeg Maastricht de afgelopen tien jaar van de 40e naar de 34e plek. Amsterdam staat stevig op de 1e plek van de lijst.
Minder infraprojecten gaan door na bezuinigingen Prinsjesdag
20 november, 10:40
Minder infrastructuurprojecten kunnen doorgaan door bezuinigingen die met Prinsjesdag zijn doorgevoerd. Dat staat in antwoorden op Kamervragen over de begroting van het Mobiliteitsfonds.
Om malafide grondspeculatie tegen te gaan, overweegt het kabinet een bedenktijd voor kopers van grond
20 november, 9:00
Grondhandelaren splitsen landbouwgrond vaker op in kleine stukjes en verkopen die dan door aan particulieren. De kopers kunnen dan ten onrechte denken dat de gemeente op de grond wil bouwen, terwijl dat niet zo is.
Ga naar het nieuws-archief
0
0
0
0
Voor een optimale gebruikservaring plaatst Architectenweb functionele cookies. Wat de verschillende cookies precies doen leggen we uit in een
overzicht
. Cookies van social media kun je optioneel
aanzetten
.
Akkoord
Instellingen
Annuleren
OK
Sluiten
Doorgaan
Inloggen
Maak een gratis persoonlijk account aan
Feedback
Feedback
Wij horen graag jouw feedback. Laat je reactie achter en eventueel jouw e-mail adres.
Reactie
Verstuur