Projecten
Producten
Bedrijven
Vacatures
Agenda
Awards
Podcasts
more_horiz
Videos
Magazine
Thema's
Favorieten
Profiel
Uitloggen
Copyright: Christiane Wirth
Copyright: Christiane Wirth
Copyright: Christiane Wirth
Copyright: Christiane Wirth
Copyright: Christiane Wirth
Copyright: Luuk Kramer
Copyright: Luuk Kramer
Copyright: Luuk Kramer
Copyright: Luuk Kramer
Copyright: Luuk Kramer
Copyright: Luuk Kramer
Copyright: Luuk Kramer
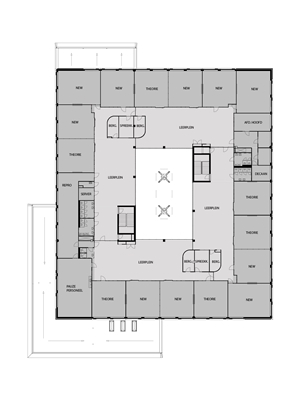
Copyright: Begane grond. Spring Architecten en 01-10 Architecten
Copyright: Eerste verdieping. Spring Architecten en 01-10 Architecten
Copyright: Situatie. Spring Architecten en 01-10 Architecten
Compact en flexibel schoolgebouw van Spring en 01-10
1 oktober 2015, 16:17
In Berkel en Rodenrijs is recentelijk het nieuwe schoolgebouw van vmbo Melanchthon Berkroden officieel geopend.
Spring Architecten
en
01-10 Architecten
hebben gezamenlijk een compact en flexibel te gebruiken gebouw ontworpen.
Het vmbo Melanchton Berkroden is een breed georiënteerde school voor vakonderwijs. De leerlingen volgen lessen in richtingen als (informatie-)techniek, maaltijd- en lichaamsverzorging en vormgeving. De ontwerpcombinatie van Spring Architecten en 01-10 Architecten uit Rotterdam ontwikkelde een integraal en sterk centraal georganiseerd concept als drager voor een flexibel te gebruiken schoolgebouw.
Centrale hal
De basisstructuur van het schoolgebouw is een vierkant, dat in het midden is voorzien van een twee verdiepingen hoog atrium. "De vertrekhal van de school", noemen de architecten het centraal gesitueerde atrium. Hier begint de leerling "aan zijn reis van ontwikkeling en het ontdekken van talenten".
De ruimte heeft een gewelfd houten plafond, dat wordt gesteund wordt door twee boomachtige kolommen. Vanuit dit royale gebied is rondom zicht op de activiteiten in het gebouw. Grenzend aan het atrium ligt de aula. Die is voorzien van een podium met theaterverlichting.
Rond het atrium liggen op de begane grond tevens de uiteenlopende praktijk- en practicumruimten. De trappenhuizen zijn aan de rand van de centrale hal gesitueerd. Op de eerste verdieping liggen vier onderwijsgebieden, elk vijfhonderd vierkante meter groot, geschakeld rondom de centrale open plek.
De verdieping met onderwijsgebieden kent geen gangen, waardoor alle ruimte beschikbaar is voor het onderwijs. Elk leerjaar heeft een eigen onderwijsgebied met leerpleinen. De ruimtes zijn kolomloos en daardoor flexibel indeelbaar.
Betoncasco
De keuze van Spring en 01-10 voor een betoncasco, in eerste instantie ingegeven door de rationaliteit van het bouwsysteem, werd bepalend voor diverse aspecten van het gebouw. Daartoe behoort de mogelijkheid tot vrije indeelbaarheid door een vloeroverspanning van zestien meter.
Het ruwe beton is gecombineerd met hoogwaardige afwerkingen voor vloeren en wanden. Ook de systeemwanden dragen bij aan de gewenste hoogwaardige en luxe verblijfsomgeving voor het VMBO. Daarnaast garanderen ze een grote mate van flexibiliteit in de toekomst.
Exterieur
In het exterieur zorgen de geprefabriceerde betonelementen, afgewisseld met plastisch metselwerk en grote puien, voor een ritmisch gevelbeeld. Luifels en diepe penanten benadrukken de overgangen tussen binnen en buiten en brengen proportie aan in de gevels.
Zonwering en ventilatievoorzieningen zijn geïntegreerd in de slank geprofileerde aluminium kozijnen. De installaties en dakopbouwen zijn integraal opgenomen in het ontwerp.
Rondom contact met omgeving
Het gebouw is gelegen op een eiland, langs de provinciale weg in een nog niet afgebouwde omgeving. De zichtbaarheid rondom vroeg om een gebouw met een stevige aanwezigheid. De onderwijsomgeving presenteert zich sterk naar buiten door de transparante opzet van de gevels. Vanuit de aula en de praktijkruimtes is er een sterke relatie met de directe omgeving.
De buitenruimtes kennen verschillende hoogtezones. De entrees komen uit op een steenachtig 'boveneiland' direct rondom de school. Het 'benedeneiland' heeft half verdiept aangelegde parkeerplaatsen en fietsenstallingen en is voorzien van half-verharding, met het oog op regulering van de waterhuishouding.
Trefwoorden
vmbo
school
berkel en rodenrijs
rotterdam
vmbo melanchton berkroden
spring architecten
schoolgebouw
01-10 architecten
onderwijs
Best gelezen
1
Rotterdam verleent bouwvergunning voor Schieblokken
vrijdag, 28 november
2
Nieuw voorstel voor renovatie en uitbreiding De Kuip
woensdag, 26 november
3
MORE Architecture en Studio Nauta ontwerpen woontoren midden op Katendrecht
donderdag, 27 november
4
Gemeenteraad stelt gebiedsvisie voor Bussum-Zuid vast
donderdag, 27 november
5
Schiphol investeert tien miljard in nieuwe terminal en andere infrastructuur
woensdag, 26 november
Gerelateerde nieuwsberichten
Energieneutraal schoolgebouw als een zandkasteel in de Driehoek Loosduinen
21 augustus 2023
Combinatie Spring & WDJArchitecten ontwerpt renovatie Olympia College Rotterdam
26 mei 2020
Renovatie en uitbreiding voor eerste Buitenschool
4 november 2015
Bouw kantoor Woonstad Rotterdam van start
11 oktober 2011
Passiefmethode voor MFA en Brede School
14 januari 2015
Nieuw schoolgebouw NBS fris en flexibel
27 mei 2015
Nieuw winkelcentrum voor Waddinxveen
4 oktober 2012
Nul-op-de-meter-woningen in glooiend park
1 juni 2016
Bouw Revius Lyceum Doorn van start
18 januari 2016
Nieuw Revius Lyceum in Doorn is een onderwijslandgoed
12 december 2017
Kerkgebouw met podium voor muziek
15 januari 2019
Erasmus Education Lab & Studio transparant en geborgen
18 februari 2019
01-10 ontwerpt transformatie naar luxe voco-hotel
12 maart 2019
Appartementengebouw op voorheen boerderijlocatie in Westergouwe
9 januari 2020
Amersfoort krijgt twee appartementenblokken nabij binnenstad
4 maart 2020
Omvangrijke vernieuwing op technologiecampus Eindhoven door Eentien afgerond
1 oktober 2020
10 aantrekkelijke atria in middelbare scholen
16 maart 2022
Energieneutraal schoolgebouw als een zandkasteel in de Driehoek Loosduinen
21 augustus 2023
Combinatie Spring & WDJArchitecten ontwerpt renovatie Olympia College Rotterdam
26 mei 2020
Renovatie en uitbreiding voor eerste Buitenschool
4 november 2015
Bouw kantoor Woonstad Rotterdam van start
11 oktober 2011
Passiefmethode voor MFA en Brede School
14 januari 2015
Nieuw schoolgebouw NBS fris en flexibel
27 mei 2015
Nieuw winkelcentrum voor Waddinxveen
4 oktober 2012
Nul-op-de-meter-woningen in glooiend park
1 juni 2016
Bouw Revius Lyceum Doorn van start
18 januari 2016
Nieuw Revius Lyceum in Doorn is een onderwijslandgoed
12 december 2017
Kerkgebouw met podium voor muziek
15 januari 2019
Erasmus Education Lab & Studio transparant en geborgen
18 februari 2019
01-10 ontwerpt transformatie naar luxe voco-hotel
12 maart 2019
Appartementengebouw op voorheen boerderijlocatie in Westergouwe
9 januari 2020
Amersfoort krijgt twee appartementenblokken nabij binnenstad
4 maart 2020
Omvangrijke vernieuwing op technologiecampus Eindhoven door Eentien afgerond
1 oktober 2020
10 aantrekkelijke atria in middelbare scholen
16 maart 2022
Toon alles
Andere nieuwsberichten
Nederlands Fotomuseum toont fotografische verbeelding van Rotterdam
Vandaag, 15:16
Op 7 februari opent het Nederlands Fotomuseum zijn deuren in het voormalige pakhuis Santos in Rotterdam. Een van de openingstentoonstellingen is Rotterdam in focus. Fotografie van de stad 1843.
Vocus Architecten verbouwt historische tramremise tot supermarkt
Vandaag, 14:23
In Elburg heeft Vocus Architecten een voormalige tramremise getransformeerd tot supermarkt. De twee historische bouwdelen uit het einde van de achttiende eeuw zijn gerenoveerd en er is een nieuw entreegebouw aan het complex toegevoegd.
Veel Nederlandse winnaars bij de Archello Awards 2025
Vandaag, 12:00
Vooral in de categorieën rond woningbouw, scholenbouw en publieke gebouwen wisten Nederlandse bureaus veel prijzen te winnen.
Ibelings van Tilburg geeft boerderij met monumentale schuur in Zoetermeer woonbestemming
Vandaag, 11:34
Het woonhuis behield zijn functie, in de monumentale Groningse driekapsschuur zijn tien woningen gerealiseerd en op het erf achter de schuur is een houten schuurwoning gebouwd, mede om het plan financieel levensvatbaar te maken.
Gelderland wil duurzame ‘havenhub’ aanleggen bij IJzendoorn
Vandaag, 13:13
Bij een Clean Energy Hub kunnen binnenvaartschepen schonere brandstoffen zoals bio-LNG bunkeren en groene stroom laden.
Schoof ziet actiepunten in klimaatadvies burgerberaad
Vandaag, 10:22
De demissionair premier herkent de wens van het kabinet voor een ‘haalbaar en betaalbaar’ klimaatbeleid in de aanbevelingen van 175 burgers.
Besluit over verdwijnen dorp Moerdijk halfjaar uitgesteld
Gisteren, 15:27
Het Rijk en de provincie Noord-Brabant willen pas in juni een besluit nemen over uitbreiding van het haven- en industriegebied in Moerdijk.
Amsterdam overweegt hogere toeristenbelasting in herbestemming panden te stoppen
Gisteren, 10:30
Het stadsbestuur overweegt de toeristenbelasting te verhogen als de landelijke btw-verhoging niet leidt tot een daling van het aantal toeristenovernachtingen.
Amsterdam zoekt vastgoedpartij die 'werkcorporatie' wil opzetten
28 november, 5:16
De Werkcorporatie Amsterdam moet helpen om kleinschalige en betaalbare bedrijfsruimtes voor bijvoorbeeld meubelmakers en loodgieters in de stad te realiseren.
Woningbezit investeerders neemt verder af in derde kwartaal
28 november, 2:38
De verkoopgolf van huurwoningen door investeerders hield in het derde kwartaal van dit jaar aan.
Ga naar het nieuws-archief
0
0
0
0
Voor een optimale gebruikservaring plaatst Architectenweb functionele cookies. Wat de verschillende cookies precies doen leggen we uit in een
overzicht
. Cookies van social media kun je optioneel
aanzetten
.
Akkoord
Instellingen
Annuleren
OK
Sluiten
Doorgaan
Inloggen
Maak een gratis persoonlijk account aan
Feedback
Feedback
Wij horen graag jouw feedback. Laat je reactie achter en eventueel jouw e-mail adres.
Reactie
Verstuur