Projecten
Producten
Bedrijven
Vacatures
Agenda
Awards
Podcasts
more_horiz
Videos
Magazine
Favorieten
Profiel
Uitloggen
Abonneer je nu op onze nieuwsbrieven!
Abonneren
Nee, bedankt
Ja, denk met me mee rond de
materialisering van mijn project
Producten
Waterkant noordzijde
Copyright: Katja Effting
Panorama woonruimte - van polder naar boezem
Copyright: Katja Effting
Zwartstaal, hout en beton
Copyright: Katja Effting
Uitzicht woonkeuken
Copyright: Katja Effting
Schoonbeton benedenverdieping
Copyright: Katja Effting
Avond tuinzijde
Copyright: Katja Effting
Situatie
Copyright: Mirck Architecture
Zichtlijnen vanuit de woning
Copyright: Mirck Architecture
Begane grond
Copyright: Mirck Architecture
Benedenverdieping
Copyright: Mirck Architecture
Langsdoorsnede
Copyright: Mirck Architecture
Dwarsdoorsnede
Copyright: Mirck Architecture
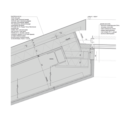
Dakrand detail
Copyright: Mirck Architecture
Daklicht detail met aluminium rooster en akoestisch stucwerk
Copyright: Mirck Architecture
Daglicht niveau begane grond
Copyright: Mirck Architecture
Daglichtniveau in doorsnede
Copyright: Mirck Architecture
Aanzicht en doorsnede zwart corten stalen haardkast
Copyright: Mirck Architecture
Producttags
AAN
UIT
Het Buitenhuis
16 mei 2019
0
0
0
0
Een dijk in het Groene Hart blijkt geschikt voor een bijzonder buitenhuis. De grote open woonruimte ligt bovendijks aan het water. De gewenste uitzichten en de zon vormen de binnenruimte. Een daklicht verbindt een inpandige serre op het noorden met een wijds panorama op het zuiden. A-room-in-a-view.
In het panorama ligt een woonwerkruimte van circa 9 bij 9 meter. Banken, bureau en lage kasten worden eenvoudig verplaatsbaar, zodat ieder moment de gewenste opstelling gemaakt kan worden. Hiervoor is in de vlindervloer een raster van stalen vloerpotten aangelegd.
Het vele daglicht in de binnenruimte – ook diffuus via het daklicht – versterkt de relatie met het uitzicht. De woonruimte voelt als onderdeel van het landschap. Het daglicht doet de binnenruimte ontstijgen van de bekende ‘room-with-a-view’ tot een verrassende ‘room-in-a-view’.
Het woonkeukengedeelte op het noorden biedt via schuifpui en glasdak zicht op de hemelkoepel. Het ochtendlicht draagt bij aan comfortabel ontwaken. Een mat daklicht verenigt dit hoge noorden met het wijdse zuiden, zowel in vormgeving als in licht.
Actieve en passieve zonwering zijn bij de vele openingen nodig om opwarming en verblinding te voorkomen. Ter plaatse van de glaspuien zijn een buitenscreen, lamellen en voiles verborgen. Hiermee kan het comfort verhoogd worden en geeft het de mogelijkheid om de binnenruimte te blinderen.
De slaapkamer onttrekt zich hieraan en is met een schuifpui gedraaid richting de ondergaande zon. Vanuit het bed geeft een panoramaraam zicht op het natuurgebied aan de overzijde van het water. Een luie trap daalt af naar een benedenverdieping van schoonbeton, waar verrassende openingen het hoogteverschil tussen dijk en polder benadrukken.
Het Buitenhuis draagt bij aan de ontluikende bewustwording van de waarde van daglicht. Daarnaast pleit het gekozen ontwerpproces voor figuurlijke Verlichting: meer uitwisseling met natuurkunde en biologie. Verdieping in daglicht verbetert architectuur.
Tot circa 100 jaar geleden was de invloed van daglicht in architectuur groot. De gloeilamp en peniceline deden de waarde van daglicht dalen, met donkere binnenruimtes tot gevolg. Sinds de eeuwwisseling neemt de waarde langzaam toe door de milieu-impact van gebouwen, het gewenste comfort, en met name de interesse in gezondheid.
Bij het ontwerp van het Buitenhuis heeft daglicht veel invloed gekregen. De oplevering werd het startschot voor
de tentoonstelling ‘Daylighthouse’
waarin het belang en de mogelijkheden van daglicht in woningen worden gepresenteerd aan de hand van drie woongebouwen en drie daglichthuizen. De tentoonstelling – met in de hoofdrol het Buitenhuis – is momenteel te zien in Amsterdam.
Stel jezelf kort voor! Dan weet het betreffende bedrijf wie hun model gedownload heeft.
Wil je niet bij elke download jouw gegevens in hoeven voeren?
Klik dan hier om in te loggen
.
Heb je nog geen account?
Maak dan hier een gratis account aan
.
Voornaam
Achternaam
E-mailadres
Downloaden
Wanneer je modellen downloadt op Architectenweb.nl worden relevante gegevens van jou – zoals jouw naam en e-mailadres – met het betreffende bedrijf gedeeld. Meer hierover lees je in ons
privacybeleid
.
Trefwoorden
corten staal
schoonbeton
beton
corten
Mirck Architecture
Neem contact op
Projectdata
Staat van realisatie
Voltooid
Start ontwerpproces
2013
Start bouw
2016
Oplevering
2019
Bruto m
2
340
Meewerkende partijen
Architect
Mirck Architecture
Projectarchitect
Sander Mirck
Ontwerpteam
Sander Mirck, Ule Koopmans, David Künzel
Aannemer
Bouwbedrijf Kon
Constructeur
JVZ Ingenieurs
Adviseurs installaties E & W
Merosch
Fotograaf
Katja Effting
Landschapsarchitect
Piet Oudolf
Leveranciers
Overig
Glazing Vision Europe,
Metaglas Groep
,
Solarlux Nederland B.V.
, Katja Effting, NOE-Bekistingtechniek, VPT Versteeg
Neem contact op met
Mirck Architecture
Je bent momenteel niet ingelogd. Hierdoor is het alleen mogelijk om meer informatie per e-mail op te vragen. Wil je liever gebeld worden of documentatie per post ontvangen?
Klik dan hier om in te loggen
.
Heb je nog geen account?
Maak dan hier een gratis account aan
.
Voornaam
Achternaam
E-mailadres
Opmerkingen
Bij iedere aanvraag worden relevante gegevens van jou gedeeld met het betreffende bedrijf. Meer hierover lees je in ons
privacybeleid
.
Ja, denk met me mee rond de
materialisering van mijn project
Meer projecten van Mirck Architecture
Studentenhuis Gerecht 10
Mirck Architecture
Keizersgracht 522
Mirck Architecture
Aziatisch restaurant
Mirck Architecture
Double house
Mirck Architecture
Daylighthouse
Mirck Architecture
Landhuis
Mirck Architecture
Huis IJburg
Mirck Architecture
Studentenhuis Gerecht 10
Mirck Architecture
Keizersgracht 522
Mirck Architecture
Aziatisch restaurant
Mirck Architecture
Double house
Mirck Architecture
Daylighthouse
Mirck Architecture
Landhuis
Mirck Architecture
Huis IJburg
Mirck Architecture
Toon alles
Gerelateerde producten
cero made by Solarlux
Solarlux Nederland B.V.
Andere Projecten
Vliesgevel screens Netceed kantoorgebouw
Renson
DEZA Kozijnen - Heerhugowaard
DUCO Ventilation & Sun Control
Passiefwoning met geïntegreerde vouwhefluiken
Artino
Villa Oegstgeest
Station-D Architects
Project Safestore Amersfoort
Dupral B.V.
Stalen uitbouw aan de Amsterdamse grachtengordel
Perfect View Windows
0739 Bornerveld – zuidwijk Rotterdam
Zijdekwartier architecten bv
Kantoor Apollolaan 171 Amsterdam
Boon Edam Nederland B.V.
Villa Madestein
Station-D Architects
Gevelprofielen appartementencomplex Wisselspoor
Storax
Skistation Monte Zoncolan
SSAB Swedish Steel BV
Duurzaam maatwerk voor Hogeschool Rotterdam
Mapro
Ga naar het projecten-overzicht
Voor een optimale gebruikservaring plaatst Architectenweb functionele cookies. Wat de verschillende cookies precies doen leggen we uit in een
overzicht
. Cookies van social media kun je optioneel
aanzetten
.
Akkoord
Instellingen
Annuleren
OK
Sluiten
Doorgaan
Inloggen
Maak een gratis persoonlijk account aan
Feedback
Feedback
Wij horen graag jouw feedback. Laat je reactie achter en eventueel jouw e-mail adres.
Reactie
Verstuur