Projecten
Producten
Bedrijven
Vacatures
Agenda
Awards
Podcasts
more_horiz
Videos
Magazine
Favorieten
Profiel
Uitloggen
Abonneer je nu op onze nieuwsbrieven!
Abonneren
Nee, bedankt
Ja, denk met me mee rond de
materialisering van mijn project
Producten
Copyright: John Lewis Marshall, Amsterdam
Copyright: John Lewis Marshall, Amsterdam
Copyright: John Lewis Marshall, Amsterdam
Copyright: John Lewis Marshall, Amsterdam
Copyright: John Lewis Marshall, Amsterdam
Copyright: John Lewis Marshall, Amsterdam
Copyright: John Lewis Marshall, Amsterdam
Producttags
AAN
UIT
Daylighthouse
18 juni 2008
0
0
0
0
In de nieuwe wijk Overgooi in Almere realiseerde Mirck Architects BNA een omvangrijke villa, compleet met zwembad en hammam, die grotendeels aan het zicht wordt onttrokken door de massieve buitenmuur van Belgisch leisteen.
Lichtend voorbeeld
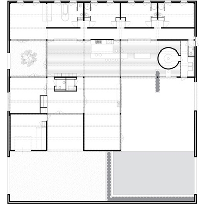
Binnen een grid van dertig bij dertig meter is een gelijkvloers woonprogramma ondergebracht voor een gezin met drie kinderen. Binnen ontwaart zich een verrassende variëteit aan open ruimtes, ingegeven door de overal in het zicht gelaten houten kolom- en balkconstructie die maat en structuur geeft. Het sheddak zorgt voor een ongekend grote daglichttoetreding. Gefilterd noorderlicht dringt diep door in het interieur en zorgt voor een aangename binnenruimte.
De keuken vormt het hart van het huis, dat aan de ene kant grenst aan een kleine patio die als tussenruimte functioneert met de straat, en aan de andere kant aan de overdekte buitenruimte ligt. Zowel de houten vloer als het keukenblad lopen door en verbinden zo binnen met buiten. Een lange gang scheidt het wonen van het slapen. Vier slaapkamers en de badkamer zijn langs de noordzijde geschakeld. Een tweede, parallelle gang verbindt de kamers onderling.
De verwerking van de leisteen, speciaal voor dit project uit een Belgische groeve uitgegraven, bleek een tijdrovende en kostbare aangelegenheid, vanwege het sorteren van de juiste stenen en het waterpas metselen. Het resultaat is een strakke maar gevarieerde gevel waarin enkele ‘gaten’ zijn uitgespaard die zijn ingevuld met thermisch verzinkt stalen kozijnen. Het sheddak heeft een koperen afwerking en functioneert als warmtegeleider: in een boiler wordt het opgewarmde water opgevangen.
Het ruimtelijk concept van het huis herinnert aan het idee van de universal space dat zich leent voor een grote flexibiliteit in het programma. De toekomst zal uitwijzen in hoeverre die mogelijkheid door de bewoners zal worden benut.
Stel jezelf kort voor! Dan weet het betreffende bedrijf wie hun model gedownload heeft.
Wil je niet bij elke download jouw gegevens in hoeven voeren?
Klik dan hier om in te loggen
.
Heb je nog geen account?
Maak dan hier een gratis account aan
.
Voornaam
Achternaam
E-mailadres
Downloaden
Wanneer je modellen downloadt op Architectenweb.nl worden relevante gegevens van jou – zoals jouw naam en e-mailadres – met het betreffende bedrijf gedeeld. Meer hierover lees je in ons
privacybeleid
.
Locatie
Mirck Architecture
Neem contact op
Projectdata
Staat van realisatie
Voltooid
Start bouw
2007
Plaats
Almere
Neem contact op met
Mirck Architecture
Je bent momenteel niet ingelogd. Hierdoor is het alleen mogelijk om meer informatie per e-mail op te vragen. Wil je liever gebeld worden of documentatie per post ontvangen?
Klik dan hier om in te loggen
.
Heb je nog geen account?
Maak dan hier een gratis account aan
.
Voornaam
Achternaam
E-mailadres
Opmerkingen
Bij iedere aanvraag worden relevante gegevens van jou gedeeld met het betreffende bedrijf. Meer hierover lees je in ons
privacybeleid
.
Ja, denk met me mee rond de
materialisering van mijn project
Meer projecten van Mirck Architecture
Het Buitenhuis
Mirck Architecture
Studentenhuis Gerecht 10
Mirck Architecture
Keizersgracht 522
Mirck Architecture
Aziatisch restaurant
Mirck Architecture
Double house
Mirck Architecture
Landhuis
Mirck Architecture
Huis IJburg
Mirck Architecture
Het Buitenhuis
Mirck Architecture
Studentenhuis Gerecht 10
Mirck Architecture
Keizersgracht 522
Mirck Architecture
Aziatisch restaurant
Mirck Architecture
Double house
Mirck Architecture
Landhuis
Mirck Architecture
Huis IJburg
Mirck Architecture
Toon alles
Gerelateerde nieuwsberichten
Buitenhuis met riant licht en zicht
26 september 2016
Andere Projecten
Heger en Veldwijk Automotive in Harderwijk
FALK®
Kant & Klaar Hagen verminderen luchtvervuiling
Mobilane
Koelmalaan, Alkmaar – Houtbouw wooncomplex
Sto Isoned bv
Ballast Nedam
OTH architecten
WTC | Almere
Plan Effect Systeemwanden
Paviljoens Vleuterweide in Utrecht
SSAB Swedish Steel BV
Berghaus Plaza in Amsterdam
Alucol
Zwaarlast deksels voor betonputten in Swifterbant
Van den Berg Afvoerputten BV
Hooihuisboerderij, Landsmeer
Bastiaan Jongerius Architecten
Six Degrees Café
Malaysian Timber Council
Open vloergootsysteem voor The CubeHouse Amsterdam
HPL Systems BV
Almere De Laren
Schippers Architecten
Ga naar het projecten-overzicht
Voor een optimale gebruikservaring plaatst Architectenweb functionele cookies. Wat de verschillende cookies precies doen leggen we uit in een
overzicht
. Cookies van social media kun je optioneel
aanzetten
.
Akkoord
Instellingen
Annuleren
OK
Sluiten
Doorgaan
Inloggen
Maak een gratis persoonlijk account aan
Feedback
Feedback
Wij horen graag jouw feedback. Laat je reactie achter en eventueel jouw e-mail adres.
Reactie
Verstuur