Projecten
Producten
Bedrijven
Vacatures
Agenda
Awards
Podcasts
more_horiz
Videos
Magazine
Favorieten
Profiel
Uitloggen
Abonneer je nu op onze nieuwsbrieven!
Abonneren
Nee, bedankt
Ja, denk met me mee rond de
materialisering van mijn project
Copyright: Proloog
Copyright: Proloog
Copyright: Proloog
Copyright: Proloog
Copyright: Proloog
Copyright: Proloog
Copyright: Proloog
Copyright: Proloog
Copyright: Proloog
Noordgevel
Copyright: SeARCH
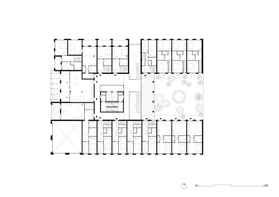
Begane grond
Copyright: SeARCH
Eerste verdieping
Copyright: SeARCH
Vijfde verdieping
Copyright: SeARCH
Achtste verdieping
Copyright: SeARCH
SeARCH en Heutink Groep winnen tender voor woongebouw Sluisbuurt
10 april, 11:15
SeARCH
heeft samen met
Heutink Groep
de twee jaar geleden uitgeschreven tender voor kavel 10A2 in de Amsterdamse Sluisbuurt gewonnen. Gebouw Radius biedt plek aan zo’n honderd appartementen, een stadskamer, een binnentuin, daktuinen en andere gemeenschappelijke ruimtes. Het gebouw wordt gerealiseerd van natuurlijke materialen als hout, stampleem en leemsteen.
Kavel 10A2 ligt op een rustige plek aan de voet van de Zuider IJdijk. De kavel ligt nabij het centrale waterplein en bij de dijk die de groene rand van de Sluisbuurt vormt. Daarnaast ligt de kavel op 150 meter van de hoofdstraat van de Sluisbuurt (de Rudy van Dantzigstraat, met winkels, horeca en bedrijven) en de tijdelijke pont naar Sporenburg.
Inspiratie voor het ontwerp heeft SeARCH gehaald uit de afzettingslagen van de zogeheten oergeul, een ondergrondse stroming in Amsterdam die een sterke invloed heeft op de samenstelling en draagvermogen van de grond. Heel direct is dit te zien in de ‘aardlagen’ van de plint, die wordt gematerialiseerd in stampleem en leemsteen.
De compacte, bijna cilindrische toren vormt de tweede ‘laag’ van het gebouw. De verdiepingen kunnen flexibel worden ingericht met vier, zes of acht appartementen, die over eigen buitenruimtes beschikken. Overstekken voor passieve zonwering zijn afgestemd op oriëntatie en rondom zodat ook zijdelingse zonne-instraling wordt beperkt.
Vanaf de begane grond wordt het gebouw opgetrokken in een houten kolom-liggerstructuur, die flexibel en losmaakbaar is. Ook de liftkernen worden opgetrokken in CLT, iets wat nog niet vaak voorkomt. De woningplattegronden zijn alzijdig ontworpen, met onder meer tweezijdig georiënteerde appartementen, overhoekse woningen en tweezijdige studio’s.
Het buurtcafé, de stadskamer en de commerciële functies worden in de plint gerealiseerd. Het café komt op de zuidwesthoek en wordt volgens SeARCH een bijzondere plek aan het Waterplein. In het gebouw wordt de plek van het café gedefinieerd door een gevel met diepe neggen met rondingen. Zware penanten worden afgewisseld met open gevelpuien.
Het gebouw krijgt een collectieve binnentuin, met eromheen een colonnade die volgens SeARCH is geïnspireerd op The Cloisters in New York. De interne noord-zuidgang op het maaiveld heeft ruime proporties en een flauwe trap. Diffuus daglicht vanuit de binnentuin begeleidt de route en moet bijdragen aan een intuïtieve oriëntatie en gebruik van de collectieve ruimtes. Bewoners kunnen de binnentuin onder meer direct bereiken via de gemeenschappelijke keuken.
De inrichting van de daktuinen sluit aan op de beplanting langs de dijk. Langs de dakranden groeien solitaire heesters die zorgen voor een gunstig windklimaat, meldt SeARCH.
Trefwoorden
heutink groep
woongebouw
amsterdam
woningbouw
search
sluisbuurt
Locatie
Best gelezen
1
Anterieure overeenkomst voor bouw woontoren The Four in Eindhoven
donderdag, 16 april
2
Tien bureaus geselecteerd voor tweede ronde nieuwbouw De Meervaart
woensdag, 15 april
3
Voormalig hoofdkantoor Ferro in M4H verbouwd tot bedrijfsverzamelgebouw
woensdag, 15 april
4
Architecten voor restauratie en herbestemming Rivièrahal gekozen
donderdag, 16 april
5
De ondergrondse strijd om een duurzamere stad
donderdag, 16 april
Gerelateerde nieuwsberichten
Amsterdam zoekt partij die kavel 1A2 in Sluisbuurt wil ontwikkelen
21 juni 2024
Team met Mecanoo en Inside Outside wint tender kavel 1A2 Sluisbuurt
21 mei 2025
Grootschalig gebouw voor Hogeschool Inholland bedacht als een dorp
6 januari 2025
Eerste woontoren in Amsterdamse Sluisbuurt opgeleverd
3 oktober 2024
Amsterdam bouwt buurt met 1.800 woningen in Baaibuurt-West
22 maart 2024
MVRDV en Space Encounters ontwerpen energiepositieve woontoren in Sluisbuurt
20 november 2023
Samenwerkingsverband met Space Encounters en DELVA wint tender werkgebouw Sluisbuurt
1 september 2023
Gebiedsontwikkelaar AM en Wageningen University & Research onderzoeken mogelijkheden voor versnelling natuurinclusief bouwen
5 juni 2023
Mei ontwerpt woongebouwen voor studenten en jongeren in Sluisbuurt
24 maart 2023
NAT architecten wint tender voor kavel Sluisbuurt met Orange Lofts
30 september 2022
Bouw Hogeschool Inholland in Amsterdamse Sluisbuurt gestart
2 september 2022
Team met VenhoevenCS en DS Landschapsarchitecten wint tender kavel 4a Sluisbuurt
18 juli 2022
Diamant herbergt afvalinzameling voor Sluisbuurt Amsterdam
11 mei 2022
Gebiedsvisie van NOHNIK voor Corridor Centrale Scheepvaart Amsterdam Sluisbuurt
6 december 2021
Sluisbuurt Amsterdam krijgt met Horizons 'een internationaal duurzaamheidsicoon'
10 augustus 2021
Team Barcode Architects en krft wint tender kavel 5A1 Sluisbuurt
5 juli 2021
Skatepark in Sportheldenbuurt Amsterdam geopend
30 juni 2020
Amsterdam zoekt partij die kavel 1A2 in Sluisbuurt wil ontwikkelen
21 juni 2024
Team met Mecanoo en Inside Outside wint tender kavel 1A2 Sluisbuurt
21 mei 2025
Grootschalig gebouw voor Hogeschool Inholland bedacht als een dorp
6 januari 2025
Eerste woontoren in Amsterdamse Sluisbuurt opgeleverd
3 oktober 2024
Amsterdam bouwt buurt met 1.800 woningen in Baaibuurt-West
22 maart 2024
MVRDV en Space Encounters ontwerpen energiepositieve woontoren in Sluisbuurt
20 november 2023
Samenwerkingsverband met Space Encounters en DELVA wint tender werkgebouw Sluisbuurt
1 september 2023
Gebiedsontwikkelaar AM en Wageningen University & Research onderzoeken mogelijkheden voor versnelling natuurinclusief bouwen
5 juni 2023
Mei ontwerpt woongebouwen voor studenten en jongeren in Sluisbuurt
24 maart 2023
NAT architecten wint tender voor kavel Sluisbuurt met Orange Lofts
30 september 2022
Bouw Hogeschool Inholland in Amsterdamse Sluisbuurt gestart
2 september 2022
Team met VenhoevenCS en DS Landschapsarchitecten wint tender kavel 4a Sluisbuurt
18 juli 2022
Diamant herbergt afvalinzameling voor Sluisbuurt Amsterdam
11 mei 2022
Gebiedsvisie van NOHNIK voor Corridor Centrale Scheepvaart Amsterdam Sluisbuurt
6 december 2021
Sluisbuurt Amsterdam krijgt met Horizons 'een internationaal duurzaamheidsicoon'
10 augustus 2021
Team Barcode Architects en krft wint tender kavel 5A1 Sluisbuurt
5 juli 2021
Skatepark in Sportheldenbuurt Amsterdam geopend
30 juni 2020
Toon alles
Gerelateerde podcasts
Toren van Babel
Gesprek met Mirjana Milanovic over hoogbouw in de Sluisbuurt
2 april
Andere nieuwsberichten
Twaalf lessen rond het ontwerpen van autovrije buurten
Vandaag, 16:30
Half april organiseerde Architectenweb in samenwerking met BURA en MerwedeLab in Pakhuis de Zwijger een drukbezocht symposium rond het ontwerpen van autovrije buurten. Twaalf lessen.
JagerJanssen bouwt vervallen clubhuis om tot sportpaviljoen Steeds Hooger
Vandaag, 14:52
Voor de Rotterdamse voetbalvereniging Steeds Hooger heeft JagerJanssen architecten een vervallen clubgebouw aan het Melanchtonpark vernieuwd.
Vera Yanovshtchinsky neemt na dertig jaar afscheid van bureau
Vandaag, 12:26
Ze geeft het stokje door aan Sjoerd Beerends, die als zakelijk partner de afgelopen acht jaar het bureau Vera Yanovshtchinsky architecten mede heeft vormgegeven. Het bureau gaat verder onder de naam VYA architectuur en stedenbouw.
LEVS publiceert duurzaamheidsanalyse eigen projecten
Gisteren, 14:45
Met de Rapportage Duurzaamheid 2021–2025 heeft het bureau 43 projecten uit de afgelopen vijf jaar getoetst aan de Paris Proof normen.
Onvoltooid attractiepark Rotterdam geveild voor 6,5 miljoen euro
Vandaag, 13:54
Ondernemer Hennie van der Most heeft meer dan tien jaar gewerkt aan de bouw van het park aan de Doklaan in Rotterdam.
'Amsterdamse RAI gaat binnen paar weken in de verkoop'
Vandaag, 10:50
De nieuwe aandeelhouder moet de portemonnee trekken voor de bouw van woningen en kantoren op het RAI-terrein, meldt het FD.
Minister wil Lelystad Airport openen in oktober 2027
Gisteren, 12:24
Het vliegveld heeft nog geen natuurvergunning, maar Vincent Karremans werkt ‘parallel’ aan de andere zaken die nog moeten worden geregeld voordat vakantievluchten vanuit Flevoland kunnen beginnen.
Boekholt wil minder strenge huurwet, hogere huren mogelijk
Gisteren, 10:15
Verhuurders moeten meer kunnen vragen voor dure huurhuizen, nieuwbouw en huizen zonder tuin of balkon.
Woningbouwzaken krijgen langer voorrang bij Raad van State
17 april, 4:49
Om het huizentekort tegen te gaan, blijft de Raad van State woningbouwzaken met voorrang behandelen.
Inspectie positief over verbetering sociale veiligheid TU Delft
17 april, 11:36
De TU Delft heeft aanzienlijke stappen gezet om de sociale veiligheid voor medewerkers te verbeteren.
Ga naar het nieuws-archief
Ronnie Weessies
Redacteur
2
0
0
0
Voor een optimale gebruikservaring plaatst Architectenweb functionele cookies. Wat de verschillende cookies precies doen leggen we uit in een
overzicht
. Cookies van social media kun je optioneel
aanzetten
.
Akkoord
Instellingen
Annuleren
OK
Sluiten
Doorgaan
Inloggen
Maak een gratis persoonlijk account aan
Feedback
Feedback
Wij horen graag jouw feedback. Laat je reactie achter en eventueel jouw e-mail adres.
Reactie
Verstuur