Projecten
Producten
Bedrijven
Vacatures
Agenda
Awards
Podcasts
more_horiz
Videos
Magazine
Favorieten
Profiel
Uitloggen
Abonneer je nu op onze nieuwsbrieven!
Abonneren
Nee, bedankt
Ja, denk met me mee rond de
materialisering van mijn project
Copyright: Parallel
Copyright: Parallel
Copyright: Parallel
Copyright: Parallel
Copyright: Parallel
Copyright: ParallelANA architecten / Keizer Koopmans
Copyright: ParallelANA architecten / Keizer Koopmans
Copyright: ParallelANA architecten / Keizer Koopmans
Copyright: ParallelANA architecten / Keizer Koopmans
Copyright: ParallelANA architecten / Keizer Koopmans
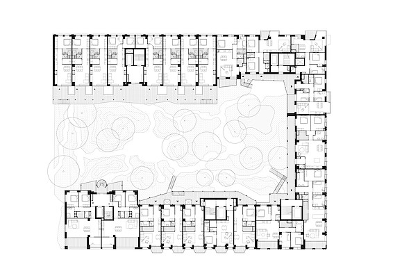
Ontsluitingen spelen centrale rol binnen woonblok Hibi in Amstelkwartier
11 februari, 11:27
Naar verwachting wordt in april gestart met het woonblok Hibi in het Amsterdamse Amstelkwartier. Het blok naar ontwerp van ANA architecten, Keizer Koopmans en BOOM Landscape bestaat uit 123 appartementen rond een tweeduizend vierkante meter grote binnentuin. De woningen zijn bereikbaar via een netwerk van ontsluitingen, waaraan ook een collectief programma is gekoppeld.
Hibi wordt gerealiseerd in het centrale winkelgebied van het Amstelkwartier en krijgt dan ook een bijpassende invulling van de plint, met onder meer een supermarkt, winkels, een fietswerkplaats en kantoren. De hoofdmoot van het blok vormen echter appartementen, de binnentuin en het gemeenschappelijke programma voor de bewoners.
Het blok bestaat uit vijf verschillende volumes, met elk een eigen uitstraling, detaillering en oriëntatie op de straat en de bezonning. Bijzonder is het netwerk van ontsluitingen, die maakt dat de woningen zowel vanaf de straat als de binnentuin een eigen toegang hebben. Aan de ruim opgezette ontsluitingen wordt op het niveau van de binnentuin een collectief programma voor de bewoners gekoppeld, bestaande uit een een sportbar, een wasbar en een klusplek.
Duurzaamheid en de integratie van natuur stonden vanaf de aanbestedingsfase centraal in het ontwerp. Hibi is energieopwekkend, bestaat grotendeels uit biogebaseerde en gerecyclede materialen en kent een systeem voor opvang van regenwater. Door de structuur van houten kolommen en lichte scheidingswanden is de indeling eenvoudig te wijzigen.
De gebouwen bestaand hoofdzakelijk uit duurzame materialen, laat ontwikkelaar VORM weten. “Met CO2-negatieve gevelstenen, CLT-kolommen en galerijen en circulair beton wordt een MPG van €0,34/m²/J gegarandeerd”, aldus het bedrijf. Onder de binnentuin wordt een parkeergarage gerealiseerd.
Behalve de genoemde partijen maken Arup (constructie en duurzaamheid), DWA (installaties) en Donkergroen (ecologie en onderhoud) deel uit van het samenwerkingsverband dat het ontwerp, de ontwikkeling en de realisatie van Hibi ter hand neemt. De oplevering van het blok staat gepland voor eind volgend jaar.
Trefwoorden
amstelkwartier
woningbouw
dwa
keizer koopmans
boom landscape
ana architecten
amsterdam
donkergroen
vorm
arup
Best gelezen
1
Parkeerplein naast Tilburgse schouwburg maakt plaats voor multifunctionele gebouwen
woensdag, 13 mei
2
44 woningen op bosrijke locatie in Driebergen
vrijdag, 15 mei
3
Neprom-prijs 2026 toegekend aan De Groene Loper Maastricht
maandag, 11 mei
4
Woningbouwproject Switi trekt 'verloren strook' alsnog bij de omgeving
maandag, 11 mei
5
Vandersalm Architecten herinterpreteert historisch erf bij Zwolse stadsboerderij
maandag, 11 mei
Gerelateerde nieuwsberichten
Samenwerkingsverband VORM wint tender voor kavel 10b in Amstelkwartier
10 januari 2024
The Rock Weespertrekvaart door Atelier PUUUR in gebruik genomen
20 november 2025
ANA ontwerpt woongebouw voor 55-plussers in Amsterdam-Zuidoost
8 april
Amstelkwartier kavel 8A wint Amsterdamse Nieuwbouwprijs 2025
16 juni 2025
Kavel 11 Amstelkwartier gegund aan team met Space Encounters en DS Landschapsarchitecten
28 juni 2024
HOH Architecten maakt stedenbouwkundige visie voor Wenckebachweg Zuid
29 mei 2024
Luxe woongebouw door Office Winhov aan Park Somerlust
18 januari 2024
Kavel 10b in het Amstelkwartier: de runner-up
12 januari 2024
Bouw woontoren Elements in Amstelkwartier van start
3 februari 2023
CPO-project van Studio YAA in Amstelkwartier opgeleverd
28 juli 2022
Natuurinclusieve brug vormt entree voor Amstelkwartier
1 juni 2022
HAUT: wonen met riant uitzicht binnen hoofdzakelijk houten constructie
21 maart 2022
Syb van Breda ontwerpt brug over Weespertrekvaart Amsterdam
19 juli 2021
Samenwerkingsverband VORM wint tender voor kavel 10b in Amstelkwartier
10 januari 2024
The Rock Weespertrekvaart door Atelier PUUUR in gebruik genomen
20 november 2025
ANA ontwerpt woongebouw voor 55-plussers in Amsterdam-Zuidoost
8 april
Amstelkwartier kavel 8A wint Amsterdamse Nieuwbouwprijs 2025
16 juni 2025
Kavel 11 Amstelkwartier gegund aan team met Space Encounters en DS Landschapsarchitecten
28 juni 2024
HOH Architecten maakt stedenbouwkundige visie voor Wenckebachweg Zuid
29 mei 2024
Luxe woongebouw door Office Winhov aan Park Somerlust
18 januari 2024
Kavel 10b in het Amstelkwartier: de runner-up
12 januari 2024
Bouw woontoren Elements in Amstelkwartier van start
3 februari 2023
CPO-project van Studio YAA in Amstelkwartier opgeleverd
28 juli 2022
Natuurinclusieve brug vormt entree voor Amstelkwartier
1 juni 2022
HAUT: wonen met riant uitzicht binnen hoofdzakelijk houten constructie
21 maart 2022
Syb van Breda ontwerpt brug over Weespertrekvaart Amsterdam
19 juli 2021
Toon alles
Andere nieuwsberichten
Tien nominaties voor NRP Gulden Feniks 2026
Gisteren, 14:20
In november wijst de jury een aantal winnaars aan uit deze selectie voor de nationale prijs voor renovatie en transformatie van de gebouwde omgeving.
Nieuwe Instituut brengt rijkscollectie architectuur en stedenbouw tot leven in Collection Gallery
Gisteren, 13:17
Op donderdag 18 juni opent het Nieuwe Instituut de zogeheten Collection Gallery. In deze nieuwe interactieve ruimte wil de instelling in Rotterdam de Rijkscollectie voor Nederlandse Architectuur en Stedenbouw tot leven brengen.
44 woningen op bosrijke locatie in Driebergen
Gisteren, 09:26
De gemeente Utrechtse Heuvelrug selecteerde het plan Bosrand Heidestein. Het team dat het ontwerp en de realisatie verzorgt, bestaat uit KRKTR Projectontwikkeling, Reuvers Ontwik-keling en Bouw, MIX architectuur, MAAK space, Merosch en Kwirkey.
Vijf finalisten voor Heuvelinkprijs 2026
13 mei, 3:06
De finalisten voor de Heuvelinkprijs 2026 zijn bekend. Vijf projecten komen in aanmerking voor deze editie van de tweejaarlijkse Arnhemse nieuwbouwprijs.
ITA Ensemble speelt 'De Architect' van sterregisseur Rebecca Frecknall
Gisteren, 15:11
De voorstelling is een hedendaagse bewerking van Henirik Ibsens 'Bouwmeester Solness'.
Commissie: milieustudie Schiphol schiet tekort voor omwonenden
Gisteren, 12:08
De Commissie voor de milieueffectrapportage stelt zelfs dat het rapport herzien zou moeten worden.
Koen Pörtzgen benoemd tot partner bij Zecc Architecten
Gisteren, 10:15
Samen met Marnix van der Meer (54) en Bart Kellerhuis (47) vormt de 39-jarige Pörtzgen vanaf dit jaar de directie van het Utrechtse bureau.
Consortium met RxDomi en TU/e ontwikkelt netbewuste woning
13 mei, 2:56
In het project CoLiBRIE ontwikkelt een consortium, met onder meer RxDomi en TU/e, een nieuw type woning die comfortabel, duurzaam en betaalbaar is, zonder het energienet extra te belasten.
Minimaal half miljard extra nodig voor verbreding A27
13 mei, 1:38
Op het traject van 47 kilometer moeten extra rijbanen komen om de dagelijkse files te verlichten. Ook worden bruggen vervangen.
RVO constateert laagste groei windenergie op land in jaren
13 mei, 10:02
De uitbreiding van windenergie op land in Nederland is op een historisch laag niveau.
Ga naar het nieuws-archief
Ronnie Weessies
Redacteur
1
0
0
0
Voor een optimale gebruikservaring plaatst Architectenweb functionele cookies. Wat de verschillende cookies precies doen leggen we uit in een
overzicht
. Cookies van social media kun je optioneel
aanzetten
.
Akkoord
Instellingen
Annuleren
OK
Sluiten
Doorgaan
Inloggen
Maak een gratis persoonlijk account aan
Feedback
Feedback
Wij horen graag jouw feedback. Laat je reactie achter en eventueel jouw e-mail adres.
Reactie
Verstuur