Projecten
Producten
Bedrijven
Vacatures
Agenda
Awards
Podcasts
more_horiz
Videos
Magazine
Thema's
Favorieten
Profiel
Uitloggen
Abonneer je nu op onze nieuwsbrieven!
Abonneren
Nee, bedankt
Ja, denk met me mee rond de
materialisering van mijn project
Prisma aan de Nieuwe Gracht
Copyright: Sebastian van Damme
Prisma aan de Nieuwe Gracht
Copyright: Sebastian van Damme
Grachtgevel, detail
Copyright: Sebastian van Damme
Prisma aan de Nieuwe Gracht
Copyright: Sebastian van Damme
Prisma aan de Nieuwe Gracht
Copyright: Sebastian van Damme
Grachtgevel, detail
Copyright: Sebastian van Damme
Tuinzijde
Copyright: Sebastian van Damme
Pleingevel
Copyright: Sebastian van Damme
Pleingevel (detail)
Copyright: Sebastian van Damme
Copyright: OPEN architects + planners
Copyright: OPEN architects + planners
Copyright: OPEN architects + planners
Copyright: OPEN architects + planners
Copyright: OPEN architects + planners
Copyright: OPEN architects + planners
Woongebouw Prisma in Nieuw Delft toont verschillende gezichten
24 juni 2025, 14:57
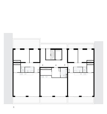
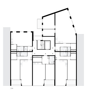
In Nieuw Delft is het woningbouwproject Prisma, met 28 duurzame appartementen opgeleverd.
OPEN architects + planners
ontwierp een gebouw met verschillende gezichten, gericht naar de grachtzijde, een plein en een groene collectieve binnentuin.
Het nieuwbouwproject Prisma ligt aan de Nieuwe Gracht, nabij het centraal station van Delft en de historische binnenstad. In opdracht van ontwikkelaar Van Valentijn heeft OPEN architects een gebouw ontworpen met 28 woningen in verschillende typen en variërend in grootte van 40 tot en met 110 m
2
. In de plint is tevens commerciële ruimte voorzien.
OPEN architects heeft woongebouw ontworpen met aandacht voor inpassing op de locatie, zo meldt het architectenbureau. Het gebouw richt zich met drie verschillend vormgegeven gevels naar de omgeving, die bepaald wordt door respectievelijk de gracht, een plein en een groene, collectieve binnentuin.
Verschillende gevels
Het ontwerp voor de pleingevel is ingetogen en helder, legt OPEN architects uit, om aan te sluiten bij de kleinere schaal van de naastliggende bebouwing. De gevel is afgewerkt met minerale steenstrips. Via een smalle doorgang tussen Prisma en aan naastgelegen gebouw bereikt men de tuinzijde. Deze gevel is vergelijkbaar, mara vertoont meer diversiteit in schaal en volumes, vertellen de architecten.
Prominent is de gevel aan de grachtzijde, die een combinatie van uitzicht en buitenruimte aan het water, en zon in de namiddag en avond. Deze stedelijke gevel valt op door de toepassing van baksteen vloerranden en ‘koperen’ erkers.
“We hebben een duidelijke richting gekozen met de horizontale banden”, verklaart OPEN architects. “Daardoor ontstaat er hiërarchie in de gevel.” De erkers zijn tussen de horizontale banden geschoven. De kaders bestaan overigens niet echt uit koper, maar uit aluminium met een coating.
Duurzaam
Alle woningen hebben toegang tot de gemeenschappelijke binnentuin en een eigen buitenruimte. De appartementen hebben energielabel A+++ en zijn alle voorzien van een eigen duurzame installatie met onder andere warmtepompen en zonnepanelen.
OPEN architects
ontwierp al eerder een appartementengebouw aan de Nieuwe Gracht in Delft. Samen met Solid architecture tekende het bureau een CPO-project met opvallend grote openingen in een bakstenen raster als voorgevel.
Trefwoorden
open architects + planners
woongebouw
appartementengebouw
nieuw delft
woningbouw
delft
Locatie
Best gelezen
1
Architect Oliver Thill op 55-jarige leeftijd overleden
donderdag, 5 maart
2
André Kempe: ‘Het ging Oliver Thill om het geven van betekenis’
vrijdag, 6 maart
3
Werkstatt gaat verder zonder medeoprichter Niels Groeneveld
vrijdag, 6 maart
4
HvdHA ontwerpt twee woonblokken in Utrecht Terwijde volgens typologie van woonpalazzo
donderdag, 5 maart
5
Woongebouw door van Bergen Kolpa vormt nieuwe markering langs bocht Rotte
dinsdag, 10 maart
Gerelateerde nieuwsberichten
Bouwvergunning voor woon- en gemeenschapsgebouw in Amsterdam-Zuidoost
4 juli 2024
Een appartementengebouw met acht verschillende woningen
18 april 2024
Porseleinen Hof vormt sculpturale hoeksteen van Nieuw Delft
8 juli 2024
Woongebouw PoortMeesters combineert hightech met ambacht
28 september 2023
Space & Matter wint selectie voor woongebouw Nieuw Delft
4 september 2023
Bouw woonzorgcomplex in wijk Nieuw Delft van start
1 augustus 2023
Plannen gezocht voor twee van de laatste bouwkavels Nieuw Delft
17 februari 2023
Aanleg Van Leeuwenhoekpark in Delft van start gegaan
12 september 2022
'Klimaatadaptief' park op spoortunnel Delft
24 maart 2017
Studioninedots ontwerpt kopgebouw Antoni Delft
18 januari 2017
Tien bureaus bieden ontwerpen voor Nieuw Delft
8 maart 2016
Bouw eerste woningen Nieuw Delft van start
26 februari 2016
Delft wil verder met ontwikkeling spoorzone
7 september 2015
Bouwvergunning voor woon- en gemeenschapsgebouw in Amsterdam-Zuidoost
4 juli 2024
Een appartementengebouw met acht verschillende woningen
18 april 2024
Porseleinen Hof vormt sculpturale hoeksteen van Nieuw Delft
8 juli 2024
Woongebouw PoortMeesters combineert hightech met ambacht
28 september 2023
Space & Matter wint selectie voor woongebouw Nieuw Delft
4 september 2023
Bouw woonzorgcomplex in wijk Nieuw Delft van start
1 augustus 2023
Plannen gezocht voor twee van de laatste bouwkavels Nieuw Delft
17 februari 2023
Aanleg Van Leeuwenhoekpark in Delft van start gegaan
12 september 2022
'Klimaatadaptief' park op spoortunnel Delft
24 maart 2017
Studioninedots ontwerpt kopgebouw Antoni Delft
18 januari 2017
Tien bureaus bieden ontwerpen voor Nieuw Delft
8 maart 2016
Bouw eerste woningen Nieuw Delft van start
26 februari 2016
Delft wil verder met ontwikkeling spoorzone
7 september 2015
Toon alles
Andere nieuwsberichten
Groningen stelt gebiedsvisie voor wijk De Nieuwe Held vast
Gisteren, 15:45
In vijftien jaar tijd wil de gemeente 1.850 woningen bouwen in de nieuwe wijk aan de westkant van de stad. De verwachting is dat de bouw eind 2027, begin 2028 kan starten.
Bouw paviljoen van Atelier PUUUR met buurtfunctie en voorzieningen gestart
Gisteren, 14:06
In Amsterdam Noord is de bouw gestart van een paviljoen naar ontwerp van Atelier PUUUR met daarin een Ouder- en Kindteamlocatie en een buurtkamer. Het tweelaagse gebouw markeert tevens de entree van een naastgelegen groengebied.
Zeven ontwerpteams aan de slag met herontwikkeling Bernhardkazerne Amersfoort
Gisteren, 11:44
Het opleidings- en trainingscentrum van de Koninklijke Landmacht, dat uit meerdere gebouwen bestaat, is dringend toe aan modernisering. De zeven bureaus werken alle aan een deelopdracht binnen het masterplan voor de kazerne.
Kantoorcomplex door Goof Spruit bij station Utrecht krijgt tweede leven als De Nieuwe Tuin
Gisteren, 10:26
In het ontwerp van BiermanHenket behoudt het complex zijn kenmerkende honingraatstructuur, maar krijgt het een opener karakter. Ook wordt het gebouw zowel binnen als buiten vergroend.
Raad van State blokkeert plan voor verbouwing ring Utrecht
Gisteren, 16:31
Vorig jaar kreeg het kabinet de opdracht om de stikstofuitstoot van het project beter uit te leggen, maar dat is niet gelukt.
Provincie akkoord met natuurherstel voor nieuwe ASML-campus
Gisteren, 12:30
De provincie Noord-Brabant stemt in met het plan waarmee chipmachinefabrikant ASML natuur wil compenseren bij de realisatie van de nieuwe campus.
CBS: uitstoot gestegen in 2025, klimaatdoelen verder uit zicht
Gisteren, 09:20
Vorig jaar werd er 0,8 procent meer broeikasgassen uitgestoten dan in 2024.
Renovatie Belgisch Justitiepaleis loopt op tot zeshonderd miljoen euro
10 maart, 2:33
Het Justitiepaleis in Brussel is ruim 140 jaar oud en staat al meer dan veertig jaar in de steigers.
Zuid-Holland stemt in met bouwplannen 285.000 huizen tot 2036
10 maart, 12:12
Het college van Gedeputeerde Staten stemde in met 2333 ingediende plannen, omdat ze voldoen aan de provinciale regels in het omgevingsbeleid.
Fors meer omzet bouwbedrijf Dura Vermeer door grote vraag
10 maart, 9:48
Volgens het familiebedrijf uit Rotterdam steeg de jaaromzet met 24 procent tot 2,6 miljard euro.
Ga naar het nieuws-archief
Robert Muis
Redacteur
0
0
0
0
Voor een optimale gebruikservaring plaatst Architectenweb functionele cookies. Wat de verschillende cookies precies doen leggen we uit in een
overzicht
. Cookies van social media kun je optioneel
aanzetten
.
Akkoord
Instellingen
Annuleren
OK
Sluiten
Doorgaan
Inloggen
Maak een gratis persoonlijk account aan
Feedback
Feedback
Wij horen graag jouw feedback. Laat je reactie achter en eventueel jouw e-mail adres.
Reactie
Verstuur