Projecten
Producten
Bedrijven
Vacatures
Agenda
Awards
Podcasts
more_horiz
Videos
Magazine
Thema's
Favorieten
Profiel
Uitloggen
Copyright: Buro/S Architects
Copyright: Buro/S Architects
Copyright: Buro/S Architects
Copyright: Buro/S Architects
Copyright: Buro/S Architects
Copyright: Buro/S Architects
Copyright: Buro/S Architects
Copyright: Buro/S Architects
Copyright: Buro/S Architects
Copyright: Buro/S Architects
Copyright: Buro/S Architects
Copyright: Buro/S Architects
Copyright: Buro/S Architects
Voorgevel
Copyright: Buro/S Architects
Dwarsdoorsnede
Copyright: Buro/S Architects
Langsdoorsnede
Copyright: Buro/S Architects
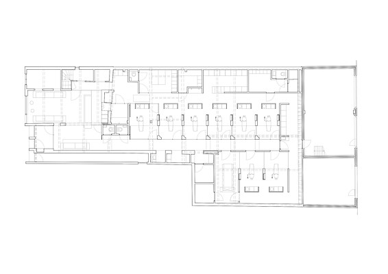
Begane grond
Copyright: Buro/S Architects
Buro/S transformeert monument in centrum Wassenaar tot moderne orthodontistenpraktijk
6 mei 2025, 11:38
In het centrum van Wassenaar heeft
Buro/S Architects
een rijksmonument getransformeerd tot het onderkomen van een orthodontistenpraktijk. Het project aan de Langstraat bestaat uit drie onderdelen: renovatie van het zeventiende-eeuwse monument, vernieuwing van de bouwkundig in zeer slechte staat verkerende uitbouw en een garage aan de Tuinstraat. Binnen het geheel is een hedendaagse en ruim van daglicht voorziene orthodontistenpraktijk gerealiseerd.
Het oorspronkelijke pand dateert uit de eerste helft van de zeventiende eeuw en kenmerkt zich door een karakteristiek zadeldak tussen puntgevels. Het betreft een zogenaamd diephuis, een woningtype waarbij de voorgevel smal is en het pand diep naar achteren doorloopt. Het huis staat haaks op de straat, evenals de nok van het dak. Sinds een jaar of honderd werd het pand gebruikt als winkel, daarvoor diende het als woonhuis van een dorpsboerderij.
Buro/S Architects heeft het monument intern en waar nodig extern gerestaureerd en voorzien van een vernieuwde uitbouw aan de rechter- en achterzijde. De nieuwe constructie van de uitbouw is zo ontworpen dat een toekomstige optopping aan de achterzijde mogelijk is. Aan de voorzijde is een nieuwe gevel ontworpen, waarin de eveneens nieuwe entree van het gebouw is gepositioneerd.
De voorgevel van de vernieuwde uitbouw wordt gekenmerkt door een driedeling, bestaande uit twee metselwerkpenanten in donkerbruin metselwerk, in lijn met de kleur van de originele bakstenen van het monument. Daartussen bevindt zich een glazen wand, die de contouren van het zeventiende-eeuwse gebouw vanaf de winkelstraat zichtbaar houdt.
De entree, die centraal tussen de penanten is geplaatst, bestaat uit een beglaasd stalen frame, gepoedercoat in de tint ‘groene aarde’. De naastgelegen toegang tot de brandgang is vormgegeven als een gesloten metalen deur met subtiele ronde perforaties. Boven deze elementen verbindt een gepolijste betonnen latei in donkergroene kleur de verschillende delen visueel.
Historische elementen zoveel mogelijk behouden
In de orthodontistenpraktijk bevinden zich acht behandelkamers en alle benodigde ondersteunende voorzieningen. Bij de herindeling van het interieur zijn de historische elementen zoveel mogelijk behouden gebleven en gecombineerd met hedendaagse functionele ingrepen.
De nieuwe uitbouw, met een oppervlakte van circa 400 m², is ontworpen om optimaal daglicht binnen te laten. Hiervoor is in het verlengde van de hoofdingang een lichtstraat aangebracht in het dak, die de naastgelegen ruimte voorziet van voldoende daglicht en zo als een natuurlijke bewegwijzering voor de gebruikers fungeert.
Binnen het gebouw zijn aparte routes gecreëerd voor patiënten en medewerkers, omwille van een hygiënische werkomgeving en het creëren van een rustige en serene sfeer. Via de nieuwe entree betreden bezoekers het gebouw; aan de linkerzijde bevindt zich de gepolijste betonnen receptiebalie en de toegang tot het rijksmonument, waar de ontvangstruimte van de praktijk is ondergebracht. Hier zijn de oorspronkelijk gemetselde muren in het zicht gelaten en is het plafond gelakt in de oorspronkelijke lichtgroene kleur.
Aan de rechterkant van de receptiebalie bevindt zich de gang met lichtstraat voor bezoekers, waar alle behandelkamers en facilitaire functies zijn gesitueerd. De personeelsroute loopt gescheiden van de bezoekersroute om te voorkomen dat patiënten en medewerkers elkaars paden kruisen. De personeelsfaciliteiten, zoals het kantoor, de voorraadruimte en de sterilisatieruimte, staan in directe verbinding met deze route.
Bij de transformatie is gebruik gemaakt van duurzame materialen en energiezuinige installaties.
Trefwoorden
buro/s architects
zorg
transformatie
wassenaar
orthodontiepraktijk
Locatie
Best gelezen
1
Finalisten presenteren ontwerp voor Shift Landmark in Rotterdam
woensdag, 4 maart
2
Architect Oliver Thill op 55-jarige leeftijd overleden
donderdag, 5 maart
3
Nieuwe Hittekaart Woningmarkt 2026 van BPD toont aanhoudende woningdruk
dinsdag, 3 maart
4
Strijp-S krijgt woonbuurtje met karakteristieken voormalig Philips-terrein
maandag, 2 maart
5
Melkmeisje staat model voor woontoren De Catharina in Zaandam
vrijdag, 27 februari
Gerelateerde nieuwsberichten
Voormalige basisschool in Echt getransformeerd tot tandartspraktijk
27 juli 2021
Verschoven volumes verbijzonderen Kampense tandartspraktijk
31 mei 2022
Wassenaar gaat centrumplan van Ziegler|Branderhorst uitvoeren
10 november 2020
Een efficiënte en modulaire woonmachine in de duinen
2 januari 2024
Constructie en structuur bedrijfspand vormen basis voor nieuw gezondheidscentrum
20 januari
Voormalige basisschool in Echt getransformeerd tot tandartspraktijk
27 juli 2021
Verschoven volumes verbijzonderen Kampense tandartspraktijk
31 mei 2022
Wassenaar gaat centrumplan van Ziegler|Branderhorst uitvoeren
10 november 2020
Een efficiënte en modulaire woonmachine in de duinen
2 januari 2024
Constructie en structuur bedrijfspand vormen basis voor nieuw gezondheidscentrum
20 januari
Toon alles
Andere nieuwsberichten
Architect Oliver Thill op 55-jarige leeftijd overleden
Gisteren, 14:27
Afgelopen maandag is op 55-jarige leeftijd architect Oliver Thill overleden. Het door hem en André Kempe opgerichte Atelier Kempe Thill behoort tot de meest gewaardeerde Nederlandse architectenbureaus van de afgelopen 25 jaar.
HvdHA ontwerpt twee woonblokken in Utrecht Terwijde volgens typologie van woonpalazzo
Gisteren, 10:49
In Utrecht Terwijde worden twee woonblokken met 161 sociale huurwoningen naar ontwerp van Hans van der Heijden Architecten gerealiseerd. De gebouwen worden ontworpen volgens de typologie van een ‘woonpalazzo’.
Sweco neemt Belgische activiteiten Conix RDBM Architects over
4 maart, 4:31
Sweco voegt opnieuw een grote vis toe aan zijn vijver van overgenomen architectenbureaus. Vanaf 30 april zet Conix RDBM Architects zijn Belgische activiteiten voort onder de naam Sweco Architects.
VAi schijnt licht op feministische vrouwenwerkgroep uit de jaren tachtig
4 maart, 3:47
In de jaren 1980 ging de Vlaamse Werkgroep Vrouwen en Wonen de strijd aan met het heersende patriarchale woon- en maatschappijmodel. Het Vlaams Architectuurinstituut organiseert een tentoonstelling over deze wegbereiders en hun boodschap.
Hardt Hyperloop failliet verklaard door rechtbank
Gisteren, 11:37
Het Rotterdamse bedrijf was bezig met de ontwikkeling van technologie om mensen op hoge snelheid via capsules door een vacuümbuis te vervoeren.
Onderzoek: zeespiegel kustgebieden hoger dan in studies aangenomen
Gisteren, 09:13
De zeespiegel aan de kust is in grote delen van de wereld waarschijnlijk hoger dan in veel wetenschappelijke studies wordt aangenomen.
Gelderland geeft voorrang aan vergunningen met minder stikstof
4 maart, 12:24
De plannen zijn onderdeel van het pakket maatregelen dat het Gelderse bestuur wil nemen om de vergunningverlening voor zaken als de woningbouw weer op gang te krijgen.
Amsterdam bouwde opnieuw minder woningen dan de bedoeling is
4 maart, 10:56
Wethouder Steven van Weyenberg spreekt van een ‘sprong in de aantallen’, omdat er in 2025 beduidend meer huizen bijkwamen dan de jaren daarvoor.
Rijksvastgoedbedrijf zet eerste deelgebied nieuwe wijk Valkenhorst in Katwijk te koop
3 maart, 3:26
Op deze locatie mogen de eerste 450 van de in totaal 5.600 woningen worden gebouwd.
Verkoopgolf van woningen door investeerders zet door
2 maart, 2:57
Investeerders hebben in het vierde kwartaal van vorig jaar de meeste woningen verkocht sinds 2021, meldt het Kadaster.
Ga naar het nieuws-archief
1
0
0
0
Voor een optimale gebruikservaring plaatst Architectenweb functionele cookies. Wat de verschillende cookies precies doen leggen we uit in een
overzicht
. Cookies van social media kun je optioneel
aanzetten
.
Akkoord
Instellingen
Annuleren
OK
Sluiten
Doorgaan
Inloggen
Maak een gratis persoonlijk account aan
Feedback
Feedback
Wij horen graag jouw feedback. Laat je reactie achter en eventueel jouw e-mail adres.
Reactie
Verstuur